zabaykaletz Опубліковано: 12 квітня 2012 Поділитись Опубліковано: 12 квітня 2012 Всем добрый день! Находимся в стадии разработки проекта для своего дома. Общие требования к дому - в нем должны быть реализованы 2 полностью автономные квартиры, одна меньшая, для тещи, как аналог небольшой двухкомнатной квартиры, метров на 40 и бОльшая квартира, метров 140, для нас, семейной пары с ребенком и с мыслями еще об одном в перспективе. По набору помещений в меньшей квартире должны быть две комнаты, кухня и ванная, в большей квартире на 1 этаже - кухня-столовая, гостиная, гостевая комната (кабинет) и гостевой санузел, на втором - три спальни, ванная, желательны пару вспомогательных помещений (кладовок, гардеробных). Участок 17 соток, ровный, геология показала, что можно строить без подвала, заезд и, соответственно, главный фасад дома смотрят на северо-запад. Дом хотелось бы двухэтажный, с холодным чердаком, мансарда как-то не по душе. Выкладываем планы этажей, которые пока приняты как рабочий вариант. Неплохими, на наш взгляд, акцентами планировок являются: - все комнаты приближены к квадрату - лестница и холл на втором этаже могут быть освещены естественным светом, что расширяет возможности использования холла, например, как небольшой библиотеки - большое количество подсобных помещений - все жилые комнаты (спальни и гостиные) ориентированы на солнечные стороны, кухни, санузлы и хозпомещения, наоборот, ориентированы на северную сторону - гостевой санузел и кабинет скрыты от пространства кухни-столовой и гостиной холлом на первом этаже Спорным (возможно ошибочным) решением является реализация входа в котельную через холл одной из квартир, чтобы не плодить лишнюю дверь на фасадах. Площадь получилась немного больше, чем мы рассчитываем (190 метров, если считать проекцию лестницы один раз). Кстати, а как считается лестница, на двух этажах или только на одном? Где-то с южной стороны дома надо будет прилепить террасу, которая будет смотреть в рекреационную зону участка, но пока не решили, как она будет реализована, поэтому на плане первого этажа пока нет выхода на террасу. Над той частью первого этажа, где нет второго, будет, скорее всего, неэксплуатируемая кровля из того же материала, что и над основным домом, кстати, пока непонятно, как это будет выглядеть, может, лучше все-таки проектировать эксплуатируемую? Будем очень рады любым замечаниям, предложениям и критике1_эт.pdf2_эт.pdf Посилання на коментар Поділитися на інших сайтах More sharing options...
seyvalter Опубліковано: 13 квітня 2012 Поділитись Опубліковано: 13 квітня 2012 Не подобається. Геть погано. Відкиньте цей план і спробуйте накреслити ще раз. Основні недоліки - розкиданість обслуговуючих приміщень по будинку і відсутність вікон у сан.вузлах. Посилання на коментар Поділитися на інших сайтах More sharing options...
Vavilеn Опубліковано: 14 квітня 2012 Поділитись Опубліковано: 14 квітня 2012 Жутковато. Согласен с seyvalter - надо рисовать заново. Ванна над кабинетом, санузел напротив гостинной, котельная 5 метров (если там 1 котёл - так проще его на кухню повесить, а если 2 - вроде мало 5 метров), перемешано всё, перекрытие непонятно как (плиты 9 метров ?), холлы в которых нет места даже для вешалки с табуреткой ... и всё это чуть ли не 10 на 15 размером. Чего вы вообще решили сделать разные размеры этажей ? Фундамент и кровля - самое дорогое, эта ваша "пристройка" слева выльется в копеечку. Посилання на коментар Поділитися на інших сайтах More sharing options...
groggy Опубліковано: 14 квітня 2012 Поділитись Опубліковано: 14 квітня 2012 У нас похожие требования к дому, в итоге остановились на таком проекте z500.com.ua/ru/project/z187 правда там мансарда, но всегда можно с изменениями сделать. Посилання на коментар Поділитися на інших сайтах More sharing options...
zabaykaletz Опубліковано: 15 квітня 2012 Автор Поділитись Опубліковано: 15 квітня 2012 У нас похожие требования к дому, в итоге остановились на таком проекте z500.com.ua/ru/project/z187 правда там мансарда, но всегда можно с изменениями сделать. Смотрели, хороший проект, там бы еще комнату гостевую на первом этаже - цены бы ему не было Всем спасибо за критику, будем думать дальше Посилання на коментар Поділитися на інших сайтах More sharing options...
Viks Опубліковано: 16 квітня 2012 Поділитись Опубліковано: 16 квітня 2012 Смотрели, хороший проект, там бы еще комнату гостевую на первом этаже - цены бы ему не было Всем спасибо за критику, будем думать дальше z500.com.ua/ru/project/zb1 - мне этот понравился Вместо гаража на первом можно и гостевую Дымоходный стояк под котёл - можно сделать в несущей стене (для каждой семьи) и добавить канал под камин в углу зала 1 Посилання на коментар Поділитися на інших сайтах More sharing options...
Лиса Опубліковано: 16 квітня 2012 Поділитись Опубліковано: 16 квітня 2012 z500.com.ua/ru/project/zb1 - мне этот понравился Вместо гаража на первом можно и гостевую Дымоходный стояк под котёл - можно сделать в несущей стене (для каждой семьи) и добавить канал под камин в углу зала Вопросов нет, домик хороший, но... Насколько я понимаю, ТС искал дом НЕ с равноценными площадями, а вы предлагаете ему вместо 40 кв.м. для мамы еще один полноценный дом... Я бы переделала немного вот такой: www.archon.com.ua/proekt_doma/MNISZKI/m42d27d5822cae?cat_id=1075 или такой: www.ipprojekts.lv/?lang=ru&cat=20039&tabid=12&rowid=463&act=viewtabentry&offset=&udefs 1 Посилання на коментар Поділитися на інших сайтах More sharing options...
zabaykaletz Опубліковано: 16 квітня 2012 Автор Поділитись Опубліковано: 16 квітня 2012 Вопросов нет, домик хороший, но... Насколько я понимаю, ТС искал дом НЕ с равноценными площадями, а вы предлагаете ему вместо 40 кв.м. для мамы еще один полноценный дом... Я бы переделала немного вот такой: www.archon.com.ua/proekt_doma/MNISZKI/m42d27d5822cae?cat_id=1075 или такой: www.ipprojekts.lv/?lang=ru&cat=20039&tabid=12&rowid=463&act=viewtabentry&offset=&udefs Очень интересные проекты, спасибо! Есть пища для размышлений... Посилання на коментар Поділитися на інших сайтах More sharing options...
Studio Z500 Опубліковано: 19 квітня 2012 Поділитись Опубліковано: 19 квітня 2012 Кроме вышеуказанного z187 посмотрите ещё вот такие варианты z500.com.ua/ru/project/z46 z500.com.ua/ru/project/z192 1 Посилання на коментар Поділитися на інших сайтах More sharing options...
zabaykaletz Опубліковано: 22 квітня 2012 Автор Поділитись Опубліковано: 22 квітня 2012 Спасибо всем откликнувшимся, вот еще вопрос - как понятно из предложенной планировки и проектов, которые здесь упомянуты, площадь по первому этажу с учетом блока для тещи и для нашей семьи кухни-столовой, гостиной и небольшого кабинета все равно превышает 100 метров. То, что те же 100 и более метров по второму этажу на три спальни и санузел не нужны - тоже понятно, т.е. имеем противоречие, которое пока пытаемся решить тем, что часть дома будет по сути одноэтажной. Однако, как видно из критических замечаний выше, и с этим можно согласиться - данное решение достаточно спорное и хорошо может быть реализовано только грамотным архитектором, чтобы дом потом не смотрелся как дом с пристроенным сараем, и при этом, действительно, на фундаменте и крыше сильно не сэкономишь. А что если уйти от этой концепции и рассмотреть вот такие варианты: - делать мансардный дом, площадь по полу мансарды те же 100 метров, а с нормальной высотой мансардных помещений - метров 60, и по периметру жилой зоны понатыкать под крышу кладовок всяких; - делать вообще одноэтажный дом, в этом случае можно метров 15 - 20 общей площади сэкономить за счет отсутствия лестницы, да и комфортнее, по отзывам многих, именно одноэтажный дом против домов с лестницей; - как вариант, сбалансировать площади первого и второго этажей в двухэтажном доме за счет переноса собственно гостиной на второй этаж, на первом только кухня-столовая и небольшой кабинет, ну и неизменный блок для тещи. Третий вариант, похоже, самый экономичный будет, но вот как кому гостиная на втором этаже? Какой из первых двух вариантов будет дешевле? Если выбирать только из этих трех вариантов, я бы, наверное, выбрал первый, если гостиная так, телик посмотреть, а гостей принимать в просторной беседке с летней кухней и мангалом, а зимой гостей вообще не звать . Супруге больше одноэтажный нравится, чтобы по лестнице не бегать вверх - вниз, когда по дому хлопочешь. Кто что посоветует? Посилання на коментар Поділитися на інших сайтах More sharing options...
Vavilеn Опубліковано: 22 квітня 2012 Поділитись Опубліковано: 22 квітня 2012 - делать мансардный дом, площадь по полу мансарды те же 100 метров, а с нормальной высотой мансардных помещений - метров 60, и по периметру жилой зоны понатыкать под крышу кладовок всяких; - делать вообще одноэтажный дом, в этом случае можно метров 15 - 20 общей площади сэкономить за счет отсутствия лестницы, да и комфортнее, по отзывам многих, именно одноэтажный дом против домов с лестницей; Мансардный самый дешевый и самый некомфортный, одноэтажный самый дорогой и самый комфортный (это, конечно, среднее по больнице и когда дом больше, чем 120 метров, но лучше ориентируйте на это сразу - ибо у вас он именно такой и есть). Тут решать вам по финансам в первую очередь. Я видел много раз людей (на форуме в том числе) которые жалеют, что построили 2 этажа (или мансарду), а не один. Я не видел ни единого человека, который жалел бы, что он свою квадратуру построил в один этаж, а не в два. Гостинная на втором этаже - это как туалет на кухне, оставьте эту идею лучше сразу, это противоестественно 1 Посилання на коментар Поділитися на інших сайтах More sharing options...
Лиса Опубліковано: 23 квітня 2012 Поділитись Опубліковано: 23 квітня 2012 Я тоже аналогично собираюсь строить дом. И точно так долго металась: отделять маму или нет, одно- или двух-этажный.... Посмотрите вот на этот дом (не конкретно на этот проект, там бы я убрала гараж, а сделала комнату, ну и чуть перепланировала): www.domproekty.ru/ru/namu-projektai/?id=133&pav=&plotas_nuo=&plotas_iki=&floors[]=2&search=%D0%9F%D0%BE%D0%B8%D1%81%D0%BA&paging=9&page=36 Смотрите на сам подход: часть дома - одноэтажная, часть - двухэтажная. Крыша - бюджетная, двухскатная. То есть, как бы гостиная с кухней получатся общие + комната вместо гаража на первом этаже - для мамы. Второй - в нашем распоряжении. Хотя такой же принцип можно использовать и для других проектов. Главное - понимать, чего хочешь и правильно поставить задачу архитектору. И вообще, на этом сайте много интересных решений, хотя в чистом виде проекты не нравятся, но кое-что (в том числе возможность делать второй этаж тех размеров, которых надо, а не тех, которые получаются), можно подсмотреть. 1 Посилання на коментар Поділитися на інших сайтах More sharing options...
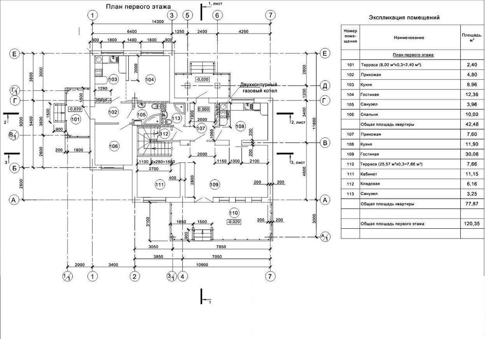
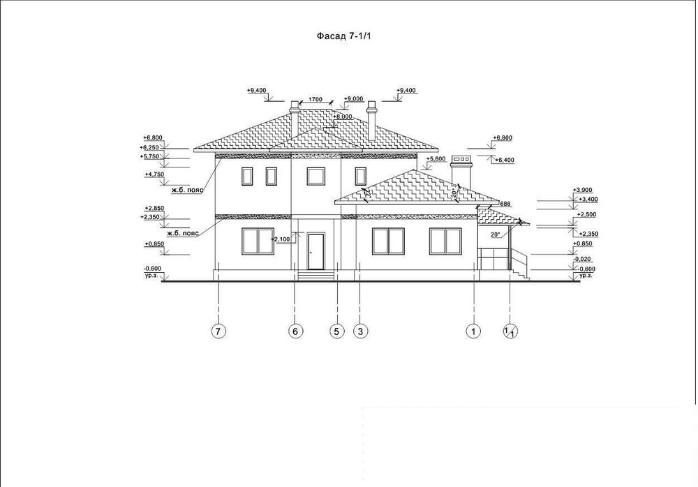
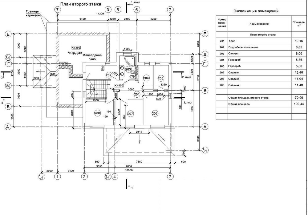
zabaykaletz Опубліковано: 18 серпня 2012 Автор Поділитись Опубліковано: 18 серпня 2012 Уф-ф-ф... И вот спустя четыре месяца имеем наконец-то окончательный вариант планировок, который уже пошел в финальный обсчет конструкторам, спецам по инженерии и прочим смежникам. Очень непросто все продвигалось, пока я сам не нашел в интернете вот этот проект, зеркальное отображение которого стало в итоге той пресловутой точкой опоры, которая была нужна, чтобы сдвинуть дело с мертвой точки. (ссылка устарела) Результаты с фасадами приложены к сообщению. Существенный недостаток у данной планировки вижу только один - лестница без промежуточной площадки, но никак она не помещалась, борьба шла за каждый квадратный дециметр площади того или иного помещения... Можно сказать, что спальни небольшие, от 11 до 13,4 м, но это частично скомпенсировано двумя гардеробными 5,5 и 6 м, можно сказать, что на втором этаже только один общий санузел и нет отдельного родительского, но четвертый санузел в доме (не забываем про тещу с отдельным полностью автономным блоком на 42 метрах, где, конечно, есть санузел) я бы уже не потянул, кого приспичит - сбегает на первый этаж, даже в особо тяжелых случаях три санузла четверых страждущих и пятого пока в плане, думаю, выдержат... Плюсов значительно больше - все помещения кроме кладовых и подсобок тяготеют к квадрату, жилая зона ориентирована на юго - юго-восток (исключение только гостиная тещи), кухни, санузлы, гардеробные, хозпомещение - на северо - северо-запад, самый жаркий фасад - западно - юго-западный (все-таки юг Украины) - без окон, кроме одного, дающего естественный свет на лестницу и холл второго этажа, противоположный фасад смотрит на соседа тоже только одним окном, чего мы там не видели , блок тещи, как форпост, выдвинут окнами навстречу входной группе (воротам и калитке), сразу видно будет, кто в гости ломится, есть удобный выход на чердак через хозпомещение второго этажа для складирования там какого-то барахла, есть гостевая комната на первом этаже... В-общем, я доволен. Правильно писали, что крыша и фундамент такого строения потянут порядочно, готовлюсь грубо к 15к на фундамент и отдельно 20к на крышу, но строим-то для себя и надолго, заработаем... Спасибо всем за критику, буду рад, если кому-то итоговые планировки подскажут какую-то идею. Удачи! Посилання на коментар Поділитися на інших сайтах More sharing options...
Pasha Опубліковано: 23 серпня 2012 Поділитись Опубліковано: 23 серпня 2012 Будем очень рады любым замечаниям, предложениям и критике Не торопитесь. Пусть пройдет до месяца, чтобы поиграться с вариантами. Не стройте коробочку. Проявите фантазию ну или позаимствуйте идеи у других. Внимательно подойдите к вопросу с площадями и удобством расположения. Посилання на коментар Поділитися на інших сайтах More sharing options...
Рекомендовані повідомлення
Створіть акаунт або увійдіть у нього для коментування
Ви маєте бути користувачем, щоб залишити коментар
Створити акаунт
Зареєструйтеся для отримання акаунта. Це просто!
Зареєструвати акаунтУвійти
Вже зареєстровані? Увійдіть тут.
Увійти зараз