vp69 Опубліковано: 18 квітня 2012 Поділитись Опубліковано: 18 квітня 2012 Добрый день. Нужна бригада для постройки фундамента в Вышгороде, согластно проэкта. Подъезд к участку хороший. Интересует примерная смета с материалыли и без. Посилання на коментар Поділитися на інших сайтах More sharing options...
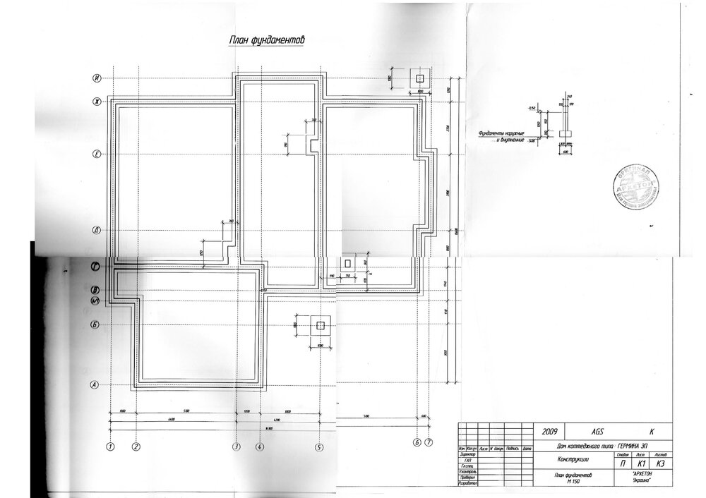
an_drejka11 Опубліковано: 18 квітня 2012 Поділитись Опубліковано: 18 квітня 2012 Дуже погана різкість фото-- не видно цифр навіть при великому збільшенні. І розпечатати не можливо. На почті також Посилання на коментар Поділитися на інших сайтах More sharing options...
Родин Сергей Игоревич Опубліковано: 18 квітня 2012 Поділитись Опубліковано: 18 квітня 2012 Не знаю, качество не супер, но все цифры различимы и читабельны! Фундамент супер! Посилання на коментар Поділитися на інших сайтах More sharing options...
smail Опубліковано: 18 квітня 2012 Поділитись Опубліковано: 18 квітня 2012 Не знаю, качество не супер, но все цифры различимы и читабельны! Фундамент супер! Та не, не чего не видно!!! Посилання на коментар Поділитися на інших сайтах More sharing options...
yrbasio Опубліковано: 18 квітня 2012 Поділитись Опубліковано: 18 квітня 2012 И чего в нем супер.Фундамент как фундамент. Посилання на коментар Поділитися на інших сайтах More sharing options...
vp69 Опубліковано: 18 квітня 2012 Автор Поділитись Опубліковано: 18 квітня 2012 Та не, не чего не видно!!! Может кто подскажет, как поменять фото. Посилання на коментар Поділитися на інших сайтах More sharing options...
vp69 Опубліковано: 18 квітня 2012 Автор Поділитись Опубліковано: 18 квітня 2012 Та не, не чего не видно!!! Исправил. Может так лучьше. Посилання на коментар Поділитися на інших сайтах More sharing options...
Родин Сергей Игоревич Опубліковано: 18 квітня 2012 Поділитись Опубліковано: 18 квітня 2012 А, менять ничего и не надо, вот распечатал уже, нужно лишь знать, как открыть миниатюру, я же говорю - ВСЕ ВИДНО ОТЛИЧНО! Посилання на коментар Поділитися на інших сайтах More sharing options...
smail Опубліковано: 18 квітня 2012 Поділитись Опубліковано: 18 квітня 2012 А, менять ничего и не надо, вот распечатал уже, нужно лишь знать, как открыть миниатюру, я же говорю - ВСЕ ВИДНО ОТЛИЧНО! __________________ ПОЗДРАВЛЯЕМ!!!!!!!!!! 1 Посилання на коментар Поділитися на інших сайтах More sharing options...
Родин Сергей Игоревич Опубліковано: 18 квітня 2012 Поділитись Опубліковано: 18 квітня 2012 Ну, если и теперь не видно, я даже не знаю......................... Добавлено через 20 минут Ответ в личке! Посилання на коментар Поділитися на інших сайтах More sharing options...
tansss Опубліковано: 18 квітня 2012 Поділитись Опубліковано: 18 квітня 2012 (змінено) Скажите, а что там за грунт (необходимо для просчета обьёма земл. работ с учётом обсыпания)???? И вообще - это план фундамента из типового Архетоновского проекта или УЖЕ АДАПТИРОВАН ПОД ВАШУ ГЕОЛОГИЮ(просто обычно в подписи чертежа указывается место под которое проектируется фундамент)??? Схемы армирования покажите или додумать самому??????? Фундамент -это непосредственно вот та лента внизу шириной 60см а дальше - это стена. Так вот - её делать монолитной или из ФБС+пояс??? Начал считать - а там исчо мильон вопросов!!! Короче - для детального просчета нужны раб. чертежи. Если просто прицениться - дык +/- 15000-17000 с зем работами + бетон - железо - дерево + обратка с трамбовкой ......... короче отметка 0,00 Змінено 18 квітня 2012 користувачем tansss Посилання на коментар Поділитися на інших сайтах More sharing options...
yrbasio Опубліковано: 18 квітня 2012 Поділитись Опубліковано: 18 квітня 2012 Если просто прицениться - дык +/- 15000-17000 с зем работами + бетон - железо - дерево + обратка с трамбовкой ......... короче отметка 0,00 Если не приценяться, а посчитать. То сумма в два раза больше.......... Одного бетона 38м3 Котлована 78м3 земли перелопатить. А плюс подготовка. Гидроизоляция, утепление. Периметр 15600х16300+внутренний фундамент. Площядь фундамента немаленькая. __________________ 1 Посилання на коментар Поділитися на інших сайтах More sharing options...
tansss Опубліковано: 18 квітня 2012 Поділитись Опубліковано: 18 квітня 2012 Если просто прицениться - дык +/- 15000-17000 с зем работами + бетон - железо - дерево + обратка с трамбовкой ......... короче отметка 0,00 Если не приценяться, а посчитать. То сумма в два раза больше.......... Одного бетона 38м3 Котлована 78м3 земли перелопатить. А плюс подготовка. Гидроизоляция, утепление. Периметр 15600х16300+внутренний фундамент. Площядь фундамента немаленькая. __________________ Без чертежей, тех задания и геологии - можем тут хфантазёрствовать до одури. (нада там гидроизол + утеплитель - ненада + отмостка + ...) Всё -- не важно, главное ---- в прай-листе указать --- -------- заливка бетона с миксера = 350грн/куб Тагда - на коне. Одного бетона 38м3 да по 520грн:lol:= 20 000грн ззаливка 38*350 = 13300 Итого 33300 Отак многие считают стоимость фундамента и --- получают заказ Посилання на коментар Поділитися на інших сайтах More sharing options...
yrbasio Опубліковано: 19 квітня 2012 Поділитись Опубліковано: 19 квітня 2012 Да лутьше на коне чем,на ишаке. Расценки на устройство фундаментов.Копия Price+.xls Посилання на коментар Поділитися на інших сайтах More sharing options...
mubmulp Опубліковано: 19 квітня 2012 Поділитись Опубліковано: 19 квітня 2012 Стоимость работ по фундаменту.doc Всегда рады вам помочь 1 Посилання на коментар Поділитися на інших сайтах More sharing options...
yrbasio Опубліковано: 19 квітня 2012 Поділитись Опубліковано: 19 квітня 2012 [ATTACH]180828[/ATTACH] Всегда рады вам помочь Вот, вот и я вышел на эту цифру. Посилання на коментар Поділитися на інших сайтах More sharing options...
smail Опубліковано: 19 квітня 2012 Поділитись Опубліковано: 19 квітня 2012 Да лутьше на коне чем,на ишаке. Расценки на устройство фундаментов. Поддерживаю!!! озвучил стоимость за куб и всем все ясно, а то как начнут расписывать,смешно до боли в животе)))))) 1 Посилання на коментар Поділитися на інших сайтах More sharing options...
tansss Опубліковано: 19 квітня 2012 Поділитись Опубліковано: 19 квітня 2012 Вот, вот и я вышел на эту цифру. Разработка грунта 100м3 8000 Подготовка(дренаж и уплотнение грунта) 70м2 3500 Опалубка 200м.п(подошва) +190м2 6500+7600 Вязка армокаркаса 400кг 1400 Позвольте обсудить хотяб эти пункты: 100м.п(подошва) - глубина траншеи - 1,4 - ширина 1,0(0,6 + 2*0,2на опалубку) 100*1,4*1,0=140м3 +обсыпка 40м3 но не 100м3:rolleyes: Обратка с трамбовкой - 100м3 - забываем???? на 42м3 бетона - железа мин 2000кг но не 400 Фанера 190м2 - ну никак не 300грн Шо то не играет????? 1 Посилання на коментар Поділитися на інших сайтах More sharing options...
smail Опубліковано: 19 квітня 2012 Поділитись Опубліковано: 19 квітня 2012 Вязка армокаркаса 400кг 400кг. на 42м3 !!!!!!как-то маловато))))))))))))))))))))))))))))) Посилання на коментар Поділитися на інших сайтах More sharing options...
yrbasio Опубліковано: 19 квітня 2012 Поділитись Опубліковано: 19 квітня 2012 Позвольте обсудить хотяб эти пункты: 100м.п(подошва) - глубина траншеи - 1,4 - ширина 1,0(0,6 + 2*0,2на опалубку) 100*1,4*1,0=140м3 +обсыпка 40м3 но не 100м3:rolleyes: Обратка с трамбовкой - 100м3 - забываем???? на 42м3 бетона - железа мин 2000кг но не 400 Фанера 190м2 - ну никак не 300грн Шо то не играет????? Зачем фундамент закапывать на 1,4 если указано 1,25.его высота. 1,2 и остаток на цоколь 0,5. Итого 1,2х92,88м.п периметр х 0,7 ширина подошвы с учетом опалубки=78,01м3 котлован Подушка 92,88х0,6х0,3=16,72м3 бетон Основа 92,88х0,24х0,95=21,18м3 бетона ну и т.д Итого бетона 37,9м3 ну плюс на усадку 2-3% 38,5м3 И не надо цветочков и пальчиков. Посилання на коментар Поділитися на інших сайтах More sharing options...
tansss Опубліковано: 19 квітня 2012 Поділитись Опубліковано: 19 квітня 2012 Парни, може Вы не поняли но я попытался обсудить цены изложенные и похваленные в ПОСТЕ 15 По кубажу бетона - вопросов нет, по арматуре есть и по фанере. По земляным работам - 1,4 глубина с учетом пещ/щеб. подушки + как Вы видите траншею глубиной 1,4 со строго вертикальными стенками и как там станет человек для установки опалубки???????? А розочки и пальчики для того и придуманы чтоб их иногда вставлять в текст Я понимаю шо Заказчику можно напарить что угодно - лишбы цифра меньше былыб, но друг - другу то чего!!!!!!!!!!! Посилання на коментар Поділитися на інших сайтах More sharing options...
vp69 Опубліковано: 19 квітня 2012 Автор Поділитись Опубліковано: 19 квітня 2012 Да уж. Смотрю цена с каждым днем все выше. Начало было порядка 22000 за работу, сегодня уже к 40000 подбираемся. Кто больше ? Добавлено через 4 минуты Я конечно не специалист, но мне кажется, что за гораздо меньшую сумму чем 8-10 тыс. за копку фундамента, эксковатором можно на всю площадь откапать и после этого засыпать. Добавлено через 11 минут Я понимаю шо Заказчику можно напарить что угодно - лишбы цифра меньше былыб, но друг - другу то чего!!!!!!!!!!! Заказчика интересует конкретная сумма за конкретное изделие (согластно проэкта), а как пототом начнется что это забыли, а тут надо прибавить и т.д. Заказчика, помойму не должно интересовать. Или я не прав ? Посилання на коментар Поділитися на інших сайтах More sharing options...
tansss Опубліковано: 19 квітня 2012 Поділитись Опубліковано: 19 квітня 2012 Заказчика интересует конкретная сумма за конкретное изделие (согластно проэкта), а как пототом начнется что это забыли, а тут надо прибавить и т.д. Заказчика, помойму не должно интересовать. Или я не прав ? Отож....... как я и писал готовте 15000-17000 USD и получите отметку 0,00. Не мне!!! Я стараюсь не брать подряд только на фундамент. И пока делать некем!!! Добавлено через 24 минуты Я конечно не специалист, но мне кажется, что за гораздо меньшую сумму чем 8-10 тыс. за копку фундамента, эксковатором можно на всю площадь откапать и после этого засыпать. Да но после экскаватора эти 150м3 надо от пятна застройки отвезти а потом обратно засыпать с послойной трамбовкой только руками Посилання на коментар Поділитися на інших сайтах More sharing options...
vp69 Опубліковано: 19 квітня 2012 Автор Поділитись Опубліковано: 19 квітня 2012 Отож....... как я и писал готовте 15000-17000 USD и получите отметку 0,00. Не мне!!! Я стараюсь не брать подряд только на фундамент. И пока делать некем!!! Добавлено через 24 минуты Да но после экскаватора эти 150м3 надо от пятна застройки отвезти а потом обратно засыпать с послойной трамбовкой только руками А если лить прямо в грунт, и с верху опалубку ? Грунт глина, не осыпается, если я правильно понял. Чем это чревато ? Добавлено через 11 минут А если лить прямо в грунт, и с верху опалубку ? Грунт глина, не осыпается, если я правильно понял. Чем это чревато ? А может разровнять бульдозером и плиту залить. что то мне подсказывает, что будет дешевле если учитывать и черновой пол. Посилання на коментар Поділитися на інших сайтах More sharing options...
tansss Опубліковано: 19 квітня 2012 Поділитись Опубліковано: 19 квітня 2012 А если лить прямо в грунт, и с верху опалубку ? Грунт глина, не осыпается, если я правильно понял. Чем это чревато ? Я не зря спрашивал - этот план привязан к конкретному месту или взят от фонаря. Это самый ДОРОГОЙ тип если делать по правилам!!! Есть разные типы фундаментов значительно более экономичные. Но для их расчета надо видеть геологию и проект дома. Посилання на коментар Поділитися на інших сайтах More sharing options...
Рекомендовані повідомлення
Створіть акаунт або увійдіть у нього для коментування
Ви маєте бути користувачем, щоб залишити коментар
Створити акаунт
Зареєструйтеся для отримання акаунта. Це просто!
Зареєструвати акаунтУвійти
Вже зареєстровані? Увійдіть тут.
Увійти зараз