Татьяна5 Опубліковано: 1 травня 2012 Поділитись Опубліковано: 1 травня 2012 (змінено) 067-506-36-11 Татьяна - готова ответить на возможные вопросы "Там на неведанных дорожках следы невиданных зверей" (с) - предлагаются к покупке действительно красивые участки, в действительно красивом месте - Жукин, Вышгородский р-н, 40 минут спокойной езды от Оболони по действительно красивой и приятной дороге . Где - Вышгородский р-н, с. Жукин, 40 минут от Оболони, общий массив 10 га Гугл-координаты - широта 50°47'50.85"С, долгота 30°40'14.48"В Как доехать на общественном транспорте - маршрутки с Г.Днепра на Жукин, Сувид, Десну, цена 8 грн, в пути 40 минут, от остановки 1,5 км пешком по хорошей дороге Как доехать на машине - от поворота на базу Авиатор, через 500 метров поворот налево, на асфальт, едем 1 км, поворот налево, к лесу Что предлагается - земельные участки различного размера (от 11,90 соток до 22 соток каждый), назначение земли - "садоводство" (все тоже, что для индивидуального строительства, но без прописки), массив будет входить в новый генплан с. Жукин и будет полностью введен в межи села, что в итоге даст возможность прописки (может, для кого-то это будет важно). Цена 1 сотки на старте проекта = 800 уе Массив с трех сторон окружен хвойным лесом, на каждом участке есть деревья. На территории находится два общественных озера - для рыбалки (35х22 метра), озеро для купания (40х50 метров) и отдыха на своем закрытом пляже. Озеро для рыбалки расчищено, увеличено, углублено. Озеро для купания - сделаны предварительные работы по копке, углублению, в июле-августе будут вестись работа земснарядом по намыву песка на пляж и формированию декоративного островка. Так же есть возможность купить участок со своим личным озером. Схема организации - зарегестрированный кооператив "Озерный Край", вопросы света, дорог, ограждения, охраны - полностью курируются и выполняются координаторами проекта (мною и председателем кооператива) Свет - взято ТУ, расчетная мощность на каждый участок 15-20 Квт, ориентировочная себестоимость 1квт = 1040-1200 грн, до момента установки трансформатора Покупатель выкупает мощности по себестоимости, после установки - выкупают по коммерческой стоимости. Ориентировочное время установки ТП - ноябрь-декабрь 2012 года. Газ - есть техническая возможность провести, необходимость в проведении будет определяться на основании решения всех Покупателей после продажи участков Дорога подъездная - асфальт, потом 500 метров широкой песчаной дороги, проездная в любое время года. Планируется дальнейшая отсыпка строительным боем Дороги внутри кооператива - сделана рубка деревьев, корчевание пней, вывоз пней, сделаны корыта под будущие внутренние дороги. Ширина дорог - основная 10м, боковые - 8 м. Планируется отсыпка щебнем. Взнос по дороге с каждого участка - 6000 грн Охрана - предусмотрен участок для размещения охраны кооператива, охрана появится сразу как только будет установлена своя ТП (свет) Общее ограждение - предусмотрено общее ограждение кооператива и пропускная система. Взнос на ограждение с каждого участка расчитывается индивидуально (в зависимости от расположения участка, примыкает или нет в будущему ограждению). Скважины - индивидуальные, делаются самостоятельно, вода на 10, 20, 35, 60 метрах. Канализация - индивидуальная, делается самостоятельно Добавлено через 11 минут Теперь немного фото : Заезд в кооператив; слева - участки, справа - лес справа - участки, слева - лес Общественное озеро для рыбалки: Змінено 2 травня 2012 користувачем Татьяна5 Посилання на коментар Поділитися на інших сайтах More sharing options...
Татьяна5 Опубліковано: 1 травня 2012 Автор Поділитись Опубліковано: 1 травня 2012 (змінено) Фото самих участков: участок со своим частным озером: Змінено 2 травня 2012 користувачем Татьяна5 Посилання на коментар Поділитися на інших сайтах More sharing options...
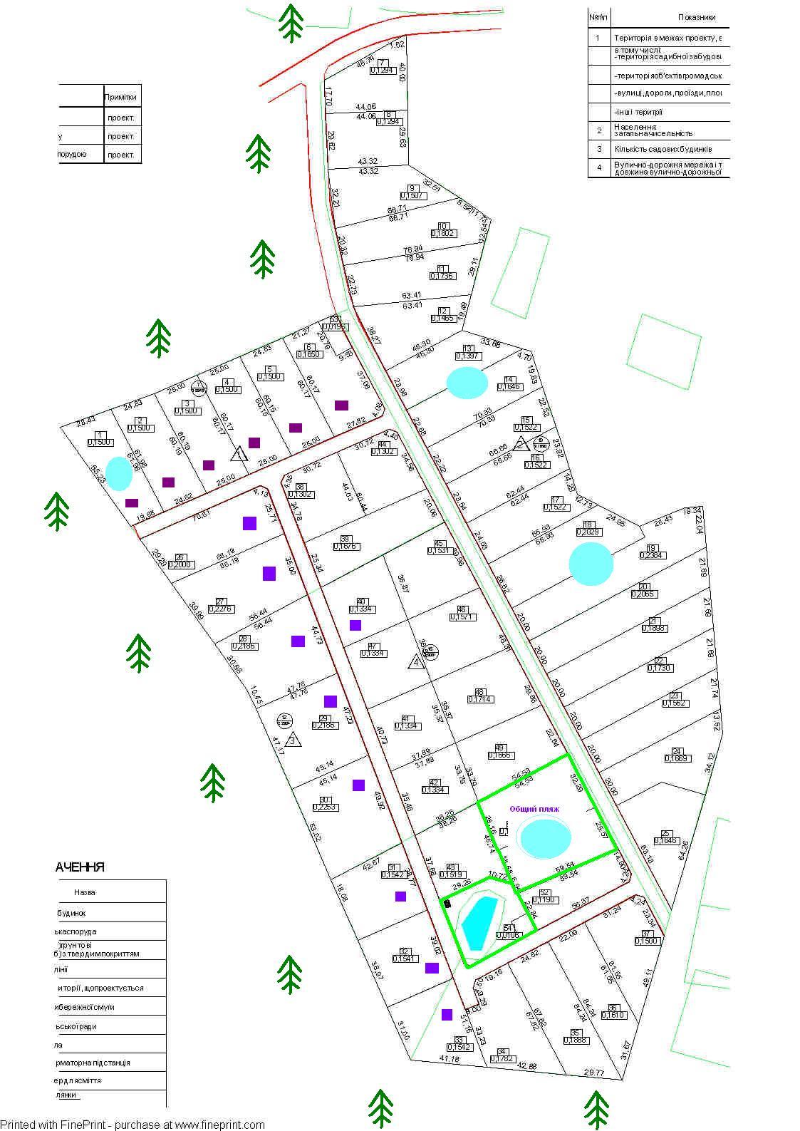
Татьяна5 Опубліковано: 1 травня 2012 Автор Поділитись Опубліковано: 1 травня 2012 Генеральный план массива: Условные обозначения: Зеленая "ёлочка" - примыкание хвойного леса Бирюзовые кружки - озера Участки, выделенные зеленым контуром - зоны общественного пользования кооператива Участки с сиреневым квадратиком (9 шт) - участки под задатками Участки с фиолетовыми квадратиками (6 шт) - участки, оставленные мною под строительство дач в 2013 году Все остальные участки - свободны к продаже Посилання на коментар Поділитися на інших сайтах More sharing options...
Татьяна5 Опубліковано: 1 травня 2012 Автор Поділитись Опубліковано: 1 травня 2012 В аттачменте - укрупненный генплан, с указанными размерами и номером каждого участка (просто кликните для увеличения) Посилання на коментар Поділитися на інших сайтах More sharing options...
Татьяна5 Опубліковано: 2 травня 2012 Автор Поділитись Опубліковано: 2 травня 2012 Красиво в любое время года - озеро для рыбалки Посилання на коментар Поділитися на інших сайтах More sharing options...
Urs2007 Опубліковано: 2 травня 2012 Поділитись Опубліковано: 2 травня 2012 Да,сейчас участки выглядят совершенно не так как в марте,очень красиво.Татьяна,тебе безмерной удачи и железного терпения во всех делах,связанных с новым массивом.Но и о старом не забывай,а то мы без тебя пропадём:D. Меня же,как жителя Жукина 1,интересует один вопрос: "А можно ли будет жукинцам 1 ловить (и запускать) рыбку в общественных озёрах Жукина 2 ?" :D 1 Посилання на коментар Поділитися на інших сайтах More sharing options...
Татьяна5 Опубліковано: 2 травня 2012 Автор Поділитись Опубліковано: 2 травня 2012 Да,сейчас участки выглядят совершенно не так как в марте,очень красиво.Татьяна,тебе безмерной удачи и железного терпения во всех делах,связанных с новым массивом.Но и о старом не забывай,а то мы без тебя пропадём:D. Меня же,как жителя Жукина 1,интересует один вопрос: "А можно ли будет жукинцам 1 ловить (и запускать) рыбку в общественных озёрах Жукина 2 ?" :D спасибо! да без проблем, и покупаться и рыбки позапускать/половить Посилання на коментар Поділитися на інших сайтах More sharing options...
MLNK Опубліковано: 2 травня 2012 Поділитись Опубліковано: 2 травня 2012 .... очень красиво.Татьяна,тебе безмерной удачи и железного терпения .... Присоединяюсь. Всегда поражали люди, умеющие говорить длинные и красивые фразы. Сам не умею. Неужели этому сейчас учат в школе ? Жукин-2, Татьяна, заверните мне, пожалуйста, один участок без озера, небольшой, по договорённости. 1 Посилання на коментар Поділитися на інших сайтах More sharing options...
Татьяна5 Опубліковано: 2 травня 2012 Автор Поділитись Опубліковано: 2 травня 2012 Присоединяюсь. Всегда поражали люди, умеющие говорить длинные и красивые фразы. Сам не умею. Неужели этому сейчас учат в школе ? Жукин-2, Татьяна, заверните мне, пожалуйста, один участок без озера, небольшой, по договорённости. Спасибо, Володя! №40 уже завернула, ленточкой перевязала, с продажи сняла, на генплане отметила Посилання на коментар Поділитися на інших сайтах More sharing options...
MLNK Опубліковано: 2 травня 2012 Поділитись Опубліковано: 2 травня 2012 ... ленточкой перевязала ... Спасибо, ещё вопрос - когда ожидается присутствие трактора ДТ ? Посилання на коментар Поділитися на інших сайтах More sharing options...
Татьяна5 Опубліковано: 2 травня 2012 Автор Поділитись Опубліковано: 2 травня 2012 Спасибо, ещё вопрос - когда ожидается присутствие трактора ДТ ? только по этому поводу в Жукинской ветке отписалась - www.stroimdom.com.ua/forum/showthread.php?p=1567285#post1567285 1 Посилання на коментар Поділитися на інших сайтах More sharing options...
Татьяна5 Опубліковано: 3 травня 2012 Автор Поділитись Опубліковано: 3 травня 2012 буду показывать участки в субботу, с 12 до 18 часов - присоеденяйтесь - 067-506-36-11 Татьяна Посилання на коментар Поділитися на інших сайтах More sharing options...
Татьяна5 Опубліковано: 4 травня 2012 Автор Поділитись Опубліковано: 4 травня 2012 корректировочка - с 10 до 19 завтра буду в Жукине - 067-506-36-11, Татьяна Посилання на коментар Поділитися на інших сайтах More sharing options...
Татьяна5 Опубліковано: 5 травня 2012 Автор Поділитись Опубліковано: 5 травня 2012 буду в Жукине в понедельник, с обеда и до 19 часов - 067-506-36-11 Посилання на коментар Поділитися на інших сайтах More sharing options...
OlegVd Опубліковано: 6 травня 2012 Поділитись Опубліковано: 6 травня 2012 где озеро для купания? можно фото? Посилання на коментар Поділитися на інших сайтах More sharing options...
Татьяна5 Опубліковано: 6 травня 2012 Автор Поділитись Опубліковано: 6 травня 2012 где озеро для купания? можно фото? На текущий момент на этом месте сделаны подготовительные "раскопки", - снят дерн с участка, сделаны два предварительных озера (10х15 метров каждое), с которых и пойдет соединение и раскопки в глубину и ширину. Страшненько выглядит для фотографирования . Пока ждем августа/сентября для основных работ. Посилання на коментар Поділитися на інших сайтах More sharing options...
Татьяна5 Опубліковано: 7 травня 2012 Автор Поділитись Опубліковано: 7 травня 2012 буду в Жукине в 14.00 - 067-506-36-11 Татьяна Посилання на коментар Поділитися на інших сайтах More sharing options...
Дядя Женя Опубліковано: 7 травня 2012 Поділитись Опубліковано: 7 травня 2012 Даешь больше фоток! Самая ценная фотография будет с воздушного шара над Жукиным-2. 1 Посилання на коментар Поділитися на інших сайтах More sharing options...
Татьяна5 Опубліковано: 7 травня 2012 Автор Поділитись Опубліковано: 7 травня 2012 Даешь больше фоток! Самая ценная фотография будет с воздушного шара над Жукиным-2. у тебя шар есть? :D, вышло бы не плохо кстати, где-то относительно недалеко есть площадка дельтапланеристов - уже второй день их в небе в паре км наблюдаю Посилання на коментар Поділитися на інших сайтах More sharing options...
Дядя Женя Опубліковано: 7 травня 2012 Поділитись Опубліковано: 7 травня 2012 у тебя шар есть? :D, вышло бы не плохо кстати, где-то относительно недалеко есть площадка дельтапланеристов - уже второй день их в небе в паре км наблюдаю Слушай, ищи и договаривайся с этими белками-летягами (дельтапланиристами) что бы они с высоты фотографии сделали. Будет БОМБА! ;) Посилання на коментар Поділитися на інших сайтах More sharing options...
Татьяна5 Опубліковано: 7 травня 2012 Автор Поділитись Опубліковано: 7 травня 2012 Слушай, ищи и договаривайся с этими белками-летягами (дельтапланиристами) что бы они с высоты фотографии сделали. Будет БОМБА! ;) интересная мысль, однако , экий ты выдумщик :D Посилання на коментар Поділитися на інших сайтах More sharing options...
Татьяна5 Опубліковано: 8 травня 2012 Автор Поділитись Опубліковано: 8 травня 2012 сегодня буду в Жукине с 10 до 19 - 067-506-36-11 Татьяна Посилання на коментар Поділитися на інших сайтах More sharing options...
Татьяна5 Опубліковано: 9 травня 2012 Автор Поділитись Опубліковано: 9 травня 2012 завтра буду на участках, с 11 до 18, 067-506-36-11 так же буду в субботу, где-то с 12 до 16 Посилання на коментар Поділитися на інших сайтах More sharing options...
Татьяна5 Опубліковано: 10 травня 2012 Автор Поділитись Опубліковано: 10 травня 2012 актуально некоторые участки уже под бронью, ждем задатка, генплан обновлю в середине следующей недели Посилання на коментар Поділитися на інших сайтах More sharing options...
Татьяна5 Опубліковано: 11 травня 2012 Автор Поділитись Опубліковано: 11 травня 2012 Завтра с 10 до 18 буду в Жукине, Вы можете звонить и подъезжать когда Вам удобно. Время, на которое я буду занята с уже ранее договорившимися (ориентировочно) - 12.00-12.30, 14.00-14.30, 16.00-16.30 067-506-36-11 Татьяна Посилання на коментар Поділитися на інших сайтах More sharing options...
Рекомендовані повідомлення