Перейти до публікації
Пошук в
  • Додатково...
Шукати результати, які містять...
Шукати результати в...

KOSTRZEWA Mini BIO 10 кВт

strelock

Рекомендовані повідомлення

Там если я не ошибаюсь где-то вы выкладывали фотки про кирпич в горелку, то может и сюда продублировать бы...

 

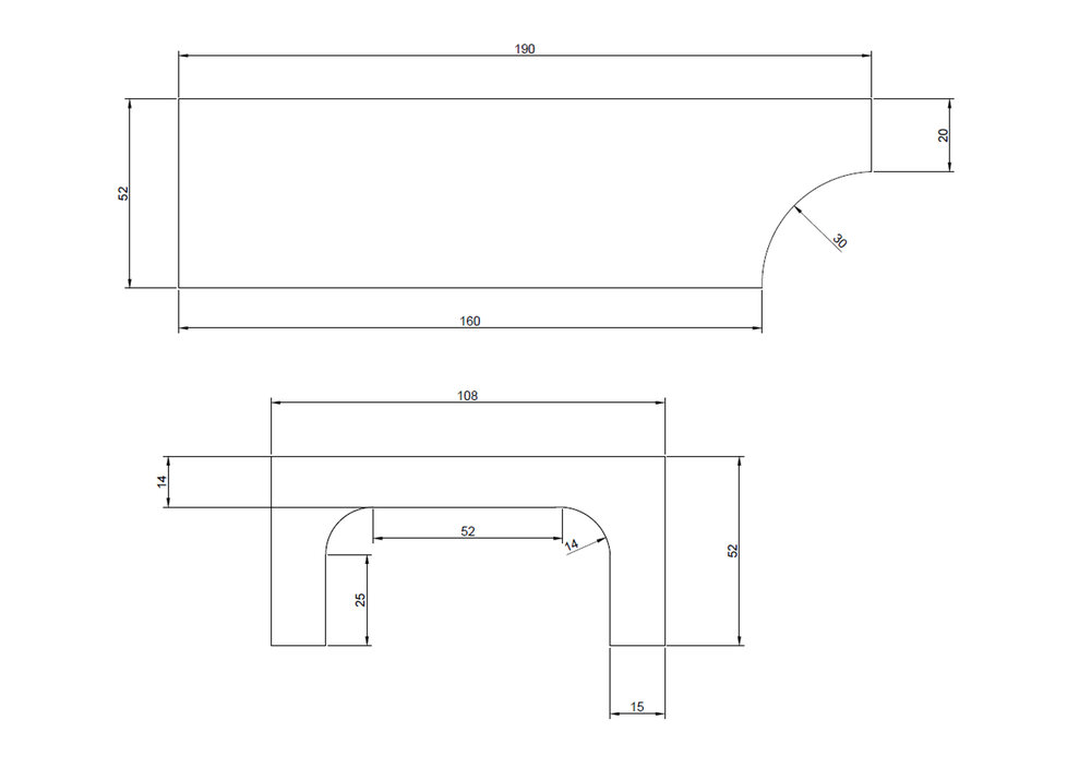
Да, выкладывал (вот начиная отсюда и здесь продолжение ). Сейчас восполню этот пробел, заодно еще и чертеж кирпича выложу (и самому проще будет найти, если понадобится еще).

 

Итак чертеж:

piq0.thumb.jpg.73c33d01d4f079842c6412a0bec14ee6.jpg

 

Кирпич (по длине не обрезал - на всю длину шамотного кирпича КРША-8):

attachment.php?attachmentid=538277&stc=1&d=1480000594

 

attachment.php?attachmentid=538278&stc=1&d=1480000594

 

Резал вначале кругами по камню, когда сточил два без особого успеха, купил дешевый алмазный и довольно быстро доделал все. Когда резал подливал воду.

 

В горелке выглядит так:

attachment.php?attachmentid=538279&stc=1&d=1480000594

580223729_IMG_20160118_165441456-().jpg.79493c69dfa9e2cda2a9efb8b5075e83.jpg

1925977399_IMG_20160118_165425124-().jpg.21940adc1e96518569c71bea418216bf.jpg

376480169_IMG_20160122_123719355-().jpg.34b9d906489513bf80f3434b0250162a.jpg

1177358610_IMG_20160116_112101239-().thumb.jpg.41d75ea5aa1e98334850c8523c3fa33d.jpg

Змінено користувачем sov1178
Убрал повторную информацию
Посилання на коментар
Поділитися на інших сайтах

Створіть акаунт або увійдіть у нього для коментування

Ви маєте бути користувачем, щоб залишити коментар

Створити акаунт

Зареєструйтеся для отримання акаунта. Це просто!

Зареєструвати акаунт

Увійти

Вже зареєстровані? Увійдіть тут.

Увійти зараз
×
×
  • Створити...