Перейти до публікації
Пошук в
  • Додатково...
Шукати результати, які містять...
Шукати результати в...

Дом из газоблока с мансардой, гаражом и погребом под ним.

Leesleer

Рекомендовані повідомлення

Подскажите, в чем недостатки этого проекта.

 

Планируется фундамент из ФБС 400мм с лентой внизу 600х300 и армопоясом 500х160.( еще раздумываю о монолитном)

Стены из газоблока 375мм + воздух 40мм + Облиц. кирпич 120мм

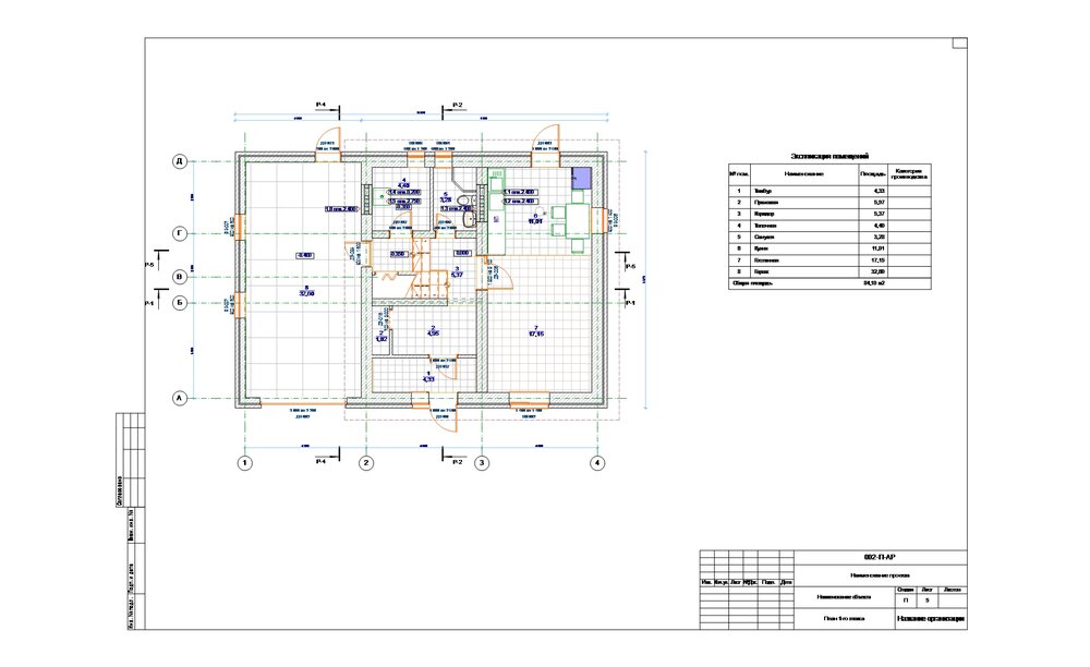
Перекрытие 1-го этажа из пустотных панелей, с монолитными участками (над коридором)

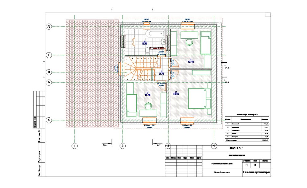
Перекрытие мансардного этажа деревянное

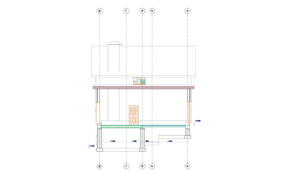
Крыша из металлочерепицы с уклоном 30градусов

В гараже стены планируются вместо 375мм, 200 мм газоблок.

Под гаражом погреб, перекрытый пустотными плитами.

 

Наружные размеры - 12,8м х 8,8м

 

Высота цоколя - 0,45м

 

Погреб - 14,1м2

Гараж - 32,6м2

Первый этаж - 51,5м2

Второй этаж - 50,5м2

 

Высота этажей - 2,65м

1852673144_1-.thumb.jpg.ead1bb9f988f8cfbd7b0a0f3bb88c9db.jpg

77683176_2-.thumb.jpg.53d4ae4aea02fe09a51b584332d32ef8.jpg

23544090_-11.thumb.jpg.643fe67d2c803a8e863cb3fb3617b15e.jpg

101357684_-22.thumb.jpg.7c91d66773c696f5cbc01746ee170708.jpg

1741408172_-44.thumb.jpg.1d2b3a192962d96c43dab00d6b97e1e6.jpg

1552931981_-55.thumb.jpg.f05014fd6c92c7bbde3650ccfd31810b.jpg

963619168_.thumb.jpg.0738e14764b4c4e48a3988b2b229cdf2.jpg

Посилання на коментар
Поділитися на інших сайтах

Недоліки. Порушено зонування. Санвузол, топкову і кухню (обслуговуючі приміщення) краще робити при вході - а житлові кімнати - в глибині будинку.
Посилання на коментар
Поділитися на інших сайтах

Недоліки. Порушено зонування. Санвузол, топкову і кухню (обслуговуючі приміщення) краще робити при вході - а житлові кімнати - в глибині будинку.

 

А на основі чого встановлено порядок зонування? Я вважаю набагато зручнішим ходити в сад з кухні, в топкову з гаража і щоб вікна з цих приміщень були на Північ... А ще в мене підведення води ззаду будинку, біля топкової... Так що вважаю міняти зонування для мене є недоцільним.

 

Та й вхід в будинок в мене з південної сторони...

Змінено користувачем Leesleer
Посилання на коментар
Поділитися на інших сайтах

Створіть акаунт або увійдіть у нього для коментування

Ви маєте бути користувачем, щоб залишити коментар

Створити акаунт

Зареєструйтеся для отримання акаунта. Це просто!

Зареєструвати акаунт

Увійти

Вже зареєстровані? Увійдіть тут.

Увійти зараз
×
×
  • Створити...