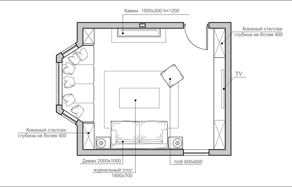
swork Опубліковано: 30 травня 2012 Поділитись Опубліковано: 30 травня 2012 (змінено) Вот набросал планировочку вашу , присмотритесь, это удачный вариант для вашей гостиной, если нельзя ничего сносить и переделывать капитально. P.S как вариант - телевизор можно расположить и над камином (на усмотрение хозяина ..=) Змінено 30 травня 2012 користувачем swork 1 Посилання на коментар Поділитися на інших сайтах More sharing options...
so-rec Опубліковано: 30 травня 2012 Автор Поділитись Опубліковано: 30 травня 2012 А в эркере это мягкий уголок? Насколько практично, т.к. нет доступа к окнам? Посилання на коментар Поділитися на інших сайтах More sharing options...
Ugushka Опубліковано: 10 червня 2012 Поділитись Опубліковано: 10 червня 2012 Чтобы не плодить клоны спрошу тут: а сколько стоит дизайн-проект гостинной, выполненный в Архикаде? Посилання на коментар Поділитися на інших сайтах More sharing options...
DVIJOK Опубліковано: 10 червня 2012 Поділитись Опубліковано: 10 червня 2012 Чтобы не плодить клоны спрошу тут: а сколько стоит дизайн-проект гостинной, выполненный в Архикаде? А почему именно в архикаде? Вам ведь нужен результат, не все ли равно в какой он программе создан? Да и потом, что за гостинная, сколько м2, в каком стиле и т.д? Посилання на коментар Поділитися на інших сайтах More sharing options...
swork Опубліковано: 11 червня 2012 Поділитись Опубліковано: 11 червня 2012 Что вас смущает с доступом ? Посилання на коментар Поділитися на інших сайтах More sharing options...
S-STUDIO Опубліковано: 11 червня 2012 Поділитись Опубліковано: 11 червня 2012 А почему именно в архикаде? Вам ведь нужен результат, не все ли равно в какой он программе создан? Да и потом, что за гостинная, сколько м2, в каком стиле и т.д? Мы работаем в Автокаде))) Посилання на коментар Поділитися на інших сайтах More sharing options...
Ugushka Опубліковано: 11 червня 2012 Поділитись Опубліковано: 11 червня 2012 А почему именно в архикаде? Вам ведь нужен результат, не все ли равно в какой он программе создан? Да и потом, что за гостинная, сколько м2, в каком стиле и т.д? Показалось, что в нем - дешевле, чем в 3ДС просто встречавшаяся мне на форуме цена в виде 20 баксов за метр... крайне смущает Подумалось, что можно сэкономить на рабочем инструменте)) Добавлено через 2 минуты Мы работаем в Автокаде))) Лазила по Вашем альбому... смотрела, как у людей системы отопления сделаны)))) НизачОт! ТЕма почти не раскрыта)))) Вообще, конечно, мастерские работы, вижно, что голову дизайнеры ломают часами...но.... диваны на кривых ножках с гобеленоподобными обивками... трудно понять, кто такое заказывает 1 Посилання на коментар Поділитися на інших сайтах More sharing options...
a-dmitriev Опубліковано: 13 червня 2012 Поділитись Опубліковано: 13 червня 2012 просто встречавшаяся мне на форуме цена в виде 20 баксов за метр... крайне смущает а цена на материалы, стоимость ремонтных и монтажных работ вас не смущает? Здесь диагноз очень простой - вам не нужен проект в любом виде, не тратьте свое время. ПС цен в 20дол/м2 уже нет и не будет больше, тем более за гостиную, все берут объект целиком, ваша комната - разве что студенту побаловаться и попрактиковаться за ваш счет. Добавлено через 2 минуты "диваны на кривых ножках"- это Вам Анжело Капеллини или Эго не угодили? думаю очень мало людей здесь знают что это и какую ценность в себе несут эти фабрики и их продукты Посилання на коментар Поділитися на інших сайтах More sharing options...
alkmena Опубліковано: 28 липня 2012 Поділитись Опубліковано: 28 липня 2012 Вам в любом приличном салоне сделают визуалку, но не 3Д макс конечно. Это же не проект кухни или гардеробной. Начните с дивана например, в модерне подобрать не так уж сложно модель. А там уже определитесь какая будет стеночка под плазму, журнальный столик и кресло - вот и вся ваша комната ) еще как вариант, можно посмотреть итальянские фабрики, там в каталогах всегда мебель в интерьере, может и идеи возникнут новые. Или для экономии времени полазить по мебельным итальянским сайтам. Посилання на коментар Поділитися на інших сайтах More sharing options...
Ugushka Опубліковано: 29 липня 2012 Поділитись Опубліковано: 29 липня 2012 а цена на материалы, стоимость ремонтных и монтажных работ вас не смущает? МЫ используем доступные нам по цене материлы. И делаем те работы, цены на которые нам кажутся завышенными, сами. ПС цен в 20дол/м2 уже нет и не будет больше, тем более за гостиную, все берут объект целиком, ваша комната - разве что студенту побаловаться и попрактиковаться за ваш счет. ОЧень рада, что Вы не правы. МЫ опятного нашли дизайнера с рекомендациями, с портфолио, которое нам понравилось за 10 баксов метр. В принципе, когда знаешь, что хочешь, остается найти человека, который нарисовал бы все это, потратив меньше рабочего дня. Посмотреть, подкорректировать и забрать. Все ранво никакой дизайнер не проникнет в тебя и не поймет, что ты не любитель пывлесборных слоников, открытых полочек, белых диванов, ворсистых ковров или бардовых с золотом обоевю И у тебя нет денег на камин за 35 ьтыс евро ЗАдавая стиль и условия уже делаешь бОльшую часть работы Посилання на коментар Поділитися на інших сайтах More sharing options...
Деревянщик Опубліковано: 30 липня 2012 Поділитись Опубліковано: 30 липня 2012 В принципе, когда знаешь, что хочешь, остается найти человека, который нарисовал бы все это, потратив меньше рабочего дня. Посмотреть, подкорректировать и забрать. Все ранво никакой дизайнер не проникнет в тебя и не поймет, что ты не любитель пывлесборных слоников, открытых полочек, белых диванов, ворсистых ковров или бардовых с золотом обоевю И у тебя нет денег на камин за 35 ьтыс евро ЗАдавая стиль и условия уже делаешь бОльшую часть работы Так чего сами не нарисуете за полдня. Возьмите "вуйку" с вокзала, пусть он хочет заработать 150 гр в день. Пол дня работы -75 гр. Нарисовал? Ах, он рисовать не умеет, говорит, что бы рисовать научится нужно лет пять минимум... Тогда сами возьмите программу З-д макс, например и в ней наваяйте за пол дня. Ах не умеете, а чтобы ее выучить нужно: 1. нормальный комп,; 2. Программу; 3. Умение в ней работать. Этого всего у Вас тоже я так понимаю нет Я, например, не стоматолог и не могу своим родним и друзьям зубы лечить за 100 гр. Не возьмусь и умничать не буду, потому что: 1. У меня нет оборудования; 2.У меня нет материалов; 3. У меня нет знаний. Поэтому я иду к зубному и делаю зуб за примерно 100 дол. единица, а не стою перед стоматологической клиникой с плакатом , что у них цены завышены. Не судите о том в чем не разбираетесь, а то такими своими высказываниями Вы унижаете профессиональные успехи и навыки других людей, вызывая ответную агрессию в свою сторону. 3 Посилання на коментар Поділитися на інших сайтах More sharing options...
alex.hohol Опубліковано: 2 серпня 2012 Поділитись Опубліковано: 2 серпня 2012 прочитал эту ветку и просто в шоке.Человек задал вопрос а ему в ответ ведро грязи.И это те котрые должны быть ИНТЕЛЛИГЕНЦИЕЙ общества , да что вы трогаете каменщиков или как вы говорите "взять на вокзале " эти люди воспитанее вас .Как не стыдно этому дмитриеву матерится; да какие вы дизайнеры.....Кому не нравится не пиши а зачем человеку грубить?Сидите без работы ну и сидите потому-что после таких слов к вам никто не придёт ( здесь на форуме один "спец" сланец продаёт,так с ним уже никто и говорить не хочет потому-что бред один.Так и вы...) 2 Посилання на коментар Поділитися на інших сайтах More sharing options...
Next Level Опубліковано: 2 серпня 2012 Поділитись Опубліковано: 2 серпня 2012 Вопросы? Один. Ткните меня носом в тему, где все бы были довольны и все смеялись, бо чуть ниже срочно нужен дизайнер, даже не представляю, чем там все закончится. Посилання на коментар Поділитися на інших сайтах More sharing options...
so-rec Опубліковано: 2 серпня 2012 Автор Поділитись Опубліковано: 2 серпня 2012 Человек пришел получить работу на шару. Когда ему назвали цену - слился. Цена невысокая, обычная среднерыночная. Я уже просто устал от этого "говнометания". Еще раз повторяю: получать ничего на шару я не приходил. Тендер не объявлял. Соответственно не никуда не сливался. Или как прикажите узнать какова стоимость данного объема работ? Из темы понятно, что вся проблема что мы говорим с вами на разных языках. И некоторые понимают это нормально, а вот другая половина видит в этом какой то подтекст, скрытый смысл, попытку оскорбить, или опрокинуть на деньги. Я задал простой вопрос и попросил совет - кого то он задел, кому то видимо что то напомнил из жизни. Честно - я уже сотню раз пожалел что создал эту тему, и впредь 10 раз подумаю, перед тем как что то спрашивать. Просто уровень культуры не позволяет платить за интеллектуальный труд. Телевизор, лед подсветку и многоуровневый потолок позволяет, а за проект нет. "Лучше вместо дизайна 10 пачек ламината купить" Понимать такой подход - понимаю. Уважать - нет. Вопросы? Макс ну вот чего вы определили уровень моей культуры, за что я готов платить, а за что нет? Из 1 поста? Из сотни? Я наверное как никто понимаю ценность интеллектуального труда, т.к сам имею культурное образование. А заглядывать в чужой карман, это минимум не красиво. ЗЫ: кстати вы не внимательно читали тему, про ламинат писал не я. И пачек с купленным ламинатом у меня нет. Так что, все это домыслы и клевета. Посилання на коментар Поділитися на інших сайтах More sharing options...
swork Опубліковано: 9 серпня 2012 Поділитись Опубліковано: 9 серпня 2012 (змінено) В принципе, когда знаешь, что хочешь, остается найти человека, который нарисовал бы все это, потратив меньше рабочего дня. Посмотреть, подкорректировать и забрать. МММ.. зря вы так. Меньше рабочего дня..как вы себе это представляете?! Что по вашему делает дизайнер или архитектор. Напишите как вы себе представляете его работу и обязанности -чего вы ожидаете от этого человека ??? ....и тогда поговорим более конструктивно... P.S... у нас ,видимо, интеллектуальный труд не считается вообще за труд, а этот интеллектуальный труд как раз 80% работы архитектора, остальные 20% это механическая работа ,направленная на но то чтобы воплотить этот интеллектуальный труд в ту форму,которая будет доступна заказчику ,то бишь начертить планировки и сделать визуализацию... получается все хотят платить только за ту часть(20%) которая осязаема -распечатанные планировки и визы...а кто оплатит те 80% РЕАЛЬНОЙ РАБОТЫ которую проделывает архитектор, придумывая и разрабатывая то,ради чего собственно к нему и обратились.?! получается никто. А ведь по сути,если ничего не придумать,то что же тогда ,я вас спрашиваю ,можно начертить и завизить...... .....ОТВЕТ ничего....потому что проект рождается в голове у архитектора и это большой труд все разработать грамотно учесть все нюансы так ,чтоб и польза и прочность и красота присутствовала. А вычертить это уже дело десятое ,да этому тоже надо учится, но это чисто механическая работа, обезьяну тоже можно научить выполнять механические действия, а вот создать что то действительно красивое- вот тут нужно творчески мыслить, а это уже дано не каждому..(не каждого абитуриента, окончившего архитектуру можно назвать архитектором, давайте не путать таких специалистов с действительно грамотными людьми...их мало но они есть,к счастью) ну так давайте не будем обижать друг друга и будем уважать труд друг друга. Добавлено через 34 минуты Это одна часть работы - творческая.Но есть еще и другая - воплотить все что спроектировано и придумано в жизнь..перенести с бумаги в реальность- это уже отдельная история.не каждый творческий человек может это сделать,да - придумать может ,а вот воплотить нет.Так вот высококлассный архитектор должен уметь все и придумать и начертить и воплотить...и Вы хотите сказать что меньше рабочего дня и за 80 грн метр действительно Грамотный специалист будет выполнять эту работу??? -НЕТ конечно же. За эти деньги берутся делать либо недоспецы ли бо студенты,но за результат тогда трудно ручатся ..вот и получаем недовольных заказчиков. Это палка о двух концах. Поэтому еще раз отвечая на ваше высказывание - да меньше чем за день и за 10$ сделать можно, но будьте готовы ,что в 90% случаях результат может не соответствовать ожиданиям.Хотя может вам повезет и вы натолкнетесь на талантливого молодого человека,который только начинает карьеру, я тоже делал по 10 и по 5 метр...просто потому ,что другой возможности не было...любой специалист со временем вырастает и соответственно берет больше...Хотя можно натолкнутся и на человека который возьмет много,а сделает как студент второкурсник...Ну тут надо выбирать тщательнее никто не застрахован это в любой профессии есть такие люди.Примите мои извинения за таких людей в нашей области,мы за них не в ответе.=) Змінено 9 серпня 2012 користувачем swork Посилання на коментар Поділитися на інших сайтах More sharing options...
Рекомендовані повідомлення
Створіть акаунт або увійдіть у нього для коментування
Ви маєте бути користувачем, щоб залишити коментар
Створити акаунт
Зареєструйтеся для отримання акаунта. Це просто!
Зареєструвати акаунтУвійти
Вже зареєстровані? Увійдіть тут.
Увійти зараз