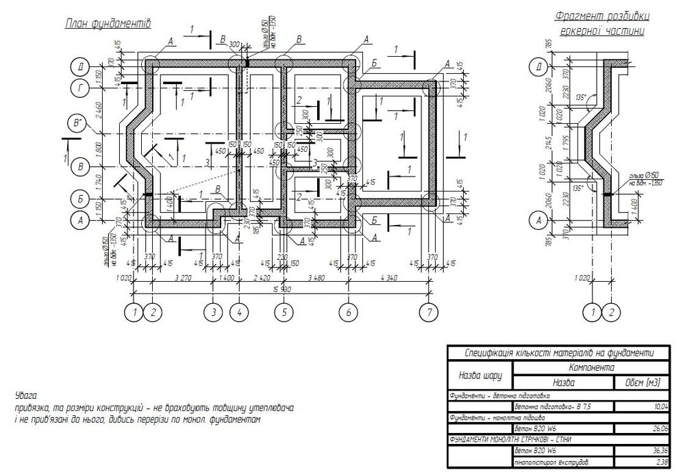
Prosto Puh Опубліковано: 23 травня 2012 Поділитись Опубліковано: 23 травня 2012 Всем добрый день! Нужна помощь зала, т.к. зашел в тупик. Есть участок с небольшим наклоном (порядка 0.6 метра), который хотелось бы сохранить. Сделана геология участка, получены основные показатели по ней. Несущая способность имеет хорошие значения. Но также получен показатель деформации, который в разных скважинах отличается друг от друга в два раза. Вверху одни показатели, внизу другие. По строительству: планируется постройка мансардного дома без подвала. Материал дома: газобетон, железобетонные плиты перекрытия, крыша металлочерепица или битумка. Теперь перейдем к фундаменту, архитектор/конструктор подготовил конструктивную схему, в результате я имею: - пятку шириной 1.2м по всему периметру, под внутренними стенами в районе - 0.9м; - толщину фундамента 0.37м; - глубину залегания 1.2. Основной довод необходимости такого фундамента - это показатели деформации. Все отлично, но смущает следующее: 1) В моей местности никто подобных фундаментов не строил, максимум заливают ширину пятки 0.6; 2) Когда я показывал схему фундамента прорабам или строителям, один из первых вопросов - "Вы строите 5 этажей"? 3) Ну и конечно цена, я как бы не очень готов зарыть в землю порядка 16-20т у.е. Это разброс по ценам, чтобы сделать такой фундамент. Хотелось бы получить советы и мнение специалистов о реальной необходимости постройки такого фундамента.ІГпасп с.Малютянка-Model.pdfВідомість с.Малютянка.xlsІГпасп с.Малютянка-Model2.pdfІГпасп с.Малютянка-Model5.pdfІГпасп с.Малютянка-Model7.pdf Посилання на коментар Поділитися на інших сайтах More sharing options...
ИльЯ С Опубліковано: 24 травня 2012 Поділитись Опубліковано: 24 травня 2012 Очень интересный вопрос. Вы получается не особо доверяете конструктору. Для того чтобы подвердить о принятых размерах фундаментов надо не на словах это описывать ,а делать такой же самый расчет . С практической точки зренмя что где то рядом строили маньшие по рашмеру фундаменты это не показатель. Фундаменты индивидуадьны. Мой совет пускай еще кто то выполнит расчет фундаментов.в таком случае отпадут Ваши сомнения. Наименование слоя грунта не видно в описание. Суглинок, глина или еще что то. Посилання на коментар Поділитися на інших сайтах More sharing options...
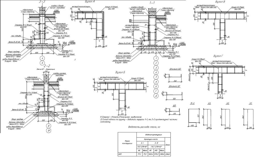
trianom Опубліковано: 24 травня 2012 Поділитись Опубліковано: 24 травня 2012 Судя по всему конструктор выполнял расчет, ориентируясь на подстилающий слой с малым модулем деформации (ИГЭ-4), - и это правильно, так что вполне могла получиться ширина подошвы, указанная в проекте. ИМХО, перебор по армированию - достаточно сетки по подошве и армопояс по верху из 4d10(12) AIII, объединенных хомутами из d6 AI с шагом 300 мм (только с обязательной анкеровкой продольной арматуры в 50d (если без сварки) на углах и примыканиях внутренних стен к наружным, а то в проекте с анкеровкой не совсем ясно). 2 Посилання на коментар Поділитися на інших сайтах More sharing options...
Prosto Puh Опубліковано: 24 травня 2012 Автор Поділитись Опубліковано: 24 травня 2012 Очень интересный вопрос. Вы получается не особо доверяете конструктору. Для того чтобы подвердить о принятых размерах фундаментов надо не на словах это описывать ,а делать такой же самый расчет . С практической точки зренмя что где то рядом строили маньшие по рашмеру фундаменты это не показатель. Фундаменты индивидуадьны. Мой совет пускай еще кто то выполнит расчет фундаментов.в таком случае отпадут Ваши сомнения. Наименование слоя грунта не видно в описание. Суглинок, глина или еще что то. Дело не в доверии, а в сомнениях, которые зародились. Когда вам 20 человек говорит одно и тоже, вы бы тоже засомневались. Форум и нужен для того, чтобы помочь развеять эти сомнения или направить на другое альтернативное решение. Про индивидуальность фундаментов я понимаю, но когда все вокруг заливают ленту без пятки, строят дома из газобетона, накрывают их плитами перекрытия и т.д., возникает соответствующий вопрос по своему фундаменту - а нужно ли? Не слишком ли большой запас прочности заложен? Грунты описаны в приложениях: В верхней точке фундамент будет опираться на песок, в нижней точке на супесь. Грунтовых вод нет, есть небольшая пластичность, но по словам геологов она больше связана с кол-вом дождей, которые выпали в тот период. Посилання на коментар Поділитися на інших сайтах More sharing options...
Дощ Опубліковано: 24 травня 2012 Поділитись Опубліковано: 24 травня 2012 Форум и нужен для того, чтобы помочь развеять эти сомнения или направить на другое альтернативное решение. Форум потрібен щоб посіяти паніку в голові і заплутати ще більше Сьогодні бачив рекламу мілки: "запитай в дідуся, а не в інтернеті" - їй богу, слушна порада Посилання на коментар Поділитися на інших сайтах More sharing options...
Михалів Опубліковано: 24 травня 2012 Поділитись Опубліковано: 24 травня 2012 А може кращє в таких умовах плиту залити? Посилання на коментар Поділитися на інших сайтах More sharing options...
Prosto Puh Опубліковано: 24 травня 2012 Автор Поділитись Опубліковано: 24 травня 2012 Форум потрібен щоб посіяти паніку в голові і заплутати ще більше Сьогодні бачив рекламу мілки: "запитай в дідуся, а не в інтернеті" - їй богу, слушна порада Паника уже в голове :D Думаю, что больше уже не будет. Добавлено через 42 секунды А може кращє в таких умовах плиту залити? Может и так, но с учетом уклона участка, это может быть не самое лучшее решение. Посилання на коментар Поділитися на інших сайтах More sharing options...
Михалів Опубліковано: 26 травня 2012 Поділитись Опубліковано: 26 травня 2012 (змінено) В мене теж перепад до метра, був викопаний котлован і засипаний піском. На сторону города виходять вікна спальні та ванної, плануємо зробити східцями землю і засадити квітами.., а з дороги будова виглядає як з цоколем. Земля супесь, залита плита осінню 2011(будував сам, досвіду 0), зиму простояла накрита плівкою, перепад по плиті 3 см(місцями), на даний час зроблені стіни 1 поверху (в мене мансардна хата 9 на 12м) з Аероку 500 мм Д400, плита - 15 м3 бетону. У нас схожі будови - вони легкі, я прораховував, якби я будував з цегли, то будинок важив би в три рази більше. Змінено 26 травня 2012 користувачем Михалів Посилання на коментар Поділитися на інших сайтах More sharing options...
ИльЯ С Опубліковано: 27 травня 2012 Поділитись Опубліковано: 27 травня 2012 Дело не в доверии, а в сомнениях, которые зародились. Когда вам 20 человек говорит одно и тоже, вы бы тоже засомневались. Форум и нужен для того, чтобы помочь развеять эти сомнения или направить на другое альтернативное решение. Про индивидуальность фундаментов я понимаю, но когда все вокруг заливают ленту без пятки, строят дома из газобетона, накрывают их плитами перекрытия и т.д., возникает соответствующий вопрос по своему фундаменту - а нужно ли? Не слишком ли большой запас прочности заложен? Грунты описаны в приложениях: В верхней точке фундамент будет опираться на песок, в нижней точке на супесь. Грунтовых вод нет, есть небольшая пластичность, но по словам геологов она больше связана с кол-вом дождей, которые выпали в тот период. Вот и направление . Снип на Основания и фундаменты.,Железобетонные конструкии. Нагрузки и воздействия. Такие вопросы выполняет инженер конструктор . дабавлю с опытом . А совет может дать любой человек который не берет ответстенность . Расчет фундаментов это не 10 минут бесплатной ответстсвеной работы . Если возникают сомнения то считают фундаменты несколько раз с перепроверкой. Посилання на коментар Поділитися на інших сайтах More sharing options...
Prosto Puh Опубліковано: 27 травня 2012 Автор Поділитись Опубліковано: 27 травня 2012 В мене теж перепад до метра, був викопаний котлован і засипаний піском. На сторону города виходять вікна спальні та ванної, плануємо зробити східцями землю і засадити квітами.., а з дороги будова виглядає як з цоколем. Земля супесь, залита плита осінню 2011(будував сам, досвіду 0), зиму простояла накрита плівкою, перепад по плиті 3 см(місцями), на даний час зроблені стіни 1 поверху (в мене мансардна хата 9 на 12м) з Аероку 500 мм Д400, плита - 15 м3 бетону. У нас схожі будови - вони легкі, я прораховував, якби я будував з цегли, то будинок важив би в три рази більше. А какая глубина у Вашей плиты? Сколько пошло арматуры? Добавлено через 14 минут Вот и направление . Снип на Основания и фундаменты.,Железобетонные конструкии. Нагрузки и воздействия. Такие вопросы выполняет инженер конструктор . дабавлю с опытом . А совет может дать любой человек который не берет ответстенность . Расчет фундаментов это не 10 минут бесплатной ответстсвеной работы . Если возникают сомнения то считают фундаменты несколько раз с перепроверкой. Поймите я не специалист, целью этой ветки, наверное, было больше получить мнение экспертов: какие-то вопросы именно по этой конструкции или этому решению с учетом моих грунтов. Посилання на коментар Поділитися на інших сайтах More sharing options...
Михалів Опубліковано: 27 травня 2012 Поділитись Опубліковано: 27 травня 2012 А какая глубина у Вашей плиты? Сколько пошло арматуры? Арматури пішло 1,5 - 2 тони ( тре піднімати записи, щоб точно сказати) по ребрам 7 прутів 12 діаметру (4 внизу 3 вверху), підлога 8 діаметр, очко - 20, 25 см. ребра 30 глибина 45 ширина, підлога 10 см. Будуюсь за планом, архітектора заставив рахувати!!!!!! Піском виводите рівень і на ньому ставите плиту. Посилання на коментар Поділитися на інших сайтах More sharing options...
Рекомендовані повідомлення
Створіть акаунт або увійдіть у нього для коментування
Ви маєте бути користувачем, щоб залишити коментар
Створити акаунт
Зареєструйтеся для отримання акаунта. Це просто!
Зареєструвати акаунтУвійти
Вже зареєстровані? Увійдіть тут.
Увійти зараз