NIIK Опубліковано: 24 травня 2012 Поділитись Опубліковано: 24 травня 2012 Доброго дня, уважаемые форумчане! Вот и мы решили пополнить ряды домовладельцев В связи с этим, просим всяческих советов и замечаний по эскизному проекту нашего будущего дома! Исходные данные: 1. Участок 16м*120м (2 акта по 10 соток, выкладываю план того, который под обсл. дома) в городе, ровный, вход с юга, справа и слева соседи, по задней границе территория садстанции (т.е. ничего). Из "девайсов" достался колодец, яма под фундамент 5*10 (ненужная), штук 30 молодых плодовых деревьев. Газ, центр. вода, эл/эн есть. Канальи нет. 2. Дом для постоянного проживания 3-х человек (я, муж и сын 14 лет). Гости бывают частенько, родственников много, но все в одном городе и переночевать остаются очень редко. 3. Ближе к фасадной части хотим расположить навес для 3-х машин и небольшой гостевой домик ( вдруг придется родителей забрать). Сауну планируем за основным домом. 4. Под частью дома планируем подвал для газ. котла, морозильной камеры, консервации и техобслуживания коммуникаций. 5. Кухню, столовую и гостинную хотим оформить как студию т.е. с минимумом перегородок. Ну и, собственно, что нам "наваял" архитектор (эскиз предварительный, размеры не проставлял-ждет утверждения- и вперед). Сори, за кач-во картинок, неопытные еще;) Для нас это первый опыт планировки дома, поэтому просим советов и критики более опытных форумчан Посилання на коментар Поділитися на інших сайтах More sharing options...
Artyomovets Опубліковано: 24 травня 2012 Поділитись Опубліковано: 24 травня 2012 мне кажется, что второй свет в вашем случае - нерациональное использование площади. я бы еще одну спальню там придумал. 1 Посилання на коментар Поділитися на інших сайтах More sharing options...
NIIK Опубліковано: 24 травня 2012 Автор Поділитись Опубліковано: 24 травня 2012 Спасибо за совет! Мы тоже сомневались по этому поводу, но решили, что "второму свету" быть, т.к.: - нас всего трое (пополнения не будет, для сынули остается квартира); - просто нравится, когда много света и воздуха. Ну как-то так. Посилання на коментар Поділитися на інших сайтах More sharing options...
Artyomovets Опубліковано: 24 травня 2012 Поділитись Опубліковано: 24 травня 2012 - нас всего трое (пополнения не будет, для сынули остается квартира); а если он в гости заявится? и не сам 1 Посилання на коментар Поділитися на інших сайтах More sharing options...
NIIK Опубліковано: 24 травня 2012 Автор Поділитись Опубліковано: 24 травня 2012 А на первом этаже есть комната с кодовым названием "кабинет", милости просим;) Посилання на коментар Поділитися на інших сайтах More sharing options...
seyvalter Опубліковано: 24 травня 2012 Поділитись Опубліковано: 24 травня 2012 Яб кабінет і кухню місцями поміняв - щоб кухня опинилась через стіну від сан.вузла - простіше з комунікаціями і вентканалами. Проект - справа смаку - як на мене -розбазарювання площі, вбило друге світло площею під 40 квадратів на другому поверсі - якщо вам ця площа не потрібна - може варто підшукати не такий великий будинок? Я розумію - може бажаєте високі потолкі у залі - у мене самого 4 метри в вітальні - але друге світло на весь зал... Залежно від продуманості інтер"єру і виконання (і фінансування!!!) це буде або "ВАУ" або "НЕЗНАЛИ КУДИ ГРОШІ ВСУНУТИ".... Посилання на коментар Поділитися на інших сайтах More sharing options...
NIIK Опубліковано: 24 травня 2012 Автор Поділитись Опубліковано: 24 травня 2012 Яб кабінет і кухню місцями поміняв - щоб кухня опинилась через стіну від сан.вузла - простіше з комунікаціями і вентканалами. Проект - справа смаку - як на мене -розбазарювання площі, вбило друге світло площею під 40 квадратів на другому поверсі - якщо вам ця площа не потрібна - може варто підшукати не такий великий будинок? Я розумію - може бажаєте високі потолкі у залі - у мене самого 4 метри в вітальні - але друге світло на весь зал... Залежно від продуманості інтер"єру і виконання (і фінансування!!!) це буде або "ВАУ" або "НЕЗНАЛИ КУДИ ГРОШІ ВСУНУТИ".... Яб кабінет і кухню місцями поміняв - щоб кухня опинилась через стіну від сан.вузла - простіше з комунікаціями і вентканалами. С коммуникациями, конечно, проще, а вот с подачей еды в столовую...? Я себе представляла примерно такую концепцию: Посилання на коментар Поділитися на інших сайтах More sharing options...
Dozdev Опубліковано: 24 травня 2012 Поділитись Опубліковано: 24 травня 2012 (змінено) 1. Имхо проект не для узкого участка. местными строительными нормами определяется расстояние между строениями. При ширине участка в 16 метров желательно подобрать проект с шириной дома 10, это реально. Иначе Вам придется официально договариваться с соседями, что они не возражают против строительства в 1.5 м от границы участка. (при соблюдении пожарных разрывов между зданиями существующими зданиями и будущим Вашим) А потом утверждать это в архитектуре и местных органах. но это все мелочи по сравнению с №2 2. Все жилые комнаты выходят окнами на север?! а гостиная с окнами высотой в два этажа на юг и на запад!? неужели имея 2 участка в центре города, и возможность построить второй свет на треть дома и потом отапливать 240 кубометров гостиной - Вам приходится экономить на архитекторе или на покупке подходящего типового проекта? :D Змінено 25 травня 2012 користувачем Dozdev 1 Посилання на коментар Поділитися на інших сайтах More sharing options...
Dozdev Опубліковано: 25 травня 2012 Поділитись Опубліковано: 25 травня 2012 собственно, что нам "наваял" архитектор судя по грубейшим ошибкам и ужасному качеству графических материалов Вам нужно искать нормального специалиста. удовлетворите, пжст, мое любопытство, что это за "архитектор" у Вас? студент первого курса? на другие предположения у меня не хватает фантазии 1 Посилання на коментар Поділитися на інших сайтах More sharing options...
seyvalter Опубліковано: 25 травня 2012 Поділитись Опубліковано: 25 травня 2012 С коммуникациями, конечно, проще, а вот с подачей еды в столовую...? Я себе представляла примерно такую концепцию: Ну-ну. Подібні кухні розраховані на приготування напівфабрикатів в мікрохвильовці. Розкажете про свої враження після того як будете там рибу жарити або котлети пригорять або просто олія неякісна попада.... Просто бачу цю картину - повна вітальня смогу і білі шкіряні дивани просмерджені рибою.... Якщо Ви вважаєте що витяжка втягне весь дим і запах - значить у вас ніколи вареники не пригорали :D Або тіж гості - люди сидять за столом і з цікавістю спостерігають як Ви суматошно бігаєте у них за спиною - товчете картоплю і нарізаєте ковбасу - а під кінець вечора - панорама кухні-вітальні "облагороджується" ще й купою брудного посуду.... Воля ваша - та кухня - це ОБСЛУГОВУЮЧЕ приміщення - все що там відбувається - має відбуватись за зачиненими дверима. ИМХО Ойвей, так це вам так АРХІТЕКТОР робив? я думав - самі бавились. Міняйте спеца аж бігом! Якщо він Вам наваяв кухню без вентканалів - то це клінічний випадок. 1 Посилання на коментар Поділитися на інших сайтах More sharing options...
Artyomovets Опубліковано: 25 травня 2012 Поділитись Опубліковано: 25 травня 2012 Воля ваша - та кухня - це ОБСЛУГОВУЮЧЕ приміщення - все що там відбувається - має відбуватись за зачиненими дверима. ИМХО вариант: широкие раздвижные двери. надо - закрыл и пожарил котлетки. надо - открыл 1 Посилання на коментар Поділитися на інших сайтах More sharing options...
seyvalter Опубліковано: 25 травня 2012 Поділитись Опубліковано: 25 травня 2012 Я б ратував всетаки за вхід на кухню через коридор, в важких випадках просто двері не врятують. Для роздумів: приміщення в яке виходять двері безпосередньо з приміщщення обладнаного газовими приборами НЕ МОЖЕ БУТИ ЖИТЛОВИМ - навіть якщо це вітальня. Посилання на коментар Поділитися на інших сайтах More sharing options...
Dozdev Опубліковано: 25 травня 2012 Поділитись Опубліковано: 25 травня 2012 Просто бачу цю картину - повна вітальня смогу і білі шкіряні дивани просмерджені рибою позволю себе не согласиться. тут очень много зависит от культуры еды, скажем так если мойву жарить, то и двери не помогут и коридор тоже. а я например люблю когда жена готовит и пахнет едой, замечательно! настоящий дом - в котором пахнет едой поскольку в доме будет жить не 20 гастрабайтеров, а маленькая семья, то соответственно, и готовить вряд ли будут много. зато гостей принимать удобно. В общем, подобное планировочное решение - исключительно на хозяевах. В крайнем случае в проекте можно предусмотреть возможность устройства перегородки между кухней и гостиной - на случай перепланировки при продаже дома или если изменится состав семьи. но насчет газа замечание верное, электродуховка предпочтительнее в такой ситуации + мощная вытяжка + можно сделать два вытяжных канала (как в гаражах) с нижним и верхним забором воздуха (на случай пригоревших вареников ) 1 Посилання на коментар Поділитися на інших сайтах More sharing options...
NIIK Опубліковано: 25 травня 2012 Автор Поділитись Опубліковано: 25 травня 2012 неужели имея 2 участка в центре города, и возможность построить второй свет на треть дома и потом отапливать 240 кубометров гостиной - Вам приходится экономить на архитекторе или на покупке подходящего типового проекта? Ну, "города" - это сильно сказано, скорее городишко, называется Мелитополь а славится только черешней. А вот архитекторами не славится, или может Вы кого знаете и посоветуете?( без иронии). Типовых проектов пересмотрели гору, но подходящего не нашли, поэтому и обратились к архитектору? за инд. проектом и экономить на его услугах даже в мыслях не было. Оценить его, как специалиста- нам тяжело, т.к., повторю,- это первый наш опыт. Сомнения, конечно, есть, поэтому и выложили на форум. Помогайте советами! А главный вопрос: где найти ХОРОШЕГО архитектора и как узнать, что он ХОРОШИЙ? Посилання на коментар Поділитися на інших сайтах More sharing options...
NIIK Опубліковано: 25 травня 2012 Автор Поділитись Опубліковано: 25 травня 2012 Спасибо за поддержку! Мы с Вами единомышленники По поводу открытой кухни: имеем 8-летний опыт проживания в квартире, где кухня отделена от гостинной большим арочным проемом и барной стойкой - очень удобно!!! А вареники у меня не пригорают Посилання на коментар Поділитися на інших сайтах More sharing options...
NIIK Опубліковано: 25 травня 2012 Автор Поділитись Опубліковано: 25 травня 2012 А птицу как нравится Посилання на коментар Поділитися на інших сайтах More sharing options...
seyvalter Опубліковано: 25 травня 2012 Поділитись Опубліковано: 25 травня 2012 А главный вопрос: где найти ХОРОШЕГО архитектора и как узнать, что он ХОРОШИЙ? продивіться альбоми архітекторів що працюють на форумі - і відчуйте різницю. Не обов"язково шукати місцевого архітектора - інтернет великий, я сам наприклад теріторіально знаходжусь в Рівному - а половина моїх робіт йде на Київ, і ніяких проблем з цим немає. Головне аби толковий був і з ліцензією на всю територію України. ПиСи. - про вареники - я просто люблю їх піджарювати до брондзового кольору - а тут вже без диму ну ніяк... 1 Посилання на коментар Поділитися на інших сайтах More sharing options...
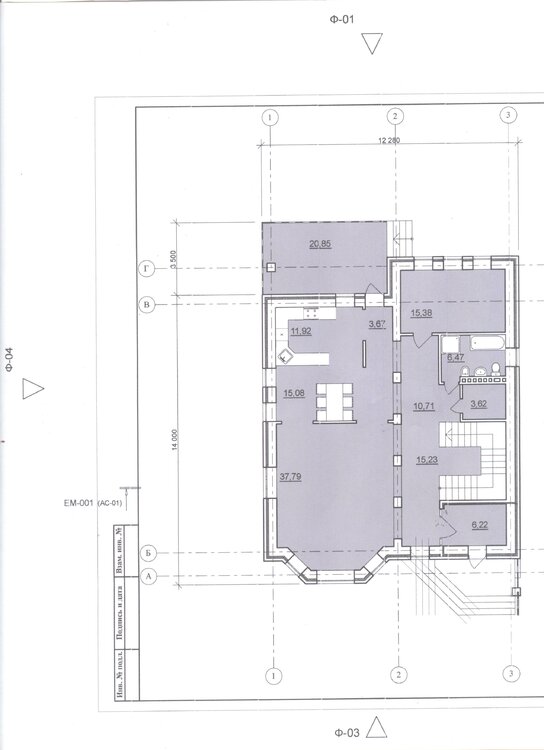
NIIK Опубліковано: 25 травня 2012 Автор Поділитись Опубліковано: 25 травня 2012 Вот, выложу новые предварительные планы с размерами, выданные сегодня архитектором ( на студента не похож, работал в архитектуре, сейчас фирма). Архитекторы, посмотрите, плиз, неужели все так "жахливо" или все-таки "жить можно":( Посилання на коментар Поділитися на інших сайтах More sharing options...
NIIK Опубліковано: 25 травня 2012 Автор Поділитись Опубліковано: 25 травня 2012 Забыла прикрепить... Посилання на коментар Поділитися на інших сайтах More sharing options...
seyvalter Опубліковано: 25 травня 2012 Поділитись Опубліковано: 25 травня 2012 Жити можна і в землянці, а от чи варто? Особисто мене цікавлять кілька питань: 1. де вентканали кухні? йому що - норми не писані? 2, де буде котел стояти? 3, нахріна такий комин в районі сан.вузла? на два туалета 8 венканалів - якось дивно. 4, як буде кластись перекриття в районі сходової клітки? Все інше - суто справа смаку, як на мене - бездарна втрата площі - але може це не його вина - може ВАМ так подобається.... 2 Посилання на коментар Поділитися на інших сайтах More sharing options...
Dozdev Опубліковано: 25 травня 2012 Поділитись Опубліковано: 25 травня 2012 "жить нельзя" Все жилые комнаты выходят на север. если не студент, значит ему глубоко побоку Ваш дом.. хотя проф должен такие вещи машинально делать правильно, даже если делает проект на скорую руку. данная "ошибка" - достаточное основание, чтобы прекратить работать с таким проектировщиком. + никаких попыток выдать более менее рациональную планировку (соотношение жилой и общей площади) как определить хороший или нет? выкладывайте проект на форум - тут критика будет жесткая, но по делу. Я вот собственный проект для себя боюсь выкладывать, вдруг раскритикуют я бы советовал местного архитектора только по трем причинам - лучше знает местные условия (строители, традиции, климат и тд), может приехать на участок посмотреть все в натуре перед проектированием, и приезжать потом вести архнадзор на стройке (полезно для контроля строителей) 1 Посилання на коментар Поділитися на інших сайтах More sharing options...
NIIK Опубліковано: 25 травня 2012 Автор Поділитись Опубліковано: 25 травня 2012 seyvalter, 1. Вентканал, судя по фасаду, есть (справа труба). Почему нет на плане- ненаю... 2. Котел-в полуподвале. 3. Ненаю совсем, может для котла, который будет под с/у? 4. Тут он не виноватый, это мы его снасильничали (он долго сопротивлялся);) Посилання на коментар Поділитися на інших сайтах More sharing options...
Artyomovets Опубліковано: 25 травня 2012 Поділитись Опубліковано: 25 травня 2012 1. Вентканал, судя по фасаду, есть (справа труба). Почему нет на плане- ненаю... по внешней стене? нехорошо это как-то... Посилання на коментар Поділитися на інших сайтах More sharing options...
seyvalter Опубліковано: 25 травня 2012 Поділитись Опубліковано: 25 травня 2012 Снасільнічали спеціаліста? заставили намалювати перекриття підвішане в повітрі? дивно що піддався - коли воно впаде вам на голови - з нього шкуру спустять.... навіть якщо знасильничали - він повинен був ВИРІШИТИ це місце а не тупо повестись на "хотелку" людей які втому не тямлять.... Викладайте полуподвал теж - якщо там котельна - то це важливо! Питання на засипку - ви усвідомлюєте що вікна еркера - ті що на другому поверсі - мити прийдеться кожен раз з здоровенної драбини (якщо не з люлькі) ? + штори шити на заказ? 1 Посилання на коментар Поділитися на інших сайтах More sharing options...
Dozdev Опубліковано: 25 травня 2012 Поділитись Опубліковано: 25 травня 2012 Двойной свет в гостиной - не единственный способ устроить большое высокое и светлое помещение - можно выполнить полы второго этажа в разных уровнях ( в части здание, где расположены кухня, санузел, кабинет-гостевая) сделать высоту потолка 2,5-2,7м. а в гостиной - 3,5-4 в результате и комната будет пропорциональная и гигантских окон не будет, как в холле областной поликлиники))) Посилання на коментар Поділитися на інших сайтах More sharing options...
Рекомендовані повідомлення
Створіть акаунт або увійдіть у нього для коментування
Ви маєте бути користувачем, щоб залишити коментар
Створити акаунт
Зареєструйтеся для отримання акаунта. Це просто!
Зареєструвати акаунтУвійти
Вже зареєстровані? Увійдіть тут.
Увійти зараз