АлександрБ. Опубліковано: 24 травня 2012 Поділитись Опубліковано: 24 травня 2012 Просьба дать ссылку на документ / -ы, регламентирующие устройство системы уравнивания потенциалов для частного дома. В частности, интересуют вопросы: 1. Это лицензированные роботы (как молниезащита, например) или нет ? Возможны ли самостоятельные работы? 2. Нормируются ли: - сечения соединительных проводников, шин, - площади контакта проводника с элементами строительных конструкций и инженерных коммуникаций (трубы, арматурные выпуски, канализационные и водопроводные ввводы и выпуски). - требования к материалам и комплектующим. Это по теории. Ну и пару строчек о реалиях, как оно бывает в жизни. (Только OBO Betterman, или можно сделать из подручных материалов, качественно, разумеется ?) Спасибо. Посилання на коментар Поділитися на інших сайтах More sharing options...
АлександрБ. Опубліковано: 25 травня 2012 Автор Поділитись Опубліковано: 25 травня 2012 Ладно сантехнков сегодня на форуме нет - у них гидрострелка, ну а электрики чего молчат ? Посилання на коментар Поділитися на інших сайтах More sharing options...
Сугор Опубліковано: 25 травня 2012 Поділитись Опубліковано: 25 травня 2012 АлександрБ., а что Вы хотите уравнивать? Сейчас, обычно, все коммуникации выполняются из пласмассы... Если у Вас в ванной будет присутствовать металическая ванная (душевой поддон) и (или) водопроводные трубы будут металлическими, то их необходимо присоединить к системе уравниванивания потенциалов. Посилання на коментар Поділитися на інших сайтах More sharing options...
sanykrimea Опубліковано: 25 травня 2012 Поділитись Опубліковано: 25 травня 2012 Просьба дать ссылку на документ / -ы, регламентирующие устройство системы уравнивания потенциалов для частного дома. Основной документ: ДБН В.2.5-27-2006 "Захисні заходи електробезпеки в електроустановках будинків і споруд 2.4 Заходи захисту у разі непрямого дотику в електроустановках, в яких не застосовані системи БННН, ЗННН і ФННН ... 2.4.1.9 У кожному будинку (споруді) повинна бути виконана основна система зрівнювання потенціалів, яку слід реалізувати шляхом приєднання до головної заземлювальної шини електроустановки таких провідних частин (див. також 4.1.4): - захисних провідників; - заземлювальних провідників пристроїв захисного, функціонального та блискавко-захисного заземлень, якщо такі пристрої в електроустановці будинку (споруди) передбачені (див. також 2.4.1.8); - металевих труб комунікацій, які входять у будинок (споруду) зовні: холодного і гарячого водопостачання, каналізації, опалення, газопостачання (у разі наявності ізолюючої вставки на вводі в будинок приєднання здійснюється після неї з боку будинку) тощо; - металевих частин каркаса будинку (споруди) і металевих конструкцій виробничого призначення; - металевих частин систем вентиляції і кондиціювання; - основних металевих частин для підсилення будівельних конструкцій таких, як сталева арматура залізобетону, якщо це можливо; - металевих покриттів (оболонок, екранів, броні) телекомунікаційних кабелів (при цьому слід прийняти до уваги вимоги власника зазначених кабелів або організації, яка обслуговує ці кабелі, щодо такого приєднання). Провідні частини, які входять у будинок (споруду) зовні, повинні бути з'єднані з провідниками основної системи зрівнювання потенціалів якомога ближче до точки вводу цих частин в будинок (споруду). Приклади виконання систем зрівнювання потенціалів і застосування захисних провідників наведені в додатку Д. (ссылка на изображение устарела) В частности, интересуют вопросы: 1. Это лицензированные роботы (как молниезащита, например) или нет ? Возможны ли самостоятельные работы? Лицензия на электромонтажные работы, как на монтаж электропроводки. Специальной - не требуется. 2. Нормируются ли: - сечения соединительных проводников, шин, 4.2.1 Захисні провідники для забезпечення автоматичного вимикання живлення Для виконання функцій провідників основної і додаткової систем зрівнювання потенціалів слід застосовувати, як правило, спеціально прокладені стаціонарні провідники. У місцях, де це зручно, допускається використання сполучення цих провідників з відкритими і сторонніми провідними частинами, які зазначені в 4.2.1.5 (див. також 4.2.1.8) і забезпечують електричну безперервність з'єднань. 4.2.3.2 Величини перерізу провідників основної системи зрівнювання потенціалів повинні бути не меншими значень мінімальних перерізів заземлювальних провідників, які наведені в 4.1.3.3. 4.2.3.3 Переріз провідника додаткової системи зрівнювання потенціалів повинен бути таким, щоб: а) у разі з'єднання двох відкритих провідних частин величина провідності цього провідника була не нижчою провідності того з приєднаних до відкритих провідних частин для забезпечення автоматичного вимикання живлення захисних провідників, який має меншу провідність; б) у разі з'єднання відкритої провідної частини і сторонньої провідної частини величина провідності цього провідника була не нижчою половини провідності приєднаного до відкритої провідної частини для забезпечення автоматичного вимикання живлення захисного провідника. Переріз провідників додаткової системи зрівнювання потенціалів у всіх випадках повинен бути не меншим величини, яка наведена в 4.2.1.4. Примітка. Вибрані таким чином перерізи провідників додаткової системи зрівнювання потенціалів, як правило, забезпечують виконання умови, що наведена в 2.4.1.28. .... 4.2.1.4 Переріз захисних провідників, які не входять до складу кабелів або проводів живлення і прокладені не в спільній огороджувальній конструкції з цими кабелями (проводами), за будь-яких обставин повинен бути не меншим 4 мм2 за міддю (за наявністю механічного захисту допускається 2,5 мм2) і 16 мм2 за алюмінієм. - площади контакта проводника с элементами строительных конструкций и инженерных коммуникаций (трубы, арматурные выпуски, канализационные и водопроводные ввводы и выпуски). Нет. АлександрБ., а что Вы хотите уравнивать? Сейчас, обычно, все коммуникации выполняются из пласмассы... Если у Вас в ванной будет присутствовать металическая ванная (душевой поддон) и (или) водопроводные трубы будут металлическими, то их необходимо присоединить к системе уравниванивания потенциалов. О. Балаболка вылезло)) Учите матчасть, дилетант. В частности что такое система уравнивания потенциалов и что такое дополнительная система уравнивания потенциалов. Ждём ответов на вопросы по Вашей брехне здесь - посты #32 и #49 1 Посилання на коментар Поділитися на інших сайтах More sharing options...
АлександрБ. Опубліковано: 25 травня 2012 Автор Поділитись Опубліковано: 25 травня 2012 Сообщение от АлександрБ. - площади контакта проводника с элементами строительных конструкций и инженерных коммуникаций (трубы, арматурные выпуски, канализационные и водопроводные ввводы и выпуски). Нет. ----------- Спасибо за подробный ответ. По площади контакта: Т.е, чисто юридически, будут равнозначно правильными - и шина 4х40, с пришлифованной поверхностью, и притянутая болтами М10, - и провод, привязанный "бантиком" к трубе так я понял ? Посилання на коментар Поділитися на інших сайтах More sharing options...
sanykrimea Опубліковано: 25 травня 2012 Поділитись Опубліковано: 25 травня 2012 Чисто физически - площадь контакта должна быть не менее сечения проводника. Как его не делай - всё равно обычно получается больше. По поводу бантика: ДБН В.2.5-27-2006 Захисні заходи електробезпеки в електроустановках будинків і споруд 4.3 З'єднання і приєднання провідників системи захисту від ураження електричним струмом 4.3.1 З'єднання провідників системи захисту від ураження електричним струмом (захисних провідників для забезпечення автоматичного вимикання живлення, заземлювальних провідників, заземлювачів та провідників систем зрівнювання потенціалів) між собою і приєднання їх до інших провідних частин (відкритих, сторонніх) повинні бути надійними, забезпечувати електричну безперервність кіл і відповідати вимогам ГОСТ 10434, ГОСТ 12.2.007.0 та інструкцій з монтажу електрообладнання. Як правило, з'єднання і приєднання повинні бути виконані зварюванням або застосуванням різьбових з'єднань (болтових, за допомогою муфт тощо). 4.3.2 З'єднання і приєднання повинні бути захищені від корозії і механічних пошкоджень. Для болтових з'єднань і приєднань повинні бути передбачені заходи проти ослаблення контакту. 4.3.3 Показники механічної міцності і термічної стійкості (допустима температура нагріву струмами замикань) з'єднань і приєднань повинні бути не гіршими відповідних показників провідників системи захисту від ураження електричним струмом, які забезпечуються виконанням вимог, що наведені в даних Нормах. 4.3.4 З'єднання і приєднання повинні бути доступними для огляду і виконання іспитів, за винятком таких: - залитих компаундом; - герметизованих; - розміщених у підлозі, стінах, перекриттях, землі; - які є частиною обладнання і виконані відповідно із стандартами або технічними умовами на це обладнання. 4.3.5 Приєднання кожної відкритої провідної частини до захисних провідників повинно бути виконано таким чином, щоб у разі відокремлення відкритої провідної частини від системи захисту від ураження електричним струмом (наприклад, для проведення ремонту електрообладнання), захисні кола електрообладнання, яке залишається в роботі, не переривались (див. також 4.2.1.7). Приєднання кожної сторонньої провідної частини до головної заземлювальної шини окремим провідником основної системи зрівнювання потенціалів не вимагається, якщо електрична безперервність зв'язку може бути забезпечена за допомогою інших провідників основної системи зрівнювання потенціалів (див. додаток Д). Об'єднання відкритих і сторонніх провідних частин у додаткову систему зрівнювання потенціалів може бути виконане як шляхом приєднання кожної з них до спільного провідника (шини додаткової системи зрівнювання потенціалів), так і без використання цього провідника (шини). ГОСТ 10434-82 Соединения контактные электрические. Классификация. Общие технические требования Бантик недопустим по требованиям к контактным соединениям. К трубам проводники присоединяются хомутами: (ссылка на изображение устарела) Посилання на коментар Поділитися на інших сайтах More sharing options...
АлександрБ. Опубліковано: 25 травня 2012 Автор Поділитись Опубліковано: 25 травня 2012 О, вот теперь понятно ! Благодарю за помощь. Посилання на коментар Поділитися на інших сайтах More sharing options...
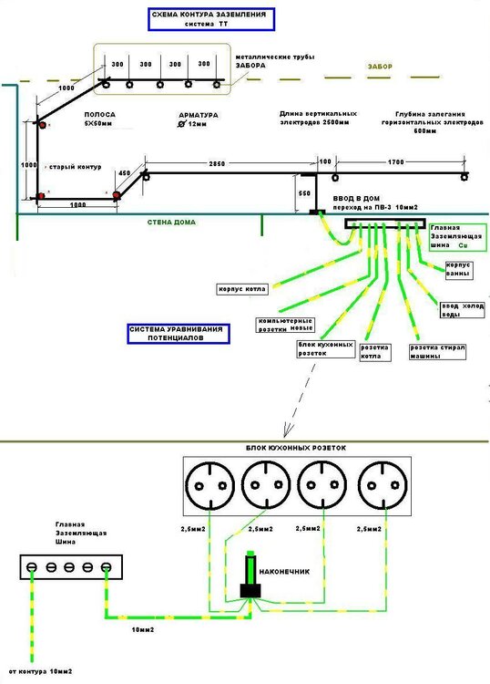
zmiey Опубліковано: 26 травня 2012 Поділитись Опубліковано: 26 травня 2012 или можно сделать из подручных материалов, качественно, разумеется ?У себя вот так сделал, я добавлял заземляющий провод, система ТТ 1 Посилання на коментар Поділитися на інших сайтах More sharing options...
АлександрБ. Опубліковано: 27 травня 2012 Автор Поділитись Опубліковано: 27 травня 2012 zmiey, спасибо, отличная схема, даже с картинками ! Еще вопрос, по совместимости в местах контакта нержавеющей стали с медью. Есть ли какие нормативы? Посилання на коментар Поділитися на інших сайтах More sharing options...
sanykrimea Опубліковано: 27 травня 2012 Поділитись Опубліковано: 27 травня 2012 Еще вопрос, по совместимости в местах контакта нержавеющей стали с медью. Есть ли какие нормативы? Совмещается. Нормативы марки стали не различают - для контактов всё сталь. Описано в ГОСТ 10434-82 Соединения контактные электрические. Классификация. Общие технические требования Таблица 3 и пр. 1 Посилання на коментар Поділитися на інших сайтах More sharing options...
АлександрБ. Опубліковано: 28 травня 2012 Автор Поділитись Опубліковано: 28 травня 2012 Совмещается. Нормативы марки стали не различают - для контактов всё сталь. Описано в ГОСТ 10434-82 Соединения контактные электрические. Классификация. Общие технические требования Таблица 3 и пр. Спасибо за ответ. Посилання на коментар Поділитися на інших сайтах More sharing options...
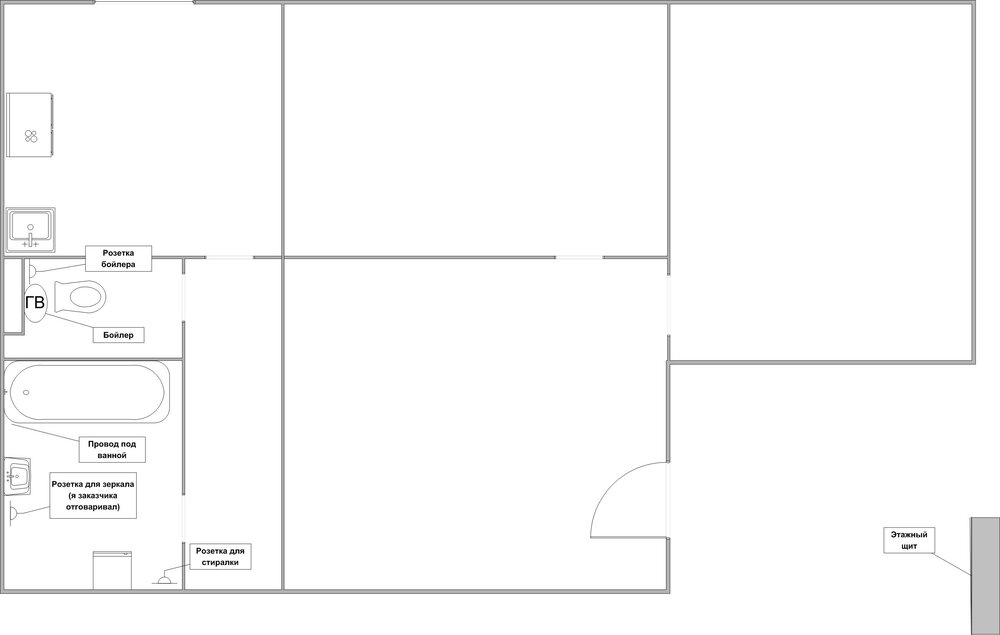
liman Опубліковано: 1 листопада 2013 Поділитись Опубліковано: 1 листопада 2013 Добрый день! Жилой дом, новостройка. Меняли трубы воды на м/п. Под ванной обнаружился провод 2,5 сечением. Так понимаю, это ДСУП? Провод там только один, поднимается на потолок и дальше, наверное, идёт на этажный щит (точно не знаю). Для стиралки, зеркала и бойлера от щитка будет протянут один кабель (ввг, 3*2,5). Розетки все с заземлением. Вопрос. Как правильно сделать дсуп? Провод из-под ванны к ней же подключить - это ясно. Надо железные трубы соединять с этим же поводом (стояк - железные трубы, дальше - м/п)? Изначально ничего нигде не соединялось. Стиралку с ванной подключать к этому проводу? Или ей хватит своего PEN от щитка? Или уравнять, но в розетке отсоединить PEN? Бойлер (в туалете) можно не равнять? Я на это (стиралка, бойлер, розетка для зеркала) хочу поставить ДА 10 мА/16А. Так правильно? Что я ещё забыл?.. Спасибо. Посилання на коментар Поділитися на інших сайтах More sharing options...
IEC 60364 Опубліковано: 1 листопада 2013 Поділитись Опубліковано: 1 листопада 2013 Как правильно сделать дсуп? Провод из-под ванны к ней же подключить - это ясно. Установить КУП (коробку уравнивания потенциалов) к ней подключать проводники (РЕ и проводники от всех открытых проводящих частей) Надо железные трубы соединять с этим же поводом Обязательно. Каждая труба должна иметь свой проводник к КУП. Стиралку с ванной подключать к этому проводу? Стиралка соединяется через штепсельный разъём. Если (вдруг) на корпусе СМ есть зажим для РЕ с соответствующим обозначением, то он присоединяется к КУП. Или ей хватит своего PEN от щитка? Ни в этажном ни в квартирном щитках PEN не бывает. Бойлер (в туалете) можно не равнять? PE его розетки (или зажим РЕ на корпусе) присоединяется к КУП в ванной. Я на это (стиралка, бойлер, розетка для зеркала) хочу поставить ДА 10 мА/16А. Так правильно? Бойлер + СМ в режиме нагрева потребляют ~ 4 кВт (~18 А). Контакты ДА будут перегружены. Что я ещё забыл?.. Освещение ванной должно быть под защитой УЗО 1 Посилання на коментар Поділитися на інших сайтах More sharing options...
liman Опубліковано: 2 листопада 2013 Поділитись Опубліковано: 2 листопада 2013 Спасибо большое! Разжевали. Стиралка соединяется через штепсельный разъём. Если (вдруг) на корпусе СМ есть зажим для РЕ с соответствующим обозначением, то он присоединяется к КУП. Это понятно. Я хотел уточнить вот что. На стиралку (и бойлер) протянул отдельный кабель от этажного щитка. Как надо: соединить (закольцевать) заземляющий контакт розеток СМ и бойлера через КУП? Вроде как один и тот же провод, на щитке соединяется...Да и суммарное сечение больше будет (изначально, для КУП приходит 2,5 квадрата). Отсоединить от заземляющих контактов розетки PE, а контакты подключить к КУП? Не париться - не соединять вместе PE розеток и СУП: стиралка и бойлер через PE, а остальное (ванна, трубы...) через КУП? Ни в этажном ни в квартирном щитках PEN не бывает. Извиняюсь, пальцы запутались ;) Бойлер + СМ в режиме нагрева потребляют ~ 4 кВт (~18 А). Контакты ДА будут перегружены. Та знаю, заказчик обещает одновременно не включать... Бюджет. Или на 25 А и 30 мА поставить? Вроде как не правильно. Освещение ванной должно быть под защитой УЗО Да, должно быть. На эту квартиру ваще 3 автомата было: ДА 0,03/25А на все розетки. АВ 16 А - весь свет. АВ (не помню точно) 40 А - плита. Я еле уболтал на дополнительный ДА для розеток с/у...На остальную модернизацию не ведётся. Бюджет... Посилання на коментар Поділитися на інших сайтах More sharing options...
IEC 60364 Опубліковано: 2 листопада 2013 Поділитись Опубліковано: 2 листопада 2013 На стиралку (и бойлер) протянул отдельный кабель от этажного щитка. Как надо: В РЕ-зажим розеток приходит РЕ-проводник в составе кабеля из щитка и РЕ-проводник из КУП, всего два проводника. Или на 25 А и 30 мА поставить? Вроде как не правильно. Правильно - номинальный дифференциальный ток УЗО должен быть не более 30 мА. Посилання на коментар Поділитися на інших сайтах More sharing options...
Рекомендовані повідомлення
Створіть акаунт або увійдіть у нього для коментування
Ви маєте бути користувачем, щоб залишити коментар
Створити акаунт
Зареєструйтеся для отримання акаунта. Це просто!
Зареєструвати акаунтУвійти
Вже зареєстровані? Увійдіть тут.
Увійти зараз