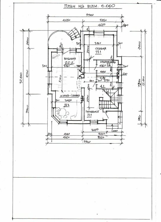
Mihalich13 Опубліковано: 28 травня 2012 Поділитись Опубліковано: 28 травня 2012 Добрый день форумчанам! Где-то лет 10 назад на глаза попался журнал с проектами домов, и один домик прочно засел в голове (ну ооочень понравился!). Прошли годы, прошла переоценка ценностей и я наконец захотел Свой дом. Где-то с осени прошлого года начал читать данный форум и искать прект своего дома. Просмотрев множество проектов на различных сайтах, ничего для себя не найдя я, вспомнил про старый журнал! Конечно прогресс не стоит на месте и данный домик начал претерпевать изменения. Местный архитектор выдал преварительно следующее: 1- план участка 2- план 1 этажа (сомневаюсь, нужен ли мне камин?, может сделать две двери - отдельно на кухню, отдельно в гостинную?) 3- план 2 этажа (хочу вместо гардероба хозяйский санузел, нужен ли еще один санузел для детей и где расположить гардероб и гладильную-прачечную?) Очень жду конструктивных замечаний! Посилання на коментар Поділитися на інших сайтах More sharing options...
seyvalter Опубліковано: 28 травня 2012 Поділитись Опубліковано: 28 травня 2012 Гм, важко сказати як щось добре - так і щось погане. Недоліки - 3 комина - причому один з них - в зовнішній стіні, розводка комунікацій складна (кухня далеко від сан.вузла). Планування - "як у всіх". Фасади - однозначний мінус. Плюси - буває гірше, грубих помилок я не помітив. А так загалом - так собі, ніби і непогано - але не те на що я б звернув увагу.ИМХО 1 Посилання на коментар Поділитися на інших сайтах More sharing options...
Mihalich13 Опубліковано: 28 травня 2012 Автор Поділитись Опубліковано: 28 травня 2012 seyvalter, может подскажете какую-ту изюминку. Может что-то перепланировать? А что с фасадами? Дом планируется из чернового кирпича, обложенный лицевым. Крыша - скорей всего металлочерепица. Посилання на коментар Поділитися на інших сайтах More sharing options...
seyvalter Опубліковано: 28 травня 2012 Поділитись Опубліковано: 28 травня 2012 не знаю чому - нагадав він мені один Альфаплановський будиночок, порівняйте ці фасади зі своїми і як кажуть відчуйте різницю. по "ізюмінкам" - вибачте, та за ізюм ви платите іншому архітектору, якщо він за гроші нехоче старатись - то чому це має робити хтось безкоштовно? Тут порадою не обійдешся - це треба взяти і зробити по-людськи. 1 Посилання на коментар Поділитися на інших сайтах More sharing options...
lud_mila Опубліковано: 28 травня 2012 Поділитись Опубліковано: 28 травня 2012 зимой весь снег с крыши будет падать на голову, т.к. наклон на центральный вход. 1 Посилання на коментар Поділитися на інших сайтах More sharing options...
Рекомендовані повідомлення
Створіть акаунт або увійдіть у нього для коментування
Ви маєте бути користувачем, щоб залишити коментар
Створити акаунт
Зареєструйтеся для отримання акаунта. Це просто!
Зареєструвати акаунтУвійти
Вже зареєстровані? Увійдіть тут.
Увійти зараз