cadet225 Опубліковано: 13 червня 2012 Поділитись Опубліковано: 13 червня 2012 Добрый день ! Сегодня объездили кучу домов, понравился katepal, super rocky, спелый каштан (если я его правильно идентифицировал) Продавцы katepal, подключайтесь пожалуйста, жду просчет Проект сброшу по запросу на ваш мейл. Посилання на коментар Поділитися на інших сайтах More sharing options...
immigrant Опубліковано: 14 червня 2012 Поділитись Опубліковано: 14 червня 2012 Отправил Вам расчеты. Рад буду с Вами продолжить общение... 1 Посилання на коментар Поділитися на інших сайтах More sharing options...
Крышник Опубліковано: 20 червня 2012 Поділитись Опубліковано: 20 червня 2012 Добрый день ! Сегодня объездили кучу домов, понравился katepal, super rocky, спелый каштан (если я его правильно идентифицировал) С точно таким же цветом(тот же камень посыпки) есть Керабит Квадро коричнево-чёрный,только в гонте 4 лепестка,а не 3 как у Катепал,смотрится объёмней,гляньте фото picasaweb.google.com/102980961991114796995/ZaqqPE#5748593092301548978 1 Посилання на коментар Поділитися на інших сайтах More sharing options...
serega111 Опубліковано: 20 червня 2012 Поділитись Опубліковано: 20 червня 2012 Можно проект в личку, или на e-mail: dom_avm@ukr.net Посилання на коментар Поділитися на інших сайтах More sharing options...
Sergey_AKM Опубліковано: 22 червня 2012 Поділитись Опубліковано: 22 червня 2012 SergeySemenenko2009@yandex.ua - если не поздно могу и я просчитать! Посилання на коментар Поділитися на інших сайтах More sharing options...
cadet225 Опубліковано: 22 червня 2012 Автор Поділитись Опубліковано: 22 червня 2012 фух, тема закрыта, всем спасибо за помощь. Посилання на коментар Поділитися на інших сайтах More sharing options...
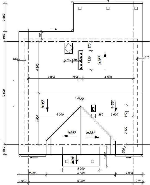
VasylOk Опубліковано: 1 серпня 2012 Поділитись Опубліковано: 1 серпня 2012 (змінено) Скористаюсь вже готовою темою , адже стоїть аналогічне завдання - укомплектувати дах. Матеріал бітумна черепиця Katepal Rocki Barkwood brown (спілий каштан) - 200м2 Плитка коньок-карніз (12м/20м) уп. 3 Ендовий килим Pintari (10м/уп) уп. 2 Клей Ruflex К-36 (10л.) шт. 2 Плита OSB-3 (10мм.) 1250х2500 мм. шт. 65 Підкладочний килим м.кв. 120 Цвяхи кг. 14 Захист карнізу матполіестр шт. 13 Вітрозахіст матпорліестр шт. 26 Стіновий захист шт. 5 Гідробар'єр (мембрана) м.кв. 200 У звязку з обмеженим бюджетом, прошу окремо прорахувати: Утеплювач 150мм - 130м2 Утеплювач 50мм - 130м2 Стрічка К-2 - 90 п.м. Паробар'єр м.кв. 200 Софіт м.кв. 70 Водостоки згідно креслення. Якщо щось не правильно вказав, прошу виправити. Потреба в даному матеріалі (1 частина) з 15.08.12, тобто до цього часу планую визначитись. Дякую за пропозиції! Змінено 1 серпня 2012 користувачем VasylOk Посилання на коментар Поділитися на інших сайтах More sharing options...
VasylOk Опубліковано: 1 серпня 2012 Поділитись Опубліковано: 1 серпня 2012 Контактна інформація у підписі до 15.08.12! Всім Дякую! Посилання на коментар Поділитися на інших сайтах More sharing options...
Uteplitel Опубліковано: 1 серпня 2012 Поділитись Опубліковано: 1 серпня 2012 Педложение у Вас на почте. Все материалі есть в наличии. Посилання на коментар Поділитися на інших сайтах More sharing options...
Татьяна_ST Опубліковано: 1 серпня 2012 Поділитись Опубліковано: 1 серпня 2012 va_gon Соффит, какого цвета хотите? Посилання на коментар Поділитися на інших сайтах More sharing options...
VasylOk Опубліковано: 21 серпня 2012 Поділитись Опубліковано: 21 серпня 2012 На початок вересня потрібна бригада (можна і три гада) на монтаж даху. Об"єм робіт: - монтаж кроквяної (стропильной) конструкції; - монтаж євробар"єру, контрбруса, обрешітки, OSB; - монтаж бітумної черепиці Katepal (super Rocky) - 200м2 із усіма комплектуючими. Свої пропозиції з фото виконаних робіт прошу надсилати на адресу в підписі або в особисті повідомлення до 01.09.12. Місце виконання робіт - с. Зазим"я, Броварський р-н. Креслення див. вище! Дякую! Посилання на коментар Поділитися на інших сайтах More sharing options...
VasylOk Опубліковано: 29 серпня 2012 Поділитись Опубліковано: 29 серпня 2012 Потреба у бригаді й досі актуальна! Також додатково потрібно докласти біля 6-7м3 газоблоку на фронтони та біля 2500 шт цегли. Вот що маємо на сьогодні і що має буди у фіналі. Посилання на коментар Поділитися на інших сайтах More sharing options...
Рекомендовані повідомлення
Створіть акаунт або увійдіть у нього для коментування
Ви маєте бути користувачем, щоб залишити коментар
Створити акаунт
Зареєструйтеся для отримання акаунта. Це просто!
Зареєструвати акаунтУвійти
Вже зареєстровані? Увійдіть тут.
Увійти зараз