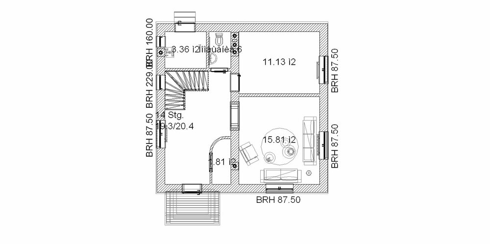
s.v.a. Опубліковано: 19 липня 2012 Поділитись Опубліковано: 19 липня 2012 Доброго времени суток всем! Подскажите конкретикой можно ли имея 50000 у.е. построить такой скромненький дом 8х8м, 95 кв.м. или не начинать? Есть участок, все коммуникации по улице, район стр-ва Донецк. Работы собираюсь выполнять преимущественно ни сам, а бригадами. Но возможно, буду за бригадира. Фундамент - ленточный ж.б., материал стен - кирпич(двойной или утолщенный), перекрытия - ж.б. панели, крыша - стропильная, метал.черепица. Но возможны варианты. Сырые эскизы: Посилання на коментар Поділитися на інших сайтах More sharing options...
SergeUA Опубліковано: 19 липня 2012 Поділитись Опубліковано: 19 липня 2012 Я собираю построить нечто очень похожее, только чуток побольше. Денег не больше... Для стен выбрал газобетон 400мм (пока)... как по мне дешевле кирпича, да и фасад можно на потом оставить... Строят же люди в селах, у них и таких денег нет... Удачи 1 Посилання на коментар Поділитися на інших сайтах More sharing options...
Игореха Опубліковано: 19 липня 2012 Поділитись Опубліковано: 19 липня 2012 На коробку (фунд, стены, перекрытия, кровля, возможно окна) должно хватить. Посилання на коментар Поділитися на інших сайтах More sharing options...
s.v.a. Опубліковано: 23 липня 2012 Автор Поділитись Опубліковано: 23 липня 2012 На коробку (фунд, стены, перекрытия, кровля, возможно окна) должно хватить. Я конечно прислушиваюсь к мнению старожила форума, но это же не дом на 200 квадратов, о какой только коробке идет речь? Я прикидывал в 35000 у.е. - можно вписаться по коробке. Если нет, поправьте меня. Посилання на коментар Поділитися на інших сайтах More sharing options...
Koskos Опубліковано: 23 липня 2012 Поділитись Опубліковано: 23 липня 2012 Если прикинули, что в 35 влезете - зачем тогда спрашиваете о 50? Начинайте строить. А там время покажет во сколько все вылезет. Только помните, что коробка - это еще не ДОМ. 1 Посилання на коментар Поділитися на інших сайтах More sharing options...
s.v.a. Опубліковано: 23 липня 2012 Автор Поділитись Опубліковано: 23 липня 2012 Отделку можно сделать и за 15-20 (если очень экономно) и за 50, кто на что горазд. Посилання на коментар Поділитися на інших сайтах More sharing options...
Koskos Опубліковано: 23 липня 2012 Поділитись Опубліковано: 23 липня 2012 Отделка то такое...инженерия много стоит - отопление, водоснабжение, очистка воды, электрика. Очень большие затраты будут на благоустройство участка - обустройство отмостки, дорожки, дренажная система отвода воды, заборы и т.д. Посилання на коментар Поділитися на інших сайтах More sharing options...
s.v.a. Опубліковано: 23 липня 2012 Автор Поділитись Опубліковано: 23 липня 2012 Так может стоит отойти от постройки из кирпича и склониться к другому материалу, хотя это только стены, фундамент... В общем на участке старый домик из самана квадратов 50, хочу провести как реконструкцию вписавшись по габаритам, что посоветуете? Или еще подкопить тысяч 20 надо? Не хочется уже ждать... Посилання на коментар Поділитися на інших сайтах More sharing options...
Игореха Опубліковано: 24 липня 2012 Поділитись Опубліковано: 24 липня 2012 Я конечно прислушиваюсь к мнению старожила форума, но это же не дом на 200 квадратов, о какой только коробке идет речь? Я прикидывал в 35000 у.е. - можно вписаться по коробке. Если нет, поправьте меня. Странно задавать вопрос, заранее "зная" на него ответ ;) Я строю дом из кирпича, с нормальным фундаментом и крышей Строю премущественно сам Правда домик поболее. Но уж мне-то не знать стоимость материалов, ну и работ, за которые я плачу сам себе ;):D И да. Вы же спросили о цене дома, а не коробки ;) Так каким боком ваш вопрос относится к 35туе за коробку? ;) Добавлено через 2 минуты Так может стоит отойти от постройки из кирпича и склониться к другому материалу, хотя это только стены, фундамент... В общем на участке старый домик из самана квадратов 50, хочу провести как реконструкцию вписавшись по габаритам, что посоветуете? Или еще подкопить тысяч 20 надо? Не хочется уже ждать... Вопрос выбора материала - это вопрос религии. Но какой бы материал вы не выбрали, в конечном итоге общая смета буде колебаться в пределах 5%. Посилання на коментар Поділитися на інших сайтах More sharing options...
blondi Опубліковано: 24 липня 2012 Поділитись Опубліковано: 24 липня 2012 Строить то можно, все зависит от уровня запросов. Вот видите, вы же сами говорите что за 35 уложитесь в коробку, а внутреннюю отделку, в конце концов, можно и поэтапно проводить. 1 Посилання на коментар Поділитися на інших сайтах More sharing options...
s.v.a. Опубліковано: 24 липня 2012 Автор Поділитись Опубліковано: 24 липня 2012 И да. Вы же спросили о цене дома, а не коробки Так каким боком ваш вопрос относится к 35туе за коробку? Тем боком, что вы ответили, что за 50 туе можно построить только коробку этого дома... с чем я, извините, не согласен. На счет выбора материала, пожалуй, соглашусь...это больше кому как нравиться, в итоге всё выливается примерно в одну сумму. Посилання на коментар Поділитися на інших сайтах More sharing options...
lastandr Опубліковано: 24 липня 2012 Поділитись Опубліковано: 24 липня 2012 Так может стоит отойти от постройки из кирпича и склониться к другому материалу, хотя это только стены, фундамент... В общем на участке старый домик из самана квадратов 50, хочу провести как реконструкцию вписавшись по габаритам, что посоветуете? Или еще подкопить тысяч 20 надо? Не хочется уже ждать... В этой ситуации,на мой взгляд,нужно начать со сноса старой постройки и заложению нового фундамента,а в следующем сезоне,поднакопив еще денюжки,продолжить возведение стен и накрыть кровлей.Ну а отделку, инженерию и благоустройство делать уже по мере возможностей. 2 Посилання на коментар Поділитися на інших сайтах More sharing options...
s.v.a. Опубліковано: 24 липня 2012 Автор Поділитись Опубліковано: 24 липня 2012 Строиться однозначно буду. Жду приватизацию, и сразу сношу старый дом, а там уже по-тихоньку... Спасибо всем откликнувшимся. Удачи! Посилання на коментар Поділитися на інших сайтах More sharing options...
Playmaker Опубліковано: 24 липня 2012 Поділитись Опубліковано: 24 липня 2012 Доброго времени суток всем! Подскажите конкретикой можно ли имея 50000 у.е. построить такой скромненький дом 8х8м, 95 кв.м. или не начинать? Есть участок, все коммуникации по улице, район стр-ва Донецк. Работы собираюсь выполнять преимущественно ни сам, а бригадами. Но возможно, буду за бригадира. Фундамент - ленточный ж.б., материал стен - кирпич(двойной или утолщенный), перекрытия - ж.б. панели, крыша - стропильная, метал.черепица. Но возможны варианты. Сырые эскизы: [ATTACH]202094[/ATTACH] [ATTACH]202095[/ATTACH] [ATTACH]202096[/ATTACH] Блин, я бы на эти деньги и себе, и соседям бы построил)))))))))))) 2 Посилання на коментар Поділитися на інших сайтах More sharing options...
Игореха Опубліковано: 25 липня 2012 Поділитись Опубліковано: 25 липня 2012 Тем боком, что вы ответили, что за 50 туе можно построить только коробку этого дома... с чем я, извините, не согласен. На счет выбора материала, пожалуй, соглашусь...это больше кому как нравиться, в итоге всё выливается примерно в одну сумму. В 35 вы вложитель, если сами будете делать, преимущественно. ;) Посилання на коментар Поділитися на інших сайтах More sharing options...
Анна Прис Опубліковано: 28 липня 2012 Поділитись Опубліковано: 28 липня 2012 Строиться однозначно буду. Жду приватизацию, и сразу сношу старый дом, а там уже по-тихоньку... Спасибо всем откликнувшимся. Удачи! Постройте дом со сруба, и в 50 тыс. вложитесь, это действительно реально! Сами заказали, ждем, через месяц будет домик под ключ. От Вас нужен только готовый фундамент и проект дома, если есть, если нет, могут предложить свои проекты. Останется только разводку и коммуникации провести. Быстро, красиво, комфортно, а главное - экологично чисто! Посилання на коментар Поділитися на інших сайтах More sharing options...
alyak Опубліковано: 28 липня 2012 Поділитись Опубліковано: 28 липня 2012 Сами заказали, ждем, через месяц будет домик под ключ. От Вас нужен только готовый фундамент и проект дома, если есть, если нет, могут предложить свои проекты. Останется только разводку и коммуникации провести. Быстро, красиво, комфортно, а главное - экологично чисто! может сначала дождаться ???? Потом "только комуникации провести" , а потом подвести "итого" ??? 4 Посилання на коментар Поділитися на інших сайтах More sharing options...
Анна Прис Опубліковано: 29 липня 2012 Поділитись Опубліковано: 29 липня 2012 может сначала дождаться ???? Потом "только комуникации провести" , а потом подвести "итого" ??? Наши соседи, через несколько участков, уже живут 4 месяца примерно в таком доме (приблиз.100м2). Им хватило 50 штук, на дом, отопление, скважину и столярку. Конечно, делалось все экономно, без шика. Пусть не хоромы, и окна не пластик, но зато своё. Посилання на коментар Поділитися на інших сайтах More sharing options...
ViktorBucha Опубліковано: 29 липня 2012 Поділитись Опубліковано: 29 липня 2012 зимы ваши соседи в своем доме не застали? Ну-ну... Посилання на коментар Поділитися на інших сайтах More sharing options...
Анна Прис Опубліковано: 29 липня 2012 Поділитись Опубліковано: 29 липня 2012 зимы ваши соседи в своем доме не застали? Ну-ну... Они не первые и не последние, кто построил деревянный дом и прекрасно себя в нем чувствуют в любую пору года, так как такие дома, очень хорошо держат тепло - зимой, а летом в них прохладно и комфортно. Надо просто правильно выбирать диаметр бруса, контролировать его сборку, а после, тщательно заделать любые трещинки и никакой мороз не страшен. Другие наши знакомые проживают в таком доме уже более 5 лет, так даже, в сильные морозы они отопление включали только на половину мощности. Есть масса примеров, особенно на Западной Украине, там очень много деревянных домов. Посилання на коментар Поділитися на інших сайтах More sharing options...
s.v.a. Опубліковано: 30 липня 2012 Автор Поділитись Опубліковано: 30 липня 2012 Постройте дом со сруба, и в 50 тыс. вложитесь, это действительно реально! Сами заказали, ждем, через месяц будет домик под ключ. От Вас нужен только готовый фундамент и проект дома, если есть, если нет, могут предложить свои проекты. Останется только разводку и коммуникации провести. Быстро, красиво, комфортно, а главное - экологично чисто! Быстро и экологично - это 100%, но на счет стоимости из сруба, как бы не вышло дороже кирпича...В срубе свои нюансы. Разводка коммуникаций как раз и займет еще в экономном варианте 5-8туе. А я должен вложиться в 50 туе, дом в "чистоте", только без благоустройства участка. Посилання на коментар Поділитися на інших сайтах More sharing options...
Анна Прис Опубліковано: 30 липня 2012 Поділитись Опубліковано: 30 липня 2012 Добрый день! Поверьте вложитесь, через недельки 2-3, дам Вам, если заинтересует, подтверждающие факты, и тогда решайте. Удачи Посилання на коментар Поділитися на інших сайтах More sharing options...
Технолог Опубліковано: 31 липня 2012 Поділитись Опубліковано: 31 липня 2012 Постройте дом со сруба, и в 50 тыс. вложитесь, это действительно реально! Сами заказали, ждем, через месяц будет домик под ключ. От Вас нужен только готовый фундамент и проект дома, если есть, если нет, могут предложить свои проекты. Останется только разводку и коммуникации провести. Быстро, красиво, комфортно, а главное - экологично чисто! Наверное срубами приторговываете? 1 Посилання на коментар Поділитися на інших сайтах More sharing options...
Ирина Ч. Опубліковано: 31 липня 2012 Поділитись Опубліковано: 31 липня 2012 Добрый день! Поверьте вложитесь, через недельки 2-3, дам Вам, если заинтересует, подтверждающие факты, и тогда решайте. Удачи Эхх молодо-зелено... Давайте свое ветко с вашим срубом. Хочу видеть как у Вас под ключ 50 тыщ получится. Мы когда коробку поставили тож так думали... давно это было... в 2008-м 2 Посилання на коментар Поділитися на інших сайтах More sharing options...
Dorik K Опубліковано: 31 липня 2012 Поділитись Опубліковано: 31 липня 2012 Постройте дом со сруба, и в 50 тыс. вложитесь, это действительно реально! Сами заказали, ждем, через месяц будет домик под ключ. От Вас нужен только готовый фундамент и проект дома, если есть, если нет, могут предложить свои проекты. Останется только разводку и коммуникации провести. Быстро, красиво, комфортно, а главное - экологично чисто! Дом из сруба обойдется от 800$ кв.м. ( при скромной отделке) и выше. Деревянный дом - это не дешевое сооружение, с 50 000 я бы даже не начинал. 50 000$ -это деньги, а недостроенный дом - это непродаваемый кусок геморроя 1 Посилання на коментар Поділитися на інших сайтах More sharing options...
Рекомендовані повідомлення
Створіть акаунт або увійдіть у нього для коментування
Ви маєте бути користувачем, щоб залишити коментар
Створити акаунт
Зареєструйтеся для отримання акаунта. Це просто!
Зареєструвати акаунтУвійти
Вже зареєстровані? Увійдіть тут.
Увійти зараз