lug Опубліковано: 4 грудня 2012 Поділитись Опубліковано: 4 грудня 2012 стены из глины ширина стены 600мм.+пол кирпича Такие, как на фото, что ль? Ой, чёта одолевают меня бооольшие сомнения, что глина выдержит 2 бетонных армопояса, метр газобетона и утеплённую крышу. И старые балки глиняного потолка вряд ли расчитаны на новый пол со всей нагрузкой. Ухоркаете старый домик нахрен. Посилання на коментар Поділитися на інших сайтах More sharing options...
OlegArh Опубліковано: 4 грудня 2012 Поділитись Опубліковано: 4 грудня 2012 Такие, как на фото, что ль? Ой, чёта одолевают меня бооольшие сомнения, что глина выдержит 2 бетонных армопояса, метр газобетона и утеплённую крышу. И старые балки глиняного потолка вряд ли расчитаны на новый пол со всей нагрузкой. Ухоркаете старый домик нахрен. И хотя стиль изложения несколько не подходит прекрасному полу , тем не менее, снимаю шляпу перед "выводами" 1 Посилання на коментар Поділитися на інших сайтах More sharing options...
cliver Опубліковано: 5 грудня 2012 Автор Поділитись Опубліковано: 5 грудня 2012 Такие, как на фото, что ль? Ой, чёта одолевают меня бооольшие сомнения, что глина выдержит 2 бетонных армопояса, метр газобетона и утеплённую крышу. И старые балки глиняного потолка вряд ли расчитаны на новый пол со всей нагрузкой. Ухоркаете старый домик нахрен. Нет, на фото там саман кирпичиками, да и ширина навряд-ли у него 60 см. У меня стена выложена вальками, шириной 60 см, то есть такой себе монолит, нет швов у стены. Завтра сфотографирую и выложу фото стены. Сделайте мансарду каркасной. Я не против , можно и каркасной, нужна только схема как что лепить, и куда ставить, одним словом расчеты, и растановка деталей. И почему скаты по 35 градусов, как оно будет смотреться на маленьком домике??? Просто так прикинул, готов выслушать Ваши варианты Рекомендую сначала прорисовать это в 3D. Определить место под будущюю лестницу и т.д. Дом что на фото воссоздан в архикаде. Посилання на коментар Поділитися на інших сайтах More sharing options...
OlegArh Опубліковано: 5 грудня 2012 Поділитись Опубліковано: 5 грудня 2012 Вот как-то так: (ссылка на изображение устарела) (ссылка на изображение устарела) Мое видение - 1-й вариант. И по деньгам попроще будет... Посилання на коментар Поділитися на інших сайтах More sharing options...
lug Опубліковано: 5 грудня 2012 Поділитись Опубліковано: 5 грудня 2012 Was ist das вальками ? И чем глиняные вальки принципиально отличаются от самана? Смотрю на фото вашего домика и не могу представить, что эти стены вынесут мансардный этаж из пенобетона. Может хоть стойки забетонируйте по углам и посредине 7,6 м пролёта, из швеллера № 12-14, к ним привяжите арматурный каркас. Или самый лёгкий каркасник : каркас из бруса 150 х 50, снаружи ОСБ 12мм, внутри гипсокартон, между ними пенопласт 150мм Добавлено через 5 минут Потолок глиняный не трогаем, на него ложим доску и делаем новый пол Залезьте на чердак и устройте краш-тест старому перекрытию: походите по нему вдвоём - втроём, попрыгайте слегка. А потом прислушайтесь, что вам скажет внутренний голос : можно ли сюда добавить вес нового пола и всего, что на нём будет Посилання на коментар Поділитися на інших сайтах More sharing options...
cliver Опубліковано: 5 грудня 2012 Автор Поділитись Опубліковано: 5 грудня 2012 И чем глиняные вальки принципиально отличаются от самана? Словесно ни чем, глина она и там и там глина, может я не правильно выразился , стена у меня отличается от фото тем, что она не имеет швов, тоесть монолит. Смотрю на фото вашего домика и не могу представить, что эти стены вынесут мансардный этаж из пенобетона. Может хоть стойки забетонируйте по углам и посредине 7,6 м пролёта, из швеллера № 12-14, к ним привяжите арматурный каркас. Или самый лёгкий каркасник : каркас из бруса 150 х 50, снаружи ОСБ 12мм, внутри гипсокартон, между ними пенопласт 150мм Это было мое видение, пенобетон и пр. OlegArh предложил вариант каркасника, сейчас рассматриваю его как основной. Посилання на коментар Поділитися на інших сайтах More sharing options...
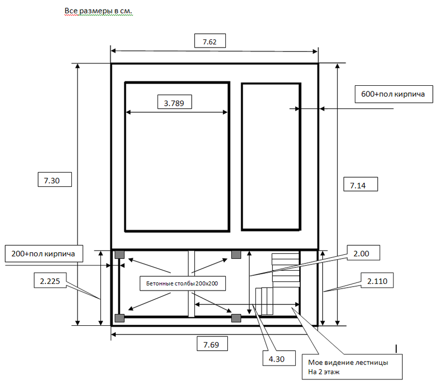
cliver Опубліковано: 9 грудня 2012 Автор Поділитись Опубліковано: 9 грудня 2012 (змінено) Размеры дома обновленные. Все время сам на стройке не было возможности произвести замеры, сегодня детей оставили с бабушкой, супруга помогла с замерами. Работы которые сделал на сегодняшний день. Змінено 9 грудня 2012 користувачем cliver Посилання на коментар Поділитися на інших сайтах More sharing options...
lug Опубліковано: 9 грудня 2012 Поділитись Опубліковано: 9 грудня 2012 Лестница в том виде, как на вашем рисунке, то не лестница, а стремянка. К тому же она выходит у стены под скосом крыши, поэтому вылазить с неё на 2 эт. придётся на четвереньках. Напрашивается сделать ещё один пролёт, ещё одну площадку - получится больше ступеней и выход - в высокой части мансарды Посилання на коментар Поділитися на інших сайтах More sharing options...
cliver Опубліковано: 9 грудня 2012 Автор Поділитись Опубліковано: 9 грудня 2012 Лестница в том виде, как на вашем рисунке, то не лестница, а стремянка. К тому же она выходит у стены под скосом крыши, поэтому вылазить с неё на 2 эт. придётся на четвереньках. Напрашивается сделать ещё один пролёт, ещё одну площадку - получится больше ступеней и выход - в высокой части мансарды Я не обозначил откуда и куда идти. С права на лево. Полностью с Вами согласен насчет стены под скосом. Мне лестница на Вашем фото нравится, сможет ли она вписаться в габариты моего здания отведенные для нее? Какая у нее ширина ступени, и пр. высоты? Посилання на коментар Поділитися на інших сайтах More sharing options...
OlegArh Опубліковано: 9 грудня 2012 Поділитись Опубліковано: 9 грудня 2012 (змінено) Я не обозначил откуда и куда идти. С права на лево. Полностью с Вами согласен насчет стены под скосом. Мне лестница на Вашем фото нравится, сможет ли она вписаться в габариты моего здания отведенные для нее? Какая у нее ширина ступени, и пр. высоты?Для расчсета лестницы требуется указать дверь, которая там есть. А крыша выполнена хорошо, только врубки почему то большие. Конечный результат будет показан? Змінено 9 грудня 2012 користувачем OlegArh Посилання на коментар Поділитися на інших сайтах More sharing options...
lug Опубліковано: 9 грудня 2012 Поділитись Опубліковано: 9 грудня 2012 сможет ли она вписаться в габариты моего здания отведенные для нее Вряд ли. Пропорции помещения похожи на ваше, но оно намного больше по размеру. Ступеньки на фото "идеальных" размеров : проступь -300мм, подступенок -150мм. В вашем закутке лестница с такими ступенями точно не поместится. Чтобы рассчитать приемлемую лестницу , нужны точные размеры, которые у вас ещё не все есть: 1) размеры закутка -от 1-го дверного проёма до угла - от угла до угла -от угла до 2-го дверного проёма 2) высота 1 и 2 дверного проёма 3) точная высота от чистого пола 1 эт до чистого пола 2 эт (этого размера, я так понимаю, нет пока в натуре) Дайте эти размеры - прикинем, как получится лестница Посилання на коментар Поділитися на інших сайтах More sharing options...
cliver Опубліковано: 9 грудня 2012 Автор Поділитись Опубліковано: 9 грудня 2012 Для расчсета лестницы требуется указать дверь, которая там есть. А крыша выполнена хорошо, только врубки почему то большие. Конечный результат будет показан? Врубки регулировал по веревке, чтобы было ровно по горизонтали. Конечный результат обязательно будет показан. Размеры с дверями обязательно добавлю завтра. Там самому уже легче замерять. Посилання на коментар Поділитися на інших сайтах More sharing options...
OlegArh Опубліковано: 9 грудня 2012 Поділитись Опубліковано: 9 грудня 2012 Врубки регулировал по веревке, чтобы было ровно по горизонтали. Конечный результат обязательно будет показан. Размеры с дверями обязательно добавлю завтра. Там самому уже легче замерять.Про врубки понятно, хоть и непонятно... почему. Кстати, по чертежам из поста № 4, я прикинул лестницу - может стать вполне нормально, если слева направо, ширина 800 мм с одной площадкой. Посилання на коментар Поділитися на інших сайтах More sharing options...
OlegArh Опубліковано: 12 грудня 2012 Поділитись Опубліковано: 12 грудня 2012 Вобщем получился предварительный результат каркасной мансарды - только стены. По материалам: - лес=2.2 м3 - OSB-3=25 листов (1,25х2,5 м.) - ГКЛ = 54 листа - вата (плотность 30 кг/м3) = 8.3 м3 В расчете не присутствует крыша (лес и утепление) Вот так это выглядит... Посилання на коментар Поділитися на інших сайтах More sharing options...
cliver Опубліковано: 12 грудня 2012 Автор Поділитись Опубліковано: 12 грудня 2012 Мне нравится, есть дополнения. 1)Нужно прикинуть количество леса на крышу. 2) У нас не остается места для ванной и туалета. 3) развернуть лестницу чтобы на 1 эт сделать санузел. 4) Изменить перегородки внутри 5) увеличить размер окон, комнаты на север с малыми окнами меня убивают Посилання на коментар Поділитися на інших сайтах More sharing options...
OlegArh Опубліковано: 14 грудня 2012 Поділитись Опубліковано: 14 грудня 2012 В дополнение, объемы по крыше: - лес = 1,8 м3 (без орешетки) - утеплитель (при H=200 мм.) = 18.5 м3 - ГКЛ = 19 листов. - площадь кровли = 90 м2. Посилання на коментар Поділитися на інших сайтах More sharing options...
cliver Опубліковано: 15 грудня 2012 Автор Поділитись Опубліковано: 15 грудня 2012 В дополнение, объемы по крыше: - лес = 1,8 м3 (без орешетки) - утеплитель (при H=200 мм.) = 18.5 м3 - ГКЛ = 19 листов. - площадь кровли = 90 м2. Уточнения: 1) Высота стен мансарды 1,25 чтобы становился гипсокартон 2) Брать в расчет утеплитель H-250 (сразу ставить не будем, когда будут деньги потом положим 250 чтоб не-было холодно) 3) хотелось бы чтобы окна были по больше. 4) прилагаю эскизы со стороны фронтонов. 5) если лестницу расположить как Вы ставили в вашем варианте, какое остается растояние от лестницы до стены на мансарде? Посилання на коментар Поділитися на інших сайтах More sharing options...
OlegArh Опубліковано: 15 грудня 2012 Поділитись Опубліковано: 15 грудня 2012 (змінено) Уточнения: 3) хотелось бы чтобы окна были по больше. 4) прилагаю эскизы со стороны фронтонов. [ATTACH]235980[/ATTACH][ATTACH]235981[/ATTACH] 5) если лестницу расположить как Вы ставили в вашем варианте, какое остается растояние от лестницы до стены на мансарде? [ATTACH]235982[/ATTACH] 3, 4) как получится, потому что будут потолочные балки на высоте ~ 2.5 м. 5) тут не столько от меня зависит, а от возможно допустимых размеров ступеней и угла самой лестницы. Посмотрите на минимальные нормативы. А вторая - то, что может получиться (если размеры на плане соответсвуют действительности). P.S. Добавил туалет под лестницу. Скромно, зато есть... Сделал 2 варианта входа - с "торца" лестницы и с боку. Умывальник не входит... На схеме ванную не рассматривать, а только габариты туалетов (с раковиной и без). Жду критику. Змінено 15 грудня 2012 користувачем OlegArh Посилання на коментар Поділитися на інших сайтах More sharing options...
cliver Опубліковано: 15 грудня 2012 Автор Поділитись Опубліковано: 15 грудня 2012 (змінено) Уточненные размеры коридора так понимаю что мой вариант 2, поскольку ширина коридора 2 метра. Если туалет и умывальник влезут то ето етсь гуд. Вход лучше с лестницы, с торца думаю бетонный - столб будет мешать. Ванная ширина 1,9 глубина 1,7 Змінено 15 грудня 2012 користувачем cliver Посилання на коментар Поділитися на інших сайтах More sharing options...
OlegArh Опубліковано: 15 грудня 2012 Поділитись Опубліковано: 15 грудня 2012 Уточненные размеры коридора [ATTACH]235994[/ATTACH] так понимаю что мой вариант 2, поскольку ширина коридора 2 метра. Если туалет и умывальник влезут то ето етсь гуд. Вход лучше с лестницы, с торца думаю бетонный - столб будет мешать. Сейчас выложу схему, можно ли ванну на 2-м этаже сделать?Пока умывальник не входит... Ванную на втором этаже - без проблем. Один вопрос: где? Посилання на коментар Поділитися на інших сайтах More sharing options...
cliver Опубліковано: 15 грудня 2012 Автор Поділитись Опубліковано: 15 грудня 2012 Пока умывальник не входит... Ванную на втором этаже - без проблем. Один вопрос: где? фото приложил в сообщении выше. Посилання на коментар Поділитися на інших сайтах More sharing options...
cliver Опубліковано: 16 грудня 2012 Автор Поділитись Опубліковано: 16 грудня 2012 Если я правильно понял, то от угла двери до стены 1,75 м. на картинке красным. Посилання на коментар Поділитися на інших сайтах More sharing options...
lug Опубліковано: 16 грудня 2012 Поділитись Опубліковано: 16 грудня 2012 В туалете под лестницей срежьте угол примерно 500х500 и в этой плоскости поставьте дверь под углом 135 градусов к стенам. Влезет и унитаз и манюний умывальничек. И уберете угол с прохода между дверью в основную комнату и входом на лестницу. Если высота от пола до пола 2500, то лестница вполне приличная получится: 15 подступенков по 167мм, проступи примерно 280мм. Недалеко от идеала. Добавлено через 4 минуты дверь под углом 135 градусов к стенам А лучше провести линию от правого края дверного проёма до левого края нижней ступени, и параллельно ей установить дверь. 1 Посилання на коментар Поділитися на інших сайтах More sharing options...
OlegArh Опубліковано: 19 грудня 2012 Поділитись Опубліковано: 19 грудня 2012 Вид и мансардный этаж. Резюмэ? Посилання на коментар Поділитися на інших сайтах More sharing options...
lug Опубліковано: 19 грудня 2012 Поділитись Опубліковано: 19 грудня 2012 Площадку расширить до края окна. Чё месту пропадать. 1 Посилання на коментар Поділитися на інших сайтах More sharing options...
Рекомендовані повідомлення
Створіть акаунт або увійдіть у нього для коментування
Ви маєте бути користувачем, щоб залишити коментар
Створити акаунт
Зареєструйтеся для отримання акаунта. Це просто!
Зареєструвати акаунтУвійти
Вже зареєстровані? Увійдіть тут.
Увійти зараз