OlegArh Опубліковано: 19 грудня 2012 Поділитись Опубліковано: 19 грудня 2012 Площадку расширить до края окна. Чё месту пропадать. Не проблема - предоставте Ваше решение по конструкции перекрытия (настила) и консолей? В графике, пожалуйста, если возможно. Посилання на коментар Поділитися на інших сайтах More sharing options...
lug Опубліковано: 19 грудня 2012 Поділитись Опубліковано: 19 грудня 2012 Стойку под дополнительную балку перекрытия можно опереть на косоур \тетиву (зелёным); или спрятать стойку в стене санузла внизу (синим). Если задаться целью, то всё можно сделать , лишь бы у заказчика денег хватило на дополнительные 1,5 кв. метра и доступ к окну. Если лестница будет сварная, вообще не проблема сгородить такой закуток. В графике, пожалуйста, если возможно Невозможно. Все пространственные конструкции только у меня в мозгу. Визуализация - конструкция в натуре, когда сделаем -смотри сколько хочешь. Посилання на коментар Поділитися на інших сайтах More sharing options...
cliver Опубліковано: 19 грудня 2012 Автор Поділитись Опубліковано: 19 грудня 2012 Площадку расширить до края окна. Чё месту пропадать. Я Изначально так и подумал, что так будет . Думаю на месте будет видно, лишь бы головой не биться когда поднимаешься снизу. Посилання на коментар Поділитися на інших сайтах More sharing options...
OlegArh Опубліковано: 19 грудня 2012 Поділитись Опубліковано: 19 грудня 2012 Стойку под дополнительную балку перекрытия можно опереть на косоур \тетиву (зелёным); или спрятать стойку в стене санузла внизу (синим). Если задаться целью, то всё можно сделать , лишь бы у заказчика денег хватило на дополнительные 1,5 кв. метра и доступ к окну. Если лестница будет сварная, вообще не проблема сгородить такой закуток. Невозможно. Все пространственные конструкции только у меня в мозгу. Визуализация - конструкция в натуре, когда сделаем -смотри сколько хочешь.Да все это понятно и не дорого. Вопрос - нафига??? Так что выкладывай, что там в мозгу P.S. Я понимаю если сделать шкаф на "балконе", но тогда нужно менять окно, а лестница будет в потемках... P.P.S. Cliver, хотел отправить файлы на почту, но и-нет "развозят на оленях" и на почту не грузится...План Мансарды.pdfВысота до крыши.pdf Посилання на коментар Поділитися на інших сайтах More sharing options...
lug Опубліковано: 20 грудня 2012 Поділитись Опубліковано: 20 грудня 2012 нужно менять окно, Ни в коем случае! Окно там абсолютно по делу, освещает коридоры/площадку на 2эт и лестницу. Но... Может стать проблемой доступ к нему для мытья. И чисто зрительно напрягает такой узенький "балкончик", хотелось бы именно "площадку". Посилання на коментар Поділитися на інших сайтах More sharing options...
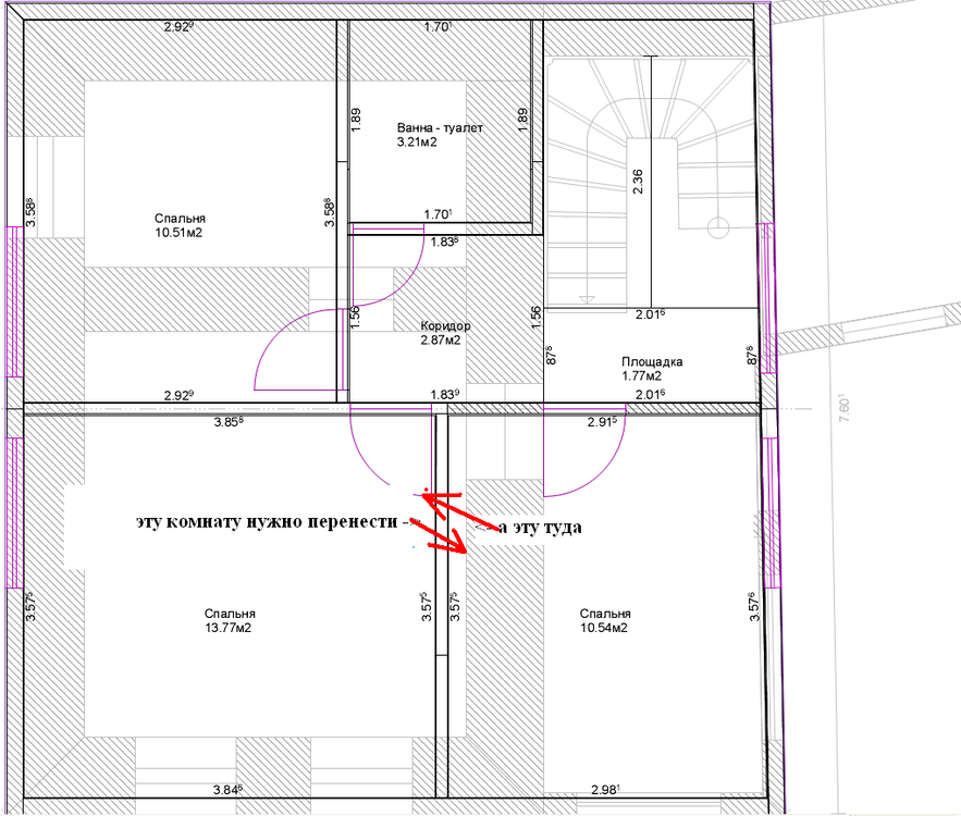
cliver Опубліковано: 21 грудня 2012 Автор Поділитись Опубліковано: 21 грудня 2012 (змінено) 1) Нужно поменять местами комнаты большую и малую. Что-бы детские были вместе. 2) + заложить в перспективе 3 одинаковых мансардных окна, на далекое будущее. 3) Двери прикинул приблизительно. Может есть еще варианты по поводу размещения дверей. На рисунке все отобразил. В остальном все гуд Еду на стройку, размеры никакие не нужны? Змінено 21 грудня 2012 користувачем cliver Посилання на коментар Поділитися на інших сайтах More sharing options...
lug Опубліковано: 21 грудня 2012 Поділитись Опубліковано: 21 грудня 2012 Мансардные окна - излишество при ваших условиях по причине дороговизны для нашего небольшого бюджета. Лишние теплопотери, дополнительные затраты, а для чего? Освещения для небольших комнат и так достаточно. По поводу свежих идей на тему дверей: 1) Вы отнимаете площадь комнат в пользу коридора. В чем смысл? Не понимаю 2)Загоняете входы в 2 комнаты в тесный закуток 0,8х0,8м. Для чего? В предыдущем варианте эти двери тоже рядом и под углом 90град друг к другу, но подход к ним прямо из коридора намного просторнее. 3)Усложняете (удорожаете) отделку дверей и стен. Как по мне, то предыдущий проект вполне удачный - всё просто, без излишеств и очень функционально. Лучше подумайте неспеша, выдержат ли старые стены ещё 1этаж, и хватит ли денег, чтоб выполнить задуманную мансарду быстро и одним куском. Тут поэтапное строительство никак не пройдет Посилання на коментар Поділитися на інших сайтах More sharing options...
cliver Опубліковано: 21 грудня 2012 Автор Поділитись Опубліковано: 21 грудня 2012 Мансардные окна - излишество при ваших условиях Лишние теплопотери, дополнительные затраты, а для чего? Освещения для небольших комнат и так достаточно. По поводу свежих идей на тему дверей: 1) Вы отнимаете площадь комнат в пользу коридора. В чем смысл? Не понимаю 2)Загоняете входы в 2 комнаты в тесный закуток 0,8х0,8м. Для чего? В предыдущем варианте эти двери тоже рядом и под углом 90град друг к другу, но подход к ним прямо из коридора намного просторнее. 3)Усложняете (удорожаете) отделку дверей и стен. Как по мне, то предыдущий проект вполне удачный - всё просто, без излишеств и очень функционально. Лучше подумайте неспеша, выдержат ли старые стены ещё 1этаж, и хватит ли денег, чтоб выполнить задуманную мансарду быстро и одним куском. Тут поэтапное строительство никак не пройдет Мансардные окна может и не будут ставится, тут главное чтобы была тех возможность, вдруг будет темновато, а стропила уже стоят и ничего не сделаешь. 1) стоит задача, поменять местами комнаты: - детские комнаты были вместе, - выход из детской комнаты сразу не на лестницу. - окна взрослой выходили во двор. - в меньшую комнату если ее оставить взрослой не влазит кровать с прикроватными тумбочками. 2) и 3) расположение дверей я не против изменить, какие будут советы? Посилання на коментар Поділитися на інших сайтах More sharing options...
lug Опубліковано: 21 грудня 2012 Поділитись Опубліковано: 21 грудня 2012 (змінено) стоит задача, поменять местами комнаты Это я поняла. Не поняла смысла такой рокировки, пока вы не изменили пост. Правильнее - оставить взрослым маленькую спальню. Взрослые там только ночуют, а ребенок в своей комнате - ЖИВЕТ : спит, делает уроки, играет, общается с друзьями. Лучше выделите большую комнату старшему ребенку. в меньшую комнату если ее оставить взрослой не влазит кровать с прикроватными тумбочкам Двуспалку можно поставить изголовьем под скос потолка. Кровать - 1,6м, тумбочки 2Х0,5м, итого 2,6 м. Всё влезет, а если нет - долой тумбочки. Взрослая спальня 3 х 3,5м - вполне достаточная, проверено многолетним опытом. Фотки надёргала в интернете. На них спальни - не больше вашей. Змінено 21 грудня 2012 користувачем lug Посилання на коментар Поділитися на інших сайтах More sharing options...
cliver Опубліковано: 21 грудня 2012 Автор Поділитись Опубліковано: 21 грудня 2012 Это я поняла. Не поняла смысла такой рокировки, пока вы не изменили пост. Правильнее - оставить взрослым маленькую спальню. Взрослые там только ночуют, а ребенок в своей комнате - ЖИВЕТ : спит, делает уроки, играет, общается с друзьями. Лучше выделите большую комнату старшему ребенку. Двуспалку можно поставить только изголовьем под скос потолка. Кровать - 1,6м, тумбочки 2Х0,5м, итого 2,6 м. Всё влезет, а если нет - долой тумбочки. (свадебный подарок, один комплект) Взрослая спальня 3 х 3,5м - вполне достаточная, проверено многолетним опытом. У нас кровать 2 на 2,35 + 2 тумбочки 0,6 итого 3,2 изголовьем под скос. + супруга хочет в спальню шкаф Дети погодки, для уроков, есть библиотека, на первом этаже под взрослой спальней (легче контролировать, помогать и пр., в учебе ) Может и поменяется что-то в будущем еще не знаю, но решили под взрослую большую комнату а детям одинаковые Посилання на коментар Поділитися на інших сайтах More sharing options...
lug Опубліковано: 21 грудня 2012 Поділитись Опубліковано: 21 грудня 2012 Ну тогда так, как вы нарисовали, только площадку увеличьте хотя б до 1х1м Посилання на коментар Поділитися на інших сайтах More sharing options...
OlegArh Опубліковано: 21 грудня 2012 Поділитись Опубліковано: 21 грудня 2012 Во как, а тут баталии...Можно и я подключусь? Безжалостно удалил идею с "косым" тамбуром, из за сложностей при стыкавке элементов стен и гипсовой бшивки. Следующий вариант (см. вложение), думаю более приемлим... Если дверь большой спальни установить параллельно фронтонам, тогда "за углом" можно и самому смастерить шкаф-купэ. Посилання на коментар Поділитися на інших сайтах More sharing options...
lug Опубліковано: 21 грудня 2012 Поділитись Опубліковано: 21 грудня 2012 удалил идею с "косым" тамбуром, из за сложностей при стыкавке элементов стен и гипсовой бшивки Гипсокартоном можно пристыковать всё что угодно к чему угодно. Лишь бы денег хватило на навороты. А может такой тамбур? Шкаф вдоль стены от детской как раз 3,2м оставит вдоль скоса. Вход - по косой. Надеюсь, мои каракули понятны Посилання на коментар Поділитися на інших сайтах More sharing options...
cliver Опубліковано: 22 грудня 2012 Автор Поділитись Опубліковано: 22 грудня 2012 Есть опасения относительно расположения дверного проема детской: 1) На днях перевозили к нам диван, поскольку спать на полу холодно стало, так не могли занести его в комнату, развернуться в коридоре. Пришлось двигать шкаф и открывать вторую половину дверей, благо что она есть. 2) Знакомый после евро ремонта, не смог занести уголок в комнату, рубали дверной проем. Исходя из опасений не войти в закутке в комнату, представил свой вариант см. фото. Посилання на коментар Поділитися на інших сайтах More sharing options...
lug Опубліковано: 22 грудня 2012 Поділитись Опубліковано: 22 грудня 2012 Во 2 варианте в дверь пройдет мебель шириной не более 560мм. В 1-м - ещё меньше Посилання на коментар Поділитися на інших сайтах More sharing options...
OlegArh Опубліковано: 22 грудня 2012 Поділитись Опубліковано: 22 грудня 2012 (змінено) Гипсокартоном можно пристыковать всё что угодно к чему угодно. Шо, правда? :D Не учел про мебель...возможно что правы насчет лабиринта со входами...... Может все же вернуться к первоначальному варианту (пост №49). Ну и пусть детские (одинаковые по размерам) разнесены по "разным углам", зато будете "пограничниками" между их ночными проказами, да и вам ближе к ванной.....;) Только дверь детской перенести в строну от "прямого попадания" на лестницу. Кстати, взрослая спальня желательна с "выглядом" на входную калитку (или ворота) - сразу видно "кто стучится в дверь моя". P.S. Cliver, какой ОКОНЧАТЕЛЬНЫЙ вариант? Косой "тамбур"? Или? Змінено 22 грудня 2012 користувачем OlegArh Посилання на коментар Поділитися на інших сайтах More sharing options...
cliver Опубліковано: 22 грудня 2012 Автор Поділитись Опубліковано: 22 грудня 2012 (змінено) Останавливаемся на варианте, детские вместе А когда дойдет дело до монтажа, может что-то еще придет в голову. В четверг станцевал финальную ламбаду на крыше пристройки . Огромная благодарность за расчеты OlegArh Краткая видео илюстрация происшедшего. www.youtube.com/watch?v=xIoSvyj1cFM&feature=youtu.be Змінено 22 грудня 2012 користувачем cliver Посилання на коментар Поділитися на інших сайтах More sharing options...
OlegArh Опубліковано: 22 грудня 2012 Поділитись Опубліковано: 22 грудня 2012 Останавливаемся на варианте, детские вместе [ATTACH]237522[/ATTACH] А когдадойдет дело до монтажа, может что-то еще придет в голову.О`k. Посилання на коментар Поділитися на інших сайтах More sharing options...
lug Опубліковано: 22 грудня 2012 Поділитись Опубліковано: 22 грудня 2012 По-моему, вы слишком далеко думаете. Я понимаю, это самое приятное - расставлять мебель в своём доме. Я у себя давно всё расставила и уже "живу" в новом доме, хотя у меня только коробка, и то без окон. Но... Это в новом строительстве можно задать в проекте размеры и получить их в натуре. При реконструкции вы не можете точно рассчитать, что получится в итоге. Конечно, общий план действий должен быть. Но вы должны быть готовы, что полученные размеры могут измениться весьма значительно. Поэтому сейчас бессмысленно разрабатывать детальный план перегородок. Будет виден периметр наружных стен - тогда и подумаете об этом. Те размеры, которые на ваших чертежах - откуда вы их взяли? Посилання на коментар Поділитися на інших сайтах More sharing options...
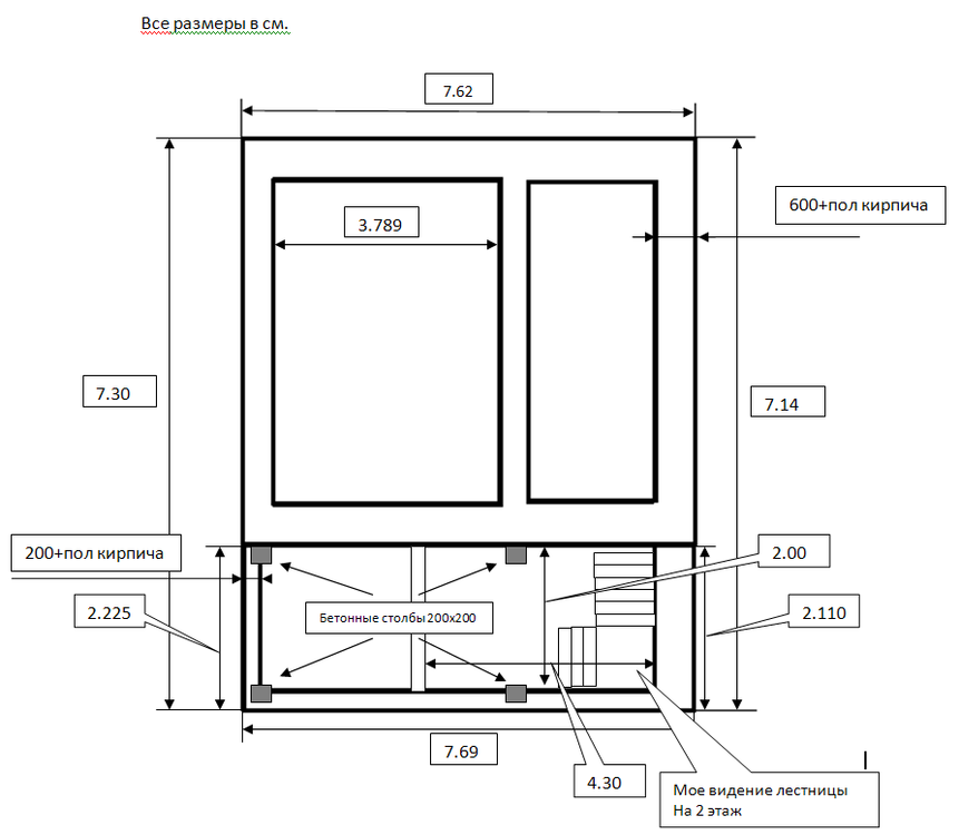
cliver Опубліковано: 22 грудня 2012 Автор Поділитись Опубліковано: 22 грудня 2012 Те размеры, которые на ваших чертежах - откуда вы их взяли? Обмерял дом. Посилання на коментар Поділитися на інших сайтах More sharing options...
lug Опубліковано: 22 грудня 2012 Поділитись Опубліковано: 22 грудня 2012 (змінено) Обмерял дом Снаружи или внутри? Всмотрелась повнимательнее в ваши размеры. Я так поняла, что вы от наружной грани стены вычитаете 150мм - толщину стены мансарды. На самом деле г\к 12,5мм +брус 150мм + ОСБ 12мм = уже 174мм. Хотя, это мелочи. Есть и другие НО... Уточните , толщину кирпичной облицовки - в полкирпича ? Змінено 22 грудня 2012 користувачем lug Посилання на коментар Поділитися на інших сайтах More sharing options...
cliver Опубліковано: 22 грудня 2012 Автор Поділитись Опубліковано: 22 грудня 2012 Снаружи или внутри? Всмотрелась повнимательнее в ваши размеры. Я так поняла, что вы от наружной грани стены вычитаете 150мм - толщину стены мансарды. На самом деле г\к 12,5мм +брус 150мм + ОСБ 12мм = уже 174мм. Хотя, это мелочи. Есть и другие НО... Уточните , толщину кирпичной облицовки - в полкирпича ? Конечно же мерил снаружи Обложено обычным красным советским кирпичом. Посилання на коментар Поділитися на інших сайтах More sharing options...
lug Опубліковано: 22 грудня 2012 Поділитись Опубліковано: 22 грудня 2012 Конечно же мерил снаружи Вот... Обложено обычным красным советским кирпичом. Вы же не собираетесь опереть каркасник вместе с утеплённой шиферной крышей на облицовку в полкирпича на неизвестном фундаменте? Чтобы приступить к сборке каркаса, как минимум, придется разобрать старую стропилку. То, что вы увидите там - на рисунке №1. Это в лучшем случае (вероятность менее 50%) - Если сохранилось всё старое дерево, - если мауэрлат не совсем круглое бревно, - и т.п. "если", которые покажет только вскрытие... то тогда новый каркас возможно поставить только на старый мауэрлат. Обратите внимание на знак вопроса красным. Более вероятно, что вам придется разобрать и стропилку, и чердачное перекрытие, зачистить торец глиняной стены и строить оттуда. Тогда смотрим рис.2 Чтобы распределить нагрузку от стен и нового перекрытия на как можно большую площадь, я бы положила на глиняную стену (вместо ж\б армопояса) максимально возможную доску 60 х 450(500)мм. Так было устроено в старом доме, который я разбирала. Этот дом до войны строил не частник, как бог на душу положит, а строительное управление, с соблюдением тех, довоенных технологий. В доску вкрутить снизу коротких саморезов и утопить их в прослойку свежей глины ( возможно с добавлением гипса, для уменьшения усадки глины, и ПВА для пластичности и лучшей адгезии к дереву.) Это уже моё ноу -хау. Обратите внимание на размер красным. Размеры стен - мои догадки по вашим словам. Стены веранды, судя по фото - совсем другие. Что ждёт вас при реконструкции - только вскрытие покажет. Вы можете последовать моим бесплатным советам, или нет - наверняка можно сказать только одно - ожидаемые размеры на ваших чертежах будут весьма отличаться от реальных. Посилання на коментар Поділитися на інших сайтах More sharing options...
cliver Опубліковано: 22 грудня 2012 Автор Поділитись Опубліковано: 22 грудня 2012 оовободится комп, отпишусь Посилання на коментар Поділитися на інших сайтах More sharing options...
cliver Опубліковано: 22 грудня 2012 Автор Поділитись Опубліковано: 22 грудня 2012 По предварительной разведке, пирог крыши таков. планирую делать вот так. завтра буду раскапывать веранду к дому от снега нужно проложить шифер потому-что течет, скоро крыша рухнет, сделаю фото стенового пирога. а в пристройку я вылил колонны на которые хочу опереть армопояс. Посилання на коментар Поділитися на інших сайтах More sharing options...
Рекомендовані повідомлення
Створіть акаунт або увійдіть у нього для коментування
Ви маєте бути користувачем, щоб залишити коментар
Створити акаунт
Зареєструйтеся для отримання акаунта. Це просто!
Зареєструвати акаунтУвійти
Вже зареєстровані? Увійдіть тут.
Увійти зараз