Artyomovets Опубліковано: 3 жовтня 2012 Поділитись Опубліковано: 3 жовтня 2012 Був варіант з іншим плануванням (див. вкладення) . выход из тамбура в топочную? это убивает любую вешалку в таком узком тамбуре что у вас за страсть к длинным и узким помещениям? Посилання на коментар Поділитися на інших сайтах More sharing options...
Музей Опубліковано: 3 жовтня 2012 Поділитись Опубліковано: 3 жовтня 2012 это убивает любую вешалку в таком узком тамбуре ТС, расставьте мебель. 1 Посилання на коментар Поділитися на інших сайтах More sharing options...
heaven Опубліковано: 3 жовтня 2012 Автор Поділитись Опубліковано: 3 жовтня 2012 Поймите, что любая планировка ограничена в первую очередь коммуникациями. Вентканалами, стояками канализации, гребенками отопления, дымоходами, электроразводкой и пр. Если Вам повезет с архитектором, то он будет последовательно и аргументированно, доказывать свою правоту. Если не повезет то с нарисует все как вы хотите, по принципу клиент всегда прав. А проблемы начнутся когда придут электрики Я это понимаю, и старался как раз сгруппировать помещения, чтобы было просто разместить коммуникации; и если мне архитектор объяснит в чем я неправ, я соглашусь с его вариантами. У меня к дому не так много требований : минимум коридоров, большая кухня и терраса, все водяные коммуникации сгруппированы , спальня на первом этаже, отдельная топочная, широкая бетонная лестница и окна во всех помещениях. Посилання на коментар Поділитися на інших сайтах More sharing options...
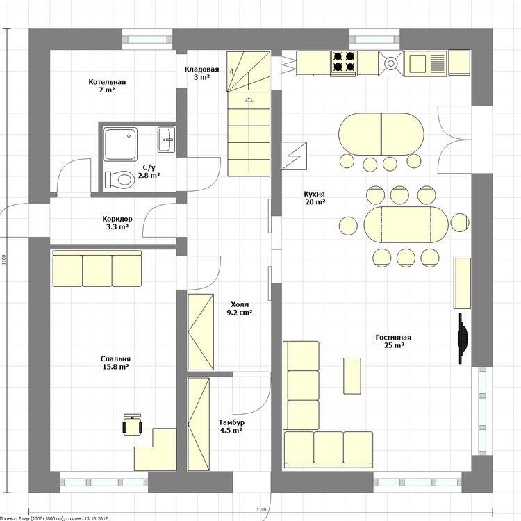
heaven Опубліковано: 13 жовтня 2012 Автор Поділитись Опубліковано: 13 жовтня 2012 Учитывая критику и дополнительно изучив мат.часть появился новый эскиз Справа от дома на всю его длину 3х метровая терраса.(Не нашел как можно рисовать террасы в Room Arranger). Доноры : z500.pl/projekt/Zx2.html#project-general-info и вариант слегка переделанный россиянами (терраса как на нем) (ссылка устарела) Критикуйте! Посилання на коментар Поділитися на інших сайтах More sharing options...
wipe Опубліковано: 13 жовтня 2012 Поділитись Опубліковано: 13 жовтня 2012 Критикуйте! Ну планировка в разы лучше, чем ваше первое решение. Я бы на первом этаже поменял местами спальню и ванную с котельной, то есть попадая в дом, сначало идет зона котельная тире ванная, а потом в дальнем левом углу спальня, но тогда второй этаж не вяжется. По идее и там надо менять зоны, спальню в левй верхний угол и ванную в нижний правый. 1 Посилання на коментар Поділитися на інших сайтах More sharing options...
Ольга В Опубліковано: 13 жовтня 2012 Поділитись Опубліковано: 13 жовтня 2012 Критикуйте! Вы на калькуляторе российского сайта их проект не рассчитывали? В Украине конечно цены поменьше, но все равно впечатляет - 200000 usd без двора, коммуникаций и отделки, с кирпичем и мягкой кровлей. Посилання на коментар Поділитися на інших сайтах More sharing options...
heaven Опубліковано: 13 жовтня 2012 Автор Поділитись Опубліковано: 13 жовтня 2012 Ну планировка в разы лучше, чем ваше первое решение. Я бы на первом этаже поменял местами спальню и ванную с котельной, то есть попадая в дом, сначало идет зона котельная тире ванная, а потом в дальнем левом углу спальня, но тогда второй этаж не вяжется. По идее и там надо менять зоны, спальню в левй верхний угол и ванную в нижний правый. [ATTACH]220975[/ATTACH] [ATTACH]220976[/ATTACH] котельная в дальней части дома удобна тем, что в случае ТТ котла - будет удобно заносить дрова + по плану котельная с помощью кладовки под лестницей связанна с кухней. Я понимаю ваш аргумент про зоны, но учитывая то, что спальня на первом этаже - гостевая, я думаю, такое расположение имеет право на жизнь. Добавлено через 2 минуты Вы на калькуляторе российского сайта их проект не рассчитывали? В Украине конечно цены поменьше, но все равно впечатляет - 200000 usd без двора, коммуникаций и отделки, с кирпичем и мягкой кровлей. Я не понимаю откуда они взяли такую сумму. Это простой дом 11х11, с обычной крышей без выкрутасов и квадратной коробкой без дополнительных углов. Я думаю эту сумму можно смело делить на 3 судя по отчетам о стройке, которые я вижу на этом форуме. Посилання на коментар Поділитися на інших сайтах More sharing options...
Ольга В Опубліковано: 13 жовтня 2012 Поділитись Опубліковано: 13 жовтня 2012 Я не понимаю откуда они взяли такую сумму. Это простой дом 11х11, с обычной крышей без выкрутасов и квадратной коробкой без дополнительных углов. Я думаю эту сумму можно смело делить на 3 судя по отчетам о стройке, которые я вижу на этом форуме. Отличный вопрос. Я - не знаю. Но думаю так: cколько лет форуму, но вроде бы никому из застройщиков и подрядчиков не удалось реализовать такую схему: Подрядчик - "платите мне X и через Y месяцев приходите принимать дом из заранее утвержденного списка материалов согласно утвержденного проекта". Заказчик - "согласен, вот деньги - я через Y месяцев подойду". Всегда возникают какие-то сложности: то геология вылезла плохая, то бригада разругалась посередине стройки, то заказчик меняет проект. Может эти странные люди с России пытаются воплотить новую бизнес-схему: плати'те мне деньги и все ваши проблемы будут моими? Но это, конечно, вряд ли. Я про таких не слышала. 1 Посилання на коментар Поділитися на інших сайтах More sharing options...
wipe Опубліковано: 13 жовтня 2012 Поділитись Опубліковано: 13 жовтня 2012 я думаю, такое расположение имеет право на жизнь. Конечно имеет, я больше свое мнение высказал, это не значит, что так надо, просто как вариант. Добавлено через 39 секунд Я думаю эту сумму можно смело делить на 3 судя по отчетам о стройке, которые я вижу на этом форуме. если самому строить, то и на 4 можете делить. 1 Посилання на коментар Поділитися на інших сайтах More sharing options...
heaven Опубліковано: 13 жовтня 2012 Автор Поділитись Опубліковано: 13 жовтня 2012 если самому строить, то и на 4 можете делить. самому не получится - руки не из того места растут , к счастью с головой все нормально, стройка будет в 15 км от дома и в 5 км от работы , так что смогу успевать и деньги зарабатывать и процесс контролировать Посилання на коментар Поділитися на інших сайтах More sharing options...
wipe Опубліковано: 13 жовтня 2012 Поділитись Опубліковано: 13 жовтня 2012 стройка будет в 15 км от дома и в 5 км от работы , так что смогу успевать и деньги зарабатывать и процесс контролировать ооо, ну тогда вам удачной стройки, это хорошо, что так все совмещается. Посилання на коментар Поділитися на інших сайтах More sharing options...
Ольга В Опубліковано: 14 жовтня 2012 Поділитись Опубліковано: 14 жовтня 2012 самому не получится - руки не из того места растут , к счастью с головой все нормально, стройка будет в 15 км от дома и в 5 км от работы , так что смогу успевать и деньги зарабатывать и процесс контролировать Тогда, ИМХО, в 70000 вместо 200000 не уложитесь. Посилання на коментар Поділитися на інших сайтах More sharing options...
heaven Опубліковано: 14 жовтня 2012 Автор Поділитись Опубліковано: 14 жовтня 2012 Тогда, ИМХО, в 70000 вместо 200000 не уложитесь. Я занимаюсь автоматизацией и ведением бухгалтерского и управленческого учета, поэтому считать деньги и составлять сметы я умею (а жена у меня бухгалтер). Так что за разумное финансирование стройки я не переживаю .И в 70000 без внутренней и внешней отделки я точно впишусь. Посилання на коментар Поділитися на інших сайтах More sharing options...
Ольга В Опубліковано: 14 жовтня 2012 Поділитись Опубліковано: 14 жовтня 2012 ... И в 70000 без внутренней и внешней отделки я точно впишусь. Так как вы профи в учете и ваша стройка скорее всего начнется весной следующего года предлагаю пари. Кто проигрывает вносит на счет Назарчика 200$, а кто выигрывает - 100$. Условия пари: 1-вы ничего не делаете своими и руками или руками родственников. Только нанимаете и контролируете подрядчиков. 2- весной 2013 у вас голый участок 3- осенью 2013 года у вас стоит дом за 70000$, в расходы которого входят: - геодезия(?) - проект с согласованиями(?) - вода и туалет для подрядчиков - вагончик для жилья подрядчиков(?) - подключение к эл-ву для строи-ва дома - организация подъезда техники и подвоза материалов(?) - раскопки грунта для фундамента - монолитный ленточный фундамент на глубину промерзания без подвала - вывоз лишнего грунта - дренаж вокруг фундамента - обратная засыпка фундамента - монолитные крыльцо и терраса - кирпичные стены толщиной 38 см без утепления и штукатурки - пол 1-го и 2-го этажей - сборные жб плиты без теплоизоляции - потолок 2-го этажа - балки дерево с огнебиозащитой без теплоизоляции - сделаны вентканалы и дымоходы - крыша крыльца, террасы и дома из мягкой кровли с подшивкой пластиком - водосточная система - окна - пластик стеклопакеты - входная дешевая китайская дверь - доставка и разгрузка материалов - возможно пропавшие строй-лы из-за отсутствия забора 4- ведете ветку с фото P.S. Кстати, у вас в чистоте - будут низкие потолки 1-го и 2-го этажа. И внутреннюю стену рекомендуют делать тоже - 38 см. Посилання на коментар Поділитися на інших сайтах More sharing options...
heaven Опубліковано: 14 жовтня 2012 Автор Поділитись Опубліковано: 14 жовтня 2012 (змінено) Так как вы профи в учете и ваша стройка скорее всего начнется весной следующего года предлагаю пари. Кто проигрывает вносит на счет Назарчика 200$, а кто выигрывает - 100$. Пари это отлично, только мы говорили о коробке дома, поэтому стоимость подвода электричества, воды и стоимость проекта и геологии в смету входить не будут, т.к. эти показатели достаточно индивидуальны. Организация жилья для строителей у меня скорее всего будет бесплатная(пара бутылок коньяка). Внешние стены будут или из керамблока "Русиния" 38 или 45 или из газоблока Стоунлайт 500 400мм.Внутренние несущие из керамблока 21 (500х120х210 мм) Остальные в полкирпича. Учтите, что в радиусе 1го км. от участка находится 2е лесопилки - поэтому дерево будет достаточно дешевым. Крыша скорее всего будет не мягкой, а из металлочерепицы. Также не могу сейчас вам точно сказать об устройстве фундамента и перекрытий. Предлагаю после разработки и утверждения проекта (1,5-2,5 месяца) вернуться к этому вопросу с гораздо большей долей конкретики. В целом, не считая стоимости проекта, воды и электрики, с вашими условиями я согласен. Добавлено через 29 минут P.S. Кстати, у вас в чистоте - будут низкие потолки 1-го и 2-го этажа. И внутреннюю стену рекомендуют делать тоже - 38 см. объясните пожалуйста, почему ? Змінено 14 жовтня 2012 користувачем heaven Посилання на коментар Поділитися на інших сайтах More sharing options...
Ольга В Опубліковано: 14 жовтня 2012 Поділитись Опубліковано: 14 жовтня 2012 1- я взяла за образец то, что предлагают на российском сайте по деньгам и материалам, вроде бы их проект входил в стоимость их строи-ва 2- хотя стройка по согласованному проекту с геологией должна быть вам симпатична по роду деятельности 3- по воде и эл-ву- я имела в виду не покупку 15 квт и бурения скважины. А мин. расходы на это только для начала стройки. 4- опирание двух жб плит на керамоблок шириной 21 см не очень правильно 5- у нас дом, как у вашего проекта - без подвала. Надо теплоизолировать пол 1-го этажа - это мин 10см пенопласта(мы делали 15см)+6-7 см стяжка+чистовой пол. На 2-м этаже пол такой же, но без пенопласта. И потолки - если гипсокартон или натяжные, то еще минус 7см 6- рекомендую потолки в чистоте - 2.85 м 7- буду ждать готового проекта 1 Посилання на коментар Поділитися на інших сайтах More sharing options...
heaven Опубліковано: 15 жовтня 2012 Автор Поділитись Опубліковано: 15 жовтня 2012 1- я взяла за образец то, что предлагают на российском сайте по деньгам и материалам, вроде бы их проект входил в стоимость их строи-ва 2- хотя стройка по согласованному проекту с геологией должна быть вам симпатична по роду деятельности 3- по воде и эл-ву- я имела в виду не покупку 15 квт и бурения скважины. А мин. расходы на это только для начала стройки. 4- опирание двух жб плит на керамоблок шириной 21 см не очень правильно 5- у нас дом, как у вашего проекта - без подвала. Надо теплоизолировать пол 1-го этажа - это мин 10см пенопласта(мы делали 15см)+6-7 см стяжка+чистовой пол. На 2-м этаже пол такой же, но без пенопласта. И потолки - если гипсокартон или натяжные, то еще минус 7см 6- рекомендую потолки в чистоте - 2.85 м 7- буду ждать готового проекта 1.Договорились. 2.Я и собираюсь строиться по согласованному проекту, просто считаю что стоимость проекта вещь индивидуальная и в смету по стройке не обязана входить(но это не те деньги, чтобы дискутировать) 3.Понял. 4. Задумался. 5.Согласен. 6.Планирую первый 2.85, второй 2.55 7. Посилання на коментар Поділитися на інших сайтах More sharing options...
Рекомендовані повідомлення
Створіть акаунт або увійдіть у нього для коментування
Ви маєте бути користувачем, щоб залишити коментар
Створити акаунт
Зареєструйтеся для отримання акаунта. Це просто!
Зареєструвати акаунтУвійти
Вже зареєстровані? Увійдіть тут.
Увійти зараз