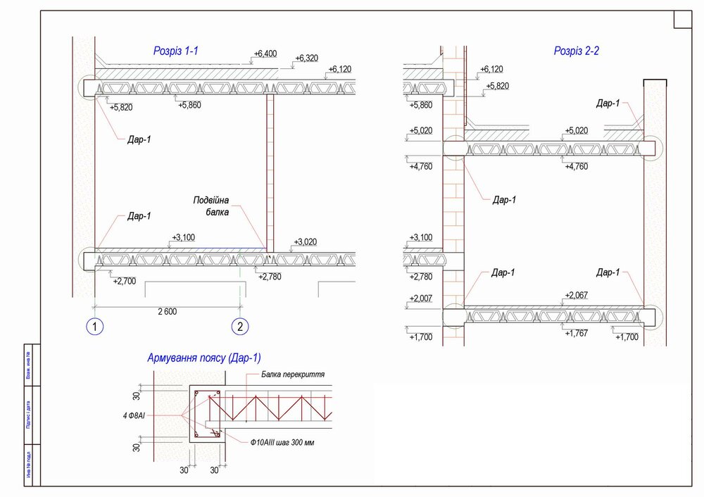
Zak Опубліковано: 4 жовтня 2012 Поділитись Опубліковано: 4 жовтня 2012 Добрый день, форумчане! Имеется проект дома с помещениями в разных уровнях (топочная на 80 см. ниже основного уровня). Стены из газобетона, перекрытия терива. Из-за несовпадения высоты газоблоков (20 см) и высоты армопояса перекрытия (30 см) сбивается перевязка газоблоков в промежутке между перекрытием топочной и основным перекрытием (тоже самое и на втором этаже). Подскажите, пожалуйста, как разрулить данную ситуацию? Чертежи прилагаются. Спасибо. Посилання на коментар Поділитися на інших сайтах More sharing options...
Grip Опубліковано: 4 жовтня 2012 Поділитись Опубліковано: 4 жовтня 2012 не вдаваясь сильно в подробности, скажу, что обычно для кирпичной кладки (с газобетоном несущим не работал) все монолитные пояса принимаются кратно высоте рядов кладки (7-7.5см), все сборные перемычки и плиты перекрытий также к этому подвязаны (65 ,140 и 220 мм). а по развертке стены у вас вообще масло масляное - почему армопояс не выполняет функцию перемычки? 1 Посилання на коментар Поділитися на інших сайтах More sharing options...
Drosselbeere Опубліковано: 5 жовтня 2012 Поділитись Опубліковано: 5 жовтня 2012 Добрый день, форумчане! Имеется проект дома с помещениями в разных уровнях (топочная на 80 см. ниже основного уровня). Стены из газобетона, перекрытия терива. Из-за несовпадения высоты газоблоков (20 см) и высоты армопояса перекрытия (30 см) сбивается перевязка газоблоков в промежутке между перекрытием топочной и основным перекрытием (тоже самое и на втором этаже). Подскажите, пожалуйста, как разрулить данную ситуацию? Чертежи прилагаются. Спасибо. почему вас смущает данная ситуация? на втором монолит поясе все выровняется , а м.п. все исправит а по существу, блок имеет свою же мод. систему и можно додумать доборный блок. я бы еще рассмотрел выполнения монолит пояса и перемычек в U блоках как это предлагает компания Аэрок или Удк. ну и самый интересный вопрос, как вы собираетесь утеплять ЖБ м. пояса Посилання на коментар Поділитися на інших сайтах More sharing options...
Stanitskii Опубліковано: 5 жовтня 2012 Поділитись Опубліковано: 5 жовтня 2012 простеночный блок 10-ка горизонтально? 1 Посилання на коментар Поділитися на інших сайтах More sharing options...
Zak Опубліковано: 5 жовтня 2012 Автор Поділитись Опубліковано: 5 жовтня 2012 почему вас смущает данная ситуация? на втором монолит поясе все выровняется , а м.п. все исправит Я не знаю насколько критично наличие подобного участка и допустимо-ли вообще, потому и хочу прояснить этот момент. Кстати что такое м.п.? а по существу, блок имеет свою же мод. систему и можно додумать доборный блок. я бы еще рассмотрел выполнения монолит пояса и перемычек в U блоках как это предлагает компания Аэрок или Удк. ну и самый интересный вопрос, как вы собираетесь утеплять ЖБ м. пояса Перекрытие терива, пояс является составной его частью, насколько я понял U-блоки там не подойдут. Что касается утепления, то разрез есть на четвертой картинке, с той лишь разницей, что я туда добавлю 4-5 см ЭППС. Добавлено через 8 минут а по развертке стены у вас вообще масло масляное - почему армопояс не выполняет функцию перемычки? Я не знаю. Я просто привязал высоты проемов из проекта к высоте газоблоков, получилось то что на картинке. Посилання на коментар Поділитися на інших сайтах More sharing options...
Рекомендовані повідомлення
Створіть акаунт або увійдіть у нього для коментування
Ви маєте бути користувачем, щоб залишити коментар
Створити акаунт
Зареєструйтеся для отримання акаунта. Це просто!
Зареєструвати акаунтУвійти
Вже зареєстровані? Увійдіть тут.
Увійти зараз