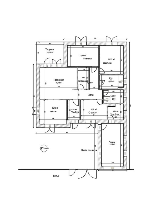
Andrey_Don Опубліковано: 14 листопада 2012 Поділитись Опубліковано: 14 листопада 2012 Добрый день! Решил поделиться мыслями о проекте одноэтажного дома в г.Донецк. Как и у большинства форумчан, у нашей маленькой семьи возникло осознанное желание жить в доме, а не в квартире. Приватный дом для нас – это, по сути, «квартира на земле» без соседей над головой и за стенкой, с не очень большим (необременительным) участком, с возможностью разбить клумбы, повозиться в саду, позавтракать на террасе и беспрепятственно парковать машину практически под входной дверью. Важный момент – мы не готовы жить за городом, и участок выбирался исключительно в городской черте с близостью к инфраструктуре (благо, специфика Донецка позволяла выбрать). Первый шаг сделан - есть участок размером 6,6 соток с ветхим домом под снос. Плюсы: 1. Хорошее расположение (недалеко от центра города, дончане, я думаю, знают – район за Кальмиусом между пр.Мира и б.Шевченко). 2. Хорошие соседи, которые буквально перекрестились, избавившись от прежнего асоциального «хозяина». 3. Все коммуникации заведены (газ, свет, вода, канализация). Есть даже городской телефон (хотя кому он сейчас особо нужен). Газовая труба по улице подземная – интересно и непривычно. 4. Похоже, хорошая геология (высоко от реки) - под домом глубокий подвал, за десятилетия остался сухим без всякого присмотра. Минусы 1. Участок узкий и длинный (примерно 16,5 м на 40 м), но там все такие – разве что два купить, но это уже слишком по деньгам. Практически все дома в округе, даже новострои, стоят в метре-двух от своих заборов – как я понял, строят, собирая подписи соседей о том, что те «не возражают». 2. Участок порядком запущен и застроен, но это решаемо. После долгих раздумий, штудирования форума и просмотра десятков всевозможных проектов, пожелания к дому свелись к следующему: 1. Одноэтажный для 3-4-х человек. Просьба не бросать тапками и комментариями, что на 6,6 соток приличный одноэтажный дом разместить невозможно 2. Три спальни и два полноценных санузла. 3. Пристроенный к дому гараж на одно авто с прямым выездом на улицу – чисто из экономии пятна застройки. Доступ в гараж из дома не принципиален. 4. Место для второго авто под навесом. 5. Без лишних окон по бокам – участок узкий. Глухая правая сторона – она северная (только небольшие оконца). Гараж тоже справа. 6. Терраса с задней стороны дома с выходом из гостиной или кухни. Почему одноэтажный? 1. На форуме много комментариев о недостатках 2-этажек от тех, кто в них живет, в том числе от очень толковых застройщиков. Кроме того, лично знаю падавших с лестницы с разными последствиями, а также пожилых людей, для которых лестница в тягость. 2. Большая площадь не нужна. Бильярдную или спортзал лучше посещать вне дома, спальни по 25 кв.м. я не понимаю, спальня «для гостей» или «про запас» также ни к чему. 3. Люблю близость к земле и окна в сад, а не «над садом». Смотреть со 2 этажа в этом районе Донецка особо не на что. 4. Меньше возни с мощным фундаментом, плитами перекрытия, высотными работами. 5. Проще система отопления, склоняюсь к теплому полу процентов на 80-90 площади. 6. Не затенять свой и чужие участки, не вызывать лишний «интерес» у прохожих. Эскиз составил на основе двух проектов Муратора: «Хороший климат» и «Обдуманный III» proekty.muratordom.com.ua/projekt_khoroshii-klimat,2179,1,0.htm?frm_search=1&id_grupy=0&nazwa=%D1%85%D0%BE%D1%80%D0%BE%D1%88%D0%B8%D0%B9+%D0%BA%D0%BB%D0%B8%D0%BC%D0%B0%D1%82&powierzchnia_od=%D0%BE%D1%82&powierzchnia_do=%D0%B4%D0%BE&powierzchnia_zab_od=%D0%BE%D1%82&powierzchnia_zab_do=%D0%B4%D0%BE&typ_budynku_dom=brak_dom&typ_budynku_garaz=brak_garaz&x=0&y=0&nr=0 proekty.muratordom.com.ua/projekt_obdumannyi-variant-iii,1282,1,0.htm?frm_search=1&id_grupy=0&nazwa=%D0%BE%D0%B1%D0%B4%D1%83%D0%BC%D0%B0%D0%BD%D0%BD%D1%8B%D0%B9&powierzchnia_od=%D0%BE%D1%82&powierzchnia_do=%D0%B4%D0%BE&powierzchnia_zab_od=%D0%BE%D1%82&powierzchnia_zab_do=%D0%B4%D0%BE&typ_budynku_dom=brak_dom&typ_budynku_garaz=brak_garaz&x=0&y=0&nr=2 После адаптации в прекрасной программке Sweet Home 3D получился одноэтажный дом шириной 13 метров и длиной 12 метров (по стороне без гаража), 18 метров (со стороны гаража). Располагается ближе к улице, смещен к правой (северной) стороне участка. Гараж выходит непосредственно на улицу. Кроме гаражных ворот, на улицу выходят еще одни ворота в заборе – это для второго авто либо гостевой стоянки. Расстановку мебели также прикинул - вроде все поместилось Посилання на коментар Поділитися на інших сайтах More sharing options...
DVIJOK Опубліковано: 14 листопада 2012 Поділитись Опубліковано: 14 листопада 2012 Много писанины, мало главного. Проект никакой, не смотря на мураторы. Во-первых не мешало бы нанести на план размеры. Во-вторых сделать его более чистым, а то смещение стен доставляет - сплошные углы. В третьих спальня и кладовка явно не на своих местах. Спальня зажата между тамбуром, котельной и гаражом, да еще окно выходит на гостевик. Узкие коридоры(холлом это помещение назвать сложно), в которые открываются двери из санузла перегораживая все на своем пути. Зачем санузла два, тоже не ясно - если это разделенный санузел, тогда второй должен быть в два раза меньше. Тамбур действительно как тамбур, скорее всего раздеться в нем будет сложно. Об архитектуре дома я уже не говорю. Посилання на коментар Поділитися на інших сайтах More sharing options...
vadimv Опубліковано: 15 листопада 2012 Поділитись Опубліковано: 15 листопада 2012 Я бы в гостиной сделал еще одно окно на юг, зимой солнце будет освещать помещение, а без него там будет темновато. А вообще поддерживаю ваш подход, согласен почти со всем сказанным. 1 Посилання на коментар Поділитися на інших сайтах More sharing options...
Andrey_Don Опубліковано: 15 листопада 2012 Автор Поділитись Опубліковано: 15 листопада 2012 DVIJOK, спасибо за содержательный комментарий. По размерам - понятно, учтено! Смещение стен продиктовано размещением мебели и (особенно) сантехники. По "зажатой" спальне - согласен на 100%, это как бы спальня-кабинет, поэтому такой компромисс. Понимаете, в условиях узкого участка у меня был вариант либо отказаться от веранды, либо сделать окно из спальни на северный забор, что было бы еще хуже. Кладовка там же, где и в проекте Муратора "Обдуманный-3". Кстати, из нее планируется лаз на чердак. Коридоры шириной примерно 1300 мм - этого мало? Если в них ни шкафов, ни полочек. Открытие двери в с/у можно сделать внутрь. На счет 2 санузлов - они такие, потому что предполагается в одном ванная, в другом душевая. У меня так сейчас в квартире, и на второй с/у только с унитазом и маленькой раковиной я уже не соглашусь Ширину прихожей - согласен, стоит увеличить хотя бы до 1800 мм (с нынешних 1600). Архитектура дома будет примерно такая, позорной ее не считаю )) (ссылка устарела) vadimv, по окну на юг - пожалуй, Вы правы, хотя между кухней и гостинной будет светопропускающая раздвижная перегородка, которая почти всегда будет открыта. Она планируется достаточно широкой, поэтому расчет делается и на инсоляцию из кухни, а она выходит на юго-восток. Посилання на коментар Поділитися на інших сайтах More sharing options...
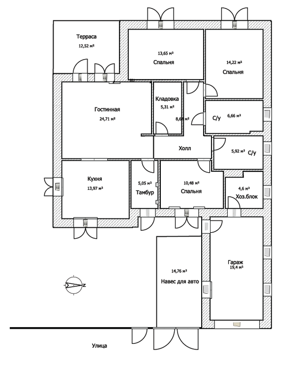
Andrey_Don Опубліковано: 15 листопада 2012 Автор Поділитись Опубліковано: 15 листопада 2012 Вот проект с учетом изменений. Доп.окно в зале пока не делал. Посилання на коментар Поділитися на інших сайтах More sharing options...
-enjoy- Опубліковано: 15 листопада 2012 Поділитись Опубліковано: 15 листопада 2012 (змінено) 1. Кроме того, лично знаю падавших с лестницы с разными последствиями падают и на ровной плоскости, это не аргумент. но это ваше имхо 4. Меньше возни с мощным фундаментом одинаково возни....длинную палку легче сломать,короткую сложней. У Вас длинна фунд-та вместе с гаражем 18м. так что мощный по любому. 5. Проще система отопления, склоняюсь к теплому полу процентов на 80-90 площади. лучше комплексно с батареями .....на заметку www.stroimdom.com.ua/forum/showpost.php?p=1892713&postcount=591 получился одноэтажный дом шириной 13 метров и длиной 12 метров получился, но зато углов немеряно + ни одной капстены да еще ни одна внутр.стенка не доходит ровно от начала до конца,везде одни зигзаги. На что стропила опираться будут??? Змінено 15 листопада 2012 користувачем -enjoy- 1 Посилання на коментар Поділитися на інших сайтах More sharing options...
Andrey_Don Опубліковано: 15 листопада 2012 Автор Поділитись Опубліковано: 15 листопада 2012 падают и на ровной плоскости, это не аргумент. но это ваше имхо Ок Холивар на тему 1 vs 2 этажа тут ни к чему, на форуме есть целые темы об этом. ни одной капстены да еще ни одна внутр.стенка не доходит ровно от начала до конца,везде одни зигзаги. На что стропила опираться будут??? Спасибо, что обратили внимание. Это любительский набросок, для решения инженерных задач будет нанят архитектор - вероятно, планировка будет подкорректирована. У Вас длинна фунд-та вместе с гаражем 18м. так что мощный по любому. Если все будет так неоправданно дорого, тогда гараж "в сад". Тогда вообще можно будет взять зеркальную версию Z106 с минимальными изменениями. Он мне тоже приглянулся изначально: z500.com.ua/ru/project/z106 А машины ставить под навес. Просто навесы из поликарбоната, как я понял, стоят 5-10 тыс.долл, лучше уж гараж построить Лично как по мне, Вам бы подошел такой проект Спасибо, но не подошел бы. Этот проект у меня на участок по ширине влезет только без террасы. Да и встраивать гараж в плоскость дома я бы не хотел. Про радиаторы - согласен. Посилання на коментар Поділитися на інших сайтах More sharing options...
-enjoy- Опубліковано: 15 листопада 2012 Поділитись Опубліковано: 15 листопада 2012 я только начал вспоминать и понимать, что мой родственник проект Обдуманный уже делал в архитектора в прошлом году. А я то смотрю, что сильно похож и давал ему те же советы. Посилання на коментар Поділитися на інших сайтах More sharing options...
Andrey_Don Опубліковано: 15 листопада 2012 Автор Поділитись Опубліковано: 15 листопада 2012 я только начал вспоминать и понимать, что мой родственник проект Обдуманный уже делал в архитектора в прошлом году. А я то смотрю что больно похож и давал ему те же советы. Исправил. Все по кругу ходим )) Добавлено через 2 минуты Кстати, а где в "Обдуманном" капитальные стены? Да, зигзагов меньше (но тоже есть), а несущих стен внутри я вообще не вижу. (ссылка устарела) Посилання на коментар Поділитися на інших сайтах More sharing options...
-enjoy- Опубліковано: 15 листопада 2012 Поділитись Опубліковано: 15 листопада 2012 Все по кругу ходим )) не архитектор, не дизайнер, не проталкиваю ничьи проекты и вообще по роду своей деятельности отношения к этому не имею. Кстати, а где в "Обдуманном" капитальные стены?Да, зигзагов меньше (но тоже есть), а несущих стен внутри я вообще не вижу. поэтому и делал изменения. Присмотритесь внимательно proekty.muratordom.com.ua/odnoetazhnyie/projekt_obdumannyi,555,1,20.htm?nr=66 в спальне №8 справа возле двери квадратик, такой же в коридорчике до кухни + еще один слева у двери в ванную. Это монолитные колонны. Вот так придеться делать www.stroimdom.com.ua/forum/showpost.php?p=1017773&postcount=100 , а потом делать монолитный армопояс под стропилку www.stroimdom.com.ua/forum/showpost.php?p=1059939&postcount=125 + www.stroimdom.com.ua/forum/showpost.php?p=1077851&postcount=135 + далее по теме посмотрите. Оно Вам надо? Да. это решение проблемы,это мощно,но это дорого. Удачи. 1 Посилання на коментар Поділитися на інших сайтах More sharing options...
Andrey_Don Опубліковано: 15 листопада 2012 Автор Поділитись Опубліковано: 15 листопада 2012 Вот так придеться делать Спасибо, Вы мне очень помогли. Посилання на коментар Поділитися на інших сайтах More sharing options...
Andrey_Don Опубліковано: 15 листопада 2012 Автор Поділитись Опубліковано: 15 листопада 2012 На самом деле, если навес на 2 машины будет стоить ощутимо дешевле, чем пристроенный гараж + навес, как я отобразил на эскизе - выберу классический "прямоугольник" типа z106 от z500. Он и по смете не сильно дорогой, и с несущими стенами там полный порядок Перед домом - навес для авто, а для садового инвентаря - небольшой хоз.блок на заднем дворе. Посилання на коментар Поділитися на інших сайтах More sharing options...
-enjoy- Опубліковано: 15 листопада 2012 Поділитись Опубліковано: 15 листопада 2012 - выберу классический "прямоугольник" типа z106 от z500. ух как вас носит от одного проекта к другому. Вам для начала лучше/нужно указать участок по сторонам света. А то потом в санузлах солнце, в гостинной тьма... В этом Z-проекте топка- два санузла раскиданы по дому....что не есть гуд. Есть лучшие проекты. Посилання на коментар Поділитися на інших сайтах More sharing options...
Andrey_Don Опубліковано: 15 листопада 2012 Автор Поділитись Опубліковано: 15 листопада 2012 ух как вас носит от одного проекта к другому. Принципиальное отличие этих проектов с непрофессиональной точки зрения только одно - с пристроенным с фасада гаражом или без. Добавлено через 1 минуту указать участок по сторонам света Сделал это в первом сообщении. Если смотреть с фасада, то слева юг, справа север, соответственно, с фасада - восток, задний двор - запад. z106 - разумеется, зеркальный вариант. Посилання на коментар Поділитися на інших сайтах More sharing options...
-enjoy- Опубліковано: 15 листопада 2012 Поділитись Опубліковано: 15 листопада 2012 www.archon.com.ua/proekt_doma/DERENIE/m49f9a108a8611?cat_id=1073 в планах сделайте зеркало.....тогда под стороны света идеал. этот проект очень хорош тем,что при небольших габаритах почти все есть,но самое главное это компактное расположение узлов коммуникаций. Кухня-топка-ванная за одной стеной = удобная разводка канализации,воды и отопления + один вентиляц.стояк,а не раскиданы по всей крыше. Посилання на коментар Поділитися на інших сайтах More sharing options...
Andrey_Don Опубліковано: 15 листопада 2012 Автор Поділитись Опубліковано: 15 листопада 2012 Компактность коммуникаций - это хорошо, но не подходит - маленькая площадь, один с/у и т.д. Посилання на коментар Поділитися на інших сайтах More sharing options...
Ter Опубліковано: 15 листопада 2012 Поділитись Опубліковано: 15 листопада 2012 (ссылка устарела) еще посмотрите. Может что для себя почерпнете. ЗЫ: Естессно не реклама. Посилання на коментар Поділитися на інших сайтах More sharing options...
Рекомендовані повідомлення
Створіть акаунт або увійдіть у нього для коментування
Ви маєте бути користувачем, щоб залишити коментар
Створити акаунт
Зареєструйтеся для отримання акаунта. Це просто!
Зареєструвати акаунтУвійти
Вже зареєстровані? Увійдіть тут.
Увійти зараз