ligio Опубліковано: 14 липня 2014 Поділитись Опубліковано: 14 липня 2014 Не очень понимаю, как лучше сделать дверцы над мойкой, чтобы они были поменьше.полюбому пересекаются и те что на другой стене мешают, как вообщем вся конструкция справа. теперь поставьте в уголок возле мойки манекен человека и Вы увидите где у Вас будут синяки и ссадины. на форуме вроде обсуждалась угловая мойка(попробуйте поиском по мебельному разделу) формат не 60*60 (если не изменяет память 80*80 и срезаный угол) и верхние ящики на стандартном удалении от края. ЗЫ: отступ слева от варочной поверхности можно взять меньше 30см хватит для кастрюли. добавил просмотрев размеры: собственно говоря по размерам есть вопросы между столом и шкафчиками у вас 450(стандартно 600) над варочной надо еще больше. Посилання на коментар Поділитися на інших сайтах More sharing options...
KuN Опубліковано: 15 липня 2014 Поділитись Опубліковано: 15 липня 2014 Добрый день. Может Вы сможете помочь советом. Вот первый этаж квартиры - Второй этаж - Там где синий прямоугольник это отсутствующее перекрытие. В чем суть проблемы: 1) Нужно поставить лестницу на второй этаж (примерно как выделено зеленым), желтым выделен проём в будущем перекрытии для выхода на этаж. 2) На первом этаже иметь адекватную гостинную, поэтому лестница по длинной стороне не подходит, она съедает всю комнату. 3) На втором этаже слева сверху планируется кладовка, слева снизу ванная комната, всё что справа - две спальни. Конкретно не можем придумать как вывести лестницу и как сделать входы в спальни, учитывая что это мансардный этаж и справа высота от 1.20м. Может подскажите что-то.. Посилання на коментар Поділитися на інших сайтах More sharing options...
Leesleer Опубліковано: 16 липня 2014 Поділитись Опубліковано: 16 липня 2014 Очередной раз пытаюсь создать что-то более менее удобное. Чего не хватаем такой компоновке? Что будет неудобно? Посилання на коментар Поділитися на інших сайтах More sharing options...
ligio Опубліковано: 16 липня 2014 Поділитись Опубліковано: 16 липня 2014 Что будет неудобно?убедить вас не ставить угол- нет возможности, посему все неудобства связаные с этим перечислять нет надобности. из остальных минусов -не очень большая рабочая зона 750. -микроволновка высоковато. у меня так же и наверх поднимать(особенно жидкое) не очень удобно про жену вообще не говорю. возможно(я не мебельщик) можно опустить ниже микроволновку. -вытяжку берите с глубиной поменьше например встроенную 1 Посилання на коментар Поділитися на інших сайтах More sharing options...
k.alena Опубліковано: 16 липня 2014 Поділитись Опубліковано: 16 липня 2014 1. Духовку и микроволновку опускайте на один шкаф вниз. И смотрятся они подряд хорошо, и опустится микроволновка (писали выше - неудобно, я только поддержу). А духовка тоже ниже будет удобнее. 2. Дверцы в нижних шкафах удобны только под мойкой. Ваши 2 шкафа по 30 см будут крайне неудобны в эксплуатации. Ставьте либо карго, либо выдвижные ящики. 3. Про вытяжку тоже согласна с ligio - она у Вас все равно 60см к чему этот огород? Сложности мебельщикам и смотрится не очень... в шкаф ее. 4. В моей кухне есть навесной угловой шкаф - неудобен. Лучше уж угловой с 2-мя дверками. Но это мое личное... 5. Тоже мое имхо - я бы верхние шкафы так не кроила на вертикальные и горизонтальные. Либо те, либо те. Смотреться будет лучше. 1 Посилання на коментар Поділитися на інших сайтах More sharing options...
Leesleer Опубліковано: 17 липня 2014 Поділитись Опубліковано: 17 липня 2014 (змінено) 3. Про вытяжку тоже согласна с ligio - она у Вас все равно 60см к чему этот огород? Сложности мебельщикам и смотрится не очень... в шкаф ее. В шкаф это вы хорошо придумали... Это что-то вроде такой? А вообще верхние вертикальные шкафчики какие удобнее 720мм или 900мм ? Чуть переделал... Змінено 17 липня 2014 користувачем Leesleer Посилання на коментар Поділитися на інших сайтах More sharing options...
k.alena Опубліковано: 17 липня 2014 Поділитись Опубліковано: 17 липня 2014 Это что-то вроде такой? Именно. Высота шкафов определяется необходимостью (надо хранить побольше, а места мало...). У меня 900, на верхнюю полку добираюсь со стульчиком Но там лежит то, что нужно совсем не часто (посуда "для гостей", в другом шкафчике термосы и прочие баночки/коробочки, с которыми ездим отдыхать, т.е. раз/два в год). Высота потолков позволяет, почему нет? Посилання на коментар Поділитися на інших сайтах More sharing options...
ligio Опубліковано: 17 липня 2014 Поділитись Опубліковано: 17 липня 2014 А вообще верхние вертикальные шкафчики какие удобнее 720мм или 900мм ?верхние ящики практически в любом случае недоступны(быстро). но недоступны не есть бесполезны всегда есть вещи не частого использования.я делал по максимуму- до потолка, точнее до короба вент канала. у меня ящики комбинированые(горизонтальные , вертикальные). самые востребованые сушка и ящик для кофе-чай. здесь уделите особое внимание, а именно высота полочек и наполнение(у меня сушку прикрутили очень высоко тупо посредине ящика, высоко неудобно и заняло все место, сверху можно было сетку для чашек кинуть- буду переделывать). зы: над рабочей зоной поднимите ящик, там должно быть место. зы2: апендикс столешницей для каких целей? и где у вас холодильник(план помещения)? зы3:www.stroimdom.com.ua/forum/showthread.php?t=21994&page=18 вот тут похожая кухня Посилання на коментар Поділитися на інших сайтах More sharing options...
Leesleer Опубліковано: 17 липня 2014 Поділитись Опубліковано: 17 липня 2014 верхние ящики практически в любом случае недоступны(быстро). но недоступны не есть бесполезны всегда есть вещи не частого использования.я делал по максимуму- до потолка, точнее до короба вент канала. у меня ящики комбинированые(горизонтальные , вертикальные). самые востребованые сушка и ящик для кофе-чай. здесь уделите особое внимание, а именно высота полочек и наполнение(у меня сушку прикрутили очень высоко тупо посредине ящика, высоко неудобно и заняло все место, сверху можно было сетку для чашек кинуть- буду переделывать). зы: над рабочей зоной поднимите ящик, там должно быть место. зы2: апендикс столешницей для каких целей? и где у вас холодильник(план помещения)? зы3:www.stroimdom.com.ua/forum/showthread.php?t=21994&page=18 вот тут похожая кухня Холодильник с другой стороны вместе со столиком. Между нихними и верхними ящиками обычно 450мм. Это нормально? или лучше сделать больше? Мне кажется этого мало. Посилання на коментар Поділитися на інших сайтах More sharing options...
k.alena Опубліковано: 17 липня 2014 Поділитись Опубліковано: 17 липня 2014 Между нихними и верхними ящиками обычно 450мм. Это нормально? или лучше сделать больше? Мне кажется этого мало. У меня 560 мм и это по нормам кухонщиков маловато. Они делают 600 мм. Но я 1.60м и мне удобно. Выше возникали бы трудности доставать что-то уже со второй полки. Делаем же для себя ))) Посилання на коментар Поділитися на інших сайтах More sharing options...
Докторица Опубліковано: 19 липня 2014 Поділитись Опубліковано: 19 липня 2014 Очередной раз пытаюсь создать что-то более менее удобное. Чего не хватаем такой компоновке? Что будет неудобно? А какой дизайн кухни? ( что-то пропустила). Почему бы не сделать дверцы горизонтально по 600 мм. Духовой шкаф разместить под варочной поверхностью. На узкую поверхность с право от мойки установить микроволновку, и у Вас появиться ещё немного рабочей поверхности. Верхние шкафы тоже симметрично нижним, горизонтально, дверцы открываются вверх. Вытяжку по углом 45грд. Добавлено через 3 минуты Между нихними и верхними ящиками обычно 450мм. Это нормально? или лучше сделать больше? Мне кажется этого мало. У меня 600мм от рабочей пов-ти до верхн. ящиков. При росте 1.67 (удобно) и 3-х метровых потолках смотрится хорошо. Посилання на коментар Поділитися на інших сайтах More sharing options...
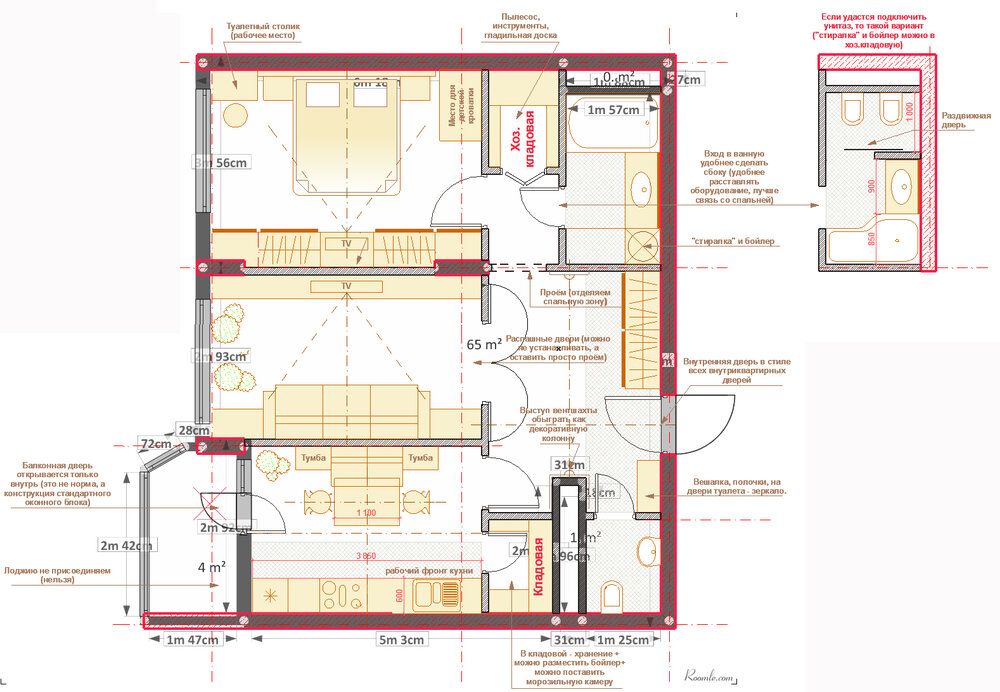
-Sergey- Опубліковано: 21 липня 2014 Поділитись Опубліковано: 21 липня 2014 Уважаемые форумчане! Помогите, пожалуйста, с идеями для планировки/перепланировки и организации пространства квартиры в новострое. План квартиры от застройщика во вложении (проектная площадь 65.5 кв.м.). Размеры (слева направо, указаны с учетом того, что в квартире уже имеется ремонт под чистовую отделку): Кухня: 515х270 Лоджия: 139х270 Малая комната: 478х294 Большая комната: 590х318 Туалет (в углу слева): 121х155 Коридор: замеров нет (проектная площадь 9,5кв.м.) Ванная: 155х277. Еще по размерам: внутриквартирные стены 12 см. керамблок + штукатурка, ж/б пилоны - 100х25, окна в потолок, высота до подоконника - 100, высота потолков - 275. Будет проживать пара с последующим пополнением. Из пожеланий: 1) наличие 2-х комнат (т.е. вариант объединения кухни с малой комнатой отбросили. Тем не менее, если есть какие-то интересные нестандартные варианты - будем рады за предложения) 2) наличия мест для хранения вещей, в т.ч. габаритных 3) хотим оставить лоджию (для сушки белья) 4) оптимальная организация пространства Если нужны какие-то дополнительные детали - спрашивайте. Всем откликнувшимся заранее спасибо! Посилання на коментар Поділитися на інших сайтах More sharing options...
MaryAr Опубліковано: 21 липня 2014 Поділитись Опубліковано: 21 липня 2014 Если нужны какие-то дополнительные детали - спрашивайте. А что не устраивает в моём предложении в предыдущей теме? www.stroimdom.com.ua/forum/showthread.php?t=151567 Прокомментируйте мой вариант, выскажите замечания - и тогда другим дизайнерам будет легче предложить новый вариант. Посилання на коментар Поділитися на інших сайтах More sharing options...
-Sergey- Опубліковано: 21 липня 2014 Поділитись Опубліковано: 21 липня 2014 А что не устраивает в моём предложении в предыдущей теме? www.stroimdom.com.ua/forum/showthread.php?t=151567 Прокомментируйте мой вариант, выскажите замечания - и тогда другим дизайнерам будет легче предложить новый вариант. Еще раз спасибо за Вашу идею. Ваша идея, в принципе, устраивает и ее рассматриваем в качестве одного из вариантов. В Вашем проекте очень понравилось предложение с организацией ванной и смежной с ней комнатой (думаем над организацией входа со стороны комнаты - удобнее организовать пространство). По кладовой в кухне (со входом через кухню) и самой кухне еще сомневаемся. Кухню хотелось бы не во всю длину, а Г- или П-образную (правда понимаем, что ширина кухни всего 270), чтобы отделить столовую и рабочую зону. Уже появились замеры квартиры, поскольку раньше был только проектный план, вот и решили заняться проектом - обратиться за советом к форумчанам-дизайнерам, чтоб подобрать наиболее оптимальное решение и уже работать с конкретным человеком. Посилання на коментар Поділитися на інших сайтах More sharing options...
MaryAr Опубліковано: 21 липня 2014 Поділитись Опубліковано: 21 липня 2014 Уже появились замеры квартиры, поскольку раньше был только проектный план, вот и решили заняться проектом - обратиться за советом к форумчанам-дизайнерам, чтоб подобрать наиболее оптимальное решение и уже работать с конкретным человеком. Желаю успеха! Посилання на коментар Поділитися на інших сайтах More sharing options...
Докторица Опубліковано: 21 липня 2014 Поділитись Опубліковано: 21 липня 2014 подскажите какая на сегодняшний день оптимальная цена за квадрат? За квадрат Малевича? 2 Посилання на коментар Поділитися на інших сайтах More sharing options...
санса Опубліковано: 5 серпня 2014 Поділитись Опубліковано: 5 серпня 2014 День добрый! помогите! Надо разделить первый и второй этаж для сохранения зимой тепла. Но тут надо не так теория,как пряморукий мастер практик с дизайнерской жилкой, фото помещения пока выложить не могу, но дом не далеко 10 км. Нов. Петровцы. 098-500-72-14 Александр. Посилання на коментар Поділитися на інших сайтах More sharing options...
MaryAr Опубліковано: 9 серпня 2014 Поділитись Опубліковано: 9 серпня 2014 Классические угловые русты на Вашем неклассическом объекте будут выглядеть смешно. Пожалуйста, не занимайтесь декорированием, оставьте, как есть. Сочетание цветов нормальное в первом варианте. Красьте на здоровье! 1 Посилання на коментар Поділитися на інших сайтах More sharing options...
MaryAr Опубліковано: 10 серпня 2014 Поділитись Опубліковано: 10 серпня 2014 Из-за ассиметричной крыши напрашиваются какие-то дизайнерские полосы косые на стенах... Имхо, не надо. Я бы какими-то косыми элементами "ответила" крыше: например, подкосами на ограждении террасы. Можно ещё окна объединить в одно пятно, добавив ставни (фальш или настоящие). Мне кажется, это уравновесит активную крышу... 1 Посилання на коментар Поділитися на інших сайтах More sharing options...
Vo3Dyx Опубліковано: 11 серпня 2014 Поділитись Опубліковано: 11 серпня 2014 Прошу помощи. Есть однушка 47 квадратов, из которой хочется сделать подобие студии. Замеры, которая после перепланировки будет выглядеть как-то так Справа от кровати - мебельная легкая перегородка, по ней вопрос не стоит. А вот стоит ли оставлять диван посреди квартиры? или сносить стену за ним не полностью? или...? Как мне представляется - белая покраска всех стен, пол уже решен - кварцивинил под дерево по всей квартире. Болит голова по поводу ванной комнаты (хочется засунуть ванную со стеклянной шторкой, но проблема, что я довольной крупный - 194 см, то есть ванна должна быть обьемной), кухни (цвет фасадов, техники, столешницы). Интерьер хотелось бы разбавлять синим и, в меньшей степени, красным, но не знаю как правильно ими "играть". Готов выслушать любую критику по текущей наработке и будущие советы. Посилання на коментар Поділитися на інших сайтах More sharing options...
MaryAr Опубліковано: 11 серпня 2014 Поділитись Опубліковано: 11 серпня 2014 А Вас не пугает наличие "самостроя" при таком варианте перепланировки? 1. Нельзя присоединять лоджию; 2. Нельзя сносить стену между комнатой и кухней. Согласовать Вашу перепланировку будет трудно. И ещё важный вопрос: есть ли газовое оборудование (плита, котёл, колонка)? Если да, то забудьте об объединении комнаты и кухни. Если я Вас не напугала, то можно поговорить и о дизайне. Добавлено через 24 минуты А какая конструктивная схема дома? Монолитно-каркасный? Тогда укажите, где ж/б пилоны. А то Вы так смело убрали "заплечико" возле кухонного окна, а вдруг это был несущий фрагмент?... Посилання на коментар Поділитися на інших сайтах More sharing options...
Vo3Dyx Опубліковано: 12 серпня 2014 Поділитись Опубліковано: 12 серпня 2014 На схеме убрано только то, что может быть убрано) Газа нет. Монолитно-каркасный. Если честно, то сегодня опять был в квартире и опять решил, что возможно не стоит трогать балкон, сделать вариант барной стойки между комнатой и кухней, но сложно представить как именно реализовать это перегородку. А еще подвернулся вчера двухметровых холодильник белый по хорошей цене. Пусть едет или отменять заказ? Еще на месте мини-гардеробную с ванной комнатой покрутили, но еще не рисовал. В целом готов думать. И, окончательно, отказался от ванной как таковой - ну никак я не могу засунуть ванную 180-190 см толково большого обьема, update Добавлю, что кровать рассматривать начал откидную Посилання на коментар Поділитися на інших сайтах More sharing options...
ksyostap Опубліковано: 13 серпня 2014 Поділитись Опубліковано: 13 серпня 2014 Помогите определиться с цветом в холле 3*4 с лестницей на второй этаж. Комната с вторым светом и северным окном над дверью с прихожей, а напротив лестница (сейчас решаем дерево или металл обшитый). При входе взгляд упирается в перила, понял голову балюстрада сквозь которую видны двери 5 шт. Так как все на этапе еще не куплено хотелось бы не ошибиться. Думаем над желтоватым цветом стен (из-за темного помещения), двери нравятся светлые (дуб беленный с серыми прожилками) и ламинат темный в серых тонах. Вот боимся не будет ли много желтого на боковых стенах где до хоть и скошенного потолка высота стены 5,5-7 м и как сюда впишутся светлые двери. Посилання на коментар Поділитися на інших сайтах More sharing options...
asya115 Опубліковано: 21 серпня 2014 Поділитись Опубліковано: 21 серпня 2014 Добрий день!Шановні дизайнери!Допоможіть з ідеями по облаштуванню чердака в дачному будинку....Мої ідеї вже закінчились...((Дістався від діда дачний будинок, на чердаку був просто склад непотрібних речей, ми все це прибрали і там виявилось багатенько місця. Але на жаль, вхід на чердак маленький і занести якогось дивана туди не вийде, розкладушку якось не дуже хочеться...(( Чердак плануємо використовувати як місце, де мій чоловік зможе вночі попрацювати з ноутбуком (він не буде нам з сином заважати а ми йому) і щоб було одне спальне місце на випадок якщо бабуся або хтось з друзів захоче поїхати з нами!Вхід на чердак з вулиці, думаю треба якось зробити місце для взуття...а як розмістити все це поняття не маю!Дякую!Ось так виглядає чердак Посилання на коментар Поділитися на інших сайтах More sharing options...
Nishada Опубліковано: 21 серпня 2014 Поділитись Опубліковано: 21 серпня 2014 Добрий день!Шановні дизайнери!Допоможіть з ідеями по облаштуванню чердака в дачному будинку....Мої ідеї вже закінчились...(( Я не дизайнер, но у нас похожая мансарда на даче. Когда купили там ничего не было, но мы диван перетащили через балконную дверь. Веревками обвязали, пара мужчин в помощь и диван на втором этаже. Фанеру мы оклеили недорогими белыми фактурными обоями, чтобы не были сильно заметны стыки фанеры и неровности. У нас еще по бокам дверцы в фанере и можно выйти под крышу. Там "склад": детские игрушки, банки-склянки. Можно ходить пригнувшись. И посредине комнаты у нас труба печная на крышу выходит, портит общий вид и делит комнату, у Вас, смотрю, нет. Наклон у нас немного другой - стены ровные, поэтому туда хорошо поместились комоды, стол, маленькие шкафчики и старые румынские книжные полки - сделали стеллажик. Еще предупрежу, что там может быть очень жарко летом в солнечные дни. При недавней жаре находиться было невозможно. 1 Посилання на коментар Поділитися на інших сайтах More sharing options...
Рекомендовані повідомлення
Створіть акаунт або увійдіть у нього для коментування
Ви маєте бути користувачем, щоб залишити коментар
Створити акаунт
Зареєструйтеся для отримання акаунта. Це просто!
Зареєструвати акаунтУвійти
Вже зареєстровані? Увійдіть тут.
Увійти зараз