Тюня Опубліковано: 8 листопада 2015 Поділитись Опубліковано: 8 листопада 2015 ТОГДА ВЫХОД НА ЛОДЖИЮ ПОЛУЧАЕТСЯ ЧЕРЕЗ ДЕТСКУЮ? Ну чем то же надо пожертвовать Ключевой момент следующий - на все 20м2 Это площадь одной комнаты А мы делаем 3 Добавлено через 1 минуту скажите, а можно както спланировать чтобы большие окна были в спальне или гостинной? Я уже писала, почему именно такой вариант такие маленькие площади надо чертить, учитывая все до см, и только после этого воплощать в жизнь был опыт планировки кв 37 м2 с детской и отдельной спальней - кухню совместили с коридором, вместе получилось 9 м2, люди живут, довольны Пятно квартиры имело 5 углов Посилання на коментар Поділитися на інших сайтах More sharing options...
oleg2185 Опубліковано: 8 листопада 2015 Поділитись Опубліковано: 8 листопада 2015 Ну чем то же надо пожертвовать Ключевой момент следующий - на все 20м2 Это площадь одной комнаты А мы делаем 3 Добавлено через 1 минуту Я уже писала, почему именно такой вариант такие маленькие площади надо чертить, учитывая все до см, и только после этого воплощать в жизнь был опыт планировки кв 37 м2 с детской и отдельной спальней - кухню совместили с коридором, вместе получилось 9 м2, люди живут, довольны Пятно квартиры имело 5 углов понятно. спасибо за отклик и совет Посилання на коментар Поділитися на інших сайтах More sharing options...
karya Опубліковано: 11 листопада 2015 Поділитись Опубліковано: 11 листопада 2015 я бы с удовольствием пригласил бы дизайнера. все упирается в финансы могу сделать за адекватную цену))))) если что, обращайтесь Посилання на коментар Поділитися на інших сайтах More sharing options...
пух Опубліковано: 11 листопада 2015 Поділитись Опубліковано: 11 листопада 2015 Добрый день. Можно и мне посоветовать. Как правильно в моём случае поступить. Двери в гостиную нужно распологать или можно открытую арку или полуарку. Мозг кипит. Спасибо всем кто включился в обсуждения проёма. Вроде бы решили гдето вот так. 1 Посилання на коментар Поділитися на інших сайтах More sharing options...
Тюня Опубліковано: 11 листопада 2015 Поділитись Опубліковано: 11 листопада 2015 Спасибо всем кто включился в обсуждения проёма. Вроде бы решили гдето вот так. Красиво, особенно если повторить форму арки - она не совсем обычна и тем интересна Посилання на коментар Поділитися на інших сайтах More sharing options...
karya Опубліковано: 11 листопада 2015 Поділитись Опубліковано: 11 листопада 2015 Спасибо всем кто включился в обсуждения проёма. Вроде бы решили гдето вот так. Если вам так нравится, то вполне имеет право на жизнь ;) Посилання на коментар Поділитися на інших сайтах More sharing options...
ligio Опубліковано: 12 листопада 2015 Поділитись Опубліковано: 12 листопада 2015 Красиво, особенно если повторить форму арки - она не совсем обычна и тем интересна Если обклад дерево или гипс сделают по шаблону любой формы. Если полиуретан прийдется подстраиватся к стандартному обкладу арки(форма похожая но немного не такая). Гибкий такой ширины может не загнутся на самом маленьком радиусе. ЗЫ по факту проем намного уже чем на картинке. перед воплощение прорисовать несколько вариантов и выбрать более подходящий. Посилання на коментар Поділитися на інших сайтах More sharing options...
пух Опубліковано: 12 листопада 2015 Поділитись Опубліковано: 12 листопада 2015 Если обклад дерево или гипс сделают по шаблону любой формы. Если полиуретан прийдется подстраиватся к стандартному обкладу арки(форма похожая но немного не такая). Гибкий такой ширины может не загнутся на самом маленьком радиусе. ЗЫ по факту проем намного уже чем на картинке. перед воплощение прорисовать несколько вариантов и выбрать более подходящий. Да Вы првавы проём уже. Получается 2600 мм, если колоны сделать по 300 мм с обоих сторон остаётся 2000 мм. Придётся от потолка опустить больший свес арки чтобы визуально казалось более широким проёмом. Вообщем обмануть глаза и серое вещество (как выражается пуаро). Посилання на коментар Поділитися на інших сайтах More sharing options...
LOCO87 Опубліковано: 18 листопада 2015 Поділитись Опубліковано: 18 листопада 2015 (змінено) гардеробная и коридор: Уже обращался ранее,но повторюсь и добавлю вопросов, роковых. 1)делать гардеробную комнату проходной или делать вход в спальню через гостиную (зал), но если заглядывать в недалекое будущее да и вообще родители не молодые, дети еще будут, нужна отдельная не проходящая комната, верно ли я рассуждаю?... 2)уменьшать коридор в пользу гардеробной добавляя аппендикс для дополнительных полок или морозильной камеры?(имеется ввиду использовать ли пространство в полезных целях или оставить для эстетического и визуального простора (фото 1) руководствуясь этим делаю гардеробную 210 см шириной посоветуйте пожалуйста, ато голову ломаю Змінено 18 листопада 2015 користувачем LOCO87 Посилання на коментар Поділитися на інших сайтах More sharing options...
karya Опубліковано: 18 листопада 2015 Поділитись Опубліковано: 18 листопада 2015 1)делать гардеробную комнату проходной или делать вход в спальню через гостиную (зал), но если заглядывать в недалекое будущее да и вообще родители не молодые дети еще будут, нужна отдельная не проходящая комната, верно ли я рассуждаю?... верно, лучше делать именно так)))) Добавлено через 2 минуты 2)уменьшать коридор в пользу гардеробной добавляя аппендикс для дополнительных полок или морозильной камеры?(имеется ввиду использовать ли пространство в полезных целях или оставить для эстетического и визуального простора (фото 1) Посмотрела на фото, на план помещения и.....если честно,вообще на поняла о чем был вопрос....))))) Посилання на коментар Поділитися на інших сайтах More sharing options...
LOCO87 Опубліковано: 18 листопада 2015 Поділитись Опубліковано: 18 листопада 2015 верно, лучше делать именно так)))) Добавлено через 2 минуты Посмотрела на фото, на план помещения и.....если честно,вообще на поняла о чем был вопрос....))))) фото первое ракурс из коридора на вход в гардеробную, выложенные корявенько газоблоки это предполагаемый аппендикс напротив туалета;) Посилання на коментар Поділитися на інших сайтах More sharing options...
LOCO87 Опубліковано: 19 листопада 2015 Поділитись Опубліковано: 19 листопада 2015 www.4living.ru/items/article/kak-luchshe-razmestit-garderobnuiu-7-sovetov-8-variantov-planirovki/ когда проектировали гардеробную руководствовался этим сайтом, Посилання на коментар Поділитися на інших сайтах More sharing options...
karya Опубліковано: 19 листопада 2015 Поділитись Опубліковано: 19 листопада 2015 фото первое ракурс из коридора на вход в гардеробную, выложенные корявенько газоблоки это предполагаемый аппендикс напротив туалета ну так и в чем проблема-то, апендикс не нравится или что-то другое не устраивает???))))) Посилання на коментар Поділитися на інших сайтах More sharing options...
LOCO87 Опубліковано: 19 листопада 2015 Поділитись Опубліковано: 19 листопада 2015 ну так и в чем проблема-то, аппендикс не нравится или что-то другое не устраивает???))))) да делать или не делать оставить пространство коридора или использовать его Посилання на коментар Поділитися на інших сайтах More sharing options...
karya Опубліковано: 19 листопада 2015 Поділитись Опубліковано: 19 листопада 2015 да делать или не делать оставить пространство коридора или использовать его да тут уж на Ваше усмотрение)))) Если вам там критично нужна кладовочка, то делайте,если без нее можно обойтись - то лучше оставьте пространство и не городите там стен. P.S. такой гардеробной, какие вы видели на сайте, в таком закутке у вас все равно не получится, т.к. места очень мало. Зато можно сделать встроенный шкаф В любом случае, решение за вами ;) Посилання на коментар Поділитися на інших сайтах More sharing options...
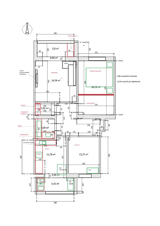
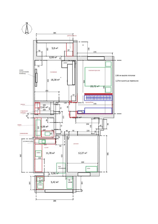
LOCO87 Опубліковано: 19 листопада 2015 Поділитись Опубліковано: 19 листопада 2015 да тут уж на Ваше усмотрение)))) Если вам там критично нужна кладовочка, то делайте,если без нее можно обойтись - то лучше оставьте пространство и не городите там стен. P.S. такой гардеробной, какие вы видели на сайте, в таком закутке у вас все равно не получится, т.к. места очень мало. Зато можно сделать встроенный шкаф В любом случае, решение за вами ;) Вы не туда смотрели, на фото 2 где план квартиры видно где гардеробная ее площадь 8,36 м2 отделена красной полосой в спальне:D:D:D а достройка в коридоре это так сказать, работа воображения по использованию пространства, то бишь до входа в гардеробную хотел еще нагородить стен Посилання на коментар Поділитися на інших сайтах More sharing options...
karya Опубліковано: 19 листопада 2015 Поділитись Опубліковано: 19 листопада 2015 Вы не туда смотрели, на фото 2 где план квартиры видно где гардеробная ее площадь 8,36 м2 отделена красной полосой в спальне теперь поняла))))))))) как-то странно и не логично тогда получается, что у вас вход в спальню через гардеробную....это не удобно. Отделите ее простенком так, чтобы был и вход в спальню и в гардеробную (ваша красная линия должна стать Г-образной). Добавлено через 2 минуты а достройка в коридоре это так сказать, работа воображения по использованию пространства, то бишь до входа в гардеробную хотел еще нагородить стен зачем вам там лишние стены? Сделайте просто полноценный встроенный шкаф в "апендиксе" напротив санузла, ему там самое место))))) Добавлено через 3 минуты Отделите ее простенком так, чтобы был и вход в спальню и в гардеробную (ваша красная линия должна стать Г-образной). а вообще, лучше там просто шкаф сделать и не городить такую гардеробную в ущерб полноценной спальне...площадь комнаты маловата для таких экспериментов ))))) 1 Посилання на коментар Поділитися на інших сайтах More sharing options...
LOCO87 Опубліковано: 21 листопада 2015 Поділитись Опубліковано: 21 листопада 2015 теперь поняла))))))))) как-то странно и не логично тогда получается, что у вас вход в спальню через гардеробную....это не удобно. Отделите ее простенком так, чтобы был и вход в спальню и в гардеробную (ваша красная линия должна стать Г-образной). Добавлено через 2 минуты зачем вам там лишние стены? Сделайте просто полноценный встроенный шкаф в "апендиксе" напротив санузла, ему там самое место))))) Добавлено через 3 минуты а вообще, лучше там просто шкаф сделать и не городить такую гардеробную в ущерб полноценной спальне...площадь комнаты маловата для таких экспериментов ))))) Спасибо за советы, думали сначала про встроенный шкаф, но хотим чтобы в спальне была только кровать, две тумбы и стол со стулом и зеркалом (для жены), даже телевизора не будет в спальне, в спальне нужно спать, отдыхать, и не спать (поняли о чем я) остальное в гостиной и на кухне.... дело в том, что не хотим нигде делать лишних шкафов, а по подсчетам стоимость встроенного шкафа будет превышать стоимость стены гардеробной и всего оборудования в три раза (в гардеробной буду делать все сам).;););) Посилання на коментар Поділитися на інших сайтах More sharing options...
karya Опубліковано: 21 листопада 2015 Поділитись Опубліковано: 21 листопада 2015 Спасибо за советы, думали сначала про встроенный шкаф, но хотим чтобы в спальне была только кровать, две тумбы и стол со стулом и зеркалом (для жены), даже телевизора не будет в спальне, в спальне нужно спать, отдыхать, и не спать (поняли о чем я) остальное в гостиной и на кухне.... дело в том, что не хотим нигде делать лишних шкафов, а по подсчетам стоимость встроенного шкафа будет превышать стоимость стены гардеробной и всего оборудования в три раза (в гардеробной буду делать все сам).;););) У вас слишком маленькая площадь комнаты, чтобы городить там целую отдельную гардеробную....если вы сделаете так как вы нарисовали, то и полноценной гардеробной не получится (она будет очень узкой и тесной) и человеческой спальни не выйдет. Судя по вашему планчику, столик для жены там ставить уже некуда. Если вы его туда втисните, то будете за него постоянно цепляться, либо за кровать, а это уже чревато травматизмом и синяками...в общем, еще раз хорошо подумайте P.S. вам шкаф инкрустированный бриллиантовой крошкой считали???:D:D:D:D Посилання на коментар Поділитися на інших сайтах More sharing options...
LOCO87 Опубліковано: 21 листопада 2015 Поділитись Опубліковано: 21 листопада 2015 (змінено) У вас слишком маленькая площадь комнаты, чтобы городить там целую отдельную гардеробную....если вы сделаете так как вы нарисовали, то и полноценной гардеробной не получится (она будет очень узкой и тесной) и человеческой спальни не выйдет. Судя по вашему планчику, столик для жены там ставить уже некуда. Если вы его туда втисните, то будете за него постоянно цепляться, либо за кровать, а это уже чревато травматизмом и синяками...в общем, еще раз хорошо подумайте P.S. вам шкаф инкрустированный бриллиантовой крошкой считали???:D:D:D:D Шкаф позолоченный почти ну 15 000 грн для меня деньги з\п в грн все таки пропорции нарисованной гардеробной и реальной не совпадают (решали по месту) и я уже начал ее строить буквой Г, вместо дверей будут плотные шторы, уже куплены, материал не помню как называется, куб газоблоков перестеночных блоков стоит с доставкой 1100 грн Змінено 21 листопада 2015 користувачем LOCO87 Посилання на коментар Поділитися на інших сайтах More sharing options...
karya Опубліковано: 21 листопада 2015 Поділитись Опубліковано: 21 листопада 2015 пропорции нарисованной гардеробной и реальной не совпадают (решали по месту) и я уже начал ее строить буквой Г, вместо штор будут плотные шторы, уже куплены, материал не помню как называется, куб газоблоков перестеночных блоков стоит с доставкой 1100 грн ну как говорится: "хозяин - барин"))))) ладно, "творите"..))) Удачи вам! 1 Посилання на коментар Поділитися на інших сайтах More sharing options...
alisonya Опубліковано: 23 листопада 2015 Поділитись Опубліковано: 23 листопада 2015 мое субъективное любительское мнение - жаль от такой шикарной большой комнаты украивать на гардеробную. я бы эту комнату отдала под детскую, раз уж дети еще планируются. а маленькую взяла бы себе, сделав по обеим сторонам смежной с коридором стены встроенные шкафы, будет чуть меньший объем, но вполне достаточный, зато не надо убивать место на проход. стену со шкафами можно подвинуть, чтобы получить нужную глубину и коридор оптимальной ширины. за одно и вещи можно распледелить личные, общие и доугих членов семьи с соответствующим доступом. фасады могут быть какие угодно, это не обязательно должно быть похоже на шкаф-купе, и не обязательно дорого. в любом случае можно сделать сначала начинку, а фасады со временем. если надумали гардеробгую делать своими руками, то шкаф будет даже легче. Посилання на коментар Поділитися на інших сайтах More sharing options...
alisonya Опубліковано: 23 листопада 2015 Поділитись Опубліковано: 23 листопада 2015 (змінено) в догонку: стену между коридором и спальней можно между шкафами не делать, просто заднюю стенку из ДСП, а не ДВП, звукоизоляция у двух заполненных шкафов будет хоть куда! кстати, если вы шкаф опасаетесь делать, потому что гардеробная предполагается из навесных полок на алюминьевую систему, то такой вариант точно не будет дешевле, по крайней мере по материалам, и там еще другие недостатки относительно традиционного дспешного наполнения. по опыту пользования гардеробной скажу, что муж ежедневно пытался кидать рубашку и брюки где попало, не донеся в гардеробную. даже пытался испоганить мне стенку в комнате, забрав там секцию под свои шмотки. но все-таки неоспоримое преимущество вашего варианта, что можно сделать противостоящие секции разной глубины, к примеру 55 см для штанг, ящиков, и 40 см для одежных полок (и 210 общей ширины - это выше крыши, 160 для функциональности достаточно - 55+40+65 проход, конечно, чем шире, тем удобнее, просто надо найти баланс, чтоб и удобно, и целесообразно). еще можно секцию в торце. конечно, места в углах неудрбные, но есть вещи, которыми пользуются не то что раз в год, а вообще никогда, например семейные реликвии. у меня, страстной выбрасывальщицы хлама и то такой ящик имеется. 21 метровую комнату можно в перспективе поделить на две подростковые спальни по 10 м. правда со вторым светом в одной и входом через гостиную во второй. но это для жадных ;). З.Ы. не понимаю, насколько надо быть избалованным чужими метрами снобом, чтоб комнату в 21 метр называть слишком маленькой , тем более, комнату для спанья Змінено 23 листопада 2015 користувачем alisonya Посилання на коментар Поділитися на інших сайтах More sharing options...
LOCO87 Опубліковано: 25 листопада 2015 Поділитись Опубліковано: 25 листопада 2015 мое субъективное любительское мнение - жаль от такой шикарной большой комнаты украивать на гардеробную. я бы эту комнату отдала под детскую, раз уж дети еще планируются. а маленькую взяла бы себе, сделав по обеим сторонам смежной с коридором стены встроенные шкафы, будет чуть меньший объем, но вполне достаточный, зато не надо убивать место на проход. стену со шкафами можно подвинуть, чтобы получить нужную глубину и коридор оптимальной ширины. за одно и вещи можно распледелить личные, общие и доугих членов семьи с соответствующим доступом. фасады могут быть какие угодно, это не обязательно должно быть похоже на шкаф-купе, и не обязательно дорого. в любом случае можно сделать сначала начинку, а фасады со временем. если надумали гардеробгую делать своими руками, то шкаф будет даже легче. Обсуждали, вид из окон детской и кухни в основном природа: река, дачные участки, в далеке лес на другую же сторону через 50-70 метров жилые дома не очень привлекательного вида. Не хочется чтобы ребенок развивался и рос смотря кому то в окна Добавлено через 6 минут в догонку: стену между коридором и спальней можно между шкафами не делать, просто заднюю стенку из ДСП, а не ДВП, звукоизоляция у двух заполненных шкафов будет хоть куда! кстати, если вы шкаф опасаетесь делать, потому что гардеробная предполагается из навесных полок на алюминьевую систему, то такой вариант точно не будет дешевле, по крайней мере по материалам, и там еще другие недостатки относительно традиционного дспешного наполнения. по опыту пользования гардеробной скажу, что муж ежедневно пытался кидать рубашку и брюки где попало, не донеся в гардеробную. даже пытался испоганить мне стенку в комнате, забрав там секцию под свои шмотки. но все-таки неоспоримое преимущество вашего варианта, что можно сделать противостоящие секции разной глубины, к примеру 55 см для штанг, ящиков, и 40 см для одежных полок (и 210 общей ширины - это выше крыши, 160 для функциональности достаточно - 55+40+65 проход, конечно, чем шире, тем удобнее, просто надо найти баланс, чтоб и удобно, и целесообразно). еще можно секцию в торце. конечно, места в углах неудрбные, но есть вещи, которыми пользуются не то что раз в год, а вообще никогда, например семейные реликвии. у меня, страстной выбрасывальщицы хлама и то такой ящик имеется. 21 метровую комнату можно в перспективе поделить на две подростковые спальни по 10 м. правда со вторым светом в одной и входом через гостиную во второй. но это для жадных ;). З.Ы. не понимаю, насколько надо быть избалованным чужими метрами снобом, чтоб комнату в 21 метр называть слишком маленькой , тем более, комнату для спанья гардеробную делаю побольше, для того чтобы поместилось все что обычно некуда деть в квартире, даже тазик, белье постирать там будет, пылесос, совок, веник, ведра и тд тп. еще для того чтобы можно было зайти выбрать и примерить посмотреть в зеркало и погладить одежду, а в спальня только по назначению))))без телевизора Посилання на коментар Поділитися на інших сайтах More sharing options...
alisonya Опубліковано: 25 листопада 2015 Поділитись Опубліковано: 25 листопада 2015 вид из окон серьезный фактор. жаль, что так получилось. ширина гардеробной в данном случае не повлияет на объем мест для хранения (кроме торцевой секции, если она будет). у нас в гардеробной на прежней квартире тоже хранилось все-все - и пылесос и тазик с ведром, и детская ванночка при площади около 3 м. переодеваться в гардеробной, ИМХО, чистое буржуйство. а гладилку мне и правда было лень далеко таскать. сайт с которого вы черпали вдохновение... не знаю на кого он рассчитан, наверное для тех, кто покупает 300-метровые пентхаусы, и даже сам никогда не гладит. люди, имеющие в распоряжении трешку с разумной площадью до 100 метров, должны быть практичнее, тем более если одна из трех комнат - без вариантов детская. гардеробная это все-таки функционал и удобство, средство, чтобы освободить по максимуму комнаты от мебели и хлама, оюрести желанный простор. но если из-за этого отличная комната-мечта станет заурядной хрущувской каморкой (я вообще полностью согласна, что для спальни 12 метров достаточно, просто это самая большая комната в квартире, и вы лишаете ее этой изюминки), то есть ли смысл? тут в чистом виде гардеробная ради гардеробной, такое типа маст хэв для современного успешного человека. извините, я, наверное, слишком навязчиво высказываю свое мнение. просто рассуждаю с точки зрения человека, имеющего некоторый опыт с ремонтами и набитыми на них шишками. и все равно эмоциональные порывы сделать "по-модному" возникают, хорошо что нынешний ремонт движется медленно, есть возможность принять абсолютно взвешенное решение. сейчас очень далеко ушли от первоначального плана, зато абсолютно довольны результатами. вы просто подумайте хорошенько, дайте себе возможность внимательно рассмотреть другие варианты, пусть даже чтобы убедиться в собственной правоте. к слову, мои родственники тоже воплотили идею спальни без телевизора, пожили годик и передумали. 1 Посилання на коментар Поділитися на інших сайтах More sharing options...
Рекомендовані повідомлення
Створіть акаунт або увійдіть у нього для коментування
Ви маєте бути користувачем, щоб залишити коментар
Створити акаунт
Зареєструйтеся для отримання акаунта. Це просто!
Зареєструвати акаунтУвійти
Вже зареєстровані? Увійдіть тут.
Увійти зараз