igorek30 Опубліковано: 5 грудня 2012 Поділитись Опубліковано: 5 грудня 2012 Шановні форумчани буду радий якщо ви підскажете мені по розводці каналізації в майбутньому будинку. 23.11.12 завершив заливку фундаменту. І зараз постає питання по проведення зворотньої засипки і відповідно прокладання каналізації. Планую зробити це так як на схемі, можливо щось не так підскажіть буду радий. Фото трішки старіше, опалубка вже знята. Посилання на коментар Поділитися на інших сайтах More sharing options...
igorek30 Опубліковано: 6 грудня 2012 Автор Поділитись Опубліковано: 6 грудня 2012 І що ніхто не дасть слушної поради по даному факту ? Буду вдячний людям які проконсультують.:beer: Посилання на коментар Поділитися на інших сайтах More sharing options...
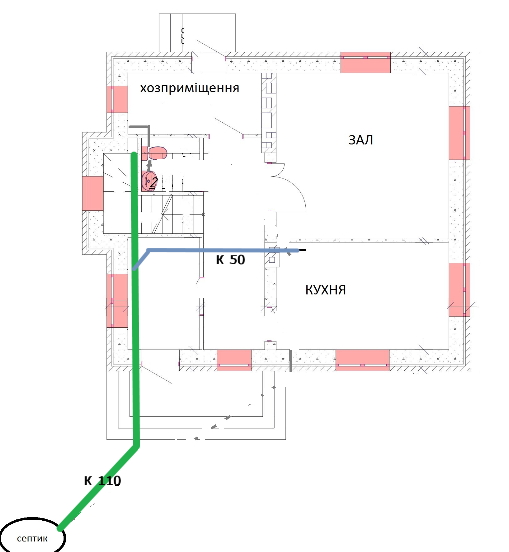
Korni Опубліковано: 6 грудня 2012 Поділитись Опубліковано: 6 грудня 2012 Лучше так: 1 Посилання на коментар Поділитися на інших сайтах More sharing options...
igorek30 Опубліковано: 6 грудня 2012 Автор Поділитись Опубліковано: 6 грудня 2012 Варіант хороший я про нього також думав. Але виходить необхідно пускати трубу під сходами при вході в будинок. А з часом прийдеться проводити заміну і як потім ? Посилання на коментар Поділитися на інших сайтах More sharing options...
Korni Опубліковано: 6 грудня 2012 Поділитись Опубліковано: 6 грудня 2012 ..... А з часом прийдеться проводити заміну і як потім ? Сразу купить качественную трубу... а не потом. И правильно её уложить... например в гильзе большего диаметра. 1 Посилання на коментар Поділитися на інших сайтах More sharing options...
igorek30 Опубліковано: 6 грудня 2012 Автор Поділитись Опубліковано: 6 грудня 2012 Підскажіть тоді надійсного виробника каналізаційних труб, щоб прокласти під сходами. І ще запитання порадьте чи закладати труби перед зворотньою засипкою чи можна після засипки зробити прокладку труб? Будівництво видеться своїми силами. Посилання на коментар Поділитися на інших сайтах More sharing options...
B.S.V. Опубліковано: 6 грудня 2012 Поділитись Опубліковано: 6 грудня 2012 Лучше так: +1000 . Но к кухне 110 канализация (до подъема на саму мойку) береженного... Добавлено через 2 минуты Підскажіть тоді надійсного виробника каналізаційних труб, щоб прокласти під сходами. І ще запитання порадьте чи закладати труби перед зворотньою засипкою чи можна після засипки зробити прокладку труб? Будівництво видеться своїми силами. 1.Ostendorf. 2.Без разницы, только нужно обеспечить надежное крепление труб Посилання на коментар Поділитися на інших сайтах More sharing options...
Слава Щ. Опубліковано: 6 грудня 2012 Поділитись Опубліковано: 6 грудня 2012 Но к кухне 110 канализация (до подъема на саму мойку) береженного... А зачем, что это даст? Посилання на коментар Поділитися на інших сайтах More sharing options...
Korni Опубліковано: 6 грудня 2012 Поділитись Опубліковано: 6 грудня 2012 что это даст? Надёжность в несменяемом месте. Я тоже перехожу на этот способ всё чаще. Посилання на коментар Поділитися на інших сайтах More sharing options...
igorek30 Опубліковано: 7 грудня 2012 Автор Поділитись Опубліковано: 7 грудня 2012 Я Вас вірно зрозумів. Згідно попердньої Вашої схеми замість 50 з кухні пустити 110. ? І якщо Ви можите допоможіть визначитися по розводці води в будинку. Посилання на коментар Поділитися на інших сайтах More sharing options...
naupv Опубліковано: 8 грудня 2012 Поділитись Опубліковано: 8 грудня 2012 А зачем, что это даст? Особенно полезно это когда под мойкой измельчитель стоит. Через несколько лет, появятся еще круче мастера и будут рассказывать старым, что 110 это отстой, лучше 130 или 160, в случае чего можно тещу с ершиком запустить внутрь для прочистки.:D Между 110 и 50 есть еще 75. Добавлено через 9 минут 1.Ostendorf. А почему так категорично? Других хороших не имеется? Или это так, потому что Вы только ею работаете? Рехау Качмарек Вавин Валрум (Валсир) Пако Синикон Турецкие Краинские Посилання на коментар Поділитися на інших сайтах More sharing options...
Korni Опубліковано: 8 грудня 2012 Поділитись Опубліковано: 8 грудня 2012 Через несколько лет, появятся еще круче мастера и будут рассказывать старым, что 110 это отстой Вы в вопросе разберитесь поподробней-то.... Посилання на коментар Поділитися на інших сайтах More sharing options...
naupv Опубліковано: 8 грудня 2012 Поділитись Опубліковано: 8 грудня 2012 Да вроде бы понимаю ребусы имхо. Надёжность в несменяемом месте. Посилання на коментар Поділитися на інших сайтах More sharing options...
Korni Опубліковано: 8 грудня 2012 Поділитись Опубліковано: 8 грудня 2012 Да вроде бы понимаю. Ну... это ещё определённым образом регламентируется. Невнятно - в наших СНиПах, более чётко - в зарубежных. В вашем списке труб я бы однозначно зачеркнул украинские. Посилання на коментар Поділитися на інших сайтах More sharing options...
naupv Опубліковано: 8 грудня 2012 Поділитись Опубліковано: 8 грудня 2012 В вашем списке труб я бы однозначно зачеркнул украинские. Ну почему же, если вставить качественные резинки, эта труба заслуживает внимания в эконом-бюджетном строительстве. (ссылка устарела) Посилання на коментар Поділитися на інших сайтах More sharing options...
Korni Опубліковано: 8 грудня 2012 Поділитись Опубліковано: 8 грудня 2012 Пожалуй, это единственный производитель, которого я иногда пользую... Но, всё-таки, риск высок... да и опять же, дополнительные условия - "если..." Посилання на коментар Поділитися на інших сайтах More sharing options...
naupv Опубліковано: 8 грудня 2012 Поділитись Опубліковано: 8 грудня 2012 Но, всё-таки, риск высок Все-таки не космический корабль строите, дорогу переходя, тоже риск есть. Не люблю я это слово- ПЕРЕСТРАХОВЩИК, а еще страшнее пере-перестраховщик. Посилання на коментар Поділитися на інших сайтах More sharing options...
Korni Опубліковано: 8 грудня 2012 Поділитись Опубліковано: 8 грудня 2012 Не люблю я это слово- ПЕРЕСТРАХОВЩИК, а еще страшнее пере-перестраховщик. Хватит уже придумывать того, чего нет. И переходить на личности. Тем более, что "представление о стоимости риска" у меня на порядок серьёзней Вашего - профессиональное. Охота тратить своё время на работу с материалом труднопрогнозируемого качества? И доводить его до нормального качества? Тратьте. Посилання на коментар Поділитися на інших сайтах More sharing options...
igorek30 Опубліковано: 8 грудня 2012 Автор Поділитись Опубліковано: 8 грудня 2012 читаю я вашу дискусію і не можу зрозуміти. Ви пишите про перестраховку в даних видах робіт у виробнику ? А всеж який даіметр труби з кухні пускати ? Основну я зрозумів пускати 110 ? Посилання на коментар Поділитися на інших сайтах More sharing options...
Korni Опубліковано: 8 грудня 2012 Поділитись Опубліковано: 8 грудня 2012 А всеж який даіметр труби з кухні пускати ? Основну я зрозумів пускати 110 ? Это только рекомендации, жёстких правил нет: везде "в земле" - 110мм не использовать украинских производителей труб рыжую - не обязательно 1 Посилання на коментар Поділитися на інших сайтах More sharing options...
igorek30 Опубліковано: 8 грудня 2012 Автор Поділитись Опубліковано: 8 грудня 2012 Дякую за відповідь, а по воді можливо підскажете як краще розвести ? Ввод у будівлю малював труба 32. Посилання на коментар Поділитися на інших сайтах More sharing options...
naupv Опубліковано: 8 грудня 2012 Поділитись Опубліковано: 8 грудня 2012 И переходить на личности. Йоперный театр! Я вообще не имел никого ввиду! Не нужно быть таким обидчивым. Если невольно зацепил Ваше эго, прошу прощения. Посилання на коментар Поділитися на інших сайтах More sharing options...
Рекомендовані повідомлення
Створіть акаунт або увійдіть у нього для коментування
Ви маєте бути користувачем, щоб залишити коментар
Створити акаунт
Зареєструйтеся для отримання акаунта. Це просто!
Зареєструвати акаунтУвійти
Вже зареєстровані? Увійдіть тут.
Увійти зараз