timofey79 Опубліковано: 26 лютого 2013 Поділитись Опубліковано: 26 лютого 2013 Итак. Может это тема и для другого раздела, а именно - "Печи и камины", но очень хочется услышать мнения спецов по поводу работоспособности схемы теплоснабжения или "чреватости" ее работы. Но все, как говорится, по порядку. Итак в 2008 - году, когда производились основные СМР (коробка, кровля и т.д.), строителями (когда-нибудь все-таки создам ветку о нашей стройке, и уделю этим удакам, своей глупости и последствиям немало текста:-x) было предложено за сносные деньги 800 у.е. сложить мне камин. Т.к. камин я считаю напрасной тратой дров (это сугубо мое личное мнение, которое никому не навязываю), так вот решил я сложить быкновенную грубку со стеклянными дверцами. Вроде как и огонь видно, и аккумуляция тепла есть, вобщем это, наверное, камино-печь сейчас называется. Но в 2008 я не знал про данный форум поэтому .....вобщем про наделанные глупости я уже писал. После переговоров с "бригадиром" цена была опущена до 300 у.е. и сложили мне вот такую печь...... Посилання на коментар Поділитися на інших сайтах More sharing options...
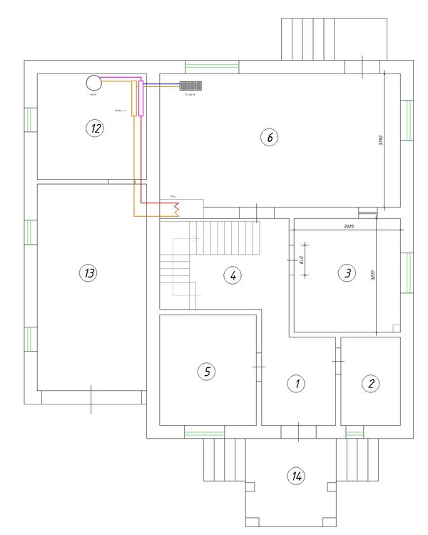
timofey79 Опубліковано: 26 лютого 2013 Автор Поділитись Опубліковано: 26 лютого 2013 (змінено) Проверили тягу - была. Протопили вроде нагревается. Вобщем, когда бригада свалила естественно начались проблемы: - при определенном ветре (когда веер дул со стороны дымохода) появлялась обратная тяга; - прогрев был довольно меделенный и быстрое остывание. Вобщем какие специалисты нам дом строили показала еще и печь... Довольно долгое время, в связи с определенными обстоятельствами строительные работы идут не быстро а по-тихоньку, отчасти своими силами (об этом как и обещал в будущей ветке про строительство нашего дома). Но вот пришло время и печи! По местному радио был найден специалист, который в округе много печей сложил, он же летом у меня делал цоколь, отмостки, заезды - дядько Васыль, как он называет себя - печник-строитель, или строитель-печник (зависит от требуемого на данный момент акцента). Но на сегодняшний день, печь показала свое не совсем рациональное местоположение ( проект делал сам поэтому не бейте больно....). Она обогревает зал(6) и лестничный хол(4), ну частично кухню(3) и тепло подымается на 2-й этаж. Такое вот расточительство никак не давало покой моему сознанию: были думаны-передуманы варианты разводки теплого воздуха, отвода его воздуховодами в комнату (5) на второй этаж, вариант встроенной поверности нагрева в саму топку тоже рассматривался, но как-то вскользь - упирался в необходимость сварки, непонятность конструкции, эксплуатации теплообменника ну и куда отводить тепло? (бак аккумулятор ГВС) обогреть гараж?....поиск в глубинах интернета четкого ответа не дал.....вобщем.... При встрече с печником непосредственно на объекте было обявлено, что вместо моей печки будет стоять грубка-шестирядка (на фото видно расположение каналов и разобранная ранеесложеннаяхня)... никаких воздушных каналов в ней не будет т.к. это баловство - уменьшает поверхность теплообмена и увеличивает т-ру уходящих газов. Вобщем никаких воздуховодов в другие комнаты наблюдаться не будет. И тогда моим тестем - "золотые руки", было предложено сделать теплообменник в топку из медной трубы. Принципиальная возможность его размещения в топке была обсуждена с печником, на что он сказал что у него тоже в печь встроен "котел" и на свои 90 м2 он газ почти не жжет. Теплоноситель было решено замкнуть на гребенки системы отопления, т.е. подача идет как на простой радиатор, где догревается, возвращается на коллектор обратки, тем самым догревая его. Циркуляция осуществляется через встроенный насос котла. Сработка котла ( включение горелки) происходит по температуре обратки, т.е. при протопке печи газовый котел работает в кач-ве догревателя (при необходимости) и циркуляционного насоса А теперь можно пинать за схему.... Змінено 26 лютого 2013 користувачем timofey79 Посилання на коментар Поділитися на інших сайтах More sharing options...
timofey79 Опубліковано: 26 лютого 2013 Автор Поділитись Опубліковано: 26 лютого 2013 Весь гемор был в том, что все вдруг понадобилось срочно... тесть, спасибо ему огромное, за день у себя в гараже на морозе спаял теплообменник по оговоренным размерам....которые в итоге не подошли, пришлось по месту перепаивать, были нарушены ранее запаянные стыки, при гидравлике (до 6 атм) теплообменника потекло несколько стыков, опять подпайка...вобщем е@ля. НО в результате в топку был встроен следующий девайс, концы выведены в котельную и заведены на гребенки отопления (фото реализованного нет- выкладываю фото гребенки завязано на свободные патрубки). Посилання на коментар Поділитися на інших сайтах More sharing options...
timofey79 Опубліковано: 26 лютого 2013 Автор Поділитись Опубліковано: 26 лютого 2013 Выкладываю фото на сегодняшний день. Для реализации была докуплена чугунная фурнитура SVT, корпус духовки сварили сами из листа 6мм. Грубка будет в ближайшее время штукатуриться спецштукатуркой (дорогая зараза) и будут клеиться элементы декора. Обязательно выложу фото финального вида моей чудо-грубки и после того, как проюзаю совместную работу с ситемой отопления выложу отчет. Посилання на коментар Поділитися на інших сайтах More sharing options...
Interso Опубліковано: 26 лютого 2013 Поділитись Опубліковано: 26 лютого 2013 Весь гемор был в том, что все вдруг понадобилось срочно... тесть, спасибо ему огромное, за день у себя в гараже на морозе спаял теплообменник по оговоренным размерам....которые в итоге не подошли, пришлось по месту перепаивать, были нарушены ранее запаянные стыки, при гидравлике (до 6 атм) теплообменника потекло несколько стыков, опять подпайка...вобщем е@ля. НО в результате в топку был встроен следующий девайс, концы выведены в котельную и заведены на гребенки отопления (фото реализованного нет- выкладываю фото гребенки завязано на свободные патрубки). C металла надо было варить теплообменник, а если паяли медь то нада твёрдым припоем, у вас есть риск что он долго не протянет и потечет. Лучше не рескуйте а сразу переделайте на метал. Что вы будете делать дальше если у вас пойдет высокая температура с вашей каминопечи на систему отопления.? Что вы будете делать если пропадёт циркуляция(исчезло электричество,или котелок вывалился в аварию).? Посилання на коментар Поділитися на інших сайтах More sharing options...
Виталий_Ж Опубліковано: 26 лютого 2013 Поділитись Опубліковано: 26 лютого 2013 У нас такие печи начали делать ещё в 50-х годах прошлого века, так топили все, кто имел водяное отопление. Потом стали постепенно менять печи на ТТ котлы. Но у меня в старой хате по-прежнему стоит такая печь с теплообменником. ИМХО, Вы изобретаете велосипед, причём начали с самых истоков. Не хочу Вам давать советы, просто посоветую неплохого местного мастера, который сварит теплообменник и сложит печь за вменяемые деньги. Interso прав на все 100, от себя добавлю, что систему надо открытую. Посилання на коментар Поділитися на інших сайтах More sharing options...
timofey79 Опубліковано: 26 лютого 2013 Автор Поділитись Опубліковано: 26 лютого 2013 C металла надо было варить теплообменник, а если паяли медь то нада твёрдым припоем, у вас есть риск что он долго не протянет и потечет. Лучше не рескуйте а сразу переделайте на метал. Что вы будете делать дальше если у вас пойдет высокая температура с вашей каминопечи на систему отопления.? Что вы будете делать если пропадёт циркуляция(исчезло электричество,или котелок вывалился в аварию).? Ну паялась твердым припоем. Попробуйте разогреть припой если в трубе вода. Высокая температура - хорошо, дом в 140 квадратов вряд ли отопит, котел не будет работать. Циркуляция это да..... тут ставить допнасос и возможно какие-то аккумуляторы для его работы на период без электричества.... но что поделаешь - у меня изначально не гравитационная СО....и имплементация данного девайса в печь - как попытка снять киловаты но не как панацея от всего.... нет циркуляции - не буду топить..... Добавлено через 1 минуту У нас такие печи начали делать ещё в 50-х годах прошлого века, так топили все, кто имел водяное отопление. Потом стали постепенно менять печи на ТТ котлы. Но у меня в старой хате по-прежнему стоит такая печь с теплообменником. ИМХО, Вы изобретаете велосипед, причём начали с самых истоков. Не хочу Вам давать советы, просто посоветую неплохого местного мастера, который сварит теплообменник и сложит печь за вменяемые деньги. Interso прав на все 100, от себя добавлю, что систему надо открытую. по поводу открытой - в посте выше..... советы давать поздно т.к. печь уже сложена и девайс пока работает... да велосипед - но только как попытка печкой отопить неприлегающие к ней помещения.... Посилання на коментар Поділитися на інших сайтах More sharing options...
Слободарий Опубліковано: 26 лютого 2013 Поділитись Опубліковано: 26 лютого 2013 Идею поддерживаю. Идея хорошая. Вместе с тем, реализация вызывает некотороые опасения. Пока это как машина без торомозов. Ехать, конечно, можно, но... Первый же перегрев всего до 300 градусов рискует вывести систему из строя. Припой по цвету все же не похож на твердый. В верхних поперечных трубах поток минимален, вероятно, они рискуют больше других. Конструкция имеет продуманную встроенную систему безопасности, т.к. в случае разгерметизации печь будет погашена автоматически. Посилання на коментар Поділитися на інших сайтах More sharing options...
Interso Опубліковано: 26 лютого 2013 Поділитись Опубліковано: 26 лютого 2013 Ну паялась твердым припоем. Попробуйте разогреть припой если в трубе вода. Высокая температура - хорошо, дом в 140 квадратов вряд ли отопит, котел не будет работать. Циркуляция это да..... тут ставить допнасос и возможно какие-то аккумуляторы для его работы на период без электричества.... но что поделаешь - у меня изначально не гравитационная СО....и имплементация данного девайса в печь - как попытка снять киловаты но не как панацея от всего.... нет циркуляции - не буду топить..... Добавлено через 1 минуту по поводу открытой - в посте выше..... советы давать поздно т.к. печь уже сложена и девайс пока работает... да велосипед - но только как попытка печкой отопить неприлегающие к ней помещения.... Незнаю что у вас там за твёрдый припой и я предполагал что вы скажете что мол очень сложно нагреть трубу с водой чтобы припой потёк, но ситуация с разгерметизацией получится со временем из за того что ваш теплообменник во время прогревов и охлаждений будет то розширятся то сужатся и вот эти места пайки со временем дадут трещину и всё. Подобная конструкция сделанна у меня лично, некоторое время я ею пользуюсь но сейчас нет, буду немного переделывать, добавлю в эту систему ТА на втором этаже. Теплообменник я сделал из обыкновенного газового балона вварив в него пять труб для прохождения пламени и поместил его в плиту под углом 45*, подключив его к общей системе отопления. Эффект хароший ,грееются радиаторы и греется дымоходная труба которая проходит внутри дома и выложена из красного кирпича. Топку я сделал длинную, около 80см. 1 Посилання на коментар Поділитися на інших сайтах More sharing options...
timofey79 Опубліковано: 27 лютого 2013 Автор Поділитись Опубліковано: 27 лютого 2013 Подобная конструкция сделанна у меня лично, некоторое время я ею пользуюсь но сейчас нет, буду немного переделывать, добавлю в эту систему ТА на втором этаже. Теплообменник я сделал из обыкновенного газового балона вварив в него пять труб для прохождения пламени и поместил его в плиту под углом 45*, подключив его к общей системе отопления. Эффект хароший ,грееются радиаторы и греется дымоходная труба которая проходит внутри дома и выложена из красного кирпича. Топку я сделал длинную, около 80см. а можно поподробнее, как-то на слух не очень воспринимается: как в плиту вставить ваш ТА и конструкция самого ТА Посилання на коментар Поділитися на інших сайтах More sharing options...
Interso Опубліковано: 27 лютого 2013 Поділитись Опубліковано: 27 лютого 2013 а можно поподробнее, как-то на слух не очень воспринимается: как в плиту вставить ваш ТА и конструкция самого ТА Ну как как, сварю ёмкость и поставлю на втором этаже, там у меня есть подходящее место какраз над плитой, дальше от плиты подключу к ТА и всё готово. Ну а насчёт вставить в плиту ТА тоже мысь была, но надо ещё раз подумать как это сделать, место тоже позволяет так сделать. Посилання на коментар Поділитися на інших сайтах More sharing options...
Рекомендовані повідомлення
Створіть акаунт або увійдіть у нього для коментування
Ви маєте бути користувачем, щоб залишити коментар
Створити акаунт
Зареєструйтеся для отримання акаунта. Це просто!
Зареєструвати акаунтУвійти
Вже зареєстровані? Увійдіть тут.
Увійти зараз