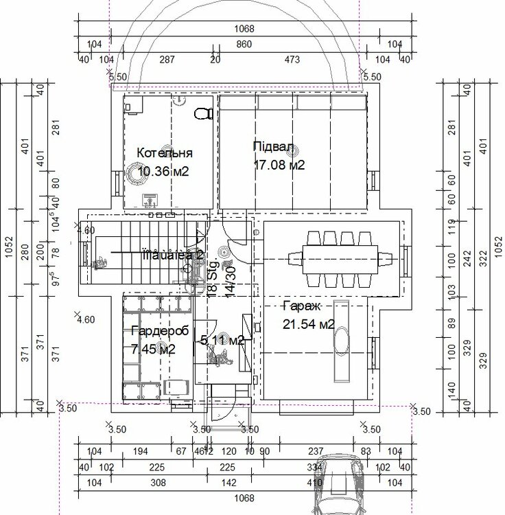
romamys Опубліковано: 16 березня 2013 Поділитись Опубліковано: 16 березня 2013 Добрий день. Шукаю спеціалістів для монтажу обв'язки котла і бойлера, теплої підлоги і радіаторів. Прошу вказувати ціни окремо на кожен тип робіт. Також розгляну пропозиції по продажу обладнання: Котел орієнтовно димохідний VIESSMANN VITOPEND 100 (потужність 23/27 КВт). Розгляну також інші альтернативи (Baxi, Vaillant), але з наведене ними аргументами стосовно їх переваги. напольний бойлер “косвенного” нагріву на 150/200л з можливістю рециркуляції (орієнтовно Drazice) Труба Pex для теплої підлоги 600/700 метрів в залежності від кроку укладки труб (Giacomini, Valtec,…) Колектор на 9-10 виходів + можливо ще один на 2 виходи для цокольного поверху. Колектор для радіаторів на 4 виходи. Радіатори алюмінієві Global. Інформація про об'єкт Розташування обєкта:10 км від Львова в Стрийському напрямку. Будинок : цоколь + 1-й поверх + мансарда. Стіни з керамзитобетону, поштукатурені Перекриття плитами, стяжок ще нема. Опалювальна площа 180м2 Котельня знаходиться в цокольному поверсі. Період виконання робіт – травень – серпень (узгодиться процесі переговорів) Додаю Плани поверхів Що треба зробити Проконсультувати і допомогти підібрати обладнання для котельні і теплої підлоги. В котельній встановити одно-контурний настінний котел + напольний бойлер + вся обвязка: розширювальні баки, насоси, групи безпеки, вихід труб опалення, ГВС, рециркуляції ГВС і т.д. (розводку труб ГВС скоріш за все будемо робити самі). Монтаж і опресовка колекторів і труб теплої підлоги на підготовану основу з пінопласту (підготовку основи і заливку стяжки будемо робити самі) Монтаж радіаторів в мансарді і на сходах (приблизно 5-6 штук Global). В мансарді планується колекторна розводка. Тепла підлога (опалення без радіаторів) 2 вітки в цокольному поверсі, колектор в самій котельній (гардероб, коридор + можливо пару витків від пеьлі з коридору в котельній). 8 віток на першому поверсі, колектор на цьому ж поверсі 1 вітка на мансарді (в ванній для комфорту), по можливості підключення до колектора на першому поверсі. Можливо потрібно буде підключити «воздухоотводчик» і регулятор у самій ванній. Тип укладки – ракушка з послідовно підключеними контурами у краєвій зоні. (можлива змійка у краєвій зоні.) Крок укладки 200/150 мм (150 у краєвій зоні) (спочатку розглядав варіант 150/100, на форумі прочитав що і 300/150 буде давати необхідний результат, вирішив взяти середнє значення.) Додаю приблизні схеми контурів. Довжина віток при кроці 200/150 становить 35м-65м (найдовша у кабінеті, найкоротша - одна з віток вітальні) Вітальня - 4 вітки душ+ коридор - одна вітка Додаю приблизні схеми контурів. Регулювання опалення Теплу підлогу з часом планую підключити до сервопривода з датчиком зовнішньої температури. + терморегулятор на першому поверсі Термоголовки на радіаторах, можливо з часом поставлю електронні терморегулятори у кожній кімнаті. Запитання Яку потужність котла підібрати? Думаю для опалення буде достатньо і 23 КВт, але можливо краще взяти 27 КВт для більш оптимальної роботи бойлера. Якого об’єму вибрати бойлер? Спочатку буде проживати 3-є дорослих + дитина, з часом – 2-є дорослих + 2-3 дітей. Точки водозабору – кухня, душова на першому поверсі, ванна на мансарді. Чи можливо використати один змішувальний вузол і насос у котельній на 2 колектори цокольного і першого поверху, чи потрібно все таки ставити по одному на кожен поверх? І які умови для цього потрібно виконати (однакова довжина всіх віток, додаткова потужність насоса і т.д.). Як краще регулювати температуру на різних поверхах у такому випадку? Чи можливо вивести вітку для ванни на мансарді з колектора першого поверху? Чи не буде колекторна шафа на першому поверсі псувати інтер'єр у холі. Можливо розмістити його у більш схованому місці? Посилання на коментар Поділитися на інших сайтах More sharing options...
romamys Опубліковано: 16 березня 2013 Автор Поділитись Опубліковано: 16 березня 2013 Стосовно радіаторів. Планую ставити по 10 секцій Global 500 у кожній спальні і по 6 секцій Global на сходивих клітках. По розрахунках виходила менша кількість секцій, але вирішив поставити з запасом і щоб краще поєднувалосяз розмірами вікон (у спальнях ширина віконних проємів 120 см, на сходах -75 см). Чи нормальний такий варіант? Не знаю чи ставити радіатор на мансарді у ванній кімнаті, оскільки там буде тепла підлога і рушникосушка. До речі, також потрібна буде рушникосушка у душову, ще не визначився які саму буду ставити, так-що по них теж приймаю пропозиції і рекомендації. І ще хотілося б якось гарно попідключати радіатори, бачив десь як з допомогою спеціальної трубки з нержавійки робили нижнє підключення секційного радіатора. Можливо є якісь альтернативні хороші рішення? Посилання на коментар Поділитися на інших сайтах More sharing options...
murava Опубліковано: 19 березня 2013 Поділитись Опубліковано: 19 березня 2013 Опять сотые витопенды.... да, любит Львов никому не нужную экзотику. Яку потужність котла підібрати? Думаю для опалення буде достатньо і 23 КВт, але можливо краще взяти 27 КВт для більш оптимальної роботи бойлера. Думаю, хватит 24ки, хотя надо посчитать. И весьма желательно поставить конденсационник. Якого об’єму вибрати бойлер? Спочатку буде проживати 3-є дорослих + дитина, з часом – 2-є дорослих + 2-3 дітей. Точки водозабору – кухня, душова на першому поверсі, ванна на мансарді. 150-200литров будет достаточно и оптимально Чи можливо використати один змішувальний вузол і насос у котельній на 2 колектори цокольного і першого поверху, чи потрібно все таки ставити по одному на кожен поверх? І які умови для цього потрібно виконати (однакова довжина всіх віток, додаткова потужність насоса і т.д.). Як краще регулювати температуру на різних поверхах у такому випадку? Можно один на всех. Условие одно - приложить чуточку мозга, выбрать нормальную автоматику управления. Чи можливо вивести вітку для ванни на мансарді з колектора першого поверху? Вполне, очень даже можно. Чи не буде колекторна шафа на першому поверсі псувати інтер'єр у холі. Можливо розмістити його у більш схованому місці? Шкаф можно разместить почти в любом месте. І ще хотілося б якось гарно попідключати радіатори, бачив десь як з допомогою спеціальної трубки з нержавійки робили нижнє підключення секційного радіатора. Можливо є якісь альтернативні хороші рішення? Теми же удлинителями резьбы или нержавеющими трубками на цангу для меди. Это не так уж и сложно, арматуры для таких задач полно, вплоть до дизайнерских решений. 1 Посилання на коментар Поділитися на інших сайтах More sharing options...
Zeland Опубліковано: 19 березня 2013 Поділитись Опубліковано: 19 березня 2013 только хотел звать Мураву )))) Посилання на коментар Поділитися на інших сайтах More sharing options...
murava Опубліковано: 19 березня 2013 Поділитись Опубліковано: 19 березня 2013 только хотел звать Мураву )))) Нинадо меня звать, я сам прихожу .. иногда. Посилання на коментар Поділитися на інших сайтах More sharing options...
romamys Опубліковано: 19 березня 2013 Автор Поділитись Опубліковано: 19 березня 2013 Дякую за відповіді. Опять сотые витопенды.... да, любит Львов никому не нужную экзотику. А можна більш детально по цьому пункту? Особливого фанатизму при виборі цього котла в мене не було. Крім VIESSMANN також розглядав Vaillant i Baxi. Почитав форум, пишуть, що всі вони не погані, що треба вибирати по наявності сервісу поблизу. Вибрав VIESSMANN, так як назва частіше маячила у всяких оголошеннях по сервісу, і бачив їхній салон у Львові. І ще стосовно колекторної шафи. Вчора переглядав сайт з ревізійними люками під плитку і покраску, і з'явилася ідея використати щось подібне для колектора в коридорі-столовій. Чи можете щось порадити по цьому питанню? Є такі колекторні шафи, чи треба комбінувати? Можливо є якась подібна тема з обговоренням цього питання на форумі. Посилання на коментар Поділитися на інших сайтах More sharing options...
murava Опубліковано: 19 березня 2013 Поділитись Опубліковано: 19 березня 2013 А можна більш детально по цьому пункту? В Ваш дом хорошо вписывается конденсационник, дальше встаёт вопрос бюджета: есть 20-25К грн на пакет котла, бочки и всей автоматики - покупаем. Нету - не покупаем. Плюсы глобальны - экономия. При должном утеплении, управлении и правильном параде планет есть шанс даже не выпасть из тарифа 2500кубов. Выбор модели и производителя я бы оставил на совести монтажника - они работают с этим оборудованием чаще, ньансов знают много, во многих случаях отношения с сервисом строятся на личных контактах монтажника и сервисного центра, а не на бюрократических процедурах, которые все заказчики пытаются рассмотреть и систематизировать. В большинстве случаев это бесполезно: хорошо работающий сервис марки А из Харькова не означает такой же пряморукости во Львове. Шкаф: по сути это ниша. Главное, чтобы при необходимости к нему был нормальный доступ покрутить гаечки, подвигать краники. А как Вы ее разукрасите и оформите, какого цвета, формы или стиля будет дверца - второстепенный вопрос. Прийдет монтажник - согласуете. И место установки, и размеры, и удобство. Посилання на коментар Поділитися на інших сайтах More sharing options...
romamys Опубліковано: 19 березня 2013 Автор Поділитись Опубліковано: 19 березня 2013 Стосовно котла я ще буду думати. А які конденсаційники ви б порадили? Посилання на коментар Поділитися на інших сайтах More sharing options...
murava Опубліковано: 19 березня 2013 Поділитись Опубліковано: 19 березня 2013 Это вопрос бюджета и необходимости определенных функций. Покамест я не вижу задачи целиком, поэтому трудно говорить о каких-то более точных рекомендациях. Смотрите в сторону вайлантов, будерусов - не ошибетесь. Посилання на коментар Поділитися на інших сайтах More sharing options...
romamys Опубліковано: 19 березня 2013 Автор Поділитись Опубліковано: 19 березня 2013 А як краще підключити вітку на мансарді від колектора на першому поверсі. Мені треба буде вест труби вверх. Підключати їх як і інші вітки і вигнути вгору, чи докрутити додаткові елементи збоку і зразу направити їх вверх. І якими трубами вести цю ділянку, тими самими що і петлі теплої підлоги чи жорсткими трубами? Як я розумію, у самій ванній мені треба буде поставити вузол регулювання як на зображеннях. Колись зустрічав готові блоки Uponor Unibox, але тоді ще не розумів для чого вони. Я правильно розумію, це те саме? П.С. На всі ці запитання мені зможе відповісти монтажник, але спершу ми думали робити все самі і я вже багато в чому розібрався сам, а залучити людину вирішили для економії часу і нервів. Та й всього необхідного інструменту і навиків для підключення труб до колектора у нас немає. Але поки монтажник не вибраний, хотілося б продовжити свої дослідження цієї теми. Хтозна, можливо частину роботи прийдеться робити самим. Крім того, буде легше пояснити монтажнику, що я хочу, коли буду в курсі справи. Та й монтажники різні бувають, контролювати все одно прийдеться. Посилання на коментар Поділитися на інших сайтах More sharing options...
murava Опубліковано: 19 березня 2013 Поділитись Опубліковано: 19 березня 2013 Не нужны унибоксы для таких задач. Ставьте простую развоздушку в верхней точке - и спите спокойно. Контролировать монтажника? Ню-ню... Посилання на коментар Поділитися на інших сайтах More sharing options...
romamys Опубліковано: 19 березня 2013 Автор Поділитись Опубліковано: 19 березня 2013 Вже зрозумів стосовно юнібокса - це змішувальний вузол, мені він дійсно не потрібен ще один. Дякую. Не нужны унибоксы для таких задач. Ставьте простую развоздушку в верхней точке - и спите спокойно. Контролировать монтажника? Ню-ню... :D Ну дай Бог щоб не прийшлося. Я тільки за. Якщо це буде монтажник з такою репутацією як у вас, тоді можна спати спокійно. Можливо порадите когось у моєму регіоні? Посилання на коментар Поділитися на інших сайтах More sharing options...
murava Опубліковано: 19 березня 2013 Поділитись Опубліковано: 19 березня 2013 Унибокс - это далеко не смесительный узел. Правильней сказать - ограничительный... Ну я могу монтаж сделать. Это несложно. Посилання на коментар Поділитися на інших сайтах More sharing options...
romamys Опубліковано: 19 березня 2013 Автор Поділитись Опубліковано: 19 березня 2013 Унибокс - это далеко не смесительный узел. Правильней сказать - ограничительный... Ну я могу монтаж сделать. Это несложно. Напишіть мені, будь ласка, в приват, або на пошту ваші умови і розцінки. Посилання на коментар Поділитися на інших сайтах More sharing options...
Рекомендовані повідомлення
Створіть акаунт або увійдіть у нього для коментування
Ви маєте бути користувачем, щоб залишити коментар
Створити акаунт
Зареєструйтеся для отримання акаунта. Це просто!
Зареєструвати акаунтУвійти
Вже зареєстровані? Увійдіть тут.
Увійти зараз