S.Michail Опубліковано: 4 квітня 2013 Поділитись Опубліковано: 4 квітня 2013 Всем добрый день! Не желая влазить в чужие темы со своим самоваром (топкой) и начитавшись кучу разны отзывов, пришел к мнению, что мне близка к сердцу Jotul i570. Цена, правда немного кусается, но, возможно, лучше один раз переплатить, чем потом всю жизни жалеть о бездарно принятом решении. Но хотелось-бы услышать мнение не великовата ли по мощности Jotul i570 для дома 160 м.кв, 2 этажа, стены- ракушняк, облицованный кирпичем, в воздушную прослойку засыпан перлит. Изначально планировался открытый камин, ну а теперь...., подумываю не сделать-ли тепловую разводку хотя-бы на две комнаты второго этажа. Если велика, то какая есть альтернатива? Заранее благодарю за совет!!![ATTACH] Посилання на коментар Поділитися на інших сайтах More sharing options...
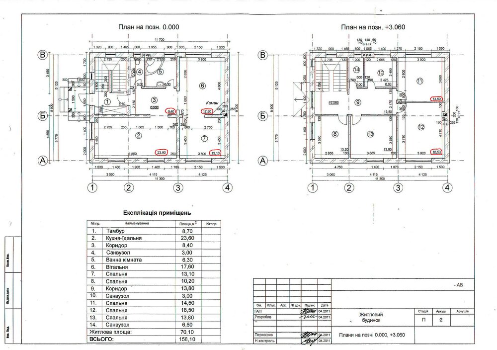
Igor_M Опубліковано: 4 квітня 2013 Поділитись Опубліковано: 4 квітня 2013 Реально отопить (при помощи воздуховодов) вы сможете только две комнаты 1-го этажа (6 и 7) и две - второго (11 и 12). Их общая площадь 65м2. Вот и подумайте - какой мощности камин вам нужен? Однако в режиме тления 570-я будет давать 4-5 КВт, т.е. практически то, что вам для этих комнат и нужно... НО... если вы захотите полюбоваться на огонь, то нужно подумать - куда лишнее тепло отводить? ИМХО. 1 Посилання на коментар Поділитися на інших сайтах More sharing options...
Viks Опубліковано: 4 квітня 2013 Поділитись Опубліковано: 4 квітня 2013 НО... если вы захотите полюбоваться на огонь, то нужно подумать - куда лишнее тепло отводить? ИМХО. Открыть двери в смежные комнаты на время протопки - и делов то... Добавлено через 1 минуту Если велика, то какая есть альтернатива? Заранее благодарю за совет!!![ATTACH] Нормально будет - альтернативы нет. У вас будет достойная альтернатива основному отоплению... 1 Посилання на коментар Поділитися на інших сайтах More sharing options...
Igor_M Опубліковано: 4 квітня 2013 Поділитись Опубліковано: 4 квітня 2013 Открыть двери в смежные комнаты на время протопки - и делов то... Не пойдет тепло в смежные комнаты... Нормально будет - альтернативы нет. У вас будет достойная альтернатива основному отоплению... ... ну или почти всегда. НО это как раз тот случай, когда наличие исключений подтверждает наличие правила...;) См. и все вопросы отпадут... О! почти стихи........... 1 Посилання на коментар Поділитися на інших сайтах More sharing options...
S.Michail Опубліковано: 4 квітня 2013 Автор Поділитись Опубліковано: 4 квітня 2013 Реально отопить (при помощи воздуховодов) вы сможете только две комнаты 1-го этажа (6 и 7) и две - второго (11 и 12). Перестенка между комнатами нет(показано синим цветом), он планируется быть декоративным. Если пустить воздуховод (показано красным цветом) под потолком (и закрыть его гипсокартоном, для красоты) в кухню (поз. 2) это даст отопительный эфект? Получается, что тепло будет приходить под потолок кухни. Есть смысл в такой разводке? Посилання на коментар Поділитися на інших сайтах More sharing options...
Viks Опубліковано: 4 квітня 2013 Поділитись Опубліковано: 4 квітня 2013 Не пойдет тепло в смежные комнаты... ... ну или почти всегда. и все вопросы отпадут... У меня через двери в коридор а потом с первого через втой свет идет на второй эт... В комнате где будет камин - температура будет выше на пару гр. - как не крути Ну видел я этот ролик и что? Вот еще эфекты если кому интересно...покруче 570 1 Посилання на коментар Поділитися на інших сайтах More sharing options...
Igor_M Опубліковано: 4 квітня 2013 Поділитись Опубліковано: 4 квітня 2013 Перестенка между комнатами нет(показано синим цветом), он планируется быть декоративным. Если пустить воздуховод (показано красным цветом) под потолком (и закрыть его гипсокартоном, для красоты) в кухню (поз. 2) это даст отопительный эфект? Получается, что тепло будет приходить под потолок кухни. Есть смысл в такой разводке? В кухню не вижу никакого смысля тянуть. Там по правилам обязательно должна быть вытяжка (вентиляция). На плане не видно где у вас вытяжной канал расположен. Если он будет рядом с поступающим, то теплый воздух сразу улетит в трубу... Да и такое расстояние НЕ ПРЕОДОЛЕЕТ воздух при естественной подаче, разве что трубу поставить диаметром 150мм (и то не факт). Куда больше вероятность того, что можно "добить" до к.13 на втором этаже... 1 Посилання на коментар Поділитися на інших сайтах More sharing options...
Viks Опубліковано: 4 квітня 2013 Поділитись Опубліковано: 4 квітня 2013 Есть смысл в такой разводке? Если принудительная подача - то думаю да, возможна 1 Посилання на коментар Поділитися на інших сайтах More sharing options...
S.Michail Опубліковано: 4 квітня 2013 Автор Поділитись Опубліковано: 4 квітня 2013 В кухню не вижу никакого смысля тянуть. Там по правилам обязательно должна быть вытяжка (вентиляция). На плане не видно где у вас вытяжной канал расположен. Если он будет рядом с поступающим, то теплый воздух сразу улетит в трубу... Да и такое расстояние НЕ ПРЕОДОЛЕЕТ воздух при естественной подаче, разве что трубу поставить диаметром 150мм (и то не факт). Куда больше вероятность того, что можно "добить" до к.13 на втором этаже... Именно так и будет, вытяжка, как раз и расположена на стене с левой стороны. А вот к к.13 было-бы тоже интересно. А какой минимальный диаметр трубы можно протянуть? У меня перекрытие пустотелое ТЕРРИВА, можно было бы воздуховод запрятать во внутрь. Посилання на коментар Поділитися на інших сайтах More sharing options...
Dima_dimohod Опубліковано: 5 квітня 2013 Поділитись Опубліковано: 5 квітня 2013 А какой минимальный диаметр трубы можно протянуть? У меня перекрытие пустотелое ТЕРРИВА, можно было бы воздуховод запрятать во внутрь. 100 мм, но через Терриву не получится, т.к. нужно будет пересекать ж.б. балки на которых держатся пустотные блоки. посмотрите на i530 kam-in.kiev.ua/product_info.php?cPath=30_31&products_id=20 Посилання на коментар Поділитися на інших сайтах More sharing options...
S.Michail Опубліковано: 5 квітня 2013 Автор Поділитись Опубліковано: 5 квітня 2013 100 мм, но через Терриву не получится, т.к. нужно будет пересекать ж.б. балки на которых держатся пустотные блоки. Воздуховод как-раз должен проходить вдоль балок, хотя, может быть, одна укрепляющая поперечная балка есть. Посилання на коментар Поділитися на інших сайтах More sharing options...
S.Michail Опубліковано: 8 квітня 2013 Автор Поділитись Опубліковано: 8 квітня 2013 (змінено) посмотрите на i530 kam-in.kiev.ua/product_info.php?cPath=30_31&products_id=20 В субботу посетил два Ютуловских салона и менеджеры, практически в один голос рекомендуют для меня і530 из-за меньшей мощности. Но я, почему-то, не нашел не видио горения этой топки, ни таких хвалебных отзывов, как о і570. Может конструкция этой топки уже устарела, и нет того эфекта который присущь современным моделям? И еще, смущает вес -всего 125кг., по сравнению с 220кг. в і570, хотя размеры не на много меньше. Что там, тонкий чугун? Змінено 8 квітня 2013 користувачем S.Michail Посилання на коментар Поділитися на інших сайтах More sharing options...
Viks Опубліковано: 8 квітня 2013 Поділитись Опубліковано: 8 квітня 2013 посмотрите на i530 kam-in.kiev.ua/product_info.php?cPath=30_31&products_id=20 www.stroimdom.com.ua/forum/showpost.php?p=1913538&postcount=25 1 Посилання на коментар Поділитися на інших сайтах More sharing options...
S.Michail Опубліковано: 8 квітня 2013 Автор Поділитись Опубліковано: 8 квітня 2013 www.stroimdom.com.ua/forum/showpost.php?p=1913538&postcount=25 Ну..., не совсем убедительно. Посилання на коментар Поділитися на інших сайтах More sharing options...
Viks Опубліковано: 8 квітня 2013 Поділитись Опубліковано: 8 квітня 2013 Ну..., не совсем убедительно. Сходите к менеджерам еще раз... задайте им те же вопросы У застройщиков пока всего по одной топке. Посилання на коментар Поділитися на інших сайтах More sharing options...
Igor_M Опубліковано: 8 квітня 2013 Поділитись Опубліковано: 8 квітня 2013 www.stroimdom.com.ua/forum/showpost.php?p=1913538&postcount=25 По этой ссылке написано мощность номинальная 9, максимальная - 18 КВт. В аттаче - страница из каталога Jotul (кстати топка с 2008 года...) Там что-то про чистое стекло написано, что есть у i500... Правда вот здесь topkamin.com.ua/jotul_2011_kamtop_i530.html есть информация о том, что "В заводской поставке подвод воздуха в топку внизу, но используя дополнительную опцию (TS39С001) можно организовать подачу воздуха сверху, как в топках i18 и i570"... Вам в салонах показывали топки с уже установленной этой опцией??? 1 Посилання на коментар Поділитися на інших сайтах More sharing options...
S.Michail Опубліковано: 9 квітня 2013 Автор Поділитись Опубліковано: 9 квітня 2013 По этой ссылке написано мощность номинальная 9, максимальная - 18 КВт. В аттаче - страница из каталога Jotul (кстати топка с 2008 года...) Там что-то про чистое стекло написано, что есть у i500... Правда вот здесь topkamin.com.ua/jotul_2011_kamtop_i530.html есть информация о том, что "В заводской поставке подвод воздуха в топку внизу, но используя дополнительную опцию (TS39С001) можно организовать подачу воздуха сверху, как в топках i18 и i570"... Вам в салонах показывали топки с уже установленной этой опцией??? Да, говорили, что можно организовать подачу воздуха сверху за дополнительную опцию, которая стоит 400грн., но, я так считаю, это уже будет переделка или доделка. Как она будет работать, если она не предусмотрена изготовлением и не апробирована заводскими испытаниями? А если это действительно работает, то почему эта опция не идет уже в комплекте, с завода? Правилиная и "красивая" работа топки это ведь еще и пристиж марки! С таким успехом можно к китайской топке что-то там подварить, прикрутить, присобачить (короче переделать) и говорить, что получился крутой jotul за 3000грн. А результат будет? Где пользаватели і530 с дополнительной опцией? Отзовитесь. Посилання на коментар Поділитися на інших сайтах More sharing options...
Viks Опубліковано: 9 квітня 2013 Поділитись Опубліковано: 9 квітня 2013 Где пользаватели і530 с дополнительной опцией? Отзовитесь. 80-ка переделанная уже есть - опыт отрицательный поспрашивайте в Ютул-клубе В тендерах может люди покупали... Посилання на коментар Поділитися на інших сайтах More sharing options...
Gonchik Опубліковано: 9 квітня 2013 Поділитись Опубліковано: 9 квітня 2013 80-ка переделанная уже есть - опыт отрицательный поспрашивайте в Ютул-клубе В тендерах может люди покупали... 80-ка не была переделанная - это её родной вариант. У 530-го добавляется верхняя планка, т.е. появляется работающая с-ма чистого стекла. Но 570 мне больше нравится в любом отношении. Посилання на коментар Поділитися на інших сайтах More sharing options...
S.Michail Опубліковано: 9 квітня 2013 Автор Поділитись Опубліковано: 9 квітня 2013 (змінено) 80-ка не была переделанная - это её родной вариант. У 530-го добавляется верхняя планка, т.е. появляется работающая с-ма чистого стекла. Но 570 мне больше нравится в любом отношении. Мне 570 тоже больше нравится, но есть вопрос целесообразности. Если у 570 есть избыточная мощность, то я не смогу топить на полную, то-есть в режиме самоочищения стекла, наслаждаясь приятным видом, так-как температура в доме будет "зашкаливать", а отводить топло наружу, грея атмосферу, мягко говоря, глупо. В то-же время, топя в комфортном режиме-буду иметь закопченое стекло. Вот и выходит какой-то замкнутый круг. Если не ошибаюсь, видел какую-то планку с патрубками сверху 530, но, наверное, должны быть и дополнительные отверстия в саму камеру сгорания.А если они есть, и их достаточно для системы чистого стекла, почему не продавать все вместе, прямо с завода? Или кто-то любит наблюдать огонь через закопченое стекло? Или это наши менеджеры наворачивают на всех этих планках, патрубках, трубах и т.д, а это все идет в комплекте? Змінено 9 квітня 2013 користувачем S.Michail Посилання на коментар Поділитися на інших сайтах More sharing options...
Boy Опубліковано: 9 квітня 2013 Поділитись Опубліковано: 9 квітня 2013 Насколько я понимаю, в режиме тления чистого стекла не будет, а топить интенсивно - будет жарко и не комфортно в помещении где стоит камин. Почему не смотрите в сторону Аустрофламов или Нордпейсов? Себе хочу Аустрофлам, дом 140м2. Посилання на коментар Поділитися на інших сайтах More sharing options...
Yarko Опубліковано: 9 квітня 2013 Поділитись Опубліковано: 9 квітня 2013 Ще залишається варіант доставки акумуляційної маси, яка буде забирати надлишкове тепло. Я собі планую замість теплоізоляції дистрибютора обкласти камін в півцегли для акумуляції "зайвого" тепла (якщо таке буде). Посилання на коментар Поділитися на інших сайтах More sharing options...
Gonchik Опубліковано: 9 квітня 2013 Поділитись Опубліковано: 9 квітня 2013 Мне 570 тоже больше нравится, но есть вопрос целесообразности. Если у 570 есть избыточная мощность, то я не смогу топить на полную, то-есть в режиме самоочищения стекла, наслаждаясь приятным видом, так-как температура в доме будет "зашкаливать", а отводить топло наружу, грея атмосферу, мягко говоря, глупо. В то-же время, топя в комфортном режиме-буду иметь закопченое стекло. Вот и выходит какой-то замкнутый круг. Если не ошибаюсь, видел какую-то планку с патрубками сверху 530, но, наверное, должны быть и дополнительные отверстия в саму камеру сгорания.А если они есть, и их достаточно для системы чистого стекла, почему не продавать все вместе, прямо с завода? Или кто-то любит наблюдать огонь через закопченое стекло? Или это наши менеджеры наворачивают на всех этих планках, патрубках, трубах и т.д, а это все идет в комплекте? Да не бойтесь Вы того перетопа! У меня стоит 570 в гостинной 35 м.кв. без разводки - спокойно закладываю полную топку 60 см. дров. Могу на ночь чурку такого диаметра, что едва проходит в дверцу. 530 брал бы вместо 570 только из-за лимита по деньгам. 530 изначально сделали без верхней подачи, потом додумались проапгрейдить. Оттого и продают теперь отдельно верхнюю планку. 1 Посилання на коментар Поділитися на інших сайтах More sharing options...
S.Michail Опубліковано: 9 квітня 2013 Автор Поділитись Опубліковано: 9 квітня 2013 Почему не смотрите в сторону Аустрофламов или Нордпейсов? Себе хочу Аустрофлам, дом 140м2. Мне топка нужна и для резервного отопления, дом в селе, возможны перебои с электричеством. А после этой зимы тем более нужно задуматься о "После завтра". Вот и клюнул на jotul после хвалебных отзывах на форумах. А Аустрофламы, вроде-бы чисто для души, для режима отпления более 5-6 часов не годятся. По Нордпейсам пока вопрос не прорабатывался. . Кстати, нароете интересную топку-делитесь информацией. Добавлено через 18 минут Ще залишається варіант доставки акумуляційної маси, яка буде забирати надлишкове тепло. Я собі планую замість теплоізоляції дистрибютора обкласти камін в півцегли для акумуляції "зайвого" тепла (якщо таке буде). Мені здається акумуляційна маса вбирає тепло десь перші пів години інтенсивного горіння і віддає після закінчення топки. Решту часу вона ніяк не впливає на накопичення чи виділення тепла. Виділене тепло при горінні або вилітає через воздуховоди в кімнати, або в трубу.Фізика. Посилання на коментар Поділитися на інших сайтах More sharing options...
Yarko Опубліковано: 9 квітня 2013 Поділитись Опубліковано: 9 квітня 2013 Мені здається акумуляційна маса вбирає тепло десь перші пів години інтенсивного горіння і віддає після закінчення топки. Решту часу вона ніяк не впливає на накопичення чи виділення тепла. Виділене тепло при горінні або вилітає через воздуховоди в кімнати, або в трубу.Фізика. Я не спец в розрахунках теплоємності але специ нас тут лякають що навпаки буде важко нагріти масу через її велику теплоємність. Маю надію правда є десь посередині. Посилання на коментар Поділитися на інших сайтах More sharing options...
Рекомендовані повідомлення
Створіть акаунт або увійдіть у нього для коментування
Ви маєте бути користувачем, щоб залишити коментар
Створити акаунт
Зареєструйтеся для отримання акаунта. Це просто!
Зареєструвати акаунтУвійти
Вже зареєстровані? Увійдіть тут.
Увійти зараз