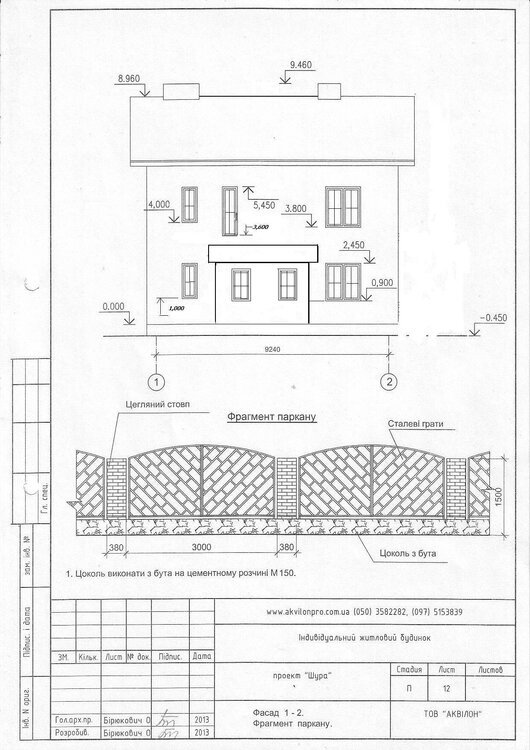
Oleg8510 Опубліковано: 16 квітня 2013 Поділитись Опубліковано: 16 квітня 2013 Вот и позади все переживания по поводу строить не перестроить.Отступать уже некуда,да и не зачем.Решение принято,бригада 18 Апреля должна заехать на участок Немного предыстории:Дом в с.Гора достался от родителей они его купили в 1987г. до этого был дом в Ровенской обл. и родители решили переехать "поближе к детям".Переехали мы с женой в село ровно два года назад,в Киеве оставили детям трёшку а сами поближе к земле.Анекдот:доктор я такой больной мне никто не может помочь...да у вас очень серьёзный случай поезжайте ка голубчик в Москву к знаменитому профессору...уж если не он.Больной приехал,профессор его осмотрел и выписал путёвку в Саки на грязелечение-доктор а шо поможет-та не к земле привыкайте В общем жить в селе нам понравилось:На работу(Харьковский массив) еду 8м.Воздух тишина и всё такое. первым делом я сделал забор,скважину,заменил котёл и водогрейку,заменил ванную и установил унитаз а также сделал косметический ремонт в доме.Живи и радуйся...но дом то старый,я спросил у соседа так он сказал,что дом постройки 1949г.А строили тогда...у кого что было типа дерево обмазанное глиной и вместо фундамента шпалы,потом в 80х. его достроили и обложили кирпичём,но внутренние стены потихоньку садятся.Было принято решение строить новый дом и в том же 2011г.я заказываю проэкт нового дома на 350м.План был таков:продать в Киеве трёшку(шороший проект новостройка) строиться и жить всем вместе(у нас трое хлопцев 21,23,27) А пока квартира была на продаже мы туда заселили детей-и слава Богу что не продалась:D.Когда мы начали жить в селе вдвоём-мы поняли как это классно и ещё мы поняли,что с проектом мы погорячилисьдети живут отдельно а нам большой дом не нужен.В этом году купил проект поменьше-чуть его переделал и в общем начинаю.Почему назвал домик в режиме онлайн-потому что всё с пылу с жару-фотки сделаны сегодня и вобще планирую всё что буду делать описывать и фотографировать и главное получать критикуЯ далёк от строительства но люблю изучать суть вопроса и времени у меня сейчас много я уже на пенсии от дел практически отошел поэтому жду советов.Хотя здесь на форуме есть авторы тем которым не нравится когда их критикуют...а зачем тогда создавать тему Итак газоблок Д400, В2,5, 400мм.внутренняя несущая стена кирпич 380мм.крыша двухскатка,фундамент пятка монолит дальше ФБС дальше армпояс.Проект прилагаю... 3 Посилання на коментар Поділитися на інших сайтах More sharing options...
Oleg8510 Опубліковано: 16 квітня 2013 Автор Поділитись Опубліковано: 16 квітня 2013 Было время кокда я даже думал отремонтировать старый дом,но вовремя передумал во многом благодаря этому форуму Прилагаю несколько фоток с места событий:кстати после строительства старый дом и гараж будут сноситься.Завтра планирую снять растительный слой земли. 3 Посилання на коментар Поділитися на інших сайтах More sharing options...
Катерина Ш Опубліковано: 16 квітня 2013 Поділитись Опубліковано: 16 квітня 2013 Подписываюсь! Интересно))) И сторож у Вас уже серьезный есть 2 Посилання на коментар Поділитися на інших сайтах More sharing options...
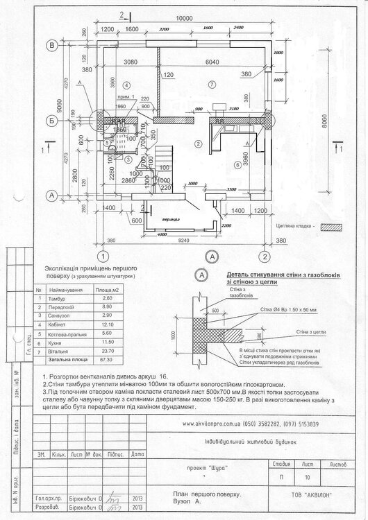
Игореха Опубліковано: 16 квітня 2013 Поділитись Опубліковано: 16 квітня 2013 Что-то мне кажется, что спальня 5 несколько больше. Ошибочка. Там все 24 квадрата, а не 18 А вот спальня 6 меньше - 12 квадратов. По планировке очень близко к моему проекту, особенно второй этаж Добавлено через 10 минут Неплохое подспорье для строительства - наличие старого жилого дома и гаража, колторый наверняка станет складом на время стройки Ну и антенн у вас напичкано;):D 1 Посилання на коментар Поділитися на інших сайтах More sharing options...
Oleg8510 Опубліковано: 16 квітня 2013 Автор Поділитись Опубліковано: 16 квітня 2013 На сегодняшний день купил бетономешалку,лопаты,рукавицы,леску разметочную вобщем мелочь.Кстати хочу предложить строителям сделать туалет прямо на септике отстоечном-у меня их два.Для того чтобы не рыть на участке лишнюю яму.Кто что думает по этому поводу? Ещё пару фоток: Посилання на коментар Поділитися на інших сайтах More sharing options...
AНДРЮША Опубліковано: 16 квітня 2013 Поділитись Опубліковано: 16 квітня 2013 У меня уличный туалет стоит над септиком. Используется в теплое время, когда ведутся роботы на участке, что бы не бегать в дом. 1 Посилання на коментар Поділитися на інших сайтах More sharing options...
Oleg8510 Опубліковано: 16 квітня 2013 Автор Поділитись Опубліковано: 16 квітня 2013 Что-то мне кажется, что спальня 5 несколько больше. Ошибочка. Там все 24 квадрата, а не 18 А вот спальня 6 меньше - 12 квадратов. По планировке очень близко к моему проекту, особенно второй этаж Добавлено через 10 минут Неплохое подспорье для строительства - наличие старого жилого дома и гаража, колторый наверняка станет складом на время стройки Ну и антенн у вас напичкано;):D Всё правильно я писал что проект немного изменил под себя а цифры остались старые. Люблю смотреть каналы в HD качестве:D 1 Посилання на коментар Поділитися на інших сайтах More sharing options...
Игореха Опубліковано: 16 квітня 2013 Поділитись Опубліковано: 16 квітня 2013 Всё правильно я писал что проект немного изменил под себя а цифры остались старые. Люблю смотреть каналы в HD качестве:D Ага. Понял. Вы только перестенки туда-сюда подвигали, или были какие-то концептыальные изменения относительно исходного проекта? Посилання на коментар Поділитися на інших сайтах More sharing options...
Oleg8510 Опубліковано: 16 квітня 2013 Автор Поділитись Опубліковано: 16 квітня 2013 (змінено) Ага. Понял. Вы только перестенки туда-сюда подвигали, или были какие-то концептыальные изменения относительно исходного проекта? На первом этаже из зала и из кухни были двери на улицу под навес.Я это дело убрал и ещё пристроил веранду вместо навеса над входной дверью, при входе был маленький тамбурок , и кусок стены на кухне убрал ну и перестенки...Ещё здесь было три трубы я оставил две и камин перенёс на другую стенку. Змінено 16 квітня 2013 користувачем Oleg8510 1 Посилання на коментар Поділитися на інших сайтах More sharing options...
КОРН Опубліковано: 16 квітня 2013 Поділитись Опубліковано: 16 квітня 2013 На первом этаже из зала и из кухни были двери на улицу под навес.Я это дело убрал и ещё пристроил веранду вместо навеса над входной дверью, при входе был маленький тамбурок , и кусок стены на кухне убрал ну и перестенки...Ещё здесь было три трубы я оставил две и камин перенёс на другую стенку. а говорите - далеки от строительства. Главное - здраво мыслите! 1 Посилання на коментар Поділитися на інших сайтах More sharing options...
AНДРЮША Опубліковано: 17 квітня 2013 Поділитись Опубліковано: 17 квітня 2013 Из кухни зря дверь на улицу убрали. 2 Посилання на коментар Поділитися на інших сайтах More sharing options...
Oleg8510 Опубліковано: 17 квітня 2013 Автор Поділитись Опубліковано: 17 квітня 2013 Из кухни зря дверь на улицу убрали. Обоснуйте пожалуйста Посилання на коментар Поділитися на інших сайтах More sharing options...
Oleg8510 Опубліковано: 17 квітня 2013 Автор Поділитись Опубліковано: 17 квітня 2013 Сегодня с утра сняли плодородный слой: делов 1ч30м. денег 450гр. Посилання на коментар Поділитися на інших сайтах More sharing options...
AНДРЮША Опубліковано: 17 квітня 2013 Поділитись Опубліковано: 17 квітня 2013 Обоснуйте пожалуйста Когда строится дом, первое о чем мечтается - это сидишь на террасе и попиваешь (кофе, пиво, водку - поставить по своему усмотрению). Сам живу в доме, в выходные обедаем на улице, а был бы выход из кухни так и завтракали бы. А то приходится далеко таскать сначала полные тарелки, потом пустые. 6 Посилання на коментар Поділитися на інших сайтах More sharing options...
Oleg8510 Опубліковано: 17 квітня 2013 Автор Поділитись Опубліковано: 17 квітня 2013 Когда строится дом, первое о чем мечтается - это сидишь на террасе и попиваешь (кофе, пиво, водку - поставить по своему усмотрению). Сам живу в доме, в выходные обедаем на улице, а был бы выход из кухни так и завтракали бы. А то приходится далеко таскать сначала полные тарелки, потом пустые. Согласен,но у меня запланирована беседка-барбекю в более укромном месте.Дело в том,что по проекту и по расположению на участке кухня находится близко к уличному забору-7-8м.Один из недостатков когда на участке уже есть дом... Посилання на коментар Поділитися на інших сайтах More sharing options...
Ольга В Опубліковано: 17 квітня 2013 Поділитись Опубліковано: 17 квітня 2013 ....План был таков:продать в Киеве трёшку(хороший проект новостройка) строиться и жить всем вместе(у нас трое хлопцев 21,23,27) А пока квартира была на продаже мы туда заселили детей-и слава Богу что не продалась:D.Когда мы начали жить в селе вдвоём-мы поняли как это классно и ещё мы поняли,что с проектом мы погорячилисьдети живут отдельно а нам большой дом не нужен... Извините за офф-топ, но как вы расселили детей? Расскажите подробнее, если можно. Посилання на коментар Поділитися на інших сайтах More sharing options...
Oleg8510 Опубліковано: 18 квітня 2013 Автор Поділитись Опубліковано: 18 квітня 2013 Извините за офф-топ, но как вы расселили детей? Расскажите подробнее, если можно. Ответ отправил в личку Посилання на коментар Поділитися на інших сайтах More sharing options...
Oleg8510 Опубліковано: 18 квітня 2013 Автор Поділитись Опубліковано: 18 квітня 2013 Урасегодня приехали строители,сделали разметку участка,кровать из досок+в гараже есть диван и сбили туалет прям на септике завтра сфоткаю покажу.Не обошлось без приключений: мой Шериф сгрыз четыре разбивочных шнура:D.Пришлось привязать(молодой ещё только два года) Посилання на коментар Поділитися на інших сайтах More sharing options...
Oleg8510 Опубліковано: 19 квітня 2013 Автор Поділитись Опубліковано: 19 квітня 2013 Сегодня произошло то,чего я в общем то и боялся-показалась газовая труба во всей красе.Газовщики приходили на участок и сказали,что она должна:Dидти 1,5-2м. от дома однако её проложили практически вплотную к дому.Прийдётся срочно переваривать и отводить её в сторону...это ещё та работа.Туалет как и предполагалось поставили на септике,пригодилась даже старая дверь пролежавшая три года на улице. 1 Посилання на коментар Поділитися на інших сайтах More sharing options...
Игореха Опубліковано: 19 квітня 2013 Поділитись Опубліковано: 19 квітня 2013 Газовая труба только ваша индивидуальная надеюсь? Посилання на коментар Поділитися на інших сайтах More sharing options...
Oleg8510 Опубліковано: 19 квітня 2013 Автор Поділитись Опубліковано: 19 квітня 2013 Газовая труба только ваша индивидуальная надеюсь? Да это моя труба зканчивается на моём доме с конторой думаю не связываться(очень долго и дорого будут решать) в понедельник должен приехать "частный" газовщик Посилання на коментар Поділитися на інших сайтах More sharing options...
Игореха Опубліковано: 19 квітня 2013 Поділитись Опубліковано: 19 квітня 2013 Да это моя труба зканчивается на моём доме с конторой думаю не связываться(очень долго и дорого будут решать) в понедельник должен приехать "частный" газовщик Ну главное чтобы проблем потом не возникло с газовщиками. И варить придется под давлением. Или ваш отвод можно перекрыть локально? Когда-то переносили свою трубу, правда за нами на ней сидело еще 2 дома. Еще та эпопея Но правда связывались с газовщиками, поскольку труба так проходила по проекту. Да и вваривание под давлением... лучше заплатить, чем всю ответственность брать на себя. 1 Посилання на коментар Поділитися на інших сайтах More sharing options...
Oleg8510 Опубліковано: 19 квітня 2013 Автор Поділитись Опубліковано: 19 квітня 2013 Газовщик местный знает входы и выходы и сказал что у нас давление не высокое и всё решается В крайнем случае если цену заломят-перенесу фундамент на полтора метра вплотную к гаражу и переделаю СП. Посилання на коментар Поділитися на інших сайтах More sharing options...
Игореха Опубліковано: 19 квітня 2013 Поділитись Опубліковано: 19 квітня 2013 У нас труба тоже низкого давления, но факел был высотою под 2 метра.:D Зрелище - завораживающее И как у них очко не репит, когда они под давлением варят - ХЗ Посилання на коментар Поділитися на інших сайтах More sharing options...
Oleg8510 Опубліковано: 23 квітня 2013 Автор Поділитись Опубліковано: 23 квітня 2013 УраЭпопея с переносом газовой трубы завершилась.Я вам скажу ...это ещё та работка Но слава Богу всё закончилось хорошо А строители тем временем связали арматуру,сегодня привезли мелкий щебень для засыпки на дно траншеи,в общем работа потихоньку продвигается.Соседи глядя на горы песка у меня во дворе наверное думают,что я строю бункер:D 1 Посилання на коментар Поділитися на інших сайтах More sharing options...
Рекомендовані повідомлення