Oleg8510 Опубліковано: 22 серпня 2014 Автор Поділитись Опубліковано: 22 серпня 2014 Мне так думается, что с точки зрения экономики и удобства, есть смысл расслабиться и сделать 100мм утепеление ватой потолка с самым простым ветробарьером сверху. И утеплить кровлю холодного чердака 150мм ватой по стропилам. Какой кайф играть на бильярде холодными шарами?:D:beer:;) А так и в комнатах второго этажа будет тепло и тихо, и холодный чердак стенет более прогреваемым комфортым помещением. Это просто мое ИМХО Спасибо Кирилл за предложение, тоже думал на эту тему. С одной стороны да если дать на потолок не 200мм а 100мм ваты-часть тепла пойдет на чердак(и там останется при условии утепления кровли) С другой стороны прийдется увеличивать температуру теплоносителя, а это уже допрасходы... В общем надо просчитывать все варианты, ну а крышу буду по любому утеплять Посилання на коментар Поділитися на інших сайтах More sharing options...
Катерина Ш Опубліковано: 22 серпня 2014 Поділитись Опубліковано: 22 серпня 2014 Спасибо Кирилл за предложение, тоже думал на эту тему. С одной стороны да если дать на потолок не 200мм а 100мм ваты-часть тепла пойдет на чердак(и там останется при условии утепления кровли) С другой стороны прийдется увеличивать температуру теплоносителя, а это уже допрасходы... В общем надо просчитывать все варианты, ну а крышу буду по любому утеплять Привет, Олег! Я буду через час-полтора на работе, можно попробовать просчитать несколько вариантов... Свои предложения тоже напишу уже с компа. 1 Посилання на коментар Поділитися на інших сайтах More sharing options...
Катерина Ш Опубліковано: 22 серпня 2014 Поділитись Опубліковано: 22 серпня 2014 Тааак-с.... Мы подумали, и я решила(с) Перечитала я последних три странички и посмотрела расчеты. Вот, что скажу (ну, это конечно только мое мнение, решать Олегу): 1. Делать холодную бильярдную - плохая идея. Холодные шары и кий - то такое, а вот для бильярдного стола (который кстати стоит не 3 коп.), это очень плохо. Если там, на чердаке, все-таки будет бильярдная, то прийдеться ее отапливать. Ну, держать температуру +20 все время там не надо, а вот +10 необходимо. 2. Кирилл, написал очень хорошее предложение - утеплять все-таки крышу (минимум 150 мм) и 100 мм ложить на пол. 3. Никакой ГИ на пол не нужно (хоть отапливаемый чердак, хоть нет). Вы ж там воду разливать не будете?! А от осадков - все предусмотрено на крыше))) Олег, если ты сомневаешься как делать - отапливать или нет, я могу просчитать разницу в затратах на отопление обоих вариантов, чтоб можно было их сравнить и оценить. Тогда мне нужны будут данные по твоему дому..... Чтоб я не строчила дальше домыслы и размышления - ждем ТС))) 3 Посилання на коментар Поділитися на інших сайтах More sharing options...
Игореха Опубліковано: 22 серпня 2014 Поділитись Опубліковано: 22 серпня 2014 Если там, на чердаке, все-таки будет бильярдная, то прийдеться ее отапливать. Вот и я за этот вариант 2 Посилання на коментар Поділитися на інших сайтах More sharing options...
Hordi Опубліковано: 22 серпня 2014 Поділитись Опубліковано: 22 серпня 2014 ... отапливать или нет. Отапливать чердак 6 месяцев в году из-за бильярда? И при этом играть при температуре 10 градусов? Посилання на коментар Поділитися на інших сайтах More sharing options...
Катерина Ш Опубліковано: 22 серпня 2014 Поділитись Опубліковано: 22 серпня 2014 Отапливать чердак 6 месяцев в году из-за бильярда? И при этом играть при температуре 10 градусов? Не, когда играть надо делать температуру выше, естественно, комфортную +18 - +22)))) А отапливать надо или стол спускать, бильярд вообще дорогое удовольствие;) 1 Посилання на коментар Поділитися на інших сайтах More sharing options...
Oleg8510 Опубліковано: 22 серпня 2014 Автор Поділитись Опубліковано: 22 серпня 2014 Спасибо Катя, пересчитывать ничего не нужно, я думаю если сделать как предложил Кирилл то там-в бильярдной будет примерно 10 гр если на улице -10. А когда надо играть подключаются электробатареи...как то так. Спасибо всем кто откликнулся Посилання на коментар Поділитися на інших сайтах More sharing options...
Игореха Опубліковано: 22 серпня 2014 Поділитись Опубліковано: 22 серпня 2014 Отапливаться будет не чердак Отапливаться будут, фактически, ограждающие конструкции. Лично я не вижу смертельной разницы, между отоплением (компенсацией теплопотерь) 100кв перекрытия, или 130кв кровли (условно) Это при условии, что для игры в бильярд хотя бы 4 раза за зиму, надо будет потратить некислую сумму денег чтобы разогнать чердак до приемлемых... 15-18 градусов, хотя бы. Ну и сам стол не должен страдать, даже когда за ним не играют. Так что правильное(!) и хорошее утепление кровли и аттиковой/фронтонной стен, не так уж и сильно подвинет бюджет по отоплению, в отличии от отопления перекрытия. Добавлено через 3 минуты Спасибо Катя, пересчитывать ничего не нужно, я думаю если сделать как предложил Кирилл то там-в бильярдной будет примерно 10 гр если на улице -10. А когда надо играть подключаются электробатареи...как то так. Спасибо всем кто откликнулся Кровлю утепляйте сразу и капитально (200-250мм)! Это будет основная ограждающая конструкция! А чердачное перекрытие утеплите до 100мм, для того чтобы разграничить тепловые режимы помещений (этажа и чердака) и немного экономить на отоплении чердака в "межсезонье" (когда он не нужен, и держать там +5..+10). Но основной контур утепления коробки будет замыкаться на кровле, через нее же и будут идти теплпотери. 2 Посилання на коментар Поділитися на інших сайтах More sharing options...
Катерина Ш Опубліковано: 22 серпня 2014 Поділитись Опубліковано: 22 серпня 2014 Спасибо Катя, пересчитывать ничего не нужно, я думаю если сделать как предложил Кирилл то там-в бильярдной будет примерно 10 гр если на улице -10. А когда надо играть подключаются электробатареи...как то так. Спасибо всем кто откликнулся Не совсем так. Какая площадь крыши над горищем и какая площадь пола? Посилання на коментар Поділитися на інших сайтах More sharing options...
Hordi Опубліковано: 22 серпня 2014 Поділитись Опубліковано: 22 серпня 2014 Лично я не вижу смертельной разницы, между отоплением (компенсацией теплопотерь) 100кв перекрытия, или 130кв кровли (условно). Ну как бы не так чтобы и мало - 30%. И это только ограждающая конструкция. А еще нагреть другие конструкции нужно и весь объем чердака. Играть в бильярд на чердаке... уж лучше тогда в клуб сходить. ИМХО летом будет очень жарко, даже если утеплителя 30см. Посилання на коментар Поділитися на інших сайтах More sharing options...
Oleg8510 Опубліковано: 22 серпня 2014 Автор Поділитись Опубліковано: 22 серпня 2014 надо будет потратить некислую сумму денег чтобы разогнать чердак до приемлемых... 15-18 градусов, хотя бы. Дык бильярдная комната будет как раз посреди чердака-площадь примерно 30-33м2. и кубатура будет не большая-высота по краям 170см а по центру 250см, так что на отопление не так уж и много уйдет денег Посилання на коментар Поділитися на інших сайтах More sharing options...
Игореха Опубліковано: 22 серпня 2014 Поділитись Опубліковано: 22 серпня 2014 Ну как бы не так чтобы и мало - 30%. 30% - только в этом месте. А в общем, "по палате", т.е. на весь дом? Добавлено через 1 минуту А еще нагреть другие конструкции нужно и весь объем чердака. Они нагреваются только один раз. Дальше они служат теплоаккумуляторами В случае с периодическим разогревом чердака при стабильных +10, они лишь догреваются, а дальше опять - аккумулируют. Они сами никуда это тепло не девают. Оно сохраняется в них. Добавлено через 1 минуту ИМХО летом будет очень жарко, даже если утеплителя 30см. У меня сейчас на чердаке, в самый солцепек, температура +26..+28. И это совсем без утеплителя. Если утеплить хророшо, да еще и кондишку небольшую поставить, то там можно будет замерзнуть летом ;) Добавлено через 1 минуту Играть в бильярд на чердаке... Ну хозяин-барин! ))) Я тоже на чердаке.... не очень. Поэтому бильярдная у меня в цоколе Посилання на коментар Поділитися на інших сайтах More sharing options...
Oleg8510 Опубліковано: 22 серпня 2014 Автор Поділитись Опубліковано: 22 серпня 2014 Да еще забыл написать -эта комната будет отделена от чердака и стен, стены комнаты планирую сделать из гипсокартона и внутри 100мм ваты как то так... Добавлено через 3 минуты Не совсем так. Какая площадь крыши над горищем и какая площадь пола? Бильярдная уже писал-33м2 весь чердак 90м2 площадь крыши 140м2. Посилання на коментар Поділитися на інших сайтах More sharing options...
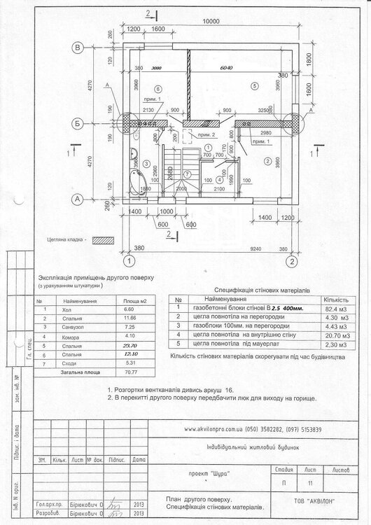
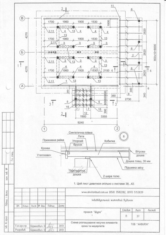
Игореха Опубліковано: 22 серпня 2014 Поділитись Опубліковано: 22 серпня 2014 Да еще забыл написать -эта комната будет отделена от чердака и стен, стены комнаты планирую сделать из гипсокартона и внутри 100мм ваты как то так... Определитесь с основным контуром утепления и нужно ли вам иметь мемпературу +10 в остальных чердачных помещениях. Если в остальных помещениях будет холодный чердак, то основной контур утепления надо делать вокруг бильярдной и по части перекрытия, т.е. 200-250мм. Не нужнго городить многослойное утепление по всему чердаку (100 + 200). утепление 100мм - "барьерное", только для разделения помещений с постоянной Т=20 и Т=10(периодически). ПС Уже давно дали бы планы чердачных помещений и кровли с разрезами, и с температурными режимами по каждому из помещений. Было бы проще что-то мудрить/думать. 2 Посилання на коментар Поділитися на інших сайтах More sharing options...
Oleg8510 Опубліковано: 22 серпня 2014 Автор Поділитись Опубліковано: 22 серпня 2014 Определитесь с основным контуром утепления и нужно ли вам иметь мемпературу +10 в остальных чердачных помещениях. Если в остальных помещениях будет холодный чердак, то основной контур утепления надо делать вокруг бильярдной и по части перекрытия, т.е. 200-250мм. Не нужнго городить многослойное утепление по всему чердаку (100 + 200). утепление 100мм - "барьерное", только для разделения помещений с постоянной Т=20 и Т=10(периодически). ПС Уже давно дали бы планы чердачных помещений и кровли с разрезами, и с температурными режимами по каждому из помещений. Было бы проще что-то мудрить/думать. Планов чердачных помещений нет так как нет больше помещений кроме бильярдной. Я так понял,что там где будет холодный чердак-утеплять надо пол 200мм а там где комната утепление 100мм. ну и естественно утепляется крыша-правильно? Посилання на коментар Поділитися на інших сайтах More sharing options...
Игореха Опубліковано: 22 серпня 2014 Поділитись Опубліковано: 22 серпня 2014 Планов чердачных помещений нет так как нет больше помещений кроме бильярдной. Я так понял,что там где будет холодный чердак-утеплять надо пол 200мм а там где комната утепление 100мм. ну и естественно утепляется крыша-правильно? Вариантов может быть... не один, это точно )) Но чтобы дать один, достаточно хороший, надо видеть планы. Кровля/помещения. Ну если это даже не помещения, то назовем их карманами. Просто, в зависимости от реальной конструкции кровли и стен(внутренних, наружных, аттиковых, фронтонных) можно подобрать оптимальный вариант по утеплению, чтобы меньше расходовать энергоносителей на отопление. Можно утеплить в виде "_П_", а можно в виде "/\", а можно и так "/~\". Все зависит от совокупности площадей контура утепления. Утепление в виде "_П_" при прочих равных условиях, будет хуже чем вариант "/~\", т.к. площадь ограждающих конструкций в первом варианте больше. Но нужно видеть всю картину с размеравми и тепловыми режимами помещений, чтобы посчитать оптимальный вариант. ;) Добавлено через 5 минут Отрыл фотографии вашей коробки и стропилки. У вас есть/будет внешнее утепление по стенам(ГБ)? Я просто уже не помню всех нюансов. Посилання на коментар Поділитися на інших сайтах More sharing options...
Oleg8510 Опубліковано: 22 серпня 2014 Автор Поділитись Опубліковано: 22 серпня 2014 У вас есть/будет внешнее утепление по стенам(ГБ)? Я просто уже не помню всех нюансов. Да Игорь утепление будет 50мм ваты + силиконовая штукатурка, а что это за значки с вариантами утепления? Посилання на коментар Поділитися на інших сайтах More sharing options...
Игореха Опубліковано: 22 серпня 2014 Поділитись Опубліковано: 22 серпня 2014 Да Игорь утепление будет 50мм ваты + силиконовая штукатурка, а что это за значки с вариантами утепления? :D Условные изображения контуров (по кровле/стенам/перекрытию) Ну не в фотошопе же их рисовать. Вроде должно быть понятно. Если у вас будет контур утепления по стенам, очевидно он будет захватывать и аттиковые стены, и фронтонные? Если так, то не вижу смысла терять верхнюю часть контура утепления (выше перекрытия второго этажа). И этот контур надо целиком вовлекать в утепление дома. Значит - основной контур утепления, просится по вариатну "/~\". Остается вписать разделительный контур утепления (внуренний). Есть хоть один разрез коробки со стороны фронтонной стены, с перекрытиями и чердачными перестенками, ну и план чердачных помещений(я) из проекта? Посилання на коментар Поділитися на інших сайтах More sharing options...
Катерина Ш Опубліковано: 22 серпня 2014 Поділитись Опубліковано: 22 серпня 2014 Планов чердачных помещений нет так как нет больше помещений кроме бильярдной. Я так понял,что там где будет холодный чердак-утеплять надо пол 200мм а там где комната утепление 100мм. ну и естественно утепляется крыша-правильно? Хороший вариант. При таком раскладе без отопления в бильярдной при -10 и +20 внутри дома будет +6 - +8, а вот при -20 уже будет +2 +4, что не есть гуд. Я б все-таки там предусмотрела стационарное отопление (можно поставить программируемый конвектор, как у Татьяны5 в ее каркасных дачках). Если Вы сделаете такое утепление как прописали, то дополнительных потерь на отопление при поддержании там температуры +10 - +15 градусов дополнительно уйдет 150-200 куб.м газа 1 Посилання на коментар Поділитися на інших сайтах More sharing options...
Hordi Опубліковано: 22 серпня 2014 Поділитись Опубліковано: 22 серпня 2014 ... Я так понял,что там где будет холодный чердак-утеплять надо пол 200мм ... Маловато. Ориентироваться нужно на 250мм, а в идеале - 300мм. 2 Посилання на коментар Поділитися на інших сайтах More sharing options...
Oleg8510 Опубліковано: 22 серпня 2014 Автор Поділитись Опубліковано: 22 серпня 2014 Есть хоть один разрез коробки со стороны фронтонной стены, с перекрытиями и чердачными перестенками, ну и план чердачных помещений(я) из проекта? Выдаю все что имеет отношение к теме, правда стропилка у меня переделана не так как по проекту,утепляться будут все стены включая фронтоны и аттиковые: Посилання на коментар Поділитися на інших сайтах More sharing options...
Oleg8510 Опубліковано: 22 серпня 2014 Автор Поділитись Опубліковано: 22 серпня 2014 на отопление при поддержании там температуры +10 - +15 градусов дополнительно уйдет 150-200 куб.м газа Это нормально и меня устраивает Посилання на коментар Поділитися на інших сайтах More sharing options...
Катерина Ш Опубліковано: 22 серпня 2014 Поділитись Опубліковано: 22 серпня 2014 Это нормально и меня устраивает Хорошо))) Ну, ты ж знаешь, что на утепление горизонтальных поверхностей можно использовать относительно дешевую рулонную вату, а на наклонные поверхности надо более плотную, более дорогую. Рекомендую, 250 мм для холодного чердака, економическиоправданная оптимальная толщина))) 2 Посилання на коментар Поділитися на інших сайтах More sharing options...
Игореха Опубліковано: 22 серпня 2014 Поділитись Опубліковано: 22 серпня 2014 (змінено) Выдаю все что имеет отношение к теме, правда стропилка у меня переделана не так как по проекту,утепляться будут все стены включая фронтоны и аттиковые: Честно? Мое имхо, при таких параметрах коробки и наружном дополнительном утеплении по всем стенам, я не вижу особого смысла топить дом и не топить чердак, с учетом его периодической "теплой эксплуатации". Полный контур наружного утепления по стенам и кровле + утепление ДО 100мм по перекрытию, по всей площади. Может Катя подскажет иной вариант, экономичнее, согласно рассчетам. Змінено 22 серпня 2014 користувачем Игореха 2 Посилання на коментар Поділитися на інших сайтах More sharing options...
Катерина Ш Опубліковано: 22 серпня 2014 Поділитись Опубліковано: 22 серпня 2014 Ч Полный контур наружного утепления по стенам и кровле + уьепление ДО 100мм по перекрытию, по всей площади. Я тут не очень тебя поняла, Игорь. Расшифруй про утепление до +100 мм - где именно??? Короче, поясни фразу))) Посилання на коментар Поділитися на інших сайтах More sharing options...
Рекомендовані повідомлення