Taros Опубліковано: 17 травня 2013 Поділитись Опубліковано: 17 травня 2013 Есть участок 20 на 50 метров с севера на юг и въездом с севера. Думаю строить дом. Год сам рисовал концептуальный проект. Отнёс архитекторам. Они уже 6 месяцев мурыжат и новых идей не сгенерировали. Сказали что добавить или отнять тут нечего и могут только с точки эстетики до ума довести. Хотя договор с ними подписал и аванс дал на проектирование, строительство и сдачу дома класса А+. Хотелось-бы от знающих людей услышать оценки и конструктивную критику. Скат крыши на юг 23 градуса полностью под солнечные батареи. На плоской крыше может стоит установить солнечные коллекторы под идеальным углом и правильной ориентации. Планирую ставни с запада - может тоже из солнечных батарей сделать вроде сдвижной конструкции. С востока и севера вплотную подходит парковая зона с высокими и редкими деревьями. Высота остекления южной стороны просчитана на зимнее-летнее солнце. Вот как-то так. Посилання на коментар Поділитися на інших сайтах More sharing options...
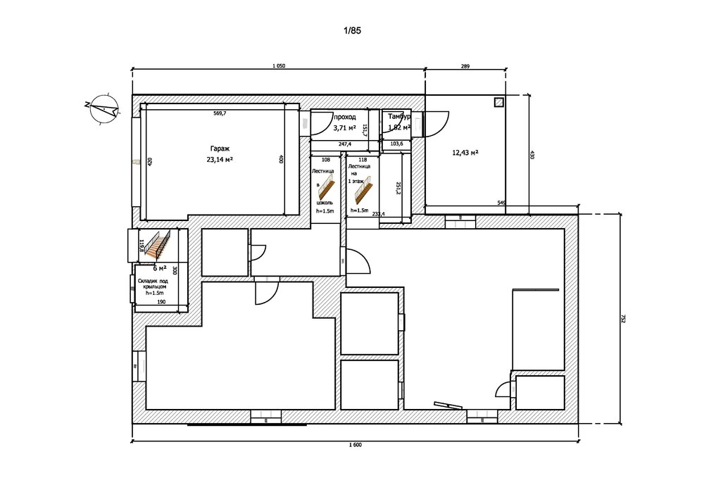
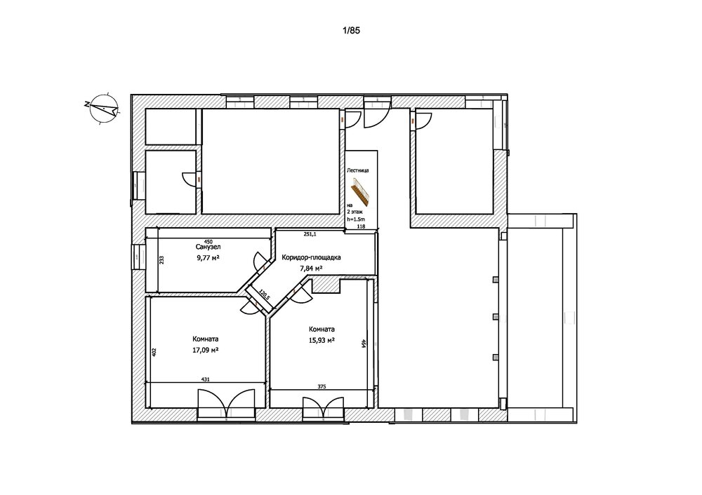
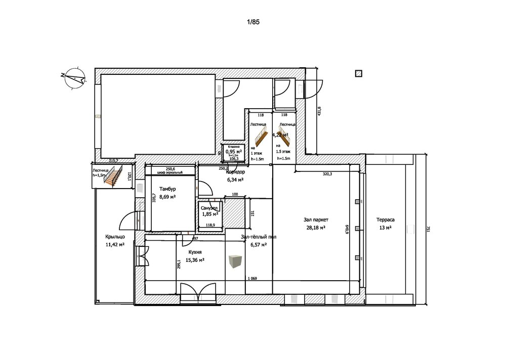
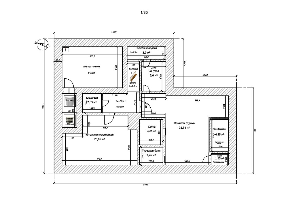
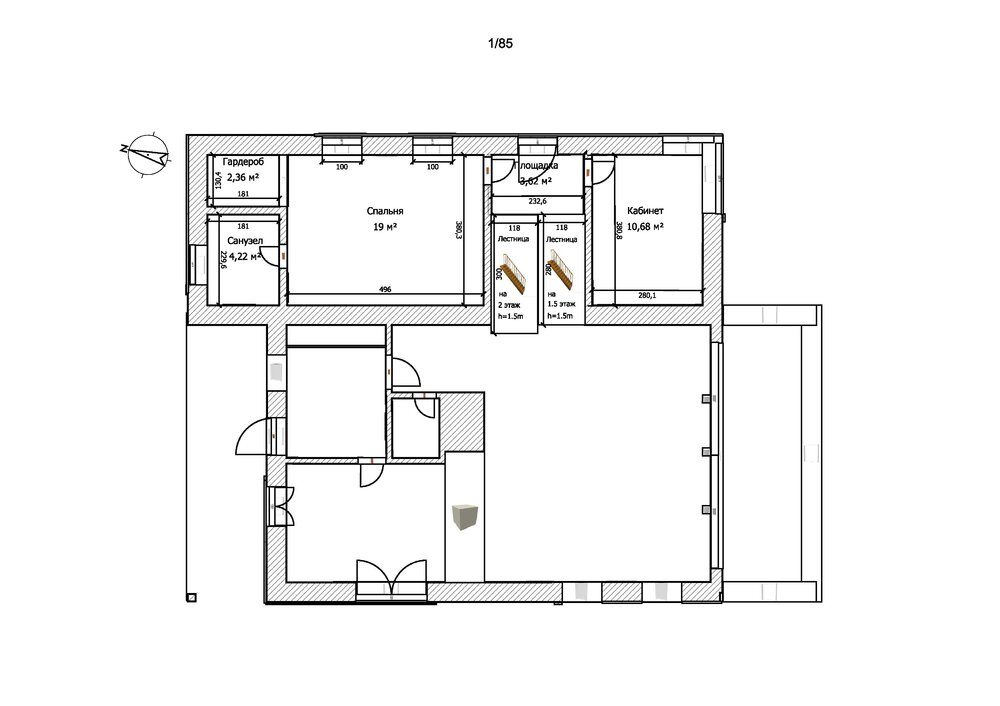
Taros Опубліковано: 17 травня 2013 Автор Поділитись Опубліковано: 17 травня 2013 Дополнительно планы уровней. Посилання на коментар Поділитися на інших сайтах More sharing options...
glirus Опубліковано: 17 травня 2013 Поділитись Опубліковано: 17 травня 2013 По вашим эскизам не так много информации, о том как вы собираетесь достичь пасивности дома - информации вообще нет Посилання на коментар Поділитися на інших сайтах More sharing options...
Taros Опубліковано: 17 травня 2013 Автор Поділитись Опубліковано: 17 травня 2013 По вашим эскизам не так много информации, о том как вы собираетесь достичь пасивности дома - информации вообще нет Спасибо. Пассивность - это там как я понимаю 15квт на метр в год только на отопление. Достигается правильным расположением по сторонам света, использование в обогреве и аккумуляции тепла солнечного света днём и ограничении потерь тепла через окна ночью, а также утеплением и герметичностью дома плюс какое-то производство энергии своими силами. Думаю делать из глиняного кирпича или блоков с наружным утеплением пеностеклом. И окна соответственно по тепловым параметрам стен. Но это всё специалисты посчитают. Я жду мнений по планировке и расположению дома и помещений и хочу понять, соответствует ли это принципам тёплого пассивного дома. Посилання на коментар Поділитися на інших сайтах More sharing options...
tort Опубліковано: 17 травня 2013 Поділитись Опубліковано: 17 травня 2013 Есть участок 20 на 50 метров с севера на юг и въездом с севера. Думаю строить дом. Год сам рисовал концептуальный проект. Отнёс архитекторам. Они уже 6 месяцев мурыжат и новых идей не сгенерировали. Сказали что добавить или отнять тут нечего и могут только с точки эстетики до ума довести. Хотя договор с ними подписал и аванс дал на проектирование, строительство и сдачу дома класса А+. Хотелось-бы от знающих людей услышать оценки и конструктивную критику. ... - пассивный дом и с минибассейном -это как? затраты на нагрев воды в этом бассейне не сравнимы с сэкономленным теплом. Зависит конечно от частоты использования, но если не часто, то зачем он в доме. -санузлы и дымоходы на этажах не увязаны стояками по вертикали - нет общих мест их расположения и некоторые выходят посреди комнат на этаж выше - дымоход из кухни, например. - раздеваться в тамбуре - холодно. Опять же "пассивная" экономия тепла не покроет теплопотерь из тамбура - так как он часто не будет работать как шлюз (условие когда хотя бы одна дверь из двух закрыта) и теплый воздух будет уносить сквозняком. - уклон кровли и разноуровневость частей дома не связаны между собой. Зачем там разноуровневость? Рельеф имеет перепад? - складик под крыльцом потребует ступеней вниз от ур. земли. -маленькие помещения (кладовка, раздевалка, складик, южный тамбур и т.п.) слишком маленькие. Добавлено через 4 минуты ... Я жду мнений по планировке и расположению дома и помещений и хочу понять, соответствует ли это принципам тёплого пассивного дома. еще такой момент - тепловой контур дома должен стремится к простой форме по возможности без лишних изгибов. В тепловой контур входят все отапливаемые помещения. К примеру если гараж неотапливаемый, то лучше чтобы он был пристроенным нежели встроенным. 2 Посилання на коментар Поділитися на інших сайтах More sharing options...
Taros Опубліковано: 17 травня 2013 Автор Поділитись Опубліковано: 17 травня 2013 - пассивный дом и с минибассейном -это как? затраты на нагрев воды в этом бассейне не сравнимы с сэкономленным теплом. Зависит конечно от частоты использования, но если не часто, то зачем он в доме. -санузлы и дымоходы на этажах не увязаны стояками по вертикали - нет общих мест их расположения и некоторые выходят посреди комнат на этаж выше - дымоход из кухни, например. - раздеваться в тамбуре - холодно. Опять же "пассивная" экономия тепла не покроет теплопотерь из тамбура - так как он часто не будет работать как шлюз (условие когда хотя бы одна дверь из двух закрыта) и теплый воздух будет уносить сквозняком. - уклон кровли и разноуровневость частей дома не связаны между собой. Зачем там разноуровневость? Рельеф имеет перепад? - складик под крыльцом потребует ступеней вниз от ур. земли. -маленькие помещения (кладовка, раздевалка, складик, южный тамбур и т.п.) слишком маленькие. Добавлено через 4 минуты еще такой момент - тепловой контур дома должен стремится к простой форме по возможности без лишних изгибов. В тепловой контур входят все отапливаемые помещения. К примеру если гараж неотапливаемый, то лучше чтобы он был пристроенным нежели встроенным. Спасибо. Немножко пояснений. - минибассейн пока вообще под вопросом. Может просто джакузи. Нагрев исключительно теплом от протопки бани. - Как раз и санузлы и дымоходы строго увязаны по этажам. Будет 2 стояка-1 по центру и 2 в районе санузла над гаражом с проходом сквозь гараж и ниже. Просто не нарисован пока. Дымоход из кухни да, надо тянуть под потолком до центрального стояка 3-5 метров. У меня сейчас так сделано и ничего работает. -у нас почти не бывает сильных морозов. Да и почти все построенные дома за последние 10-15 лет, где 1 этаж вровень с землёй и вход с улицы прямо чуть ли не в зал без всяких там тамбуров и переходов, отлично пережили эти годы. Но только их владельцы никогда на такой дизайн больше не купятся. Такой тамбур более чем удобное решение. Откуда там взяться сквозняку при закрытых плотных дверях? - Складик под крыльцом на уровне земли и ступеней не надо. - По поводу малых площадей, так это из практики исключительно. - разноуровневость определило желание приподнять над уровнем земли 1 жилой этаж и 4-6 метровая высота зала при том что гараж на уровне земли и самое главное, что шире уже нельзя делать дом по детальному плану участка. Городить несколько скатов крыш будет сложнее. - Да немного сложноватая конструкция. Получается 2 тепловых контура. Но я думаю решимо путём правильного наружного утепления.Гараж по задумке играет роль буфера тепла. перекрытие будет утеплено, как наружная стена. Посилання на коментар Поділитися на інших сайтах More sharing options...
tort Опубліковано: 17 травня 2013 Поділитись Опубліковано: 17 травня 2013 Спасибо. ...- Как раз и санузлы и дымоходы строго увязаны по этажам. Будет 2 стояка-1 по центру и 2 в районе санузла над гаражом с проходом сквозь гараж и ниже. Просто не нарисован пока. Дымоход из кухни да, надо тянуть под потолком до центрального стояка 3-5 метров. У меня сейчас так сделано и ничего работает... в принципе это задача архитектора и вполне решаема, но общих точек прохода мало и они не удобны, а может оказаться что и технически сложны и места под вент каналы не хватает. -у нас почти не бывает сильных морозов. Да и почти все построенные дома за последние 10-15 лет, где 1 этаж вровень с землёй и вход с улицы прямо чуть ли не в зал без всяких там тамбуров и переходов, отлично пережили эти годы. Но только их владельцы никогда на такой дизайн больше не купятся. Такой тамбур более чем удобное решение. Откуда там взяться сквозняку при закрытых плотных дверях? .... у вас это где? на юге конечно не так ощутима необходимость, но сквозняк будет даже в Крыму. Это физика - разница температур ведь будет: в доме 20-22 тепла, а на улице пусть даже 0, этого достаточно чтоб теплый воздух выходил и холодный поступал при сквозняке это происходит с большей скоростью. А у вас три двери - одна в кухню (обычно постоянно открытая) другая на лестницу. При входе в дом надо чтоб обе были закрытыми. - Складик под крыльцом на уровне земли и ступеней не надо... дверь меньше 1,5 м? высота потолка не выше 1,5м это схрон получается. В полный рост не станете. - разноуровневость определило желание приподнять над уровнем земли 1 жилой этаж и 4-6 метровая высота зала при том что гараж на уровне земли и самое главное, что шире уже нельзя делать дом по детальному плану участка... Если только ради перепада гаража и уровня первого этажа, то право это того не стоит. Высокое крыльцо вас замучает. Впоследствии будете править рельеф под эту ситуацию чтоб не так высоко казалось. А зачем вам высота зала под 6 метров при ширине практически такой же. Потолок давить не будет, зато стены будут. Оптимальное соотношение 2/3 или 3/5. Спасибо. Гараж по задумке играет роль буфера тепла. перекрытие будет утеплено, как наружная стена. Согласен, перекрытие надо утеплять как и стену, но кроме этого надо утеплять стены гаража с двух сторон на 1-2м от примыкания к тепловому контуру или они будут играть роль мостиков холода, так как связаны конструктивно( исключение -газоблок или подобный по конструктивно-тепловым характеристикам материал). А буфером тепла гараж будет слабым - вопрос нескольких часов чтоб температура внутри гаража сравнялась с температурой наружного воздуха. 3 Посилання на коментар Поділитися на інших сайтах More sharing options...
Taros Опубліковано: 18 травня 2013 Автор Поділитись Опубліковано: 18 травня 2013 у вас это где? на юге конечно не так ощутима необходимость, но сквозняк будет даже в Крыму. Это физика - разница температур ведь будет: в доме 20-22 тепла, а на улице пусть даже 0, этого достаточно чтоб теплый воздух выходил и холодный поступал при сквозняке это происходит с большей скоростью. А у вас три двери - одна в кухню (обычно постоянно открытая) другая на лестницу. При входе в дом надо чтоб обе были закрытыми. У нас это Рига. Двери естессно планируется держать закрытыми, может даже с доводчиками. дверь меньше 1,5 м? высота потолка не выше 1,5м это схрон получается. В полный рост не станете. Так и задумка схрон для великов и газонокосилки с граблями. Заходить туда не обязательно. Если только ради перепада гаража и уровня первого этажа, то право это того не стоит. Высокое крыльцо вас замучает. Впоследствии будете править рельеф под эту ситуацию чтоб не так высоко казалось. А зачем вам высота зала под 6 метров при ширине практически такой же. Потолок давить не будет, зато стены будут. Оптимальное соотношение 2/3 или 3/5. Уровень 1 этажа важен. Находясь на приподнятом 1 этаже открывается прекрасная панорама на город внизу, а находясь на уровне земли вид будет только на собственный забор и небо. Стен полноценных в зале почти и нет. Открытое пространство и много окон на юг-югозапад. Переад потолка от 4 до 6 метров на длину 6 метров. Согласен, перекрытие надо утеплять как и стену, но кроме этого надо утеплять стены гаража с двух сторон на 1-2м от примыкания к тепловому контуру или они будут играть роль мостиков холода, так как связаны конструктивно( исключение -газоблок или подобный по конструктивно-тепловым характеристикам материал). А буфером тепла гараж будет слабым - вопрос нескольких часов чтоб температура внутри гаража сравнялась с температурой наружного воздуха Здесь очень ценное замечание. Но хочу заметить, что в гараже всегда будет температура зимой приблизительно на 10-15 градусов выше, чем на улице. Для нашего климата очень неплохо. В моём нынешнем жилье похожая конструкция и это вывод на основе многолетних наблюдений. Посилання на коментар Поділитися на інших сайтах More sharing options...
Ольга В Опубліковано: 18 травня 2013 Поділитись Опубліковано: 18 травня 2013 У нас это Рига. Вам конечно виднее - но для участников форума хочу заметить, что при вашей погоде, в Латвии помидоры растут только в теплицах. Посилання на коментар Поділитися на інших сайтах More sharing options...
Taros Опубліковано: 18 травня 2013 Автор Поділитись Опубліковано: 18 травня 2013 Вам конечно виднее - но для участников форума хочу заметить, что при вашей погоде, в Латвии помидоры растут только в теплицах. Не понял, к чему это. Да, лето прхладное и помидоры только в теплицах, но зимой минусовая температура нечасто. Крутится около 0 град с недолгими уходами в минусовую зону. Посилання на коментар Поділитися на інших сайтах More sharing options...
Taros Опубліковано: 18 травня 2013 Автор Поділитись Опубліковано: 18 травня 2013 Уровень 1 этажа важен. Находясь на приподнятом 1 этаже открывается прекрасная панорама на город внизу, а находясь на уровне земли вид будет только на собственный забор и небо. Стен полноценных в зале почти и нет. Открытое пространство и много окон на юг-югозапад. Переад потолка от 4 до 6 метров на длину 6 метров Пару фоток приблизительного вида света солнца в зале посчитал на 21 декабря в середине дня. Посилання на коментар Поділитися на інших сайтах More sharing options...
tort Опубліковано: 18 травня 2013 Поділитись Опубліковано: 18 травня 2013 Не понял, к чему это. Да, лето прхладное и помидоры только в теплицах, но зимой минусовая температура нечасто. Крутится около 0 град с недолгими уходами в минусовую зону. Видимо вам намекают на бесполезность солнечных батарей для вашего климата. 30-40 дней это мало для подогрева воды даже в качестве вспомогательной системы. Да и минус у вас бывает подольше и пониже чем в Крыму или Одессе, а даже там люди спорят о необходимости тамбура или двойных дверей. Иней выступает. 1 Посилання на коментар Поділитися на інших сайтах More sharing options...
Taros Опубліковано: 18 травня 2013 Автор Поділитись Опубліковано: 18 травня 2013 Странно, у нас сейчас настоящий бум солнечных батарей и коллекторов. Цены идут вниз и все не против установить себе этот типо даровой источник энергии. Я тоже повёлся пока на это, тем более что мой час покупки будет через 2-3 года. А как известно - всё течёт, всё меняется. Поэтому на стадии проектирования пытаюсь предусмотреть эту возможность. Естественно в таких климатических условиях это не может быть основным источником энергии для простого дома, но для пассивной постройки даёт неплохую экономию. Правда окупаемость 10-12 лет и более. Но цены на газ (1 долар/куб) и электричество (0,2 доллар кв/ч) стремительно уменьшают срок окупаемости. И эти цены ещё будут расти при том, что качество газа, поставляемого в дома, катастрофически упало. Но реально у нас все переходят или на дрова или на гранулы или на уже показавшие свою работоспособность тепловые насосы. А ещё много ветра (среднегодовая скорость именно на моем холме около 7м/с), тоже вариант для рассмотрения. Но боюсь, шумно будет и соседи заклюют (из вредности, зависти, да и просто ненависти). Посилання на коментар Поділитися на інших сайтах More sharing options...
akvilonpro Опубліковано: 20 травня 2013 Поділитись Опубліковано: 20 травня 2013 Уважаемый Taros. Если позволите несколько замечаний. 1) Данный форум это далеко не то место где обитают специалисты по проектированию и строительству пассивных домов Советую обратить взгляд сюда www.passivhausplaner.eu/englisch/planersuche.php (Это институт пассивного дома, в Латвии есть несколько сертифицированных специалистов) 2) Стена из кирпича с утеплением пеностеклом (120 кг/м2 мин) это далеко не самое лучшее решение, я б даже сказал одно из худших (U должно быть не больше 0,15 Вт/м2*Л 3) Вы забыли про герметичность внтреннего обьема (потери до 0,6 л в час) и соответственно про систему вентиляции 4) Неплохо б посчитать дом в программе для расчета пассивных домов PHPP (Passive house planning package) хотяб сделать проверку. 5) Форма дома далека от оптимальной. 6) Посчитайте ефективность вашего гелиоколектора и время за которое он окупится. 7) Окна должны быть 0,8 Вт/м2*K и ниже. 8) И учтите что Пассивным может называться только построенный и сертифицированный (прошедший все проверки и тесты) дом. Остальные это проесто в лучшем случае енергоэфективные. P.S. Кстати при сертифицировании пассивного дома учитываются и затраты на его строительство и на производство материалов из которых он построен 1 Посилання на коментар Поділитися на інших сайтах More sharing options...
ionico Опубліковано: 20 травня 2013 Поділитись Опубліковано: 20 травня 2013 Я думаю, что нецелесообразно рассматривать только гелиоколлекторы для отопления и горячего водоснабжения. Мы сейчас проектируем подобный дом, который расположен в Симферополе. Даже грубый расчёт показал, что только гелиоколлекторы (вакуумные трубчатые) могут не справиться, поэтому к гелиоколлекторам добавили тепловой насос. Стены - ячеистый бетон с утеплением. Я думаю, что вам тоже в первую очередь надо рассматривать тепловой насос, а гелиоколлекторы скорее будут дополнять систему. 1 Посилання на коментар Поділитися на інших сайтах More sharing options...
Taros Опубліковано: 20 травня 2013 Автор Поділитись Опубліковано: 20 травня 2013 Я думаю, что нецелесообразно рассматривать только гелиоколлекторы для отопления и горячего водоснабжения. Мы сейчас проектируем подобный дом, который расположен в Симферополе. Даже грубый расчёт показал, что только гелиоколлекторы (вакуумные трубчатые) могут не справиться, поэтому к гелиоколлекторам добавили тепловой насос. Стены - ячеистый бетон с утеплением. Я думаю, что вам тоже в первую очередь надо рассматривать тепловой насос, а гелиоколлекторы скорее будут дополнять систему. Да так вообщем то и задумывалось. Коллекторы и тепловой насос работают на ТА. СП тоже попробую поиграться. Стены уверен теплоёмкие надо. Лучший материал глина и изделия из неё. Добавлено через 30 минут Уважаемый Taros. Если позволите несколько замечаний. 1) Данный форум это далеко не то место где обитают специалисты по проектированию и строительству пассивных домов Советую обратить взгляд сюда www.passivhausplaner.eu/englisch/planersuche.php (Это институт пассивного дома, в Латвии есть несколько сертифицированных специалистов) 2) Стена из кирпича с утеплением пеностеклом (120 кг/м2 мин) это далеко не самое лучшее решение, я б даже сказал одно из худших (U должно быть не больше 0,15 Вт/м2*Л 3) Вы забыли про герметичность внтреннего обьема (потери до 0,6 л в час) и соответственно про систему вентиляции 4) Неплохо б посчитать дом в программе для расчета пассивных домов PHPP (Passive house planning package) хотяб сделать проверку. 5) Форма дома далека от оптимальной. 6) Посчитайте ефективность вашего гелиоколектора и время за которое он окупится. 7) Окна должны быть 0,8 Вт/м2*K и ниже. 8) И учтите что Пассивным может называться только построенный и сертифицированный (прошедший все проверки и тесты) дом. Остальные это проесто в лучшем случае енергоэфективные. P.S. Кстати при сертифицировании пассивного дома учитываются и затраты на его строительство и на производство материалов из которых он построен Да, так всё и есть, кроме пеностекла. А какой утеплитель лучше лучше и долговечней пеностекла? Я написал вначале, что проектировать и контролировать строительство согласно проекта, а также испытывать и получать сертификат на дом будет одна сертифицированная фирма, с которой уже у меня есть договор. Сейчас просто идёт поиск оптимального внешнего вида под условия пассивности, местности и заказчика. Оптимальная форма - шар, а для дома - куб. Вот вокруг этого и прыгаем. Изнутри только штукатурка. У нас уже никто не хочет обшиваться гибсокартоном. У меня сейчас такое жильё около 15 лет. Не поверите -гибсокартон сыпется и чем дальше, тем больше. Сквозняки, вибрации, да и просто активная жизнь в доме его разрушают. Это видно при уборке, когда обращаешь внимание на плинтуса и что под ними. А там приличный слой гибсовой пыли, которая разносится по всему жилью. Польза от любой технологии начинает быть видна через 10-20 лет. Пенопласты и различные ваты себя не оправдали, а задувные материалы типа пеноваты просто испарились и сдулись за эти годы. Дома, построенные 10-15 лет назад по модным тогда технологиям, с катастрофической скоростью теряют свои тёплые свойства. Люди пытаются их продавать, но никто не хочет брать, потому что дорого в содержании. У нас сейчас закон - что продавать без теплового сертификата нельзя. Так вот эти испытания на получение сертификата в присутствии покупателя просто ошеломляют - красивый и дорогой снаружи 10-15 летний дом с суперремонтом внури абсолютно дырявый и требующий капитального утепления, ибо старое утепление кончилось. Пишу об этом, так как уже несколько домов так проверил. Вот такая нерадостная статистика. Лучше использовать проверенные столетиями материалы, но строить по новым концепциям. Но это только моё мнение. Посилання на коментар Поділитися на інших сайтах More sharing options...
tort Опубліковано: 20 травня 2013 Поділитись Опубліковано: 20 травня 2013 Уважаемый Taros. Если позволите несколько замечаний. 1) Данный форум это далеко не то место где обитают специалисты по проектированию и строительству пассивных домов ... кроме вас конечно:D Добавлено через 10 минут 2) Стена из кирпича с утеплением пеностеклом (120 кг/м2 мин) это далеко не самое лучшее решение, я б даже сказал одно из худших (U должно быть не больше 0,15 Вт/м2*Л Что такое U, которое исчисляется в Вт/м2*Л ? Л - это что? Если вы про теплопроводность λ = Вт/(м·К) то она у пеностекла в районе 0,06 Вт/м*К. 2 Посилання на коментар Поділитися на інших сайтах More sharing options...
akvilonpro Опубліковано: 21 травня 2013 Поділитись Опубліковано: 21 травня 2013 Прощу прощения за описку. Вы правы 0,15 Вт/м2*К. Себя я к специалистам не причисляю, и вроде не причеслял ранее. А по поводу специалистов, посмотрите эту ветку: www.stroimdom.com.ua/forum/showthread.php?t=15175&highlight=%CF%E0%F1%F1%E8%E2%ED%FB%E9+%E4%EE%EC. Я сейчас изучаю Пакет Планирования Пассивных Домов (PHPP 2012) и уже слегка офанарел от обьема предварительных расчетов. Так что если у Вас есть контакты с сертифецированным Дизайнером Пассивных домов то лучше задавать вопросы ему. Как написано в инструкции: Обьединение соответствующих компонентов, чтоб построить такой дом как Пассивный. Система представляет собой продукт с характеристиками большими чем сумма отдельных частей. Т.е в этом вопросе важен комплексный подход. Если я где то не прав, буду рад за конструктивную! критику. Добавлено через 11 минут И неужели Вы пирогом стены кирпич+пеностекло попадаете в нормативы пассивного дома? Подскажите, для общего развития, обьемный вес пеностекла которое планируете использовать. Посилання на коментар Поділитися на інших сайтах More sharing options...
tort Опубліковано: 21 травня 2013 Поділитись Опубліковано: 21 травня 2013 Если я где то не прав, буду рад за конструктивную! критику. В остальном советы верные . Ну может 8-ой пункт вызовет мое сомнение. Ведь прошедший или не прошедший дом сертификацию, но построенный по принципам и правилам дом не перестает быть таковым. Просто один дом тестировали, а другой нет, так ведь? Или в процессе сертификации дом как-то меняет свойства? Посилання на коментар Поділитися на інших сайтах More sharing options...
akvilonpro Опубліковано: 23 травня 2013 Поділитись Опубліковано: 23 травня 2013 По поводу сертификации есть некоторые разъяснения (уточнения). Вы правы, с наличием или без сертификата дом свои свойства не миняет, но, при наличии сертификата меняется его стоимость при продаже (вы сами привели пример с энергитическими паспортами). Второе, процес сертификации (я имаю в виду сертификация инстетутом пассивного дома в Дармштадте) есть несколько этапов на которых можно исправит ошибки или внести коррективы. Опишу этапы о которых прочитал: 1)Проверка проекта по программе PHPP (позволяет проверить тепловые свойства и конструктивные осообенности еще не построенного дома) Включая выбор инженерии и окон-дверей. 2) После строительства коробки, до отделки делается "blow-door test", избыточным и недостаточным давлениями. С тепловизором можем сразу увидеть инфильтрационные потери (если они есть) и соответственно исправить "малой кровью". 3) Протоколы введения в эксплуатацию вентиляционной системы с рекуперацией. 4) Окончательная приемка после завершения строительства и получение сертификата соответствия (с внесением в реестр пассивных домов). Т.е. по моему мнению если уже влазить в эту тему то грех не получить сертификат и этим увеличить ценность собственного дома. И даже без получения сертификатов следует соблюсти данные шаги для подстраховки. Так что в процессе сертификации дом вполне может поменять свои свойства (притом в лучшую сторону). Но решение принимать Вам. Других способов быть уверенным в том что строится то что нужно я пока не знаю. Удачи Вам в этом нелегком но правильном деле! 1 Посилання на коментар Поділитися на інших сайтах More sharing options...
Taros Опубліковано: 26 травня 2013 Автор Поділитись Опубліковано: 26 травня 2013 И неужели Вы пирогом стены кирпич+пеностекло попадаете в нормативы пассивного дома? Подскажите, для общего развития, обьемный вес пеностекла которое планируете использовать. Вообщем то идеями я с этого сайта заразился ernst.kiev.ua Или там она туфту проталкивает? Вроде всё логично. Посилання на коментар Поділитися на інших сайтах More sharing options...
tort Опубліковано: 26 травня 2013 Поділитись Опубліковано: 26 травня 2013 В общем то идеями я с этого сайта заразился ernst.kiev.ua Или там она туфту проталкивает? Вроде всё логично. Дорого это всё теперь стало. Любая религия, в том числе и культ экодомов, требует десятину от прихожан. Но самое главное - это верить. Нельзя сомневаться. Соблюдайте нормативы пассивного дома и будет вам благодать. Кто-то и мазанку считает пассивным экодомом. 3 Посилання на коментар Поділитися на інших сайтах More sharing options...
akvilonpro Опубліковано: 27 травня 2013 Поділитись Опубліковано: 27 травня 2013 С Tortom полностью согласен, а по поводу Эрнст вроде все логично но есть некоторые вещи которые смущают. 1. В образовании нет ни слова про пассивные дома (ernst.kiev.ua/ausbildung_ru.html) 2.Применяемые конструкции с очень большим скрипом попадают под пассивность. (на сайте не нашел пирог стены, т.е. количество утеплителя). На фото видно что дом кирпичный, т.е. по расчетам пеностекла нужно от 250 мм (сразу вопрос как его крепить). 3. Как сделать герметичность внутренней оболочки? 4. Пересекался на некоторых мероприятиях, самомнением барышня не обделена... 5. При знании немецкого, специфики проектирования и желании заниматься данной сферой не получить сертификат "дизайнера пассивного дома", по моему, не логично. Но концептуально все вроде ничего... Как минимум начитана. Но пассивный дом это не только специфическая архитектура. И недаром в Австрии при сертификации учитываются не только характеристики но и стоимость материалов и работ (как опосредованный показатель выбросов СО2 при изготовлении дома) Осмелюсь дать Вам совет: Не смотрите на всяких "специалистов", есть физические законы и характеристики они в основе. Думайте сами, решайте сами и сертификаты люди не зря получают (в курсе есть чему научится, и не каждый архитектор его осилит). Посилання на коментар Поділитися на інших сайтах More sharing options...
Yuri_ceresit Опубліковано: 30 травня 2013 Поділитись Опубліковано: 30 травня 2013 Отличный проект. Небольшой простой и при этом просторный и экономичный дом. Даже не верится что у нас такие заказчики стали появляться. Автору топика удач в начинаниях! 1 Посилання на коментар Поділитися на інших сайтах More sharing options...
Taros Опубліковано: 30 травня 2013 Автор Поділитись Опубліковано: 30 травня 2013 Отличный проект. Небольшой простой и при этом просторный и экономичный дом. Даже не верится что у нас такие заказчики стали появляться. Автору топика удач в начинаниях! Ну спасибо, сразили наповал. Сейчас идёт процесс поиска архитекторами более гармоничного внешнего вида на основе и по мотивам моего творчества. обязательно выложу процесс рождения проекта. Посилання на коментар Поділитися на інших сайтах More sharing options...
Рекомендовані повідомлення
Створіть акаунт або увійдіть у нього для коментування
Ви маєте бути користувачем, щоб залишити коментар
Створити акаунт
Зареєструйтеся для отримання акаунта. Це просто!
Зареєструвати акаунтУвійти
Вже зареєстровані? Увійдіть тут.
Увійти зараз