MAESTRO DNEPR Опубліковано: 16 грудня 2015 Автор Поділитись Опубліковано: 16 грудня 2015 Ещё один эконом вариант... Размер дома 9,6*10,8 две спальни 16,8 и 13,2 гостиная 22 кухня 11 санузел 5,21 холл 8,24 топочная 3,04 .........итого 88 м2. Продам. 2000грн. Посилання на коментар Поділитися на інших сайтах More sharing options...
MAESTRO DNEPR Опубліковано: 18 грудня 2015 Автор Поділитись Опубліковано: 18 грудня 2015 Продам индивидуальные проекты домов. Проекты смотрите выше. Стоимость любого из них 2000грн. Посилання на коментар Поділитися на інших сайтах More sharing options...
RWW11 Опубліковано: 18 грудня 2015 Поділитись Опубліковано: 18 грудня 2015 Доброго времени! Нет ли у вас проекта под фундамент 7х11 одноэтажного дома на три спальни? Посилання на коментар Поділитися на інших сайтах More sharing options...
MAESTRO DNEPR Опубліковано: 18 грудня 2015 Автор Поділитись Опубліковано: 18 грудня 2015 Доброго времени! Нет ли у вас проекта под фундамент 7х11 одноэтажного дома на три спальни? ...увы...сомневаюсь, что Вы что-нибудь подобное найдёте... сложно впихнуть невпихуемое в 63м2 общей площади Посилання на коментар Поділитися на інших сайтах More sharing options...
Drosselbeere Опубліковано: 18 грудня 2015 Поділитись Опубліковано: 18 грудня 2015 ...увы...сомневаюсь, что Вы что-нибудь подобное найдёте... сложно впихнуть невпихуемое в 63м2 общей площади вы ошибаетесь, все даже возможно и это как пример z139 Посилання на коментар Поділитися на інших сайтах More sharing options...
MAESTRO DNEPR Опубліковано: 20 грудня 2015 Автор Поділитись Опубліковано: 20 грудня 2015 вы ошибаетесь, все даже возможно и это как пример z139 Под словом "спальня" я подразумеваю комнату, а не кладовку 7-8 м2. Посилання на коментар Поділитися на інших сайтах More sharing options...
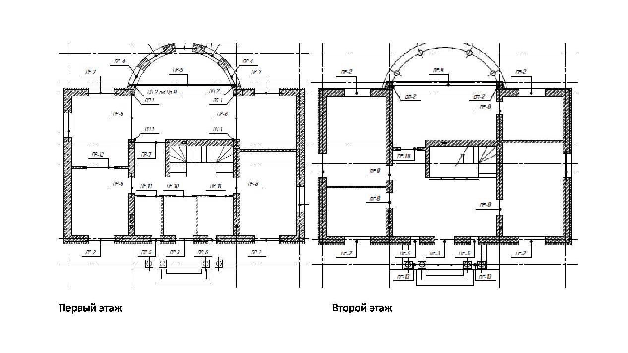
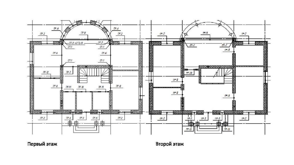
MAESTRO DNEPR Опубліковано: 21 грудня 2015 Автор Поділитись Опубліковано: 21 грудня 2015 Размер дома 14,5*14(включая фасадное крыльцо с колоннами) 1)коридор 4,6 холл 17,23 кухня 13,84 столовая 14,39 гостиная 28,02 и 10,95 комната 17,29 санузел 4,83 топочная 3,61 .........итого 114,76 2)холл 24,19 санузел 9,89 три комнаты 18,35.... 19,17.... 18,04 балконы 4,69... 11,74 ...........итого 116,27. Этот дом мы построили года три тому назад, фото ЗДЕСЬ. Сохранились сметы на фундамент и стены. Во вложении: планировка первого и второго этажей. Продам. 2000грн. Посилання на коментар Поділитися на інших сайтах More sharing options...
MAESTRO DNEPR Опубліковано: 27 грудня 2015 Автор Поділитись Опубліковано: 27 грудня 2015 Продам индивидуальные проекты домов. Проекты смотрите выше. Стоимость любого из них 2000грн. Посилання на коментар Поділитися на інших сайтах More sharing options...
MAESTRO DNEPR Опубліковано: 28 грудня 2015 Автор Поділитись Опубліковано: 28 грудня 2015 Продам индивидуальные проекты домов. Проекты смотрите выше. Стоимость любого из них 2000грн. Посилання на коментар Поділитися на інших сайтах More sharing options...
MAESTRO DNEPR Опубліковано: 31 грудня 2015 Автор Поділитись Опубліковано: 31 грудня 2015 Продам индивидуальные проекты домов. Проекты смотрите выше. Стоимость любого из них 2000грн. Посилання на коментар Поділитися на інших сайтах More sharing options...
MAESTRO DNEPR Опубліковано: 4 січня 2016 Автор Поділитись Опубліковано: 4 січня 2016 Продам индивидуальные проекты домов. Проекты смотрите выше. Стоимость любого из них 2000грн. Посилання на коментар Поділитися на інших сайтах More sharing options...
MAESTRO DNEPR Опубліковано: 27 січня 2016 Автор Поділитись Опубліковано: 27 січня 2016 Продам индивидуальные проекты домов. Проекты смотрите выше. Стоимость любого из них 2000грн. Посилання на коментар Поділитися на інших сайтах More sharing options...
MAESTRO DNEPR Опубліковано: 1 лютого 2016 Автор Поділитись Опубліковано: 1 лютого 2016 Продам индивидуальные проекты домов. Проекты смотрите выше. Стоимость любого из них 2000грн. Посилання на коментар Поділитися на інших сайтах More sharing options...
Рекомендовані повідомлення
Створіть акаунт або увійдіть у нього для коментування
Ви маєте бути користувачем, щоб залишити коментар
Створити акаунт
Зареєструйтеся для отримання акаунта. Це просто!
Зареєструвати акаунтУвійти
Вже зареєстровані? Увійдіть тут.
Увійти зараз