romalex4 Опубліковано: 13 січня 2014 Поділитись Опубліковано: 13 січня 2014 вы знаете, я тоже много начитался на этом и других форумах, что касается расчета сопротивления грунта и соответственно ширины подошвы фундамента, вро де бы разобрался, но нигде не могу найти какие!нибудь пояснения к расчету армирования, такое ощущение, что кто во что горазд, дают разные схемы противоречащие друг другу, но никто не дает пояснений почему так, или хотя сносок на нормативы, что касается ваших вопросов, как неспециалист, но пытающий думать и учиться скажу: 1. ширина зависит от свойств грунта, думаю, что 60 см должно хватить при нетяжелом доме, армирование рекомендуют делать не чаще чем через 100 мм д12, в нижнем поясе в один ряд, на расстоянии 3-5 см от подсыпки, если дом легкий, думаю достаточно будет три нитки д12 в нижнем поясе, так и вяжите - на площадке. а потом опускайте на первій слой бетона 3-5 см; 2. второй ряд арматуры укладівайте в верхний пояс, тот которій будет над грунтом, в цокольной части, то-же 3/5 см от верха. 3,4 в вашем случае, думаю, не нужно связывать верхний ряд с нижним, потому, что: - подвала нет; - фундамент находится в грунте, устойчивость обеспечена. Желательно залить его монолитом. Посилання на коментар Поділитися на інших сайтах More sharing options...
vova2408 Опубліковано: 13 січня 2014 Поділитись Опубліковано: 13 січня 2014 Спасибо за совет, но я все таки буду делать немного по-другому. В нижней , широкой части, свяжу два ряда по три нитки. Опущу вниз. Затем свяжу две нитки , расположу их вверху и поставлю стойки из арматуры чтобы зафиксировать верхний ряд ну и еще подвяжу его к перемычкам деревянным опалубки. И все . Кажется будет надежно , без расчетов. Ах, да, о доме: 9х9 , один этаж с мансардой , стены из газобетона 400 D400, а может D500, Крыша из металлочерепицы , но стропильная часть под будущую цементно- песчаную. Фундамент в цокольной части 45см Общая высота монолитной ленты 130см ,Фундамент под внутренней несущей шир-25см.Перекрытие- пустотки l=9м Остается один вопрос - Какой глубины должен быть фундамент под внутренней нес. стеной? Посилання на коментар Поділитися на інших сайтах More sharing options...
alexandrius Опубліковано: 14 січня 2014 Поділитись Опубліковано: 14 січня 2014 нигде не могу найти какие!нибудь пояснения к расчету армированияФундаментная лента работает как балка на упругом основании. Сверху на ней стоит стена, имеющая большую изгибную жёсткость в своей плоскости. Если это рассчитать - арматуры там совсем не нужно будет Цимес арматуры в бетоне - работа при неравномерной осадке, предотвращение появления трещин в стенах. Поэтому диаметр и количество продольных арматурных стержней назначается исходя из опыта проектирования и строительства в данном регионе на данном типе грунтов. В классическом случае под частный дом в качестве армирования идет три каркаса с продольной арматурой Ф12А-III, то есть три стержня внизу и три вверху. Ширина ленты от 50см и больше. Толщина (высота) ленты обычно принимается равной 30см. первій слой бетона 3-5 смЕсли внизу подсыпка, а не бетонная подготовка - минимальный защитный слой по нормам для фундаментов в нижней зоне 70мм. Посилання на коментар Поділитися на інших сайтах More sharing options...
vova2408 Опубліковано: 14 січня 2014 Поділитись Опубліковано: 14 січня 2014 Если следовать Вашему совету, то я должен заливать фундамент как минимум в два захода. А я интересуюсь, могу ли я залить весь Т- образный фундамент за один заход ?И если могу , то как соединить верхние 2 нитки с нижними 3-мя .Неужели хомуты должны быть длиной 120см ,или их не должно быть совсем? Посилання на коментар Поділитися на інших сайтах More sharing options...
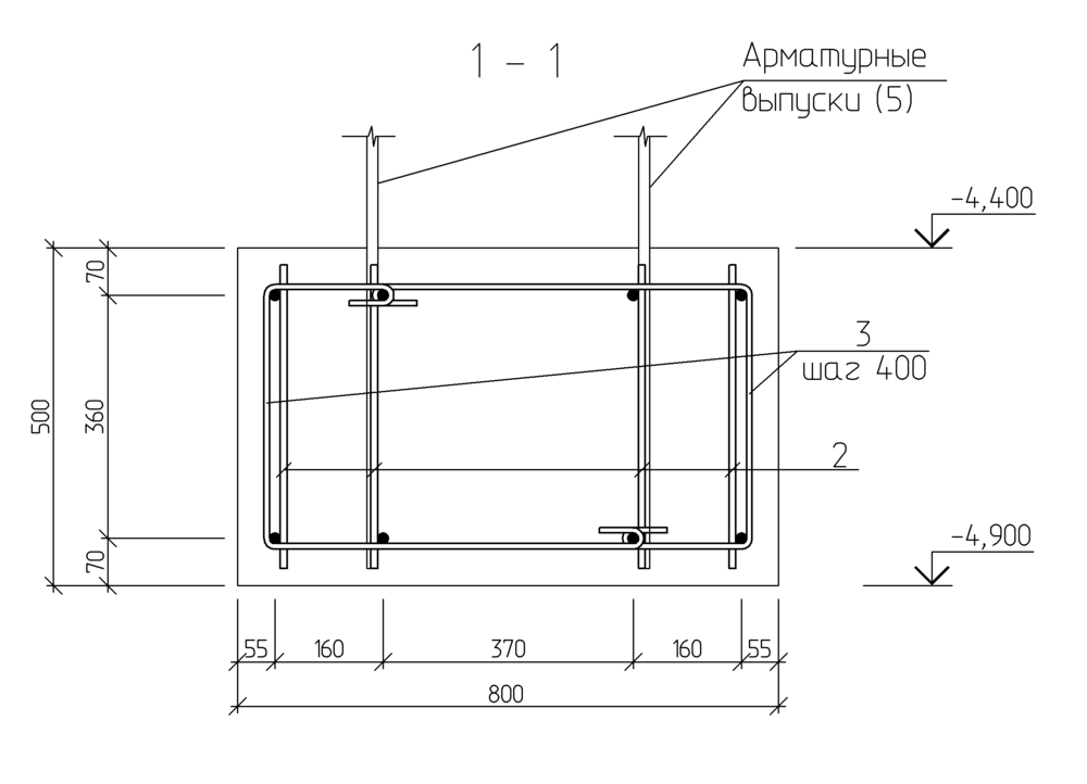
alexandrius Опубліковано: 15 січня 2014 Поділитись Опубліковано: 15 січня 2014 как соединить верхние 2 нитки с нижними 3-мяНитки объединяются в пространственные каркасы. Либо уже готовые плоские каркасы развариваются поперечной арматурой (горизонтально), либо применяются гнутые хомуты замкнутого сечения с привязкой вязальной проволокой продольных ниток к хомуту. Нитки при этом внутри хомута. Это если говорить об армировании ленты. Армирование в стиле "три нитки внизу в ленте и ещё две в самом верху на 1,2м выше" не укладывается в классические каноны армирования. В этом случае я бы просто положил три нитки внизу, залил бы бетон на высоту 1,0м (при общей высоте 1,2м), через день-два уложил бы верхние две нитки и цементным раствором чётко под уровень выполнил бы армошов до общей высоты 1,2м. Бетон, как правило, точно в уровень, в единую плоскость по отметке не выльешь. Поверх него всё равно делается выравнивающая стяжка. Сделать её потолще и в её теле разместить верхнюю арматуру. Перерыв между заливками в 2-3 дня в данном случае значения не имеет. ЗЫ. Во вложении поперечное сечение по армированию фундаментной ленты, выполненному "как положено по книжке". Не для Вашего случая, а для более серьезного здания. 1 Посилання на коментар Поділитися на інших сайтах More sharing options...
Jetfigter2015 Опубліковано: 15 січня 2014 Поділитись Опубліковано: 15 січня 2014 Перекрытие- пустотки l=9м Остается один вопрос - Какой глубины должен быть фундамент под внутренней нес. стеной? Наскільки зрозумів плити довжиною 9м? Тоді не розумію про внутрішню "несучу стіну". Якщо будинок 9м*9м несучої стіни як такої в даному випадку бути не може. Враховуючи те, що вона внутрішня і не "несуча", достатньо зняти родючий шар ґрунту. Хоча при товщині 25см економія буде мізерною - тому краще робіть фундамент тієї ж глибини. Крім того там де сходи на другий поверх будете використовувати якусь плиту коротшу за 9м, на що вона буде опиратись? Імхо. 1 Посилання на коментар Поділитися на інших сайтах More sharing options...
Hordi Опубліковано: 15 січня 2014 Поділитись Опубліковано: 15 січня 2014 6 ки профилированой нет, только катанка Для хомутов как правило используется стандартный прокат, который есть на любой металобазе - круг 6.5, обычно идет длиной по 6 метров. Катанку (6мм) в бухтах неудобно использовать, т.к. она не прямой формы. Добавлено через 1 минуту Неужели хомуты должны быть длиной 120см ,или их не должно быть совсем? Хомуты такой длины - это нормально. Посилання на коментар Поділитися на інших сайтах More sharing options...
alexandrius Опубліковано: 15 січня 2014 Поділитись Опубліковано: 15 січня 2014 стандартный прокат, который есть на любой металобазе - круг 6.5 Арматура А-I диаметром 6мм, по новому ГОСТу (ДСТУ) обозначается как А240 Катанку (6мм) в бухтах Это Вр-I, у неё диаметр до 5мм. Посилання на коментар Поділитися на інших сайтах More sharing options...
Hordi Опубліковано: 15 січня 2014 Поділитись Опубліковано: 15 січня 2014 Арматура А-I диаметром 6мм, по новому ГОСТу (ДСТУ) обозначается как А240 Это Вр-I, у неё диаметр до 5мм. Я о тёплом,а Вы о мягком... Посилання на коментар Поділитися на інших сайтах More sharing options...
alexandrius Опубліковано: 15 січня 2014 Поділитись Опубліковано: 15 січня 2014 Я о тёплом А у этого тёплого ГОСТ есть? Просто ради интереса... Посилання на коментар Поділитися на інших сайтах More sharing options...
Hordi Опубліковано: 15 січня 2014 Поділитись Опубліковано: 15 січня 2014 А у этого тёплого ГОСТ есть? Просто ради интереса... Спросите УГМК - я ведь их картинку приаттачил. ПС Подозреваю, раз то, о чем я говорил, продают на каждой металлобазе - есть и ГОСТ и сертификаты. Посилання на коментар Поділитися на інших сайтах More sharing options...
prazdnikof Опубліковано: 15 січня 2014 Поділитись Опубліковано: 15 січня 2014 Хомуты лучше всётаки делать из 8-ки профилированной, во первых изделие получится крепче, во вторых есть такой момент как сборка каркаса, из гладкой проволоки хомуты скользят, а из арматуры держатся лучше. Кто сам вязал тот меня поймёт. 1 Посилання на коментар Поділитися на інших сайтах More sharing options...
Hordi Опубліковано: 15 січня 2014 Поділитись Опубліковано: 15 січня 2014 Хомуты лучше всётаки делать из 8-ки профилированной Если вязать, то да, если варить, то лучше то, что дешевле. Да и арматура Ф8 иногда такая, что гнуть не так просто. Посилання на коментар Поділитися на інших сайтах More sharing options...
prazdnikof Опубліковано: 15 січня 2014 Поділитись Опубліковано: 15 січня 2014 Если вязать, то да, если варить, то лучше то, что дешевле. Да и арматура Ф8 иногда такая, что гнуть не так просто. Разница в арматуре бывает не спорю, раз взял такю серебристая, красивая, гнёшь -лопается, вот так. Сейчас беру стандартную серого цвета в окалине и всё хорошо. Гнуть лучше на ролике, тогда проблем нет, я гну своей самоделкой до 12мм. Варить диаметр меньше 8 мм, вообще критично, металл теряет свойства. Посилання на коментар Поділитися на інших сайтах More sharing options...
Hordi Опубліковано: 16 січня 2014 Поділитись Опубліковано: 16 січня 2014 Разница в арматуре бывает не спорю, раз взял такю серебристая, красивая, гнёшь -лопается, вот так. Сейчас беру стандартную серого цвета в окалине и всё хорошо. Гнуть лучше на ролике, тогда проблем нет, я гну своей самоделкой до 12мм. Варить диаметр меньше 8 мм, вообще критично, металл теряет свойства. Я как-то брал 2 раза с недельным перерывом на УГМК арматуру 8-ку, маркировка и цена были абсолютно одинаковые. Но одна партия была как пружина, вторая - пластичная. Вот так ))) Круг 6-ка варится без проблем, это обычная ст3, т.е. никаких свойств не потеряет. Посилання на коментар Поділитися на інших сайтах More sharing options...
prazdnikof Опубліковано: 16 січня 2014 Поділитись Опубліковано: 16 січня 2014 Я как-то брал 2 раза с недельным перерывом на УГМК арматуру 8-ку, маркировка и цена были абсолютно одинаковые. Но одна партия была как пружина, вторая - пластичная. Вот так ))) Круг 6-ка варится без проблем, это обычная ст3, т.е. никаких свойств не потеряет. 6-ка в качестве каркаса уже не то, просто как монтажная для фиксации основной рабочей арматуры (продольной), но это не всегда правильно. Если фундамент на грунтах с плохой несущей способностью и имеет "Т-образную" форму, то сечение, шаг и материал хомутов приобретают решающее значение. Посилання на коментар Поділитися на інших сайтах More sharing options...
Hordi Опубліковано: 17 січня 2014 Поділитись Опубліковано: 17 січня 2014 6-ка в качестве каркаса уже не то Не спорю, но я Ф6.5 использовал везде где каркасы габаритами до 60х60 см, все что более - арматура Ф8. Каркасы сварные - бывало приходилось разбирать, так устанешь пока кувалдой схватки поотрываешь. К надежности и устойчивости никаких вопросов. Добавлено через 2 минуты как монтажная Говорил только о монтажной, если конструкционная или рабочая - то диаметр по расчёту берется. 1 Посилання на коментар Поділитися на інших сайтах More sharing options...
tick Опубліковано: 19 травня 2016 Поділитись Опубліковано: 19 травня 2016 Прошу поради, чи правильно конструктор виконав армування фундаменту? (поз.10 на малюнку - д.10 А500С). Дім - одноповерховий, стіни - 380мм цегла 2НФ, перекриття - по балках, дах - черепиця, регіон - Київська обл., геологія тут. Маю сумнів щодо доцільності продольної арматури по висоті стіни. Лити, скоріше за все, планую в землю, з розширенням траншеї внизу (п'ята), шириною 40см. Посилання на коментар Поділитися на інших сайтах More sharing options...
Рекомендовані повідомлення
Створіть акаунт або увійдіть у нього для коментування
Ви маєте бути користувачем, щоб залишити коментар
Створити акаунт
Зареєструйтеся для отримання акаунта. Це просто!
Зареєструвати акаунтУвійти
Вже зареєстровані? Увійдіть тут.
Увійти зараз