Valentin30 Опубліковано: 12 липня 2013 Поділитись Опубліковано: 12 липня 2013 Добрый день уважаемые форумчане! Не могли бы вы помочь советом по устройству вентиляции в цокольном этаже. Много писать не буду, а то длинные посты нудно читать (ну мне, во всяком случае). Вводные данные: г. Донецк (Украина), дом с мансардой, цокольным и первым этажами (всего три этажа). Цокольный этаж, пирожок изнутри до наружи такой – дикий камень, «пунпан», ФБС (400 толщина). Первый и мансарда – штукатурка, пенопласт, шлакоблок. Все этажи отапливаются, за исключением одной комнаты (планируемого холодного погреба). Также приложу упрощенные чертежики, что бы было наглядней. Сам дом был изолирован полностью от влияния внешней среды осенью 2012 года. И за этот короткий период естественно в цокольном этаже появился довольно сильный запах сырости, но без видимых признаков плесени, грибка и др. (наверное начальная стадия). Вопрос: Я принципе знал о вентиляции во время строительства, но как то все накатом накатом, то проблемы то еще что - короче прощелкал вентиляцию в цоколе, кроме одного вентканала; как ее грамотней устроить? Речь идет о естественной приточно-вытяжной вентиляции. Буду очень признателен за советы. Посилання на коментар Поділитися на інших сайтах More sharing options...
SON Опубліковано: 12 липня 2013 Поділитись Опубліковано: 12 липня 2013 кроме одного вентканала; Имеется ввиду вентканал в сауне? Приточка в сауну есть? как ее грамотней устроить? Речь идет о естественной приточно-вытяжной вентиляции. Если в общей вентшахте свободных в/к нет, а обвешивать фасад трубами по наруже ессно никто не будет, то можно решить механической (пропеллерами), или пробовать что-либо совместить. Для этого нужны поэтажные планы с вентканалами. Комнату отдыха (6) и погреб (1) вентилировать трэба по-любому, с топочной тож пока не ясно, чего там есть/нет. Посилання на коментар Поділитися на інших сайтах More sharing options...
Владимир Климат Опубліковано: 12 липня 2013 Поділитись Опубліковано: 12 липня 2013 Я не вентиляционщик, но, возможно, мой личный опыт поможет. У меня был аналогичный гемор в подвале (погребе) на даче. Прохладно, но сыро. С помощью ручного бура и коронок (физически хлопотное дело)в одном конце погреба установил грибок на приток почти на уровне фундамента, а второй в противоположном вывел на полтора метра выше. В погребе стало намного суше (запах сырости всё равно присутствует), но пропала плесень... И вино стало вкуснее :D:beer: 1 Посилання на коментар Поділитися на інших сайтах More sharing options...
airservis Опубліковано: 12 липня 2013 Поділитись Опубліковано: 12 липня 2013 И вино стало вкуснее :D:beer: Ясный перец. Пить теперь приходится то в комфортных условиях. Без плесени. Плесень для сыра:beer:. Посилання на коментар Поділитися на інших сайтах More sharing options...
dneprstab Опубліковано: 14 липня 2013 Поділитись Опубліковано: 14 липня 2013 И вино стало вкуснее А винный кондер почему не поставил ? Посилання на коментар Поділитися на інших сайтах More sharing options...
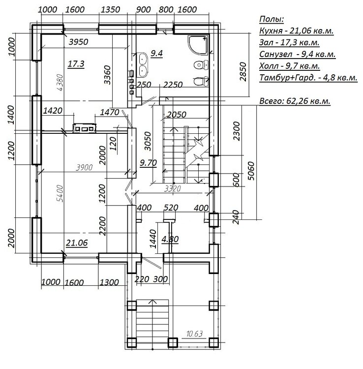
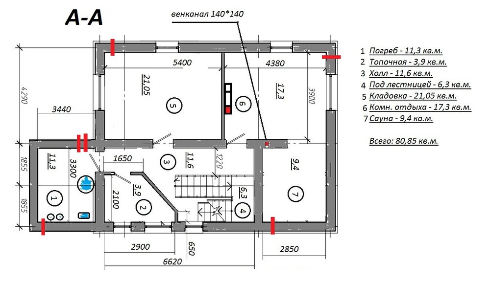
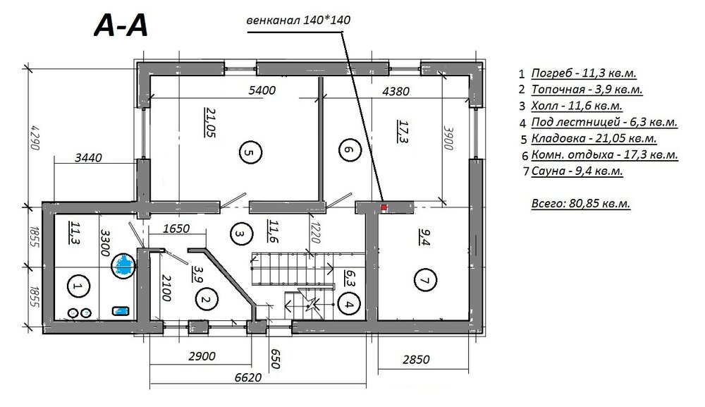
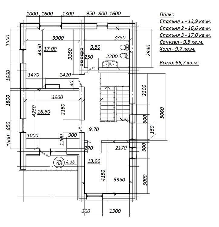
Valentin30 Опубліковано: 15 липня 2013 Автор Поділитись Опубліковано: 15 липня 2013 Здравствуйте! Спасибо что откликнулись. Не отвечал потому что уезжал на выходные. По поводу притока воздуха – его нет нигде (наверное, вентиляция проектантами планировалась с помощью проветривания окнами). Я планировал заказать алмазное сверление, сделать отверстия диаметром 130 мм. Только вот не знаю где лучше, и не уверен на счет диаметров – надо ли все по 130 делать или может где то больше, меньше. Ну а потом грибки по цоколю. Только опять же будет ли это все работать? Вентиляторы и похожее оборудование ставить не хотелось бы. Забыл сразу сказать, что погреб будет закрываться плотной теплоизолированной дверью. Т.е. скорее всего там надо и приток и вытяжка. Прикладываю чертеж, на котором отметил где именно планирую просверлить отверстия (красным цветом). Так же вспомнил что можно добавить один ветканал пробив потолок (его тоже отметил красным, в комнате 6) В погребе два отверстия на одной стенке для того что бы сделать дымоход от генератора. Посилання на коментар Поділитися на інших сайтах More sharing options...
Valentin30 Опубліковано: 15 липня 2013 Автор Поділитись Опубліковано: 15 липня 2013 Забыл ответить, в топочной только два окна, больше ничего нет. Этажи все одинаковые (как и цокольный). Две группы вентканалов (по три канала в каждой) идут в комнате 6, там где ветканал для сауны и вторую шахту дорисовал. Посилання на коментар Поділитися на інших сайтах More sharing options...
Вин Опубліковано: 15 липня 2013 Поділитись Опубліковано: 15 липня 2013 в погреб действительно нужен естественный приток и вытяжка, приток нужно опустить к полу, вытяжку к потолку. А для организации приточно-вытяжной вентиляции не хватает планов всех этажей где указана уже существующая вентиляция. А как у Вас организован приток в топочной? Посилання на коментар Поділитися на інших сайтах More sharing options...
Valentin30 Опубліковано: 15 липня 2013 Автор Поділитись Опубліковано: 15 липня 2013 Приток в топочную отсутствует, как и по всему цоколю. Выкладываю остальные планы. Посилання на коментар Поділитися на інших сайтах More sharing options...
Valentin30 Опубліковано: 20 липня 2013 Автор Поділитись Опубліковано: 20 липня 2013 Советов больше нет? Жаль... Посилання на коментар Поділитися на інших сайтах More sharing options...
blacktigra Опубліковано: 26 липня 2013 Поділитись Опубліковано: 26 липня 2013 Valentin30, для организации притока в цоколь достаточно оставлять приоткрытым окно на проветривание в одном из помещений. Это будет аналогично тому, что вы просверлите дыру в стене. Вам нужно организовывать вытяжную вентиляцию. Самый правильный вариант, на мой взгляд, будет если установить небольшой канальный вентилятор, развести воздуховоды по смежным помещениям, а выхлоп выбросить в вентканал сауны. В дверях врезать маленькие переточные решетки, или оставить щель снизу. Вентилятор оснастить таймером, чтобы он не работал постоянно. А в топочной у вас газовый котел стоит, или электрический? 1 Посилання на коментар Поділитися на інших сайтах More sharing options...
Valentin30 Опубліковано: 29 липня 2013 Автор Поділитись Опубліковано: 29 липня 2013 blacktigra, окна открывать не удобно, да и нет возможности – дом не достроен, т.е. не жилой. Котел газовый, турбированный, конденсационный. По поводу воздуховодов: замарачиваться с ними не хочется. В принципе, я уже просверлил по периметру дома отверстия диаметром 160 мм (8 шт). Хочу поставить три вентилятора. Во все отверстия хочу вставить сэндвич венттрубы из оцинковки – наружным диаметром 160 мм и внутренним 100 мм, т.е. утепление 30 мм. Установить их с небольшим уклоном на улицу, что бы конденсат туда стекал. Снаружи поставлю воздухозаборные решетки. Сверлил все в субботу 27 июля 2013 г. Гидрометр в этот день показывал влажность 70% в цокольном помещении. Приехал снять показания в воскресенье – стало 58%. Запах сырости значительно уменьшился. Надеюсь после установки вентиляторов еще меньше будет влажность. Вентиляторы хочу установить с гидростатами, что бы сами включались, когда надо. Вот как то так. Когда все сделаю, скорее всего отпишусь на форуме, может опыт мой пригодится кому-нибудь. Посилання на коментар Поділитися на інших сайтах More sharing options...
Рекомендовані повідомлення
Створіть акаунт або увійдіть у нього для коментування
Ви маєте бути користувачем, щоб залишити коментар
Створити акаунт
Зареєструйтеся для отримання акаунта. Це просто!
Зареєструвати акаунтУвійти
Вже зареєстровані? Увійдіть тут.
Увійти зараз