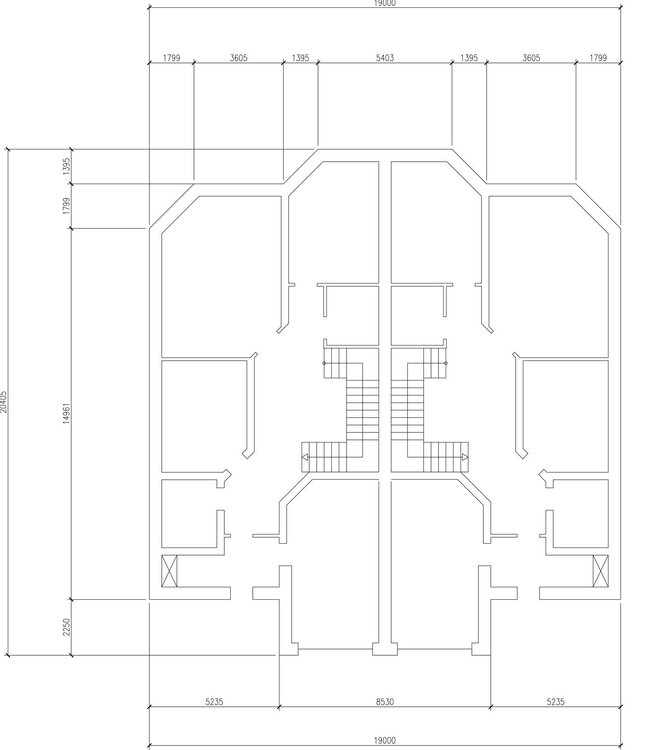
Pasha Опубліковано: 8 березня 2009 Поділитись Опубліковано: 8 березня 2009 Приветствую всех! Имею залитый фундамент который простоял с осени 2008г. Сейчас планирую закончить его. Осталось сделать: 1. Поровнять землю в середине фундамента. 2. Уложить трубы (канализационные) 3. Засыпать гравием 4. Установить опалубку 5. Повязать арматуру 6. Принять бетон из миксеров (автомобилей) Смета: 1. Арматура - 6000грн 2. Гравий (2 машины по 1400 грн) - 2900грн 3. Бетон М200 - 21куб (по 600грн за куб) = 12600 грн 4. Работа бригады строителей ($1000 по курсу 6,0) 6000 грн ИТОГО: 27 500грн Пожалуйста покритикуйте стоимость материалов и работ. Фундамент давольно не маленький по размеру. Дом на две семьи. Там получается около 250 кв.м. рабочей площади. (смотри вложение) Спасибо! Посилання на коментар Поділитися на інших сайтах More sharing options...
InSAn Опубліковано: 8 березня 2009 Поділитись Опубліковано: 8 березня 2009 Пожалуйста покритикуйте стоимость материалов и работ. 2. Гравий (2 машины по 1400 грн) - 2900грн 2 * 1400 = 2800 Больше критиковать особо нечего Посилання на коментар Поділитися на інших сайтах More sharing options...
Pasha Опубліковано: 8 березня 2009 Автор Поділитись Опубліковано: 8 березня 2009 2 * 1400 = 2800 Больше критиковать особо нечего ой ;) -Вовочка, сколько будет 2+2 -А мы продаем или покупаем? ;) ps: так а цены приемлемы? по работе нормальная цена ? там работы на 2-3 дня. Посилання на коментар Поділитися на інших сайтах More sharing options...
InSAn Опубліковано: 8 березня 2009 Поділитись Опубліковано: 8 березня 2009 ой ;) -Вовочка, сколько будет 2+2 -А мы продаем или покупаем? ;) ps: так а цены приемлемы? по работе нормальная цена ? там работы на 2-3 дня. Давайте считать вместе Прием бетона у меня в прошлом году стоил 200 грн./куб. Тогда это была очень низкая цена. Сейчас - средняя. 21 куб * 200 = 4200 грн. Установить опалубку, поровнять землю, связать арматуру и т.п. - еще гривень 1000. Засыпать гравием (70грн./куб) - думаю, у вас кубов 15-20? ИМХО стоимость работ - вполне адекватная. Но для приличия попробуйте на 500 грн. опустить Посилання на коментар Поділитися на інших сайтах More sharing options...
dzhorzhik Опубліковано: 14 травня 2009 Поділитись Опубліковано: 14 травня 2009 1. Поровнять землю в середине фундамента. А пол какой будет ? Землю в любом случае лучше уплотнить. Посилання на коментар Поділитися на інших сайтах More sharing options...
Andrey-Bucha Опубліковано: 14 травня 2009 Поділитись Опубліковано: 14 травня 2009 Приветствую всех! Имею залитый фундамент который простоял с осени 2008г. Сейчас планирую закончить его. Осталось сделать: 1. Поровнять землю в середине фундамента. 2. Уложить трубы (канализационные) 3. Засыпать гравием 4. Установить опалубку 5. Повязать арматуру 6. Принять бетон из миксеров (автомобилей) Смета: 1. Арматура - 6000грн 2. Гравий (2 машины по 1400 грн) - 2900грн 3. Бетон М200 - 21куб (по 600грн за куб) = 12600 грн 4. Работа бригады строителей ($1000 по курсу 6,0) 6000 грн ИТОГО: 27 500грн Пожалуйста покритикуйте стоимость материалов и работ. Фундамент давольно не маленький по размеру. Дом на две семьи. Там получается около 250 кв.м. рабочей площади. (смотри вложение) Спасибо! Цемент 520-550 грн. Даже с ДС-Форум и Ковальской доставал неделю назад. Щебень стоит 80-90 грн. Не более. Я покупал по 85 грн. Арматура 12 мм - 4200 гр за тонну Посилання на коментар Поділитися на інших сайтах More sharing options...
Рекомендовані повідомлення
Створіть акаунт або увійдіть у нього для коментування
Ви маєте бути користувачем, щоб залишити коментар
Створити акаунт
Зареєструйтеся для отримання акаунта. Це просто!
Зареєструвати акаунтУвійти
Вже зареєстровані? Увійдіть тут.
Увійти зараз