Перейти до публікації
Пошук в
  • Додатково...
Шукати результати, які містять...
Шукати результати в...

Армопояс над гаражом под балки + армопояс под плиты перекрития дома

shodyveletyk

Рекомендовані повідомлення

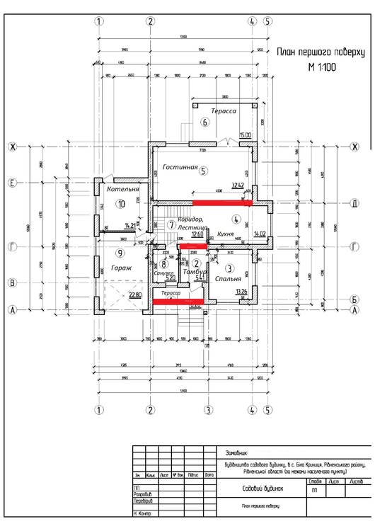
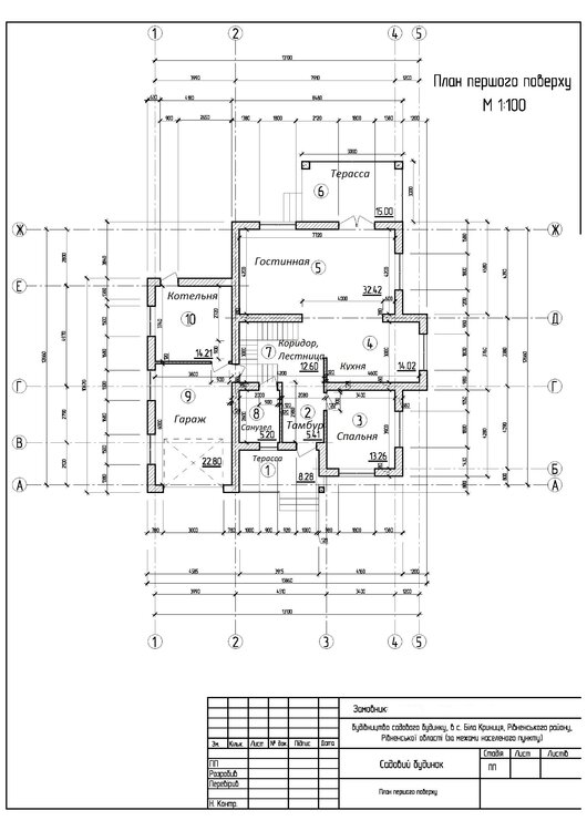
Здравствуйте ув. Форумчане ! Стою перед выбором : нужно ли делать армопояс под перекрытие гаража. Стена в гараже 38 см (два ракушника) . Край гаража примыкает к стене дома. Гараж буду перекрывать балками. Второй вопрос как правильно залить перемычки над окнами , если сразу над ними будет ити армопояс под плиты перекрытия. План дома, фасад и фото процеса стройки дома прикрепил. Спасибо.

77119088_1..thumb.jpg.6930e98ecf071bf1753b7b8610797b27.jpg

981650057_2..thumb.jpg.04b5865ee7440ffb63c540cbf81a3b3e.jpg

101.thumb.jpg.97441b9c69d66d78c8a459cd881429bb.jpg

102.thumb.jpg.173e5d33f5d3980841f64fdde78d917f.jpg

103.thumb.jpg.3dcf49b8ecbdfc98e2a43be71b915e17.jpg

104.thumb.jpg.e5e8e789ff625f346d02c229874995c4.jpg

501.pdf

502.pdf

503.pdf

504.pdf

DSCF1164.thumb.JPG.d66450b2c6aa3c4c46137e7af1f249fd.JPG

DSCF1165.thumb.JPG.cec615031c70c0833d95f0a69c01e1ad.JPG

DSCF1169.thumb.JPG.a329de84e31758c455f8fd7493ab5826.JPG

DSCF1172.thumb.JPG.0a727c4ec6c5fec02c1207f8f8087d96.JPG

Кровля.pdf

  • Лайк 1
Посилання на коментар
Поділитися на інших сайтах

нужно ли делать армопояс под перекрытие гаража

лучше сделать

 

Второй вопрос как правильно залить перемычки над окнами , если сразу над ними будет ити армопояс под плиты перекрытия.

 

армапояс может выполнять и функции перемычки, главное правильно за армировать

  • Лайк 1
Посилання на коментар
Поділитися на інших сайтах

лучше сделать

 

 

 

армапояс может выполнять и функции перемычки, главное правильно за армировать

А заливать на всю ширину 38 см или давать по краям кирпич и лить в средину .? По дому делать сначала перемычку , выпускать арматуру а потом пояс или заливать все вместе перемычка + пояс.

Посилання на коментар
Поділитися на інших сайтах

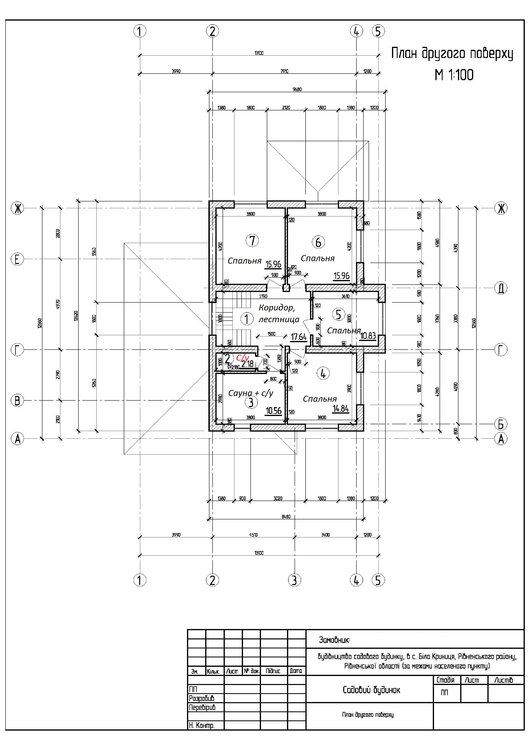
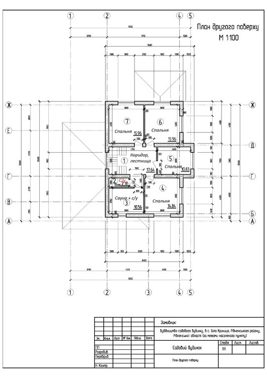
Подскажите также как правильно сделать ригеля. Самий длинный ригель 4,6 м. Опирания на колону нету. На плане показал где именно будут ити ригеля. Фото также прикрепил. Спасибо за совет. :)

165415277_1..thumb.jpg.82923ed0dbc5fa84667cf30eed9b48c3.jpg

1474723425_2..thumb.jpg.cb045dd1d292fc31a1650027c5993d12.jpg

плити перекриття.pdf

DSCF0088.thumb.JPG.1adeecd4379e465ff8f027352dccb4be.JPG

DSCF0090.thumb.JPG.f65d4f05a14c1085a4dd2dbcfdf7b262.JPG

Посилання на коментар
Поділитися на інших сайтах

Сегодняшние фото места под ригель. Подскажите как правильно сделать.

DSCF0256.thumb.JPG.18b5c65336b87c5cf954131733916f9a.JPG

DSCF0278.thumb.JPG.994c752c537a7064f24f203e6d68dda5.JPG

  • Лайк 1
Посилання на коментар
Поділитися на інших сайтах

  • 9 місяців потому...
Сегодняшние фото места под ригель. Подскажите как правильно сделать.

 

Скажите пожалуйста получилось вам реализовать задуманное может есть ссылка или фото.?

Посилання на коментар
Поділитися на інших сайтах

  • 2 тижні потому...
Скажите пожалуйста получилось вам реализовать задуманное может есть ссылка или фото.?
Да ригель зделали , плитами перекрыл все ето. Фото как зделано смотрите ниже.

DSCF0267.thumb.JPG.26ee451396519a89a62a9704330ea63d.JPG

DSCF0268.thumb.JPG.198297a60d6d78a44720f2a29e7d15d5.JPG

DSCF0269.thumb.JPG.584efc08e1eff1dc5f78b94bb6932c17.JPG

DSCF0270.thumb.JPG.663b4cad0ed0ec28e8eb7cdecdb166d4.JPG

DSCF0273.thumb.JPG.3a158c2b770ef5bf4f9f26222c1be2b0.JPG

DSCF0274.thumb.JPG.97add5fa08e70d712d35dbe294e57ee3.JPG

DSCF0275.thumb.JPG.4c9143ccc325b2d7588bede690d99502.JPG

DSCF0276.thumb.JPG.9978d1bf41272dfa7811c2aaea7d124e.JPG

DSCF0277.thumb.JPG.d9293e852315f1cfa283bb8a7af3e1ab.JPG

DSCF0278.thumb.JPG.4243dd4a07212283a0cb9aa0ab83954c.JPG

DSCF0279.thumb.JPG.00fef33e1a55ffc0c120550512ed4ca4.JPG

DSCF0283.thumb.JPG.8bd05ecaeb860dcc0db7e92665c34f98.JPG

DSCF0285.thumb.JPG.f4f6df5285f3235ca739dfd84171b821.JPG

DSCF0286.thumb.JPG.055c37217fbc84394e8a070a0dfe2d3c.JPG

DSCF0289.thumb.JPG.ebe0e97138d7a1c85894f0749d6604c0.JPG

  • Лайк 1
Посилання на коментар
Поділитися на інших сайтах

Створіть акаунт або увійдіть у нього для коментування

Ви маєте бути користувачем, щоб залишити коментар

Створити акаунт

Зареєструйтеся для отримання акаунта. Це просто!

Зареєструвати акаунт

Увійти

Вже зареєстровані? Увійдіть тут.

Увійти зараз
×
×
  • Створити...