Перейти до публікації
Пошук в
  • Додатково...
Шукати результати, які містять...
Шукати результати в...

Пристройка, а точнее реконструкция моего дома

ssspit

Рекомендовані повідомлення

Вот решил вести (по возможности), чтото типа дневника моей стройки. Думаю умные/опытные люди в этом деле, иногда помогут мне советом. Каждая стройка это чтото индивидуальное, а реконструкция тем более. Сейчас уже выложил из ГБ около 1/3 стены, все делаю практически сам, по своему понятию стройки и опыта stroimdomовцев. Так что сильно не ругайте, что построю, в том и жить буду:)

Основной помощник и подгонятель отец, но я во-первых никуда не спешу, а во-вторых он пожизненный каменщик и технологии ГБ принимать не хочет. На этой почве у нас частые споры. Я сам в стройку "влез" и буду сам тянуть её до упора. Здоровье и возраст отцу не помогают, но он упорно таскает блоки и помогает чем может.

Также в помощниках числятся: сын (19л), жена и дочка (13л). Сын студент учится за 100км от нас, поэтому помогает при совпадении выходных/каникул и погоды, хотя с заливкой фундамента он мне очень помог.

============================================

Начну сначала. Покупка дома длилась около полугода и еще больше года получал Стройпаспорт, об этом писал в соответствующих темах. Все это время изучал форум. Благодаря stroimdomу и советам "Архитектор" СП получил бесплатно.

Дом купил за соответствующую цену, т.е. из всех благ цивилизации в нем было только свет и газ + бесплатное кабельное TV так как на доме стоит их распределительный щит. Из за этого похож на "штаб дивизии", куча проводов, но это не критично.

Первым делом завел в дом воду, временно и сделал такой же временный сток. Хотя сток там был из 3/4 трубы 3-5см под землей, но она была забита и сгнившая. Сток был в закопанную 200л бочку тоже сгнившую и без дна, но стенки держали, земля не осыпалась.

Посилання на коментар
Поділитися на інших сайтах

... Водопровод собственно был, в яме, с счетчиком, но за забором:)

Было это в октябре 2011. Так как тесть туда переехал жить, заводили воду в дом срочно, до бочки-слива металопласт 22или24, не помню, на глубине 0,7-0,8м, а от нее в дом вместе (рядом) с 50кой слива 16 металопласт на глубине 5-10см (ведь временно же и всего 1,5м). Зиму 2011 все наверно помнят, естественно 16ка замерзла, отогревали оригинально. Жгли костер в тазу над трубой передвигая его около 3-4часов, а модет и больше, одновременно с этим в доме на слив после сифона добавил тройник, кусок трубы и примотал к ней скотчем куллер. От него до котла отопления около метра, так что теплый воздух из дома всю зиму подогревал землю и 16ку возле водостока. Конечно после оттаивания водопровода, землю накрыли пенопластом, старым ватным одеялом и сверху лист конвейерной резины.

Улыбнуло когда соседка к нам за водой начала приходить.

...

1646419819_0493.thumb.jpg.be8f32089760ca00cb1c8e8e06563de4.jpg

346294156_0492.thumb.jpg.6d262ed23722eb0004732310cf4396fc.jpg

408380930_0491.thumb.jpg.a1ac563b160693c96d214fb9f1f1153f.jpg

Посилання на коментар
Поділитися на інших сайтах

  • 2 тижні потому...

Дальше, весной попилил на чурки необхватную грушу (на первой фотке) и только счас заметил что электропила стоит под этим деревом, еще в упаковке, на той же фотке. А также очень раскидистый орех высотой больше 12м, оставил от него только один ствол (6м) из трех. Это временный столб под спутниковую тарелку, пока дом не дострою.

От прежних хозяев досталась стопка волнового шифера около 60листов, гдето метр на полтора, решили с кумом перекрыть летнюю кухню, была в ужасном состоянии (фото2). Справа орех-антенна:)

Фото3! Наша опора и поддержка, пока мы на крыше, дразнят нас пивом с шашлыками.

1411114206_0491.thumb.jpg.38f80fd72ab4f4f82f83d8db6200e760.jpg

1979344656_0631.thumb.jpg.3cd603ad3ddb229182123b07d1c5ff01.jpg

1835262974_0632.thumb.jpg.80e3aaea665186b153dbf40049b9fa51.jpg

Посилання на коментар
Поділитися на інших сайтах

Хорошенько помучившись, выкорчевали пень груши, вырыв неслабенькую ямку. Яма даром не пропала, дорыли до песка метра 3, из старого снятого шифера сделали опалубку. Залили, получилась хорошая яма для слива воды с кухни и ванны. Для унитаза будет отдельная выгребная яма. Не обошлось без приключений, когда было залито больше половины отец, пенсионер, всячески старающийся помочь, загружал бетономешалку, потом решил в ней чтото подправить и застрявшей лопатой его скинуло в яму. Боком он посбивал все распорки, сломал два ребра. Хорошо что мне почему то перед этим вздумалось вытащить из ямы лестницу (ступеньки, приваренные ребром полосы метала), мог бы остаться без отца, жуть. Он падал головой там, где она была. Вобщем все обошлось, ребра зажили, только шифер в яме криво стал, ну и х.с.

Широкая часть заливки, это уже часть фундамента пристройки, думаю слив стену не подмоет, все залито целиком, за армировано. Широкая часть глубиной 0,7-0,8м армирована прутьями диаметром 25-30мм.

1784504236_0641.thumb.jpg.fe75478b6f396659b4b53af86aae7b6a.jpg

2138781641_0643.thumb.jpg.c8423d81f7524c12a3df32556c9cfaac.jpg

Посилання на коментар
Поділитися на інших сайтах

Год 2012 - изготовление стройпаспорта. Делал сам, в фотошопе, не спеша (были причины не спешить до конца года). Дорисовывал и изменял эскиз по всем законным и полу законным требования архитектуры несколько раз. За это время почти сделал удобным подъезд к дому, поменял увеличив остающиеся окна на пластиковые, построил капитальный летний душ, поднял высоту курятника от высоты 1,2м до 2,3м, пробил скважину (нанимал спецов) сделал разводку полива, приобрел собственную бетономешалку. В начале 2013го все проблемы утряслись, можно начинать строится, как раз и архитектура перешла к незаконным требованиям. Побывав на приёме у зама мэра, дней через 20 получил стройпаспорт. СПАСИБО УЧАСТНИКАМ ЭТОГО ФОРУМА!

Отправил уведомление, где то через месяц нашел на сайте номер регистрации. Начал строится "хоз способом" то есть из подручных материалов:D

За год насобирал у знакомых, а то и так выброшенные панели от старой мебели для опалубки.

1797752162_0974.thumb.jpg.7af5b34c9a6eb4fe98d2fd5d385fba80.jpg

80387900_0988.thumb.jpg.f974ecb8659bd1a97bc945f9437d1257.jpg

74794679_1000.thumb.jpg.6d0c3cbf0c2222da8ca651d79c930054.jpg

Змінено користувачем ssspit
Посилання на коментар
Поділитися на інших сайтах

Самое главное забыл! Завел сторожевую собаку!:D:D:D

Породы - загулявшая лайка!:)

150792186_0947.thumb.jpg.7e5146c5ccb1bf4a00ba9de779474fd8.jpg

1294654061_0946.thumb.jpg.9e2c91dd41b12944d06704f59845c825.jpg

Посилання на коментар
Поділитися на інших сайтах

Вязал только в длину, по вертикали не вижу смысла. Вобще я считаю что с фундаментом переборщил, арматура 5-6 слоёв. Дом одноэтажный, перекрытие дерево, стены газобетон. Общая высота фундамента 70-80см, ширина в грунте 47см, выше 40см под блок 375, наверно многовато:).

В тех паспорте БТИ был указан септик, на самом деле у бывших хозяев это был типа погреб (третий, маньяки:shock:). Вкопанная в землю труба гдето полтора метра в диаметре и больше двух высотой, толщина стенки 18мм, замерил когда просверлил, а до этого чуть болгарку не убил делая отверстие под сотку канализации. Пришлось знакомого с резаком привезти. Позже влил туда пару мешалок бетона, разровнял и готово.

Трубу уложили не глубоко, но с нормальным уклоном, не замерзнет. Со временем тротуарной плиткой тут поднимать буду.

23.07.2013 / 20:58:00 закончили заливать фундамент.

1248211249_1025.thumb.jpg.54a64d13870f37b66ad494e6e0f68112.jpg

1965645141_1026.thumb.jpg.0edb5a6b946a473c77fe636a7989cf95.jpg

854500083_1029.thumb.jpg.3a9a3dac3f5f29b8045d20c2a44f5583.jpg

Посилання на коментар
Поділитися на інших сайтах

Вязал только в длину,

Это как?лижили и заливали ..потом опять ложили и заливали?? че-то не пойму:( В длинну она же как-то должна держаться?

Посилання на коментар
Поділитися на інших сайтах

Это как?лижили и заливали ..потом опять ложили и заливали?? че-то не пойму:( В длинну она же как-то должна держаться?

 

Арматура б/у разных диаметров, зато много. Ложили, заливали, утапливали в раствор, приблизительно равномерно по ширине и высоте. Края скручивал стальной проволокой четверкой, тоже валяется в достатке.

Заливал не все сразу, но без долгих перерывов, подряд несколько дней. Типа послойно, оставляя слой на следующий день, ложил арматуру волнами, оставлял торчащие петли, которые будут заливаться завтра.

Раствор хорошо растягивается обыкновенной сапкой.

Както так, арматура не ровная.

1500308213_.jpg.b6952bae5e3b271d395351bbdb2fb602.jpg

Посилання на коментар
Поділитися на інших сайтах

Не хватило терпения ждать 28 дней, тем более что тут говорят можно начинать и раньше.18.08.2013 укрыл фундамент евро рубероидом (обычный мне показался слишком тонким) и через день начал ложить первый слой, на раствор, под уровень, по шнуру, вобщем как можно точнее. Преодолевая возмущения отца (пожизненный каменщик), даже поссорились. Он не хотел понять что блоки не кирпич и раствором их потом не выровнять. Ему бы ложить побыстрее. И вообще клей фигня, надо ложить на раствор. Повоевали.

Скажу на перед, счас уже 11 рядов лежит, взял опять у человека лазерный уровень, которым ровнял первый ряд, все лежит идеально. В наличии только обычный уровень 50см, да и тот почти ненужен. 10 рядов ложил на глаз, точнее на ощупь, чтобы внутренняя сторона блоков была грань в грань. Чтоб стены внутри не ровнять, а снаружи сайдинг. Вобще точность блоков Аэрок порадовала.

Минут за 5-10 сделал штробилку под арматуру 8мм (фото1) инструмент: болгарка, молоток, рельса.

Арматуру 8 пришлось покупать (3,4грн/м), зато ровная, у меня в наличии было всего 6метров. Купил 72метра, но вижу еще надо будет. Штробиться отлично, выдувается пылесосом "ракета" тоже замечательно. Первый ряд (фото2) под окна (фото3)

1380082098_1050.thumb.jpg.b3a58109c5aadb66154e70c193803119.jpg

2095618760_1042.thumb.jpg.6da3219b557b98a5402e6c0d54e4d486.jpg

1483905228_1048.thumb.jpg.d83f835f9941a955f5bbe958d832de82.jpg

26181907_1049.thumb.jpg.f2e68a4c4e547eadbe9f3c6862471bde.jpg

180134759_1051.thumb.jpg.fa08d339b70b37d59d2b1bd7551112a4.jpg

  • Лайк 1
Посилання на коментар
Поділитися на інших сайтах

С началом сентября и дождями, решил подготовится к зиме:)

Почти на всех палетах упаковка сверху лопнувшая. На всяк случай, чтоб блоки не набрались к зиме воды, под пленку засовываем две полу сдутые баклажки, получился уклон, а сверху чем нибудь накрыть, и вентиляция и вода не попадет.

2023992570_1052.thumb.jpg.3c3199fc7b84d00eb50f44c786563bbf.jpg

1730946633_1053.thumb.jpg.3505bcd82ea93c464fa1cac6f2a79649.jpg

Посилання на коментар
Поділитися на інших сайтах

Где то тут на форуме видел вариант изготовления перемычек, потратил два вечера, так и не нашел. Смысл в том, что склеиваются блоки, потом в штробы закладывается арматура, после высыхания переворачивается и повторяется с другой стороны. На видеороликах тоже встречалось что на проём укладывали несколько прутов арматуры, а сверху ложили блоки. Я думаю в штробах будет крепче, не пострадает геометрия блоков и толщина швов.

Самый большой у меня проём почти метр восемьдесят, четыре блока склеить на ровной поверхности, а где её взять и как потом акуратно их поднять на верх? Почти сто кг. Решил делать перемычки прямо на стене, она же ровная и потом останется перемычку только передвинуть на место, стоя в оконном проёме. В этом году делаю пока 5 перемычек, остальные 2 в следующем, после сноса старой веранды и низкой части дома.

Новая штробилка под самую толстую арматурину из 3/4 трубы.

818214344_1057.thumb.jpg.0706afc5ea536de0fed234affc823259.jpg

1600627800_1058.thumb.jpg.c06b6d7bbedcd6a739b3e543c39a9ad2.jpg

620730162_1059.thumb.jpg.365222e0f996a0b66ed5ef8c59a56037.jpg

531627146_1060.thumb.jpg.380069a62f35c24d02b1691c8e3f192b.jpg

Посилання на коментар
Поділитися на інших сайтах

Где то тут на форуме видел вариант изготовления перемычек, потратил два вечера, так и не нашел.

Вот пост www.stroimdom.com.ua/forum/showthread.php?p=1152983#post1152983

Посилання на коментар
Поділитися на інших сайтах

 

спс, но это не то, хотя этого я тоже не видел.

Посилання на коментар
Поділитися на інших сайтах

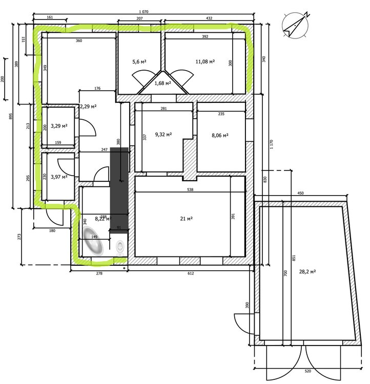
Фундамент делали не замкнутый? у меня почти аналогичная пристройка..многие советуют делать замкнутый фундамент..
Посилання на коментар
Поділитися на інших сайтах

Фундамент делали не замкнутый? у меня почти аналогичная пристройка..многие советуют делать замкнутый фундамент..

 

у меня реконструкция, пристраиваюсь к старому дому. замкнутый может быть наверно только у полностью нового дома.

новый фундамент, отметил зеленым.

728496007_.thumb.jpg.28279315016e46125731a212ca4bd150.jpg

Посилання на коментар
Поділитися на інших сайтах

А деформационый шов делали между новым и старым фундаментом?

 

Не делал, даже наоборот связывался арматурой. По сечению старый фундамент почти в два раза меньше нового. Грунт чернозем.

Посилання на коментар
Поділитися на інших сайтах

  • 3 тижні потому...
У меня так :)

 

Точно! Я ж твою стройку всю прочел. Спасибо за идею, только досками я не скручивал, у меня паз-гребень, аккуратно и так перевернули.

Вчера интернет на стройку подключили, как только время будет, скину еще фоток, а счас спать хочу, монитора не вижу. У совершенствовал каретку, но об этом потом.

Посилання на коментар
Поділитися на інших сайтах

Самый большой у меня проём почти метр восемьдесят, четыре блока склеить на ровной поверхности, а где её взять и как потом акуратно их поднять на верх? Почти сто кг. Решил делать перемычки прямо на стене, она же ровная и потом останется перемычку только передвинуть на место, стоя в оконном проёме.

А я до такого не додумался( склеил перемычки а теперь как их закинуть наверх:oops:

Посилання на коментар
Поділитися на інших сайтах

А я до такого не додумался( склеил перемычки а теперь как их закинуть наверх:oops:

 

Для того и форум этот, помогая другу советом, сами чему то учимся.

Моя вторая находка, это РАШПИЛЬ. Стачивает блоки и клей лучше любой тёрки и наждачки. На больших плоскостях может и другое что то надо, но мне для кладки, пока и его хватает.

Фото: первая положеная перемычка

Потерял телефон продовца ГБ, заехал к нему в контору заказать блок на армопояс 100х200х600, оказалось есть в наличии и машина доставки свободна и погрузка сразу же, вобщем оперативно купил и привез даже не собираясь.

Задумался о кладке армопояса, с кареткой работать удобно, но покупать из-за 45метров новую шириной 10см не хотелось. Вот что получилось минут за 15-20. Ограничитель подачи раствора, если по умному:)

Каретка для блока 375мм = 100+175+100. А для блока повернутого на бок (перестенки) сдвигаем ограничитель получится 200+175. На самом деле ограничитель сделал 185 чтоб клей меньше выступал из под блока.

848437679_1067.thumb.jpg.f03d1831babdd9cc2b82eabe31cd463a.jpg

1374724533_1072.thumb.jpg.a4514db04833d3f077569d93d1cb8a88.jpg

2117440912_1073.thumb.jpg.0dab879b28c9ed816046321a759e1e2c.jpg

1586162368_1074.thumb.jpg.2f50586e1dcddd5b32c0541e77449b28.jpg

1849394868_1081.thumb.jpg.035b7bca680a3a869c3857de020baa71.jpg

Змінено користувачем ssspit
Посилання на коментар
Поділитися на інших сайтах

Забыл сказать, делал из куска старой оцинковки, бывший отлив. Вот как всё выглядит на месте. Дальше, начал ложить армопояс. Как работает модернизированая каретка. Единственный минус, сама она не закрывается, надо не забывать закрывать. Но это мелочи.

856558578_1075.thumb.jpg.7eec96f0cd4bb0573cecbb61855e7ce6.jpg

1381919034_1076.thumb.jpg.8d8864fb26ce13c2d83bc9cd8434fee9.jpg

564563997_1078.thumb.jpg.f486d1ac087f2aec885fccefed4f2547.jpg

160543513_1079.thumb.jpg.b6f88eb930229b5b3c2b36a7d33d730e.jpg

605098492_1080.thumb.jpg.9a5ad51202424907ba82b89e3ec56609.jpg

1578157486_1082.thumb.jpg.4f1cceff62a437d0ea23e1c24ab0a9fa.jpg

450120392_1083.thumb.jpg.021bae63079bf6e764e86d32ac98fe4d.jpg

  • Лайк 2
Посилання на коментар
Поділитися на інших сайтах

Народ! Подскажите! Срочно! В армопояс кроме арматуры, пруты кругляка 12,14,16мм сильно критично вкладывать? А то кругляка еще много, а вот ребристая заканчивается. ЖБ перекрытия не будет, только деревянные балки.

сваривать буду треугольником.

326485829_.png.33d5c6e98c3c8978db5464884239819a.png

Змінено користувачем ssspit
Посилання на коментар
Поділитися на інших сайтах

  • 2 тижні потому...

Створіть акаунт або увійдіть у нього для коментування

Ви маєте бути користувачем, щоб залишити коментар

Створити акаунт

Зареєструйтеся для отримання акаунта. Це просто!

Зареєструвати акаунт

Увійти

Вже зареєстровані? Увійдіть тут.

Увійти зараз
×
×
  • Створити...