Татьяна 78 Опубліковано: 3 вересня 2013 Поділитись Опубліковано: 3 вересня 2013 Добрый день. Нужна профессиональная консультация со стороны проектантов и кровельщиков. Собираемся строить маленький домик (фото прилагаются). На участке: - очень сильные ветра, в основном юго-восточные; - постоянно солнце шпарит; - снежные завалы бывают, но не часто. Материал кровли - битумная черепица. Сделан проект, фото по кровле - прилагаются. В чем проблема: общалась с несколькими кровельщиками, говорят, что такую кровлю нам делать нельзя, что при хорошем снеге она "сложится", настаивают увеличивать угол наклона. Что скажите? Кому верить, проектанту или кровельщикам? Посилання на коментар Поділитися на інших сайтах More sharing options...
Крышник Опубліковано: 4 вересня 2013 Поділитись Опубліковано: 4 вересня 2013 Добрый день. Нужна профессиональная консультация со стороны проектантов и кровельщиков. Собираемся строить маленький домик (фото прилагаются). На участке: - очень сильные ветра, в основном юго-восточные; - постоянно солнце шпарит; - снежные завалы бывают, но не часто. Материал кровли - битумная черепица. Сделан проект, фото по кровле - прилагаются. В чем проблема: общалась с несколькими кровельщиками, говорят, что такую кровлю нам делать нельзя, что при хорошем снеге она "сложится", настаивают увеличивать угол наклона. Что скажите? Кому верить, проектанту или кровельщикам? И тем и тем нельзя,мне можно Но большей частью мои коллеги правы,такое делать нельзя. От конька дополнительно уприте вертикаль на балку(сечение лучше,как и на стропила,150х50) и будет Вам счастие:D Еще замените брусок обрешётки 50х50 с таким большим(неправильным)шагом под ОСП на доску 30х100,ОСП достаточно 10 мм,если между обрешёткой шаг +-300мм. Ещё стропило/балка сбить внахлёст и зафиксировать болтом,уголки/пластины прикрученные саморЭзами-это дилетантство. Ещё между балкой и ж/б армпоясом(на чертеже Н-300мм),делать так,снизу вверх:гидроизоляция(2 слоя рубироида или "еврорубероид" или спецлента,как для изол. фундамента),мауэрлат(для снятия точечной нагрузки/давления от ребра балки),можно те же 50х150(100х150).крепить мауэр распорным анкером,балку к анкеру развёрнутой скобой ф8-10мм. п.с.Отход битумки 3%,а не 10:) п.п.с.Ваш архитектор в крышах ни хрена не копенгаген! Посилання на коментар Поділитися на інших сайтах More sharing options...
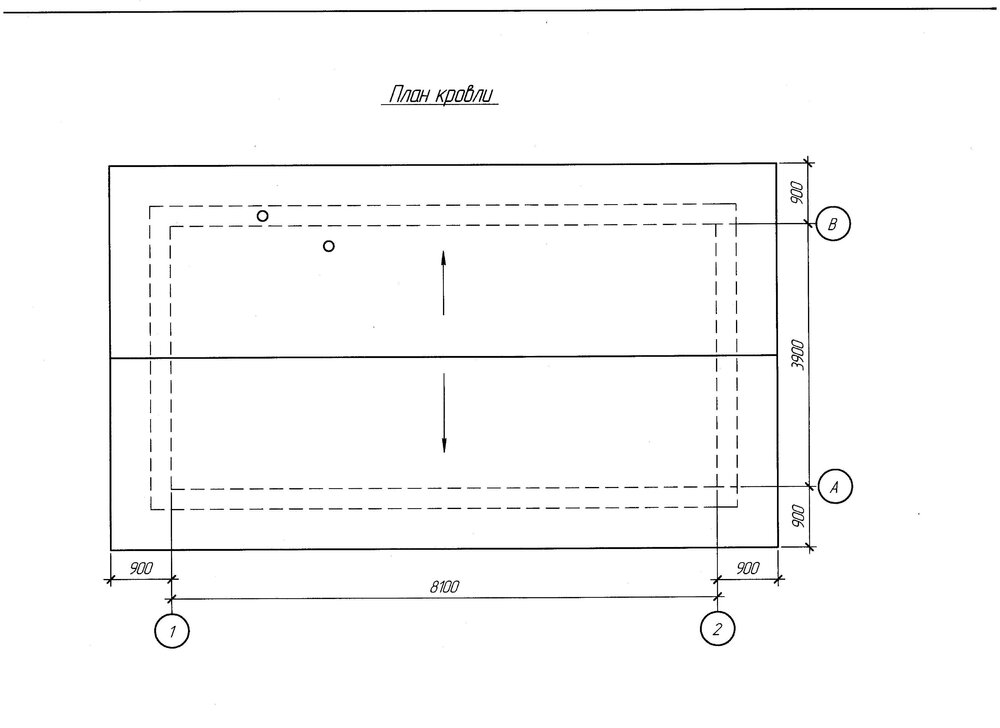
Gothia Опубліковано: 4 вересня 2013 Поділитись Опубліковано: 4 вересня 2013 Кому верить, проектанту или кровельщикам? Проектанту верить можно только частично: не все стропила у него держат конструкцию. Кровельщикам верить однозначно нельзя ни при каких обстоятельствах: задача строителя реализовать чертежи в жизнь. К мнениям прислушиваться можно. К Коле Крышнику прислушиваться можно. Но однозначный и полный ответ вы получите только на основании математического расчёта несущей способности. Моё мнение таково: на разрезе стропилка жизнеспособна. но стропилка на плане, как говорят классики, действительно, "нифига не копенгаген". Посему моё резюме таково: 1. стропилку на перепроектирование 2. строителям: цыц! Посилання на коментар Поділитися на інших сайтах More sharing options...
FUTURIANE Опубліковано: 5 вересня 2013 Поділитись Опубліковано: 5 вересня 2013 краюшки какие-то стрёмные, и б-2 непонимай, маоэрлат выпустить , и конёк есесна непомешал бы, брусок диагональный под стропилкой нужен, ежели ветерно. Посилання на коментар Поділитися на інших сайтах More sharing options...
вторик Опубліковано: 5 вересня 2013 Поділитись Опубліковано: 5 вересня 2013 в уклоне кровли не уверен, даже у битумки есть свои ограничения, сечения ок, узлы в топку. Посилання на коментар Поділитися на інших сайтах More sharing options...
Татьяна 78 Опубліковано: 5 вересня 2013 Автор Поділитись Опубліковано: 5 вересня 2013 Моя КРЫША съехала окончательно.... ДОстройку откладываю до весны, иду учить матчасть Если у кого есть еще че умного сказать - буду благодарна Посилання на коментар Поділитися на інших сайтах More sharing options...
Hover Опубліковано: 5 вересня 2013 Поділитись Опубліковано: 5 вересня 2013 Делал бы так... но мне не все понятно на чертеже. Как будет крепится стропила красного цвета.... Посилання на коментар Поділитися на інших сайтах More sharing options...
вторик Опубліковано: 6 вересня 2013 Поділитись Опубліковано: 6 вересня 2013 Hover, не нужна там ферма. обычные стропила на обычном мауерлате, с затяжкой по верху мауерлата, на нем же держать лобовые. Посилання на коментар Поділитися на інших сайтах More sharing options...
Hover Опубліковано: 6 вересня 2013 Поділитись Опубліковано: 6 вересня 2013 Ну тогда бы посоветовал Цолленгерову крышу. 7 Посилання на коментар Поділитися на інших сайтах More sharing options...
FUTURIANE Опубліковано: 10 вересня 2013 Поділитись Опубліковано: 10 вересня 2013 да, круче не придумаешь , ток воплотить непросто , геометрия нестандарт, а так решение интересное. Посилання на коментар Поділитися на інших сайтах More sharing options...
Andrei constructor Опубліковано: 10 вересня 2013 Поділитись Опубліковано: 10 вересня 2013 в уклоне кровли не уверен, даже у битумки есть свои ограничения минимальный уклон 25% Добавлено через 2 минуты Как будет крепится стропила красного цвета.... На чертежах нет консолей от крайних стропильных ног к балкам Б2. Посилання на коментар Поділитися на інших сайтах More sharing options...
Andrei constructor Опубліковано: 11 вересня 2013 Поділитись Опубліковано: 11 вересня 2013 Верхняя затяжка не работает, достаточно установить накладки на стыках стропил. Добавлено через 3 минуты Ну тогда бы посоветовал Цолленгерову крышу. Необходимы для такой системы (сетчатая оболочка) конструкции, воспринимающие распор. Типа канатов в уровне опорного контура. Посилання на коментар Поділитися на інших сайтах More sharing options...
Hover Опубліковано: 11 вересня 2013 Поділитись Опубліковано: 11 вересня 2013 Необходимы для такой системы (сетчатая оболочка) конструкции, воспринимающие распор. Типа канатов в уровне опорного контура. Нет... сборка не предусматривает канатов в уровне опорного контура, также наличия (каркаса или оболочки все довольно просто. Главное что-бы стены неразъехались... Радиус задается профилем пира (элемент доска одна часть окружности). 2 Посилання на коментар Поділитися на інших сайтах More sharing options...
Andrei constructor Опубліковано: 12 вересня 2013 Поділитись Опубліковано: 12 вересня 2013 Нет... сборка не предусматривает канатов в уровне опорного контура, также наличия (каркаса или оболочки все довольно просто. Сетчатая оболочка из дерева очень красивая конструкция. На всех ваших фото есть конструктивные особенности для погашения распора. Навес - распор воспринимается колоннами и благодаря жесткости сопряжения с фундаментами стоек все ОК; Покрытие здания- там есть специальный опорный контур по колоннам каркаса или затяжки из канатов (видны на фото). Посилання на коментар Поділитися на інших сайтах More sharing options...
Project Engineer Опубліковано: 18 листопада 2013 Поділитись Опубліковано: 18 листопада 2013 Минимальный уклон битумной черепицы 11 градусов (по рекомендациям производителей). Вполне жизнеспособная конструкция, при пролете то в 3,9 метра. Посилання на коментар Поділитися на інших сайтах More sharing options...
Татьяна 78 Опубліковано: 4 квітня 2014 Автор Поділитись Опубліковано: 4 квітня 2014 Обновлю тему, может кто еще че подскажет, а то уже стены стоят, накрыться бы Посилання на коментар Поділитися на інших сайтах More sharing options...
kroem.com.ua Опубліковано: 4 квітня 2014 Поділитись Опубліковано: 4 квітня 2014 Обновлю тему, может кто еще че подскажет, а то уже стены стоят, накрыться бы А давайте мы вас накроем! Быстро и компетентно. plus.google.com/photos/115161902953902497891/albums/5998082090433860545 1 Посилання на коментар Поділитися на інших сайтах More sharing options...
Татьяна 78 Опубліковано: 5 квітня 2014 Автор Поділитись Опубліковано: 5 квітня 2014 А давайте мы вас накроем! Быстро и компетентно. plus.google.com/photos/115161902953902497891/albums/5998082090433860545 А давайте Вы мне нарисуете цену на кровлю за кв.м. в Запорожье для начала, вводные все в принципе те же, кроме того, что по периметру уже не 8х4м а 12х4 Ну и, как бы, гарантийный срок еще интересен Спасибо Посилання на коментар Поділитися на інших сайтах More sharing options...
Рекомендовані повідомлення
Створіть акаунт або увійдіть у нього для коментування
Ви маєте бути користувачем, щоб залишити коментар
Створити акаунт
Зареєструйтеся для отримання акаунта. Це просто!
Зареєструвати акаунтУвійти
Вже зареєстровані? Увійдіть тут.
Увійти зараз