Игорь&Ира Опубліковано: 26 вересня 2013 Поділитись Опубліковано: 26 вересня 2013 Часть 1: Дренажная система Прошу помощи знатоков форума в связи с возможностью повторения критической ситуации: этой весной, впервые за многие годы, затопило цокольный этаж дома. Сейчас опять идут длительные дожди, зиму обещают крайне суровую и не исключено повторение прошлогодних катаклизмов. В качестве предупредительной меры решил сделать дренажную систему вокруг дома. Итак, имеется садовый участок в 600 кв.м. размером 20 (по фасаду) на 30 м. Земля на участке супесчанная. Участок имеет уклон от тыла к фасаду. На участке размещены дом, хозблок и беседка. На рисунке показан дом и часть участка перед домом, где и предполагается организовать дренажную систему (см. рис. “Дренажная система”). Чёрным цветом обозначен цоколь дома. Серым цветом обозначены бетонные дорожки, отмостка и въезд в гараж в цоколе. Также на участке имеются: К1 – бетонный водозаборный шахтный колодец диаметром 100 см и глубиной 600 см. К-2 – бетонный канализационный шахтный колодец диаметром 200 см и глубиной 200 см (не используется в связи с неготовностью). К-3 – бетонный водоприёмный шахтный колодец диаметром 100 см и глубиной 100 см перед въездом в гараж. Наличие воды в колодцах и её уровень приведены в теме: www.stroimdom.com.ua/forum/showthread.php?t=63933. Предварительный план действий следующий: поставить 1 дренажный колодец (КД-1), 2 поворотных дренажных колодца (КД-2 и КД-3) и 1 водоприёмный дренажный колодец (КД-4), которые соединить между собой дренажными трубами, уложенными сразу за отмосткой вокруг дома. Уклон труб должен обеспечивать сток от КД-1 через КД-2 и КД-3 в КД-4. Воду из водоприёмного дренажного колодца (КД-4) предполагается отводить в локальную водоотводную систему (планируем сделать с соседями через несколько участков по уклону с выводом в речку) или же установить дренажный насос с поплавком для сброса воды на дорогу. Вопросы по дренажной системе: 1. Делать дренажную систему круговую, как на схеме, или можно ограничиться Г-образной (КД-1, КД-2 и КД-4)? (Ветка КД-1, КД-3 и КД-4 будет проходить через зону, где уже проведены все озеленительные работы, а также будет пересекать бетонную дорожку шириной 100 см и забетонированный въезд в гараж в цокольном этаже дома шириной около 500 см). 2. Нужны ли поворотные дренажные колодцы (КД-2 и КД-3)? 3. Какие дренажные колодцы могут быть альтернативой заводским из полиэтилена по 3000-4000 грн. за штуку? 4. Возможно ли поэтапное строительство дренажной системы отдельными участками между колодцами или участками по 5-7 м? 5. Какая может быть стоимость работ: а) копка траншеи б) устройство дрены (колодцы, труба, щебень, геотекстиль) в) засыпка траншеи песком и землёй г) перевоз щебня, песка и земли. Буду благодарен за любую информацию и ссылки на аналогичные темы. P.S. “Часть 2: Дрена” будет загружена через 3 часа. Посилання на коментар Поділитися на інших сайтах More sharing options...
LandStone Опубліковано: 26 вересня 2013 Поділитись Опубліковано: 26 вересня 2013 Вопросы по дренажной системе: 1. Делать дренажную систему круговую, как на схеме, или можно ограничиться Г-образной (КД-1, КД-2 и КД-4)? (Ветка КД-1, КД-3 и КД-4 будет проходить через зону, где уже проведены все озеленительные работы, а также будет пересекать бетонную дорожку шириной 100 см и забетонированный въезд в гараж в цокольном этаже дома шириной около 500 см). 2. Нужны ли поворотные дренажные колодцы (КД-2 и КД-3)? 3. Какие дренажные колодцы могут быть альтернативой заводским из полиэтилена по 3000-4000 грн. за штуку? 4. Возможно ли поэтапное строительство дренажной системы отдельными участками между колодцами или участками по 5-7 м? Оптимальным вариантом считаю П-образную схему (исключить линию трубы КД3-КД4), а колодцы КД3 и 4 сделать сборными. Поворотные (ревизионные) колодцы нужны однозначно, любая дренажная система со временем будет заиливаться, и у Вас будет возможность провести ревизию (промывать под давлением каждую ветку). Удешевить систему (заменить колодцы) могут пластиковые дождеприемники (30*30 или 40*40см) по всем граням есть модули для подключения трубы диаметром 110 или 160 мм (вырезается дно и наращиваем по высоте, закрываем глухой крышкой).Трубу рекомендовал бы использовать двухслойную. 2 Посилання на коментар Поділитися на інших сайтах More sharing options...
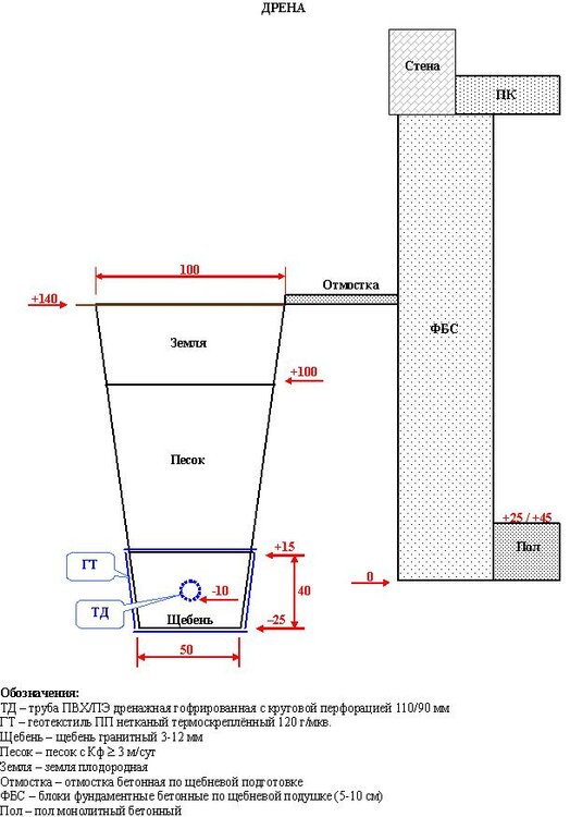
Игорь&Ира Опубліковано: 26 вересня 2013 Автор Поділитись Опубліковано: 26 вересня 2013 Часть 2: Дрена Сам дренаж предполагаю сделать следующим образом (см. рис. “Дрена”). Сразу за отмосткой хочу вырыть траншею глубиной на 25 см ниже, чем подошва фундаментных блоков (исходная точка возле дренажного колода КД-1), и шириной внизу 50 см. Нижние 40 см траншеи будут засыпаны гранитным щебнем 3-12 мм, который вокруг будет защищён нетканным термоскреплённым геотекстилем 120 г/мкв., а в центре будет помещена гофрированная дренажная труба из ПВХ или полиэтилена с круговой перфорацией и наружным диаметром 110 мм. Далее траншея будет засыпана песком с коэффициентом фильтрации > 3 м/сут (толщина слоя: > 80 см) и плодородной землёй (толщина слоя: 40 см). Трубы предполагается уложить с уклоном от КД-1 к КД-4 для самотока воды, а в самих трубах оставить тканевых жгуты от колодца до колодца для прочистки системы по мере необходимости. Вопросы по дрене: 1. Какая глубина заложения дренажной трубы по отношению к подошве фундаментных блоков? 2. Какой должен быть уклон дренажных труб? 3. Как быть с глубиной заложения дренажных труб, если расстояние между КД-1 и КД-4 составляет порядка 25 м, что на каждый 1/2 см уклона трубы на погонный метр даст в итоге перепад высот в 25/50 см? 4. Насколько критично отклонение трубы от прямолинейности по вертикали и горизонтали? 5. Какую дренажную трубу применить? (Спецификация или характеристики: материал, диаметр и пр.). 6. Есть ли смысл тратиться на дренажную трубу с геотекстильной фильтрующей оболочкой или лучше ограничиться геотекстилем вокруг щебня? 7. Чем можно заменить тканевые жгуты в дренажных трубах? 8. Действительно ли гранитный щебень обсыпки должен быть меньше размера впадин гофры и без обломков с острыми кромками? 9. Можно ли щебень, не примыкающий к дренажной трубе, частично заменить керамзитом 5-20 мм? (Имеется в наличии). 10. Какой геотекстиль применить вокруг щебня? (Спецификация или характеристики: материал, плотность и пр.)? 11. Как правильно соединять куски геотекстиля? 12. Песок должен быть только крупным речным? 13. Как проверить коэффициент фильтрации песка? 14. Нужна ли послойная трамбовка щебня, песка и земли при укладке в траншею? Буду благодарен за любую информацию и ссылки на аналогичные темы. Посилання на коментар Поділитися на інших сайтах More sharing options...
МАМАЙ Опубліковано: 26 вересня 2013 Поділитись Опубліковано: 26 вересня 2013 ...любая дренажная система со временем будет заиливаться Може Ви і вправний продаван систем водовідведення, але дренаж - це не Ваше. Посилання на коментар Поділитися на інших сайтах More sharing options...
Игорь&Ира Опубліковано: 26 вересня 2013 Автор Поділитись Опубліковано: 26 вересня 2013 Оптимальным вариантом считаю П-образную схему (исключить линию трубы КД3-КД4), а колодцы КД3 и 4 сделать сборными. 1. А как потом присоединиться к локальной водоотводящей системе в речку? По любому, смычка должна быть в наиболее низкой точке системы. 2. Ставить два дренажных насоса для сброса воды на улицу? Поворотные (ревизионные) колодцы нужны однозначно, любая дренажная система со временем будет заиливаться, и у Вас будет возможность провести ревизию (промывать под давлением каждую ветку). В ТУ одной фирмы вычитал, что если длина дренажной трубы с одним поворотом между двумя колодцами менее 30 м, то можно и не ставить. Но я всё-таки склоняюсь к установке. Удешевить систему (заменить колодцы) могут пластиковые дождеприемники (30*30 или 40*40см) по всем граням есть модули для подключения трубы диаметром 110 или 160 мм (вырезается дно и наращиваем по высоте, закрываем глухой крышкой). 1. Даже 40х40 см при высоте в 150-170 см маловато для ревизии. 2. Какая цена вопроса? Трубу рекомендовал бы использовать двухслойную. Это какую? Добавлено через 2 минуты Може Ви і вправний продаван систем водовідведення, але дренаж - це не Ваше. Приєднуйтесь до обговорення. Буду вдячний за поради або своє бачення цього питання. Посилання на коментар Поділитися на інших сайтах More sharing options...
LandStone Опубліковано: 26 вересня 2013 Поділитись Опубліковано: 26 вересня 2013 Може Ви і вправний продаван систем водовідведення, але дренаж - це не Ваше.Козаче вы вільні! Посилання на коментар Поділитися на інших сайтах More sharing options...
1GOG Опубліковано: 26 вересня 2013 Поділитись Опубліковано: 26 вересня 2013 Вопросы по дрене: 1. Какая глубина заложения дренажной трубы по отношению к подошве фундаментных блоков? 2. Какой должен быть уклон дренажных труб? 3. Как быть с глубиной заложения дренажных труб, если расстояние между КД-1 и КД-4 составляет порядка 25 м, что на каждый 1/2 см уклона трубы на погонный метр даст в итоге перепад высот в 25/50 см? 4. Насколько критично отклонение трубы от прямолинейности по вертикали и горизонтали? 5. Какую дренажную трубу применить? (Спецификация или характеристики: материал, диаметр и пр.). 6. Есть ли смысл тратиться на дренажную трубу с геотекстильной фильтрующей оболочкой или лучше ограничиться геотекстилем вокруг щебня? 7. Чем можно заменить тканевые жгуты в дренажных трубах? 8. Действительно ли гранитный щебень обсыпки должен быть меньше размера впадин гофры и без обломков с острыми кромками? 9. Можно ли щебень, не примыкающий к дренажной трубе, частично заменить керамзитом 5-20 мм? (Имеется в наличии). 10. Какой геотекстиль применить вокруг щебня? (Спецификация или характеристики: материал, плотность и пр.)? 11. Как правильно соединять куски геотекстиля? 12. Песок должен быть только крупным речным? 13. Как проверить коэффициент фильтрации песка? 14. Нужна ли послойная трамбовка щебня, песка и земли при укладке в траншею? Не претендую на истину в последней инстанции. Информация почерпнута из различных источников. 1. Ниже уровня подошвы. Чем дальше от подошвы дренаж - тем глубже. При размещении ДТ в 50 см. от подошвы рекомендовали размещение ДТ на 30 см ниже уровня подошвы. 2. 0.5-1 см на метр. 3. При 25м. длине можете вложиться в перепад 15 см. 4. Обеспечьте наклон по вертикали. 5. Применял Ф110, необмотаную ГТ 8. Думаю, что наоборот. Должен быть крупнее. Применял фракцию 20-40 10. Иглопробивной, от100 гр/м2 11. Зачем? Делаете нахлест 15-20 см. При желании соединить можно обычным степлером. 12. Если такого нет - любой. Лучше мытый, с минимальным содержанием глины. 14. Нужна обязательно для исключения непрогнозируемых просадок, которые могут изменить уклоны ДТ. 1 Посилання на коментар Поділитися на інших сайтах More sharing options...
МАМАЙ Опубліковано: 26 вересня 2013 Поділитись Опубліковано: 26 вересня 2013 Приєднуйтесь до обговорення. Буду вдячний за поради або своє бачення цього питання. Проектування не можливо замінити вечорницями профанацією обговоренням. Для проекту необхідні: технічне завдання (скільки води необхідно здренувати), геологічні вишукування (з визначенням фільтраційної здатності ґрунтів) та геодезична зйомка. Без цього, як в анекдоті "- Тєтя Соня! Зачєм ваш Яша ходіт в музикальную школу?! У нєго жє нєт нікакого слуху! - Дуpак! Яша ходіт туда нє слухать! Яша ходіт туда ігpать!" Козаче вы вільні! Яша? Посилання на коментар Поділитися на інших сайтах More sharing options...
LandStone Опубліковано: 26 вересня 2013 Поділитись Опубліковано: 26 вересня 2013 Проектування не можливо замінити вечорницями профанацією обговоренням. Для проекту необхідні: технічне завдання (скільки води необхідно здренувати), геологічні вишукування (з визначенням фільтраційної здатності ґрунтів) та геодезична зйомка. Без цього, як в анекдоті "- Тєтя Соня! Зачєм ваш Яша ходіт в музикальную школу?! У нєго жє нєт нікакого слуху! - Дуpак! Яша ходіт туда нє слухать! Яша ходіт туда ігpать!"Шановный бандурист, вы прийшли потролити?? У себе в горах чи на полонині будете анекдоти розказувати! Краще б відповіли на питання поставлені ТС! 1 Посилання на коментар Поділитися на інших сайтах More sharing options...
Игорь&Ира Опубліковано: 26 вересня 2013 Автор Поділитись Опубліковано: 26 вересня 2013 Информация почерпнута из различных источников. 1.Чем дальше от подошвы дренаж - тем глубже. При размещении ДТ в 50 см. от подошвы рекомендовали размещение ДТ на 30 см ниже уровня подошвы. 2. 0.5-1 см на метр. Можете поднять первоисточник? 1. Как по мне. то 30 см перепада при отступе в 50 см может привести к вымыванию грунта под фундаментом. 2. В ТУ той же фирмы написано, что в супесях уклон должен быть 3 см/м. 8. Думаю, что наоборот. Должен быть крупнее. Применял фракцию 20-40 5-12 мм из ТУ. 11. Зачем? Делаете нахлест 15-20 см. При желании соединить можно обычным степлером. Нашёл геотекстиль 50х2 м - как раз, чтобы завернуть щебень с нахлёстом в 10 см. Боюсь, что в процессе укладки разойдётся. Посилання на коментар Поділитися на інших сайтах More sharing options...
LandStone Опубліковано: 26 вересня 2013 Поділитись Опубліковано: 26 вересня 2013 1. А как потом присоединиться к локальной водоотводящей системе в речку? По любому, смычка должна быть в наиболее низкой точке системы. 2. Ставить два дренажных насоса для сброса воды на улицу?КД3 и Кд4, и соседские колодцы по этой линии соединяйте канализационной трубой и ею же отводите в реку. В ТУ одной фирмы вычитал, что если длина дренажной трубы с одним поворотом между двумя колодцами менее 30 м, то можно и не ставить. Но я всё-таки склоняюсь к установке.Рекомендуется ставить ревизионные колодцы на прямых участках не реже 50м или на каждом повороте. Даже 40х40 см при высоте в 150-170 см маловато для ревизии.в смысле, маловато для ревизии?туба зашла и вышла под углом 90. Это какую?Друхслойная - наружный слой гофрированый с перфорацией, внутрений гладкий с перфорацией, выше пропускная способность и несущие свойства (глубина заложения ниже чем у однослойно). Однослойная гофрированая что снаружи что внутри. 1 Посилання на коментар Поділитися на інших сайтах More sharing options...
Игорь&Ира Опубліковано: 26 вересня 2013 Автор Поділитись Опубліковано: 26 вересня 2013 Проектування не можливо замінити вечорницями профанацією обговоренням. Наш форум і так сурогат. Для проекту необхідні: технічне завдання (скільки води необхідно здренувати) Скільки природа накапає: десять років нічого, а цієї весни аж занадто. Що писати в завданні? Від кілограма до тонни? геологічні вишукування (з визначенням фільтраційної здатності ґрунтів) Я не септик розробляю з фільтрацією в грунт, а дренажну систему з відведенням за межі ділянки. геодезична зйомка. Враховуючи статус нашої держави, можна і аерокосмічну. Переглянув запит профільної організації на технічне рішення: www.standartpark-shop.com.ua/order_tech_r/ Дають рекомендації без бюрократичної тяганини. Добавлено через 5 минут КД3 и Кд4, и соседские колодцы по этой линии соединяйте канализационной трубой и ею же отводите в реку. Т.е., КД-3 и КД-4 соединить между собой канализационной трубой? Соседей буду подсоединять на улице - нечего по участку воду гонять. в смысле, маловато для ревизии?туба зашла и вышла под углом 90. В моём понимании ревизия - это возможность спуститься в колодец. Посилання на коментар Поділитися на інших сайтах More sharing options...
МАМАЙ Опубліковано: 26 вересня 2013 Поділитись Опубліковано: 26 вересня 2013 Я не септик розробляю з фільтрацією в грунт, а дренажну систему з відведенням за межі ділянки. Будьте точніче у визначеннях. Дренаж - це осушування території за допомогою свердовин, колодязів, траншей, підземних труб, дрен, канав і каналів з використанням поглинальної здатності ґрунтів. Якщо "в річку" то це водовідведення — відведення стічних вод з територій за допомогою інженерних санітарно-технічних приладів та каналізаційної мережі. Посилання на коментар Поділитися на інших сайтах More sharing options...
1GOG Опубліковано: 26 вересня 2013 Поділитись Опубліковано: 26 вересня 2013 Можете поднять первоисточник? 1. Как по мне. то 30 см перепада при отступе в 50 см может привести к вымыванию грунта под фундаментом. Информация с форумхауза. Сходу не нашел. Какое вымывание? Влага собирается в дренажной канаве и посредством трубы отводится. Смотрите фото по организации дренажа при постройке УШП. Расстояния можете прикинуть. Нашёл геотекстиль 50х2 м - как раз, чтобы завернуть щебень с нахлёстом в 10 см. Боюсь, что в процессе укладки разойдётся. Сколько щебня будете отсыпать под и над трубой? Надо бы не менее 10-15 см. щебня вокруг трубы. Итого конструкция "щебень+труба" получится минимум 30х30 см. В 50 см геотекстиля завернуть не получится. Или я что-то не правильно понял? 1 Посилання на коментар Поділитися на інших сайтах More sharing options...
LandStone Опубліковано: 26 вересня 2013 Поділитись Опубліковано: 26 вересня 2013 Соседей буду подсоединять на улице - нечего по участку воду гонять.Имел ввиду то, что соседские колодцы стоят на одной линии с вашими и Ваш участок по средине между водоемом и соседями.... В моём понимании ревизия - это возможность спуститься в колодец.А что Вам в нем делать? открыли крышку, вычерпали то что осело на дне, засунули шланг в трубу и промыли...вот и вся ревизия. Добавлено через 1 минуту В 50 см геотекстиля завернуть не получитсяРулон 50м * 2 м. Посилання на коментар Поділитися на інших сайтах More sharing options...
Игорь&Ира Опубліковано: 26 вересня 2013 Автор Поділитись Опубліковано: 26 вересня 2013 Будьте точніче у визначеннях. Дренаж - це осушування території за допомогою свердовин, колодязів, траншей, підземних труб, дрен, канав і каналів з використанням поглинальної здатності ґрунтів. Якщо "в річку" то це водовідведення — відведення стічних вод з територій за допомогою інженерних санітарно-технічних приладів та каналізаційної мережі. Не бачу протиріччя: осушення - за рахунок дренажу, а видалення - за рахунок фільтрації або водовідведення. Я вибрав другий варіант видалення води з ділянки. Чисте водовідведення стосується поверхневих вод. Із "Запроса на техническое решение": Вопрос: Где необходимо собрать воду? Ответ: Дренаж грунта вокруг дома Вопрос: Каким типом водоотвода собрать воды? Ответ: Дренаж / дренажная труба Вопрос: Куда отвести воду? Ответ: В накопительную ёмкость Добавлено через 10 минут Сколько щебня будете отсыпать под и над трубой? Надо бы не менее 10-15 см. щебня вокруг трубы. Сверху и снизу - по 15 см, с боков - по 20 см. Итого конструкция "щебень+труба" получится минимум 30х30 см. В 50 см геотекстиля завернуть не получится. Или я что-то не правильно понял? Размер рулона: 2 м х 50 пог.м (100 кв. м). Охват щебня: 195 см (стороны - по 40 см, низ - 50 см, верх - 65 см). Добавлено через 4 минуты Имел ввиду то, что соседские колодцы стоят на одной линии с вашими и Ваш участок по средине между водоемом и соседями.... Агитирую соседей слева и справа объединить усилия. Речка через дорогу, 4 ряда участков и овраг. А что Вам в нем делать? открыли крышку, вычерпали то что осело на дне, засунули шланг в трубу и промыли...вот и вся ревизия. Чёрт, а я думал туда спускаться надо. Может тогда лучше поискать пластиковую трубу 250-300 мм? P.S. Колодец ревизионный D250/315 H1700 5 входов/1 выход из полиэтилена диаметром 250/315 мм и высотой 1700 мм стоит больше 4200 грн. За что такие деньги? Рулон 50м * 2 м. Оно самое. Посилання на коментар Поділитися на інших сайтах More sharing options...
МАМАЙ Опубліковано: 26 вересня 2013 Поділитись Опубліковано: 26 вересня 2013 водовідведення стосується поверхневих вод. Наприклад, тариф централізованого водопостачання включає в себе і вартість водовідведення, тобто видалення використаної води за межі об'єктів. Вживання терміну "дренаж" Вами не корректне, тому і збило мене з пантелику. Вибачте 1 Посилання на коментар Поділитися на інших сайтах More sharing options...
1GOG Опубліковано: 26 вересня 2013 Поділитись Опубліковано: 26 вересня 2013 Рулон 50м * 2 м. Это другое дело. Таки не правильно понял. ;) С целью экономии в качестве ревизии можно использовать трубу Ф110. Смотрите на фото. открыли крышку, вычерпали то что осело на дне, засунули шланг в трубу и промыли...вот и вся ревизия. Вычерпать в таком случае не очень получится, но "выбить" струей воды под напором и промыть - без проблем. Колодец правильнее. Но дороже... ;) 1 Посилання на коментар Поділитися на інших сайтах More sharing options...
Игорь&Ира Опубліковано: 26 вересня 2013 Автор Поділитись Опубліковано: 26 вересня 2013 Колодец правильнее. Но дороже... Будем искать. А если б/у металлическую трубу или две металлические/пластмассовые бочки нарастить? Посилання на коментар Поділитися на інших сайтах More sharing options...
1GOG Опубліковано: 26 вересня 2013 Поділитись Опубліковано: 26 вересня 2013 Думаю, что металл здесь не лучшее решение. Посилання на коментар Поділитися на інших сайтах More sharing options...
МАМАЙ Опубліковано: 26 вересня 2013 Поділитись Опубліковано: 26 вересня 2013 Рекомендуется ставить ревизионные колодцы на прямых участках не реже 50м или на каждом повороте. Читайте СНИП 2.04.03-85. Канализация. Наружные сети и сооружения: 4.14. Оглядові колодязі на каналізаційних мережах всіх систем належить передбачати: .... на відстанях залежно від діаметра труб: 150 мм - 35 м, 200-450 мм - 50 м, 500-600 мм - 75 м, 700-900 мм - 100 м, 1000-1400 мм - 150 м, 1500 -2000 мм - 200 м, понад 2000 мм - 250-300 м. На ∅ 110 мм відстань між ревізійними колодязями не повинна перевищувати 15 м Посилання на коментар Поділитися на інших сайтах More sharing options...
Игорь&Ира Опубліковано: 26 вересня 2013 Автор Поділитись Опубліковано: 26 вересня 2013 Друхслойная - наружный слой гофрированый с перфорацией, внутрений гладкий с перфорацией, выше пропускная способность и несущие свойства (глубина заложения ниже чем у однослойно). Однослойная гофрированая что снаружи что внутри. Планировал трубу дренажную из ПВХ диаметром 110 мм и длиной 50 м в бухтах (отечественная по 15 грн., импортная по 40 грн.). Индекс SN4 свидетельствует о достаточной механической стойкости. Гладкая внутри - это лишнее, так как там идёт почти чистая вода и не бурным потоком. Двухслойные трубы несгибаемые и идут по 6 м? Добавлено через 14 минут Информация по колодцам: 8.2. В дренажных системах рекомендуется использовать инспекционные диаметром DN = 315-500 мм, сварные безлотковые колодцы. Инспекционные колодцы предполагают применение специальной техники для диагностики и обслуживания дренажной системы. Также устанавливаются обслуживаемые колодцы диаметром более 1 м для свободного доступа персонала. Сварные колодцы состоят из рабочей камеры (шахты), изготовленной из трубы, к которой привариваются экструдером днище и патрубки меньшего диаметра. 9.2 Для предотвращения всплытия колодца в случае его установки в водонасыщенных грунтах изготавливают колодцы со специальной пригрузочной камерой, которая заливается бетоном непосредственно в процессе монтажа. Высота пригрузочной камеры определяется расчётом. 10.8 Устройство полиэтиленовых колодцев по трассе дренажа 10.8.1 Для эксплуатации дренажной системы по трассе дренажа устраиваются инспекционные (смотровые) колодцы. Колодцы устанавливаются у истоков дрен, в местах поворота трассы, изменения уклонов, на перепадах, на прямых участках через определенные расстояния, а также в местах, необходимых для промывки дренажных линий. 10.8.2 На прямых участках расстояние между колодцами рекомендуется принимать для труб до 150 мм – не более 35 м, для труб более 200 мм – не более 50 м. 10.8.3 На поворотах дренажа у выступов зданий и у камер на каналах устройство смотровых колодцев не обязательно, при условии, что расстояние от поворота до ближайшего смотрового колодца не более 20 м. В случае, когда на участке между смотровыми колодцами дренаж делает несколько поворотов, смотровые колодцы устанавливают через один поворот. 10.8.4 Диаметр смотровых колодцев рекомендуется принимать до 500 мм. При глубине заложения дренажа свыше 3,0 м необходимо применять обслуживаемые колодцы. Добавлено через 14 минут Информация по дренажной трубе: 10.5.3.1 Предусмотренную проектом прямолинейность участков, согласно СНиП 3.05.04-85 [5], между смежными колодцами следует контролировать просмотром «на свет» с помощью зеркала до и после засыпки траншеи. При просмотре трубопровода круглого сечения видимый в зеркале круг должен иметь правильную форму. Допустимая величина отклонения от формы круга по горизонтали должна составлять не более 1/4 диаметра трубопровода, но не более 50 мм в каждую сторону. Отклонения от правильной формы круга по вертикали не допускаются. 10.10.3 Продольные уклоны дренажа рекомендуется принимать не менее 2% для глинистых и суглинистых грунтов и не менее 3% для песчаных грунтов. Наименьшие уклоны дренажа определяются, исходя из минимально допустимой скорости течения воды в дренажных трубах 1,0 м/с, при которой не происходит заиливание дрен. Добавлено через 3 минуты Информация по обсыпке: 10.5.1.2 При расположении дренажа в песках гравелистых, крупных и средней крупности со средним диаметром частиц 0,3-0,4 мм и крупнее устраиваются однослойные обсыпки из гравия или щебня; при расположении в песках средней крупности со средним диаметром частиц, меньшим 0,3-0,4 мм, а также в мелких и пылеватых песках, супесях и при слоистом строении водоносного пласта устраивают двухслойные обсыпки - внутренний слой обсыпки из щебня, а внешний слой - из песка. Фракции щебня должны быть меньше размера впадины гофра. Щебень по ГОСТ 8267-93 не должен содержать обломочные элементы с острыми кромками. Посилання на коментар Поділитися на інших сайтах More sharing options...
Игорь&Ира Опубліковано: 27 вересня 2013 Автор Поділитись Опубліковано: 27 вересня 2013 Вживання терміну "дренаж" Вами не корректне, тому і збило мене з пантелику. Информация по отводу воды: 10.9.1 Методы отвода дренажных вод. 10.9.1.1 Вода из дренажа может отводиться: - внутрь водопроводящего туннеля, ливневой канализации; - самотеком на дневную поверхность; - в нижерасположенные водопроницаемые пласты; - откачкой насосами из накопительных колодцев. 10.9.1.2 При проектировании дренажных систем предпочтение следует отдавать системам дренажа с отводом воды самотеком. Дренажные системы с принудительной откачкой воды требуют дополнительного обоснования. 10.9.5 Выпуск вод в водный объект 10.9.5.1 Выпуск дренажных вод в водный объект (реку, канал, озеро) следует располагать в плане под острым углом к направлению течения потока, а его устьевую часть снабжать бетонным оголовком или укреплять каменной кладкой или наброской. При выпуске в водоем дренаж должен быть заложен выше горизонта воды в водоеме во время паводка. 10.9.6 Откачка дренажных вод Откачка дренажной воды насосами допускается при невозможности обеспечения самотечного отвода или перепуска в нижележащие пласты. В таких случаях необходимо предусматривать специальные насосные станции с резервуарами, при проектировании которых следует руководствоваться требованиями СНиП 2.04.03-85, а при использовании откачиваемой воды для водоснабжения – СНиП 2.04.02-84. Посилання на коментар Поділитися на інших сайтах More sharing options...
LandStone Опубліковано: 27 вересня 2013 Поділитись Опубліковано: 27 вересня 2013 Ох жеж эти троли неугомонные! Цитата: Сообщение от LandStone ...любая дренажная система со временем будет заиливаться Може Ви і вправний продаван систем водовідведення, але дренаж - це не Ваше. Цитата: Сообщение от LandStone Рекомендуется ставить ревизионные колодцы на прямых участках не реже 50м или на каждом повороте. Читайте СНИП 2.04.03-85. Канализация. Наружные сети и сооружения: 4.14. Оглядові колодязі на каналізаційних мережах всіх систем належить передбачати: .... на відстанях залежно від діаметра труб: 150 мм - 35 м, 200-450 мм - 50 м, 500-600 мм - 75 м, 700-900 мм - 100 м, 1000-1400 мм - 150 м, 1500 -2000 мм - 200 м, понад 2000 мм - 250-300 м. На ∅ 110 мм відстань між ревізійними колодязями не повинна перевищувати 15 м Так нахрена тогда ревизия и ваш высер в первом сообщении???Себе можете хоть каждый метр ставить колодцы и вызвать на участок 6 соток в полном составе Укрводпроект и институту геологичных наук, что бы сделали все по снипу!!! Посилання на коментар Поділитися на інших сайтах More sharing options...
Игорь&Ира Опубліковано: 27 вересня 2013 Автор Поділитись Опубліковано: 27 вересня 2013 Трубу рекомендовал бы использовать двухслойную. Информация по трубе: 5.1 Трубы изготавливают методом экструзии с двухслойной профилированной стенкой. Конструкция обеспечивает низкую материалоемкость изделия (за счет малой толщины стенки), высокую кольцевую жесткость (за счет формы профиля), гладкую внутреннюю поверхность (за счет двухслойной конструкции). 5.3 Трубы могут поставляться с защитным фильтром (оболочкой) из нетканого термоскрепленного или иглопробивного геотекстиля. Оболочко-фильтр может быть выполнена из полосы геотекстиля шириной, обеспечивающей нахлест 40 мм, скрепленной синтетической нитью прочностью 230тэкс, методом спиральной намотки в двух противоположных направлениях с расстоянием между двумя параллельными нитями, измеренным вдоль оси трубы, не более 80 мм. 2 Кольцевая жесткость, кН/м2, не менее назначенной: SN 4, SN 6, SN 8, SN 16. Какой жёсткости будет достаточно в моём случае? Добавлено через 5 минут Какое вымывание? Влага собирается в дренажной канаве и посредством трубы отводится. Смотрите фото по организации дренажа при постройке УШП. Расстояния можете прикинуть. 15.12 При дренировании отдельных приямков и заглубленных помещений необходимо обратить особое внимание на мероприятия против выноса грунта из-под фундаментов здания. При заложении дренажа ниже фундамента зданий с целью исключения суффозии грунтов, особое внимание следует обратить на правильный подбор и устройство дренажных обсыпок, на качество заделки швов и отверстий в колодцах, а также на мероприятия, исключающие вынос грунта при разрытии траншей дренажа. При большой величине понижения горизонта грунтовых вод под фундаментами (существующими и проектируемыми) следует производить расчет осадки грунта. При устройстве перепадов на дренаже в пределах зоны влияния нижней дрены, также следует предусматривать мероприятия, перечисленные выше. 1 Посилання на коментар Поділитися на інших сайтах More sharing options...
Рекомендовані повідомлення
Створіть акаунт або увійдіть у нього для коментування
Ви маєте бути користувачем, щоб залишити коментар
Створити акаунт
Зареєструйтеся для отримання акаунта. Це просто!
Зареєструвати акаунтУвійти
Вже зареєстровані? Увійдіть тут.
Увійти зараз