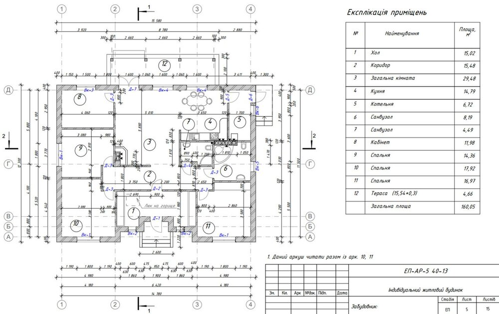
Leon Опубліковано: 4 жовтня 2013 Поділитись Опубліковано: 4 жовтня 2013 Наверное есть похожие темы, но мой вопрос связан с некоторой срочностью ответа. Спасибо за понимание. По каминам когда-то начинал читать, но потом переключился на другую информацию. На днях будет заливаться фундамент и я вспомнил, что не решил вопрос с камином. А времени разбираться самостоятельно совсем не осталось. Камин располагается в гостинной, на плане - это помещение №3.(см. аттач) Хотелось бы иметь возможность использовать камин, как резервный источник, для обогрева дома в осенний/весенний период. Помню, что для некоторых каминов нужен подвод воздуха. И мои вопросы связаны как раз с этим. 1. Нужен ли мне камин с подачей воздуха? 2. Если да, то какого диаметра и где заложить трубу в фундамент? 3. Разводка теплого воздуха по комнатам - как и на каком этапе стоит(стоило) об этом думать? Понимаю, что мой пост - сумбур. Я сегодня онлайн и готов ответить на любые уточняющие вопросы. Помогите/подскажите/направьте.. Посилання на коментар Поділитися на інших сайтах More sharing options...
Каминофф Опубліковано: 4 жовтня 2013 Поділитись Опубліковано: 4 жовтня 2013 Наверное есть похожие темы, но мой вопрос связан с некоторой срочностью ответа. Спасибо за понимание. По каминам когда-то начинал читать, но потом переключился на другую информацию. На днях будет заливаться фундамент и я вспомнил, что не решил вопрос с камином. А времени разбираться самостоятельно совсем не осталось. Камин располагается в гостинной, на плане - это помещение №3.(см. аттач) Хотелось бы иметь возможность использовать камин, как резервный источник, для обогрева дома в осенний/весенний период. Помню, что для некоторых каминов нужен подвод воздуха. И мои вопросы связаны как раз с этим. 1. Нужен ли мне камин с подачей воздуха? 2. Если да, то какого диаметра и где заложить трубу в фундамент? 3. Разводка теплого воздуха по комнатам - как и на каком этапе стоит(стоило) об этом думать? Понимаю, что мой пост - сумбур. Я сегодня онлайн и готов ответить на любые уточняющие вопросы. Помогите/подскажите/направьте.. Если камин для обогрева, то однозначно закладывайте трубу подачи воздуха. Если не знаете какая будет топка, то трубу лучше заложить 125мм сечением и обязательно утеплить. 1 Посилання на коментар Поділитися на інших сайтах More sharing options...
-enjoy- Опубліковано: 4 жовтня 2013 Поділитись Опубліковано: 4 жовтня 2013 Если не знаете какая будет топка, то трубу лучше заложить 125мм сечением . Ведь может быть и топка AF,так ведь? По каминам когда-то начинал читать, но потом переключился на другую информацию. 1. Нужен ли мне камин с подачей воздуха? 2. Если да, то какого диаметра и где заложить трубу в фундамент? 3. Разводка теплого воздуха по комнатам - как и на каком этапе стоит(стоило) об этом думать? 1.Нужен и обязательно 2.Максимальный диам. который я видел к топкам это 125мм 3.Сейчас. Ответ на почему: выясните для себя как будет выглядеть дизайн облицовки камина. Если она компактная,то трубы разводки гарячего воздуха я бы спрятал в стену,тогда увеличится толщина стены. Фундамент делать толще не нужно,т.к. всеравно под камин будете делать его усиление. Если дизайн до потолка,то по барабану,стена как по проекту в полкирпича. Все трубы спрятаны. Для наглядности (ссылка устарела) посмотрите как это будет выглядеть. По подаче трубы воздуха. В Киеве и Киевской области преобладают западные ветра, поэтому делал бы подачу с запада. Про утеплить было сказано выше. Ну и не забудьте сделать уклон в сторону улицы. как резервный источник, для обогрева дома в осенний/весенний период. А зимой не нужно? Тут уже на бюджет смотреть нужно. Я за чугун. п.с. только мое мнение. 1 Посилання на коментар Поділитися на інших сайтах More sharing options...
Viks Опубліковано: 4 жовтня 2013 Поділитись Опубліковано: 4 жовтня 2013 1. Нужен ли мне камин с подачей воздуха? 2. Если да, то какого диаметра и где заложить трубу в фундамент? 3. Разводка теплого воздуха по комнатам - как и на каком этапе стоит(стоило) об этом думать? Помогите/подскажите/направьте.. 1. Да 2. Мин. 100мм 3. В стене рядом с дымовым каналом закладываете 2-4 канала 130х130 (полкирпича) или 130х260 - с выходом в нужные помещения или в направления от них Потом в ниши монтируется гофра и утепляется И нишу под камин можно оставить - 1-1,2м в ширину и 1,5м в высоту - под портал Добавлено через 51 секунду А зимой не нужно? Тут уже на бюджет смотреть нужно. Я за чугун. п.с. только мое мнение. +1 570..? 1 Посилання на коментар Поділитися на інших сайтах More sharing options...
Leon Опубліковано: 4 жовтня 2013 Автор Поділитись Опубліковано: 4 жовтня 2013 Спасибо огромное за советы. По трубе, утеплению и уклону понял. С западной стороны у меня холм начинается в 20 метрах от дома(верх на плане дома). Все равно делать вывод на запад или выбрать другое направление? По дизайну - думал делать до потолка. Может пока начну возводить стены еще поменяю свое мнение. По отоплению зимой: камин находится в левой части дома. Вряд ли получится отопить им весь дом. Хотя зимой, конечно, планируется набираться положительной энергии от огня камина Посилання на коментар Поділитися на інших сайтах More sharing options...
-enjoy- Опубліковано: 4 жовтня 2013 Поділитись Опубліковано: 4 жовтня 2013 (змінено) 570..? При всем моем уважении к другим топкам и брендам, именно эти цифры имел ввиду. На сегодня это платиновая середина учитывая все хотелки ТС. Можем сказать так:570-я это три в одном- отопление, красивое горение,адекватная цена. Как бы и 18-я тоже в тему,но у нее панорама и там с облицовкой без печника не обойтись. Все равно делать вывод на запад или выбрать другое направление? По дизайну-до потолка. Может пока начну возводить стены еще поменяю свое мнение. По отоплению зимой: камин находится в левой части дома. Вряд ли получится отопить им весь дом. Хотя зимой, конечно, планируется набираться положительной энергии от огня камина Можна и другое....у меня на юг. Речь об оптимальном и это лично мое мнение. По дизайну - если до потолка, то пофиг каналы в стене для труб. Но если б писал не из телефона, накидал бы картинок, как выглядит топка в облицовке до потолка....она теряется .....хотя снова вернулись к дизайну. По отоплению зимой : получится... ест-но не как основное, а подтопить в межсезонье, влезть в тариф по газу. И еще одно, потом можете надумать на дымоход шидель...под него усиленный фунд-т. Змінено 4 жовтня 2013 користувачем -enjoy- 1 Посилання на коментар Поділитися на інших сайтах More sharing options...
Leon Опубліковано: 4 жовтня 2013 Автор Поділитись Опубліковано: 4 жовтня 2013 накидал бы картинок Так еще есть время для картинок и для того чтобы решить остальные вопросы по камину. Я не тороплюсь. Срочным был вопрос по подводу воздуха - ответ я на него получил, и даже больше. Тему не закрываю, т.к. хоть камин и не будет ставиться в этом году, но надо знать все что предшествует установке. Посилання на коментар Поділитися на інших сайтах More sharing options...
Каминофф Опубліковано: 4 жовтня 2013 Поділитись Опубліковано: 4 жовтня 2013 Ведь может быть и топка AF,так ведь? 2.Максимальный диам. который я видел к топкам это 125мм Вот и я советовал из соображений, что к моменту покупки топки многое может поменятся, а для Austroflamm, Edilkamin, Schmid для большинства минимум 125мм. Сузить всегда можно патрубком, а наоборот увы. А я видел 150мм при чем не редко ;) так вот при 100 трубе подачи эти топки не работают!!! Посилання на коментар Поділитися на інших сайтах More sharing options...
Leon Опубліковано: 6 жовтня 2013 Автор Поділитись Опубліковано: 6 жовтня 2013 Появился вопрос по трубе: А на каком уровне ниже нуля ее выводить? Может посоветуете сразу какую конкретно трубу закладывать или до весны достаточно будет гильзы в фундаменте? Еще.. А покажите, пожалуйста, фотки с камином, который располагается, как мой, в углу комнаты.. Спасибо! Посилання на коментар Поділитися на інших сайтах More sharing options...
GIM Опубліковано: 6 жовтня 2013 Поділитись Опубліковано: 6 жовтня 2013 Может что то в этом стиле Посилання на коментар Поділитися на інших сайтах More sharing options...
Leon Опубліковано: 28 серпня 2014 Автор Поділитись Опубліковано: 28 серпня 2014 Остановил свой выбор на Dovre 2180CBC. Теперь, поскольку стены растут, появилась необходимость общения с человеком, который сможет помочь запроектировать разводку теплого воздуха по комнатам, а также укажет на какой высоте сделать вход в дымоход, где разместить подвод воздуха с улицы и наверное еще много других вопросов, которые мне не приходили в голову. Да, желательно, чтобы этот же человек и установил камин, когда наступит время Посилання на коментар Поділитися на інших сайтах More sharing options...
Leon Опубліковано: 27 серпня 2018 Автор Поділитись Опубліковано: 27 серпня 2018 Как же много времени прошло с момента создания темы.. И вот я добрался до момента, когда надо устанавливать камин и делать отбор и разводку теплого воздуха. Виду, что 4 года назад я остановился уже на какой-то топке, но врме шло и возможно что-то за это время поменялось. Поэтому опять прошу совета и по камину, и по разводке воздуха и по контактам на все необходимое. Посилання на коментар Поділитися на інших сайтах More sharing options...
Leon Опубліковано: 28 серпня 2018 Автор Поділитись Опубліковано: 28 серпня 2018 Камины уже не в тренде? Посилання на коментар Поділитися на інших сайтах More sharing options...
Алексей Омельчук Опубліковано: 28 серпня 2018 Поділитись Опубліковано: 28 серпня 2018 Камины всё ещё в моде. Но только классные камины,как в пример Гаврилов и Сыновья. Мы сейчас только их продаём и устанавливаем. Посилання на коментар Поділитися на інших сайтах More sharing options...
Leon Опубліковано: 1 вересня 2018 Автор Поділитись Опубліковано: 1 вересня 2018 Думал, что определился с топкой, но зашел в салон и на глаза мне попалась Fondis Insert F6. Но она ж, зараза, дорогая. 2300 в евро. Может знатоки подскажут, что есть такого же качества, но подешевле? Или может кто отговорит от покупки этой топки.. Посилання на коментар Поділитися на інших сайтах More sharing options...
normal Опубліковано: 3 вересня 2018 Поділитись Опубліковано: 3 вересня 2018 То вроде не топка, а кассета для вставки в открытый камин. За 2300 можно взять полноценную топку i570 с массой HSS04, дистрибьютором и комплектом подключения воздуха. Или G&S со всеми причандалами и порталом или добавить ещё пару штук на какой-то Austroflamm + Ortner KMS или туже одну Dovre 2180 взять и радиаторов Darco нацепить, короче вариантов масса... 1 Посилання на коментар Поділитися на інших сайтах More sharing options...
Leon Опубліковано: 3 вересня 2018 Автор Поділитись Опубліковано: 3 вересня 2018 А тот же Jotul i570 выдержит круглосуточную топку? Бо по Фондису менеджер рассказывал, что я чуть ли не могу продать свой котел.. Мне камин нужен для красоты и дотапливать в сильные морозы. Но жизнь штука интересная и может оказаться, что вместо запланированных 2-3 дня круглосуточного использования камина, мне понадобится топить несколько недель.. Посилання на коментар Поділитися на інших сайтах More sharing options...
normal Опубліковано: 3 вересня 2018 Поділитись Опубліковано: 3 вересня 2018 i570 как раз на непрерывное горение и рассчитан, проверенная топка с 25 летней гарантией, кучей аксессуаров и массой в два раза больше того фондиса и при этом дешевле в два раза, хотите поэкспериментировать за 2300? Менеджер будет рад Воздушная топка это не замена газ\электрокотлу с водяным отоплением (ничего выкидывать не надо), это резерв на случай отключения электричества, который при грамотном проектировании позволяет наслаждаться огнем и подтапливать халявными дровами ИМХО 1 Посилання на коментар Поділитися на інших сайтах More sharing options...
Leon Опубліковано: 3 вересня 2018 Автор Поділитись Опубліковано: 3 вересня 2018 Воздушная топка это не замена газ\электрокотлу с водяным отоплением (ничего выкидывать не надо), это резерв на случай отключения электричества, который при грамотном проектировании позволяет наслаждаться огнем и подтапливать халявными дровами ИМХО Да, спасибо! Именно такие планы у меня на топку и были! Посилання на коментар Поділитися на інших сайтах More sharing options...
Рекомендовані повідомлення
Створіть акаунт або увійдіть у нього для коментування
Ви маєте бути користувачем, щоб залишити коментар
Створити акаунт
Зареєструйтеся для отримання акаунта. Це просто!
Зареєструвати акаунтУвійти
Вже зареєстровані? Увійдіть тут.
Увійти зараз