pokep Опубліковано: 7 листопада 2013 Поділитись Опубліковано: 7 листопада 2013 всім вітання настав час відкрити тему в цій гілці форума півтора роки тому ми з дружиною придбали ділянку 10сот (20м*50м) в Броварах. тут живу все своє життя місцезнаходження - приватний сектор на Торгмаші (за заводом "Світлотехніка"). Комунікації там є - газ, вода, каналізація, електрика. Наявне також щось подібне на дорогу Настав час розробляти проект - певна картинка в головах у нас уже вимальовується але треба переносити ідеї на папір і надати їм статус офіційного документу порадьте проектанта/архітектора в Броварах. також людину яка може виступити в ролі куратора з юридичних/легальних документів як то дозволи, паспорти і проча будівельна лабуда в планах - підвал, над ним 2 поверхи. окремо плануємо господарчий блок, в якому буде банька. хочемо зробити будинок достатньо енергозберігаючим щоб було тепло і комфортно експлуатувати поки незручними моментами в нашій історії видається: - існуючий на нашій ділянці залитий моноліт (про який попередній власник ділянки нам не повідомив) - якість його невідома, але пересвідчившись в його якості порушиться його цілісність - у нас і так вузька ділянка, а тут ще сусідський будинок знаходиться на відстані 3м від межі, тим самим порушуючи будівельні норми в наших краях з цим ще 2 питання до форумчан: - як краще зруйнувати існуючий моноліт? - чи достатньо буде укласти нотаріальні акти з сусідом, який вже порушив будівельні норми щоб мати можливість порушити їх із свого боку? (хочеться щоб гараж був біля будинку, а не окремо) гарного всім дня 1 Посилання на коментар Поділитися на інших сайтах More sharing options...
ЩербачОК Опубліковано: 7 листопада 2013 Поділитись Опубліковано: 7 листопада 2013 Доброго дня! Я в вищенаведених запитаннях не розбираюсь, але з Вашого дозволу підпишусь на тему. Так як, також, в Броварах все життя жив і живу і теж мрію про будинок. Якщо не заперечуватимете, то можу підсобити грубою чоловічою силою (це я на себе натякаю) і перейняти Ваш досвід будівництва в Броварських умовах. Не знаю, як на Торгмаші, але в мене в районі Розвилки вода в погребі круглий рік. Це я до того, що може без підвала якось обійтися краще. 1 Посилання на коментар Поділитися на інших сайтах More sharing options...
pokep Опубліковано: 7 листопада 2013 Автор Поділитись Опубліковано: 7 листопада 2013 Якщо не заперечуватимете, то можу підсобити грубою чоловічою силою (це я на себе натякаю) і перейняти Ваш досвід будівництва в Броварських умовах. Не знаю, як на Торгмаші, але в мене в районі Розвилки вода в погребі круглий рік. Це я до того, що може без підвала якось обійтися краще. дякую за готовність допомагати) у нас ще поки все на стадії планування))) так що допомогти можна хіба матеріально :D жартую на Торгмаші питань з водою в підвалах немає, перевірено ;) Посилання на коментар Поділитися на інших сайтах More sharing options...
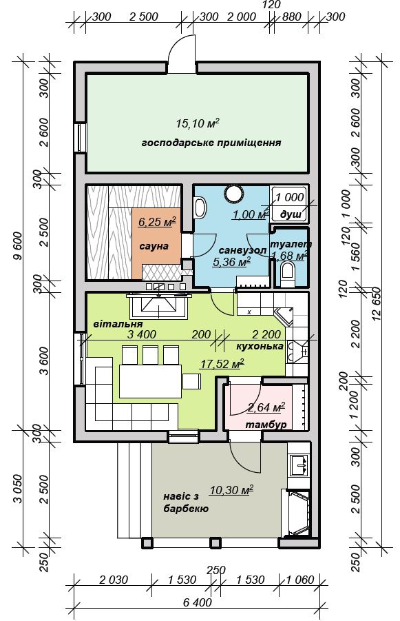
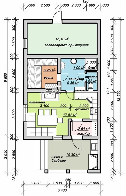
pokep Опубліковано: 9 червня 2014 Автор Поділитись Опубліковано: 9 червня 2014 доброго времени суток, уважаемые форумчане. хотели бы огласить тендер на: - строительные работы (фундамент - разметка, копка, монтаж блоков, плит, кирпичная кладка, кровля - металлочерепица) - систему водоснабжения - систему канализации - систему отопления (возможно и вентиляции) исходные данные: - планы дома на картинках, общая площадь 280м2 - материалы - цоколь: блоки; 1й,2й этажи - кирпич, пеноблок (типа стоунлайт). - городская вода есть, но будет и своя скважина - будет еще банька с хоз.блоком - там отопление планируется электрическое, электрический бойлер. что ожидаем - сметы на: работы, оборудование я понимаю, что эксклюзива никакого нету, всё весьма типовое (жилой дом, как и у большинства форумчан) - ну тогда бросьте в меня свои типовые проекты (сметы) можете несколько (план минимум / план максимум) - можете в паблик, ответом сюда, можете в ЛС. в этом году планируем построить баню и, возможно, цоколь дома Посилання на коментар Поділитися на інших сайтах More sharing options...
loader Опубліковано: 9 червня 2014 Поділитись Опубліковано: 9 червня 2014 гараж 3.2 метра в ширину это чья идея? неудобно будет. делайте 4 минимум. Посилання на коментар Поділитися на інших сайтах More sharing options...
pokep Опубліковано: 10 червня 2014 Автор Поділитись Опубліковано: 10 червня 2014 гараж 3.2 метра в ширину это чья идея? неудобно будет. делайте 4 минимум. к сожалению у нас очень узкий участок, шире мы просто не поместимся в противопожарные нормы... - расстояние до соседних домов может быть менее 8м Посилання на коментар Поділитися на інших сайтах More sharing options...
Рекомендовані повідомлення
Створіть акаунт або увійдіть у нього для коментування
Ви маєте бути користувачем, щоб залишити коментар
Створити акаунт
Зареєструйтеся для отримання акаунта. Це просто!
Зареєструвати акаунтУвійти
Вже зареєстровані? Увійдіть тут.
Увійти зараз