alexret Опубліковано: 9 грудня 2013 Поділитись Опубліковано: 9 грудня 2013 Добрый день! Делаю проект будущего дома. Вот наброски планировки, может быть кто-то увидит недостатки, которые я не увидел. Хотелось бы услышать чужое мнение. Спасибо!Пл1.1.pdfПл2.1.pdf Посилання на коментар Поділитися на інших сайтах More sharing options...
Andrei constructor Опубліковано: 9 грудня 2013 Поділитись Опубліковано: 9 грудня 2013 Для чего необходимы такие толстые стены (как в доме) в одноэтажном гараже? Посилання на коментар Поділитися на інших сайтах More sharing options...
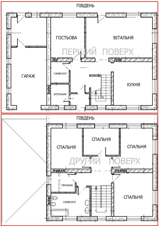
Александр2008_111 Опубліковано: 9 грудня 2013 Поділитись Опубліковано: 9 грудня 2013 Я б передбачив вхід з будинку в гараж. Варто проставити витяжки та каналізаційні стояки. Другий поверх повноцінний чи мансардний? Посилання на коментар Поділитися на інших сайтах More sharing options...
alexret Опубліковано: 10 грудня 2013 Автор Поділитись Опубліковано: 10 грудня 2013 Я б передбачив вхід з будинку в гараж. Варто проставити витяжки та каналізаційні стояки. Другий поверх повноцінний чи мансардний? Другий поверх повноцінний. Вхід з будинку в гараж не робили навмисно. Добавлено через 1 минуту Для чего необходимы такие толстые стены (как в доме) в одноэтажном гараже? Подумаем над Вашим замечанием, спасибо. Посилання на коментар Поділитися на інших сайтах More sharing options...
voglya Опубліковано: 10 грудня 2013 Поділитись Опубліковано: 10 грудня 2013 Назначение помещения (4,34 кв.м) налево из тамбура? Может, сделать вход из коридора/холла, тогда в тамбуре можно сделать шикарный шкаф. Не нравится, что ванная на 2 этаже имеет 2 наружные стены. Ее можно поменять с соседним помещением? На кухне возле окна - плита? Где вентканал будет? В наружной стене? Под лестницей гардероб, кладовая? Если кладовая, то ее можно и ближе к кухне сделать, а первый марш красивше обыграть . И по сторонам света сориентируйте нас. Посилання на коментар Поділитися на інших сайтах More sharing options...
alexret Опубліковано: 10 грудня 2013 Автор Поділитись Опубліковано: 10 грудня 2013 Назначение помещения (4,34 кв.м) налево из тамбура? Может, сделать вход из коридора/холла, тогда в тамбуре можно сделать шикарный шкаф. Не нравится, что ванная на 2 этаже имеет 2 наружные стены. Ее можно поменять с соседним помещением? На кухне возле окна - плита? Где вентканал будет? В наружной стене? Под лестницей гардероб, кладовая? Если кладовая, то ее можно и ближе к кухне сделать, а первый марш красивше обыграть . И по сторонам света сориентируйте нас. Добавил планы с вентканалами и назначениями помещений. Также добавил фасад. Может кто подкинет идею как его облагородить Посилання на коментар Поділитися на інших сайтах More sharing options...
mustang92 Опубліковано: 10 грудня 2013 Поділитись Опубліковано: 10 грудня 2013 Добавил планы с вентканалами и назначениями помещений. Также добавил фасад. Может кто подкинет идею как его облагородить Мне понравился план, подумываю себе такой же сделать Посилання на коментар Поділитися на інших сайтах More sharing options...
alexandrius Опубліковано: 10 грудня 2013 Поділитись Опубліковано: 10 грудня 2013 А куда веранда делась? Над ней можно было бы сделать балконы для спален второго этажа. Монолитный пояс будет между этажами? Если да, то в его отметке обычно делают карниз по периметру дома. Что у вас отсекает линия, идущая на фасаде в уровне верха окон второго этажа? Аналогичное решение, вероятно (я конструктор, не архитектор), стоит продублировать по вертикале в углах дома. Посилання на коментар Поділитися на інших сайтах More sharing options...
alexret Опубліковано: 10 грудня 2013 Автор Поділитись Опубліковано: 10 грудня 2013 А куда веранда делась? Над ней можно было бы сделать балконы для спален второго этажа. Монолитный пояс будет между этажами? Если да, то в его отметке обычно делают карниз по периметру дома. Что у вас отсекает линия, идущая на фасаде в уровне верха окон второго этажа? Аналогичное решение, вероятно (я конструктор, не архитектор), стоит продублировать по вертикале в углах дома. Веранда осталась с южной стороны, на планах ее не видно. Балконы в наши планы не входят, курящих нет, да и приятнее на веранде за столиком посидеть Про монолитный пояс и линию на фасаде узнаю... Добавлено через 8 минут Назначение помещения (4,34 кв.м) налево из тамбура? Топочная. Может, сделать вход из коридора/холла, тогда в тамбуре можно сделать шикарный шкаф. Хм, подумаю... Не нравится, что ванная на 2 этаже имеет 2 наружные стены. Ее можно поменять с соседним помещением? Можно, а чем смущают стены? На кухне возле окна - плита? Где вентканал будет? В наружной стене? На новых планах добавил, вентканалы на внутренних стенах, а вот дымоход на внешней ... Чем чревато? Под лестницей гардероб, кладовая? Если кладовая, то ее можно и ближе к кухне сделать, а первый марш красивше обыграть . Гардероб, но за идею спасибо! И по сторонам света сориентируйте нас. На планах обозначил юг. Посилання на коментар Поділитися на інших сайтах More sharing options...
Andrei constructor Опубліковано: 10 грудня 2013 Поділитись Опубліковано: 10 грудня 2013 Добавил планы с вентканалами и назначениями помещений. Вентканалы и дмоход в наружной стене не стоит делать 3 Посилання на коментар Поділитися на інших сайтах More sharing options...
11.11 Опубліковано: 11 грудня 2013 Поділитись Опубліковано: 11 грудня 2013 (змінено) Добрый день! Делаю проект будущего дома. Вот наброски планировки, может быть кто-то увидит недостатки, которые я не увидел. Хотелось бы услышать чужое мнение. Спасибо! ОООчень здорово, а вы не думали поменять местами кухню и гостевую, когда придет много гостей, будет где развернуться, если между кухней и гостиной сделать раздвижные двери))) Змінено 11 грудня 2013 користувачем 11.11 1 Посилання на коментар Поділитися на інших сайтах More sharing options...
Andrei constructor Опубліковано: 11 грудня 2013 Поділитись Опубліковано: 11 грудня 2013 ОООчень здорово, а вы не думали поменять местами кухню и гостевую, когда придет много гостей, будет где развернуться, если между кухней и гостевой сделать раздвижные двери))) У меня есть проект, который очень похож на этот, там так мы и сделали. Обсуждался здесь: www.stroimdom.com.ua/forum/showthread.php?t=140058 Посилання на коментар Поділитися на інших сайтах More sharing options...
11.11 Опубліковано: 11 грудня 2013 Поділитись Опубліковано: 11 грудня 2013 У меня есть проект, который очень похож на этот, там так мы и сделали. Обсуждался здесь: www.stroimdom.com.ua/forum/showthread.php?t=140058 Да, похож, но нет гаража, и лестница не так рентабельна, помоему Посилання на коментар Поділитися на інших сайтах More sharing options...
Andrei constructor Опубліковано: 11 грудня 2013 Поділитись Опубліковано: 11 грудня 2013 и лестница не так рентабельна Что это значит? Посилання на коментар Поділитися на інших сайтах More sharing options...
Kysil Опубліковано: 11 грудня 2013 Поділитись Опубліковано: 11 грудня 2013 ОООчень здорово, а вы не думали поменять местами кухню и гостевую, когда придет много гостей, будет где развернуться, если между кухней и гостиной сделать раздвижные двери))) Дуже здорова думка. І вентканалів менше стане. Посилання на коментар Поділитися на інших сайтах More sharing options...
FFFuntik Опубліковано: 12 грудня 2013 Поділитись Опубліковано: 12 грудня 2013 (змінено) Здравствуйте, Видно, что к проекту относитесь старательно, с любовью, но все же вероятно конструируете исходя из опыта проживания в квартире (отсутствие гардеробов, мест для хранения вещей и т.п.) . Чудесно, что пытаетесь учитывать жизненные процессы семьи, но вот ее состав исходя из 4 спален второго этажа представить сложно. Со своей стороны считал бы целесообразным рассмотреть следующие предложения: 1. Как уже предлагали, поменять местами кухню и гостевую (для обеспечения организации вытяжных каналов через единственную трубу в центральной несущей стене); 2. Вынести котельную за пределы дома – в гараж (для обеспечения вытяжного канала в один дымоход). Для этого сместить гараж на 1.5 – 2 метра в перед. 3. Сместить лестничный марш и (еще пока) кухню на тех же 1.5 – 2 метра. Таким образом получим навес над крыльцом под единой крышей с гаражом + повысим общую эстетику фасада. Кроме того, обеспечиваем возможность красивого перекрытия плитами всего пространства наряду с организацией гардероба. Гардероб при количестве жильцов требующих 4 спальни – просто жизненно важен. 4. Вместо освободившегося пространства котельной - шкаф для верхней одежды + естественное освещение входной зоны + место для коляски (всегда нужно, как не жильцам так гостям). По первому этажу почти все… Змінено 12 грудня 2013 користувачем FFFuntik 1 Посилання на коментар Поділитися на інших сайтах More sharing options...
11.11 Опубліковано: 17 грудня 2013 Поділитись Опубліковано: 17 грудня 2013 Что это значит? www.stroimdom.com.ua/forum/showthread.php?t=140058, гостиная с кухней , здорово, а вот лестницу в гостиной я не понимаю, занимает много места, а гардеробную делать нерационально. чисто мое мнение. Посилання на коментар Поділитися на інших сайтах More sharing options...
Рекомендовані повідомлення
Створіть акаунт або увійдіть у нього для коментування
Ви маєте бути користувачем, щоб залишити коментар
Створити акаунт
Зареєструйтеся для отримання акаунта. Це просто!
Зареєструвати акаунтУвійти
Вже зареєстровані? Увійдіть тут.
Увійти зараз