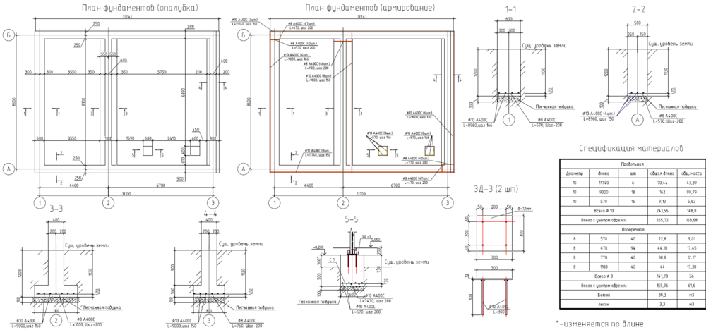
alexdev Опубліковано: 19 січня 2014 Поділитись Опубліковано: 19 січня 2014 Схема армирования фундамента достаточна ли? Дом из газобетона. 9 на 12 - 2 этажа. Грунт - глинистый песчаник. Дополнительно - будет армироваться цоколь. Посилання на коментар Поділитися на інших сайтах More sharing options...
Drosselbeere Опубліковано: 19 січня 2014 Поділитись Опубліковано: 19 січня 2014 глинистый песчаник не знаю что это за грунт, видимо супесь. Ширина лента у вас посчитана видимо на расчетное сопротивление 1 кг/ см2, а то и еще меньше, дом у вас из ГБ, врядли на средней стене будет 11-12 т на м.п если только внутренняя стена не из полнотелого кирпича. что же касается армирования, то я так не армирую, да и не вижу смысла укладывать 7 продольных стержней из 10 А400 тем более СНИП требует миним 12, так же на средней стене поперечная рабочая арматура из 8, там она точна нужна, но согласно СНиП минимум должа быть 10, на остальных сечениях чисто конструктивно. сечение 5-5 армировать вообще нет необходимости, наличие в нем арматурных сеток как показано у вас по принципу "аби було" и на последок, что за подсыпка из песка, "НАВИЩО"??? подсыпка из песка применяется не в вашем случае однозначно. ИМХО чертежи делал или студент или архитектор, тут конструктора не видать совсем ((( 1 Посилання на коментар Поділитися на інших сайтах More sharing options...
alexdev Опубліковано: 19 січня 2014 Автор Поділитись Опубліковано: 19 січня 2014 не знаю что это за грунт, видимо супесь. Ширина лента у вас посчитана видимо на расчетное сопротивление 1 кг/ см2, а то и еще меньше, дом у вас из ГБ, врядли на средней стене будет 11-12 т на м.п если только внутренняя стена не из полнотелого кирпича. что же касается армирования, то я так не армирую, да и не вижу смысла укладывать 7 продольных стержней из 10 А400 тем более СНИП требует миним 12, так же на средней стене поперечная рабочая арматура из 8, там она точна нужна, но согласно СНиП минимум должа быть 10, на остальных сечениях чисто конструктивно. сечение 5-5 армировать вообще нет необходимости, наличие в нем арматурных сеток как показано у вас по принципу "аби було" и на последок, что за подсыпка из песка, "НАВИЩО"??? подсыпка из песка применяется не в вашем случае однозначно. ИМХО чертежи делал или студент или архитектор, тут конструктора не видать совсем ((( При расчетах фундамента принято давление под подошвой 1-1,2 кг/см2. 5-5 это лестница. А как армируете Вы? Достаточно ли такого армирования как на проекте или его мало? Стоит ли еще делать вверху фундамента арматурный пояс, или полностью делать арматурный каркас? Или и так пойдет, ведь будет армироваться цоколь вверху? Еще ребята с форума предлагают вот такой вариант: Откапываем грунт ниже глубины промерзания шириной 1 метр. Но из расчета, что ширина откапываемой траншеи это центр фундамента. Итак, откапываем траншеи. В виде трапеции, в которой основание это срез земли основание траншеи 1 метр ширина у среза грунта 1 метр 60 см. И начинаем заполнять крупным речным песком. Слоями толщиной 40 см с промежуточным слоем гранитного щебня такой же толщины фракцией 5-25 мм. Разбив высоту траншеи на 3-4 равные части, но обязательно, чтобы последним слоем был песок. Каждый слой обильно проливается водой и трамбуется. По окончании трамбования каждого слоя переходим к следующему слою. Заполняем до отметки 0. После чего собираем опалубку по уровню соблюдая горизонтальность 0. Вкладываем тепличный целлофан, вкладываем арматурный каркас, собранный из такого расчета, чтобы каркас по высоте не доходил 100 мм до отметки 0 фундамента и 100 мм не доставал до основания фундамента и 50 мм не доставал наружной и внутренней стенки опалубки. После выставления каркаса заливаем весь фундамент за один раз с применением вибратора до отсутствия усадки бетона. Заворачиваем остатки целлофана на ленту с двух сторон и поливаем фундамент неделю. Поддерживая фундамент во влажном состоянии неделю. После прошествии недели. Снимаем опалубку и раскладываем целлофан на грунт по внутренней и внешней стороне фундамента. На внешнюю сторону целлофана насыпам гранитный щебень фракцией 5-25 мм слоем 100-150 мм с уклоном от фундамента раскладываем арматурный каркас по всей получившейся плоскости. Ширина отмостки 600 мм лучше 1 000 мм. Бетонируем. Отмостка готова. Накрываем ее минимизируя испарения влаги. Не забываем поливать каждый день, тем самым поддерживаем отмостку во влажном состоянии неделю. После переходим к внутренней части фундамента. Заворачиваем внутренний целлофан на фундамент и засыпаем грунтом внутреннюю часть фундамента. Трамбуем. Выравниваем на отметку 0. после чего раскатываем рубероид по плоскости фундамента и начинаем кладку стен. Критика приветствуется. Посилання на коментар Поділитися на інших сайтах More sharing options...
Drosselbeere Опубліковано: 19 січня 2014 Поділитись Опубліковано: 19 січня 2014 Или и так пойдеттак пойдет Посилання на коментар Поділитися на інших сайтах More sharing options...
alexdev Опубліковано: 19 січня 2014 Автор Поділитись Опубліковано: 19 січня 2014 (змінено) так пойдет 10 и 8 арматуру заменить на 12 и 10 соответственно так? Что вы имеете в виду? Песчаная подушка чем не устраивает, сильно низкая, будет каппилярно вода к арматуре пробираться или что? и чем архитектор от конструктора отличается? Змінено 19 січня 2014 користувачем alexdev Посилання на коментар Поділитися на інших сайтах More sharing options...
prazdnikof Опубліковано: 19 січня 2014 Поділитись Опубліковано: 19 січня 2014 10 и 8 арматуру заменить на 12 и 10 соответственно так? Что вы имеете в виду? Песчаная подушка чем не устраивает, сильно низкая, будет каппилярно вода к арматуре пробираться или что? и чем архитектор от конструктора отличается? Продольная арматура 12 и можно меньшее количество. Песчаная подушка типа лишнее, т.е. не нужна, если делать то лучше бетонную подготовку (слой бетона около 100 мм, марки М100) или не делать ничего. Разница между выше упомянутыми специалистами -один художник, другой инженер:D. 1 Посилання на коментар Поділитися на інших сайтах More sharing options...
alexdev Опубліковано: 19 січня 2014 Автор Поділитись Опубліковано: 19 січня 2014 но согласно СНиП минимум должа быть 10 Где конкретно в этом документе это указано. А еще лучше в каком пункте из ДБН, который заменил СНиП? Посилання на коментар Поділитися на інших сайтах More sharing options...
PRO100_MASTER Опубліковано: 19 січня 2014 Поділитись Опубліковано: 19 січня 2014 Во первых десятка не фундаментная арматура берите 12 или 14(продольная)не забудьте что углы желательно загибать, вертикаль и поперечную можно и восьмерку, поскольку экспертизы грунта не было(мне так кажется), то пояс желательно продублировать и вверху, перестраховаться. Ну а делать ли вам каркасом или двумя лентами решайте сами, но с каркасом проще работать. По поводу второго варианта-забудьте, точку промерзания все соблюдают для того чтоб ставить фундамент на твердый неподвижный грунт, а движет грунт замерзшая вода, если параллельно с фундаментом построить и дренажную систему, то можно оставить и вашу проектную глубину(влага не попадет в грунт под фундаментом,не замерзнет и не поднимет его) 1 Посилання на коментар Поділитися на інших сайтах More sharing options...
John's Опубліковано: 20 січня 2014 Поділитись Опубліковано: 20 січня 2014 Может поможет, прошлым летом отлил фундамент под гараж. с вашими размерами, вот как я армировал: низ, верх 4 нитки 14 арматуры, в середине еще 2 ряда по 2 нитки 14 арматуры, обвязка 8 арматурой (или 6 не помню), все вязал проволокой. Кол-во арматуры как по букварю на мой объем бетона (28 кубов). 1 Посилання на коментар Поділитися на інших сайтах More sharing options...
alexdev Опубліковано: 20 січня 2014 Автор Поділитись Опубліковано: 20 січня 2014 Это монолитный бетонный ленточный фундамент у вас? Фото впечатляет. Ничего себе у вас гараж!!! В цоколе будет армирование. (в надземной части и утепление) По поводу дренажной системы и утепленной отмостки - вроде не планируется. А дренажная система какая может быть? Может поможет, прошлым летом отлил фундамент под гараж. с вашими размерами, вот как я армировал: низ, верх 4 нитки 14 арматуры, в середине еще 2 ряда по 2 нитки 14 арматуры, обвязка 8 арматурой (или 6 не помню), все вязал проволокой. Кол-во арматуры как по букварю на мой объем бетона (28 кубов). Посилання на коментар Поділитися на інших сайтах More sharing options...
prazdnikof Опубліковано: 20 січня 2014 Поділитись Опубліковано: 20 січня 2014 Не в обиду, но у Вас на такой фундамент можно танки ставить, вот только грунт не выдержит. На лицо избыток арматуры в несколько раз, в середине ленты она совсем не нужна. 2 Посилання на коментар Поділитися на інших сайтах More sharing options...
Stroyitel Опубліковано: 21 січня 2014 Поділитись Опубліковано: 21 січня 2014 Может поможет, прошлым летом отлил фундамент под гараж. с вашими размерами, вот как я армировал: низ, верх 4 нитки 14 арматуры, в середине еще 2 ряда по 2 нитки 14 арматуры, обвязка 8 арматурой (или 6 не помню), все вязал проволокой. Кол-во арматуры как по букварю на мой объем бетона (28 кубов). Это конечно круто, так делать если и вправду аэродром. Что касаемо ТС , ну касаемо продольной (рабочей) она и вправду должна быть не меньше 12 диаметра по поводу количества там где тавровый фундамент можно уменьшить, где прямоугольный оставить. По поводу поперечной арматуры она всё равно какая хоть 6, хоть 8, хоть 10 не имеет значения так как тавровая система жёсткая ( тобишь толщина пятки равна или больше расстояния от края пятки до ленты она у вас составляет 20 см, а толщина 30) поэтому поперечка чисто конструктивна). Вверху обязательно нужно кинуть сетку из 3 прутьев на глубине от 5 до 15 см. Песчаная подушка там до одного места, лучше сделать щебёночную с трамбовкой толщиной 10-15 см, фракцией 20-40 1 Посилання на коментар Поділитися на інших сайтах More sharing options...
alexandrius Опубліковано: 21 січня 2014 Поділитись Опубліковано: 21 січня 2014 согласно СНиП минимум должа быть 10 Номер пункта и номер СНиПа не подскажите? Не припомню я таких требований. Посилання на коментар Поділитися на інших сайтах More sharing options...
Drosselbeere Опубліковано: 22 січня 2014 Поділитись Опубліковано: 22 січня 2014 Номер пункта и номер СНиПа не подскажите? Не припомню я таких требований. такие требования были в руководстве по проектированию жб конструкций к старому СНиП п 3.27, про остальное без комментариев Посилання на коментар Поділитися на інших сайтах More sharing options...
PRO100_MASTER Опубліковано: 22 січня 2014 Поділитись Опубліковано: 22 січня 2014 такие требования были в руководстве по проектированию жб конструкций к старому СНиП п 3.27, про остальное без комментариевжб конструкция рассчитывается на сопротивление какой то одной или двум постоянным или циклическим воздействиям, там может и можно десятку, фундамент более сложная конструкция и служит для восприятия более критических нагрузок, тут не место десятке как основной(продольной арматуре) Посилання на коментар Поділитися на інших сайтах More sharing options...
Drosselbeere Опубліковано: 22 січня 2014 Поділитись Опубліковано: 22 січня 2014 PRO100_MASTER, читайте внимательно что пишут другие, не знаю где вы увидиле чтоя писал про продольную из 10, хотя это не вадно. Мне вот больше интересно с каких это пор критичность определяет диаметр армирования)) Посилання на коментар Поділитися на інших сайтах More sharing options...
Рекомендовані повідомлення
Створіть акаунт або увійдіть у нього для коментування
Ви маєте бути користувачем, щоб залишити коментар
Створити акаунт
Зареєструйтеся для отримання акаунта. Це просто!
Зареєструвати акаунтУвійти
Вже зареєстровані? Увійдіть тут.
Увійти зараз