Перейти до публікації
Пошук в
  • Додатково...
Шукати результати, які містять...
Шукати результати в...

Нужна помощь по системе отопления ОЧЕНЬ

Шульман

Рекомендовані повідомлення

Товарищи добрый день. Нужно срочно помощь специалистов.

Ситуация такова - запустили отопления, но ожидаемого ефекта нету и на 40%. Т.е. батареи теплые а не гарачие, хотя на котле 80 градусов.

Значит по подробнее.

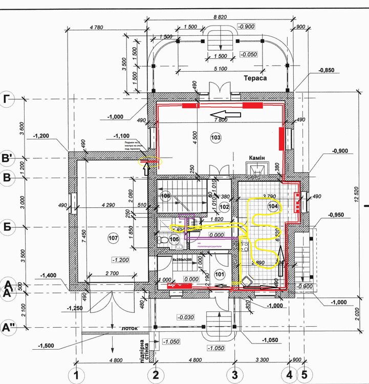
Систему отопления мне сделали двухтрубную. На стояке труба диаметра 32, по кругу 25, теплые полы и полотенцосушители 16.

Примерная схема нарисована на рисунке.

Котел двухконтурный 32 квт Вайлант турбоВИТ комби VKC INT 325/1-5-120. Руководство по эксплуатации прилагается.

На котле стоит мотор 5 мощности.

 

Порядок подключения отопления к котлу и теплых полов приведена на фото.

Судя по всему не хватает мощности насоса на котле и сечения труб заужено.

 

Как я полагаю выходом может быть - установка дублирующего насоса большей мощности.

 

В связи с этим вопрос к специалистам - что может быть причиной того что система не работает? И каким образом можно установить второй насос чтобы не заглушить насос на котле и не вывести котел из строя.

 

1137948830__3-.thumb.jpg.ff8eb17c55944ea7b2667cc984328d7f.jpg

 

827556392__4-.thumb.jpg.2c6a37114d170842b785c7b685053ccd.jpg

 

IMG_20140202_165544.thumb.jpg.a7ccbabc31d6a2463c9653f3532502e1.jpg

 

IMG_20140202_165558.thumb.jpg.7a4109eb582c16da7c4e80fb2294aa20.jpg

 

IMG_20140202_165610.thumb.jpg.08fda5346d0eb16f6dc8bcfcf90e5550.jpg

 

Инструкция по експлуатации

Посилання на коментар
Поділитися на інших сайтах

На сколько я понял, котел куплен 'немножечко б/у'... Собачка может сдохнуть именно в нем, разве что продавец проверенный и свой.

 

Установка допнасоса в зажатую систему- борьба с ветряками, поскольку при увеличении скорости потока насосом вдвое, сопротивление участка трубы растет вчетверо, тоесть квадратично. И зависимость постоянная.

 

Если чистка фильтров и балансировка веток не дала результатов, то прийдется смириться. Немножко ошиблись. Бывает. Просто переделать.

Посилання на коментар
Поділитися на інших сайтах

Товарищи добрый день. Нужно срочно помощь специалистов.

Нарисуйте схему с длинами труб, размерами радиаторов и диаметрами труб. Для простоты - на чертеже разверните домик в одной плоскости. И схему топочной.

После этого можно будет сделать какие либо выводы.

Пример - после месяца работы поломался перепускной клапан. Котел горячий, радиаторы нет

У Вас надо искать, начните со схемы

Посилання на коментар
Поділитися на інших сайтах

Товарищи добрый день. Нужно срочно помощь специалистов.

 

Пригласите к себе любого спеца отсюда, и на месте пусть разберётся...

Иначе будете мусолить этот вопрос годами...

Посилання на коментар
Поділитися на інших сайтах

Створіть акаунт або увійдіть у нього для коментування

Ви маєте бути користувачем, щоб залишити коментар

Створити акаунт

Зареєструйтеся для отримання акаунта. Це просто!

Зареєструвати акаунт

Увійти

Вже зареєстровані? Увійдіть тут.

Увійти зараз
×
×
  • Створити...