d34 Опубліковано: 11 квітня 2014 Поділитись Опубліковано: 11 квітня 2014 Всем добрый день. Накопилось несколько вопросов по фундаменту из блоков к форумным и не только гуру. Есть проект дома (постоянное проживание) с фундаментом из ФБС. Под половиной дома будет подвал. Начиная с глубины 2м и вверх будет подушка 30 см, на которую ставятся ФБС. Грунтовые воды ниже 4 метров. От 1.8 м и ниже - песок. Котлован для фундамента вырыт на глубину 1.7м (половина - полностью, половина - лента) Вопросы, в порядке возведения, следующие: 1. Из чего сделать опалубку для подушки, чтоб не осыпался песок до и во-время заливки бетона(многие советуют лить в песок, но мне кажется это не правильно)? 2. Нужно ли утеплять и гидроизолировать подушку(внутри, снаружи, снизу)? 3. Между подушкой и блоками, помимо кладочного раствора, нужна гидроизоляция? 4. Есть ли смысл в кладочный раствор для ФБС добавлять гидроизолирующие добавки? 5. Чем лучше гидроизолировать наружную сторону ФБС и в каких местах(по кругу, или только ту половину где подвал)? 6. Самый главный вопрос - как утеплять ФБС не нарушая гидроизоляции? PS в проекте часть данных есть, но привык перестраховываться и выбирать оптимальный вариант. Посилання на коментар Поділитися на інших сайтах More sharing options...
t-projekt Опубліковано: 12 квітня 2014 Поділитись Опубліковано: 12 квітня 2014 Всем добрый день. Накопилось несколько вопросов по фундаменту из блоков к форумным и не только гуру. Есть проект дома (постоянное проживание) с фундаментом из ФБС. Под половиной дома будет подвал. Начиная с глубины 2м и вверх будет подушка 30 см, на которую ставятся ФБС. Грунтовые воды ниже 4 метров. От 1.8 м и ниже - песок. Котлован для фундамента вырыт на глубину 1.7м (половина - полностью, половина - лента) Вопросы, в порядке возведения, следующие: 1. Из чего сделать опалубку для подушки, чтоб не осыпался песок до и во-время заливки бетона(многие советуют лить в песок, но мне кажется это не правильно)? 2. Нужно ли утеплять и гидроизолировать подушку(внутри, снаружи, снизу)? 3. Между подушкой и блоками, помимо кладочного раствора, нужна гидроизоляция? 4. Есть ли смысл в кладочный раствор для ФБС добавлять гидроизолирующие добавки? 5. Чем лучше гидроизолировать наружную сторону ФБС и в каких местах(по кругу, или только ту половину где подвал)? 6. Самый главный вопрос - как утеплять ФБС не нарушая гидроизоляции? PS в проекте часть данных есть, но привык перестраховываться и выбирать оптимальный вариант. Это все указано должно быть в проекте, а здесь Вам могут голову затуркать. Если в проекте нет конкретных указаний по всем этим вопросам значит это не проект. Посилання на коментар Поділитися на інших сайтах More sharing options...
tansss Опубліковано: 12 квітня 2014 Поділитись Опубліковано: 12 квітня 2014 Это все указано должно быть в проекте, а здесь Вам могут голову затуркать. Если в проекте нет конкретных указаний по всем этим вопросам значит это не проект. Вы в который раз критикуете некий проект(работу) ваших коллег! Не сочли бы вы за труд выложить типовой разрез сборно-монолитного фундамента о котором спрашивает ТС.... с детализацией именно тех моментов!!!! Ведь судя по вашим сообщениям ВЫ это делали неоднократно и всё детально прочерчивали;) А ведь действительно... некоторые вопросы ТС не так просто решаются 3 Посилання на коментар Поділитися на інших сайтах More sharing options...
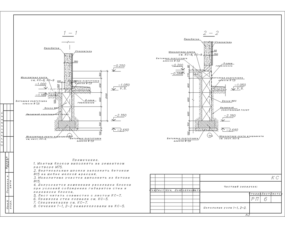
t-projekt Опубліковано: 12 квітня 2014 Поділитись Опубліковано: 12 квітня 2014 Вы в который раз критикуете некий проект(работу) ваших коллег! Не сочли бы вы за труд выложить типовой разрез сборно-монолитного фундамента о котором спрашивает ТС.... с детализацией именно тех моментов!!!! Ведь судя по вашим сообщениям ВЫ это делали неоднократно и всё детально прочерчивали А ведь действительно... некоторые вопросы ТС не так просто решаются Если что-то должно быть значит это должно быть указано в проекте - а зачем тогда заказывать проект? Чтоб потом его самому доделывать? По Вашей просьбе на скорую руку нарыл некоторые материалы, конечно для конкретного случая нет, но в общем-то и случай не совсем типовой. Посилання на коментар Поділитися на інших сайтах More sharing options...
tansss Опубліковано: 12 квітня 2014 Поділитись Опубліковано: 12 квітня 2014 Большое спасибо! Но в ваших чертежах нет ответа на вопросы 1 и 6. Вы считаете достаточно тёплым цоколь из кирпича с битумной ГИ? И ещё.... Какой срок службы предложенной гидроизоляции и какова капитальность дома?;) Посилання на коментар Поділитися на інших сайтах More sharing options...
Propeller Опубліковано: 12 квітня 2014 Поділитись Опубліковано: 12 квітня 2014 Большое спасибо! Но в ваших чертежах нет ответа на вопросы 1 и 6. Вы считаете достаточно тёплым цоколь из кирпича с битумной ГИ? И ещё.... Какой срок службы предложенной гидроизоляции и какова капитальность дома?;) 2 слоя гидроизола наше всё! То есть, 2 слоя битума на стеклотканевой основе.... Просто битума... Это в мире под землю уже с 80-х годов прошлого века перестали применять. А тут..... Проектировщики тупо берут типовые узлы и только меняют размеры под проект. В детстве пробовали. Знаем. Спасибо проектировщикам за хлеб ! Посилання на коментар Поділитися на інших сайтах More sharing options...
t-projekt Опубліковано: 13 квітня 2014 Поділитись Опубліковано: 13 квітня 2014 2 слоя гидроизола наше всё! То есть, 2 слоя битума на стеклотканевой основе.... Просто битума... Это в мире под землю уже с 80-х годов прошлого века перестали применять. А тут..... Проектировщики тупо берут типовые узлы и только меняют размеры под проект. В детстве пробовали. Знаем. Спасибо проектировщикам за хлеб ! Вы профессионал своего дела. Скажите как должно быть правильно. Подтвердите критику примером. Все будут благодарны. Я думаю, у Вас под рукой должно быть множество правильных узлов. С Уважением... Добавлено через 5 минут Большое спасибо! Но в ваших чертежах нет ответа на вопросы 1 и 6. Вы считаете достаточно тёплым цоколь из кирпича с битумной ГИ? И ещё.... Какой срок службы предложенной гидроизоляции и какова капитальность дома?;) Какова капитальность дома? Да Вы, наверное, шутите... Расскажите, что такое капитальность дома, а то не все понимают...;) Срок службы гидроизоляции такой как срок службы дома. Чертежи с проекта, где учитывались требования заказчиков (не конкретно по данному случаю). И да стена из кирпича в 500мм достаточно теплая! Вопрос 1 - организация работ (этот момент показывается в проекте организации работ). Нужно делать опалубку, которая будет скрепляться между собой а не упираться в боковой песок. Вопрос 6 - какой смысл утеплять фбс, которые под землей? Земля сама по себе является утеплением. А чтоб минимизировать влияние промерзания грунта, то можно сделать теплую отмостку - это будет и дешевле и проще. Посилання на коментар Поділитися на інших сайтах More sharing options...
Игореха Опубліковано: 13 квітня 2014 Поділитись Опубліковано: 13 квітня 2014 Любой материал можно рассматривать в качестве утеплителя, формально. Но если под слоем утеплителя в 800мм промерзает грунт, то это - плохой утеплитель :D Теплосопротивление кирпичной стены 50 см, всего-лишь в 3-4 раза ниже нынешних норм. Таки, похоже, живем прошлым столетием Посилання на коментар Поділитися на інших сайтах More sharing options...
t-projekt Опубліковано: 13 квітня 2014 Поділитись Опубліковано: 13 квітня 2014 Любой материал можно рассматривать в качестве утеплителя, формально. Но если под слоем утеплителя в 800мм промерзает грунт, то это - плохой утеплитель :D Теплосопротивление кирпичной стены 50 см, всего-лишь в 3-4 раза ниже нынешних норм. Таки, похоже, живем прошлым столетием Если заказчика устраивает 50 см кирпича без утеплителя, почему мы должны закладывать в проект утеплитель. Проект делается по требованиям заказчика, но с учетом строительных норм. Да много заказчиков живет в прошлом столетии - считают, что все новое это не сильно хорошо, но это уже совсем другой вопрос и не по теме. Ваше предложение по поводу утепления? Попытайтесь хоть немного помочь автору темы... Посилання на коментар Поділитися на інших сайтах More sharing options...
tansss Опубліковано: 13 квітня 2014 Поділитись Опубліковано: 13 квітня 2014 Какова капитальность дома? Да Вы, наверное, шутите... Расскажите, что такое капитальность дома, а то не все понимают... Почитайте хотяб тут inspektsia.kiev.ua/instruktsiya-o-technicheskoy-inventarizatsii-bti-2013/razdel-3-punkt-3-1-obschie-trebovaniya-klass-doma.html Срок службы гидроизоляции такой как срок службы дома. Назовите артикул из вашего проекта, плиз! С ссылкой на срок службы? Но возвращаясь к вопросам ТС..... пункт 6 действительно самый интересный и пока ответа в теме нет! Посилання на коментар Поділитися на інших сайтах More sharing options...
t-projekt Опубліковано: 13 квітня 2014 Поділитись Опубліковано: 13 квітня 2014 Почитайте хотяб тут inspektsia.kiev.ua/instruktsiya-o-technicheskoy-inventarizatsii-bti-2013/razdel-3-punkt-3-1-obschie-trebovaniya-klass-doma.html Назовите артикул из вашего проекта, плиз! С ссылкой на срок службы? Но возвращаясь к вопросам ТС..... пункт 6 действительно самый интересный и пока ответа в теме нет! 1)Класс сооружения прописывается в штампе проекта. Зачем задавать вопросы по капитальности? если вы умеете читать проектную документацию то оттуда все ясно. Спасибо за ссылку, но хотелось бы увидеть лаконичный ответ по данному вопросу, написанный в сообщении. поиском в интернете все могут пользоваться 2) Ну может вы попытаетесь помочь автору темы и предложите вариант к обсуждению по поводу 6-го пункта;) Посилання на коментар Поділитися на інших сайтах More sharing options...
tansss Опубліковано: 13 квітня 2014 Поділитись Опубліковано: 13 квітня 2014 Зачем задавать вопросы по капитальности? Затем, что проектанты не владея вопросом свойств применяемых строй материалов и технологией их применения указывают НЕ верные данные, чем вводят заказчиков в оману! Для того, чтобы сделать действительно грамотный проект надо всё это пройти руцями! А теперь по утеплению....раз уж ФБСки стоят, то либо по колхозному делать либо применять правильные технологии, но они трохи стоят денег! Вот тут всё по уму сделано mizol.ua/solutions/post/32-Ustroystvo-gidroizolyacii-i-drenazha-podzemnoy-chasti-sooruzheniya. Посилання на коментар Поділитися на інших сайтах More sharing options...
Игореха Опубліковано: 13 квітня 2014 Поділитись Опубліковано: 13 квітня 2014 Проект делается по требованиям заказчика, но с учетом строительных норм. Так почему же вы предлагаете нарушить нормы в 3-4 раза? Что касается 6-го вопроса, он для меня... не понятен. А как можно сделать иначе? Нет. Конечно можно и хрен поломать с дурной головы, но ровняться на это не стОит. Однажды я даже видел, как ТИ крепили грибками к фундаменту через битумную ГИ Так какие сложности в устройстве ТИ по фундаменту? Посилання на коментар Поділитися на інших сайтах More sharing options...
tansss Опубліковано: 13 квітня 2014 Поділитись Опубліковано: 13 квітня 2014 Вспомнил:D есть ещё такая штука BAUMIT Bitumenkleber 2К .... дюбелить рекомендуют только надземную часть.... Хотя сам ни разу не пользовал! Посилання на коментар Поділитися на інших сайтах More sharing options...
t-projekt Опубліковано: 13 квітня 2014 Поділитись Опубліковано: 13 квітня 2014 Так почему же вы предлагаете нарушить нормы в 3-4 раза? Что касается 6-го вопроса, он для меня... не понятен. А как можно сделать иначе? Нет. Конечно можно и хрен поломать с дурной головы, но ровняться на это не стОит. Однажды я даже видел, как ТИ крепили грибками к фундаменту через битумную ГИ Так какие сложности в устройстве ТИ по фундаменту? Что-то конкретного предложения не видно. Выходит что все предложенное плохо, а других вариантов нет. Что же делать заказчику? Отказаться от затеи строиться? Добавлено через 39 секунд Вспомнил:D есть ещё такая штука BAUMIT Bitumenkleber 2К .... дюбелить рекомендуют только надземную часть.... Хотя сам ни разу не пользовал! Ну вот пусть автор темы оценит Посилання на коментар Поділитися на інших сайтах More sharing options...
Propeller Опубліковано: 13 квітня 2014 Поділитись Опубліковано: 13 квітня 2014 Вы профессионал своего дела. Скажите как должно быть правильно. Подтвердите критику примером. Все будут благодарны. Я думаю, у Вас под рукой должно быть множество правильных узлов. С Уважением... А ведь правы. А то я тут все критикую.... Беру паузу пару минут. Посилання на коментар Поділитися на інших сайтах More sharing options...
Propeller Опубліковано: 13 квітня 2014 Поділитись Опубліковано: 13 квітня 2014 Собственно картинки ниже. Могу, если есть желание, показать насколько проблема гидроизоляции упрощается при монолитном варианте. Добавлю. Сохранение большей части наружной поверхности "подвальной" стены цементной позволяет применять для приклейки (если это нужно. Так как на форуме есть сторонники "просто придавить грунтом") ЭППС любые клеи (в т.ч. и цементные) для этого материала. 3 Посилання на коментар Поділитися на інших сайтах More sharing options...
Propeller Опубліковано: 13 квітня 2014 Поділитись Опубліковано: 13 квітня 2014 Спасибо за труд. Какова стоимость таких работ? Сколько гарантия? С уважением... А мы такого рода работы почти не выполняем. В Украине приглашать специализированные бригады для гидроизоляции не принято. "Шо там делать, шоб спецов вызывать?" Почти всегда это на себя берет "генподрядчик". Могу дать стоимость материалов и их расход. Долговечность упомянутых материалов минимум 25 лет (это про битумно-полиуретановые). Срок службы гидроизоляции на цементной основе = сроку службы конструкции. Равно как и бентонитового шнура. 1 Посилання на коментар Поділитися на інших сайтах More sharing options...
t-projekt Опубліковано: 13 квітня 2014 Поділитись Опубліковано: 13 квітня 2014 А мы такого рода работы почти не выполняем. В Украине приглашать специализированные бригады для гидроизоляции не принято. "Шо там делать, шоб спецов вызывать?" Почти всегда это на себя берет "генподрядчик". Могу дать стоимость материалов и их расход. Долговечность упомянутых материалов минимум 25 лет (это про битумно-полиуретановые). Срок службы гидроизоляции на цементной основе = сроку службы конструкции. Равно как и бентонитового шнура. Спасибо, я думаю эта информация уже несет конкретный смысл и пользу для автора темы. Особенно про сложность выполнения гидроизоляции - потому, что это действительно сложно и дорого стоит, если делают профи. С У важением... Посилання на коментар Поділитися на інших сайтах More sharing options...
Propeller Опубліковано: 13 квітня 2014 Поділитись Опубліковано: 13 квітня 2014 Спасибо, я думаю эта информация уже несет конкретный смысл и пользу для автора темы. Особенно про сложность выполнения гидроизоляции - потому, что это действительно сложно и дорого стоит, если делают профи. С У важением... Вы знаете речь даже не в сложности. Речь в педантичности. Вы видели схему. Все просто. Главное - не торопиться при выполнении работ. Вы когда-нибудь видели изделию тюремных мастеров. Шедевры! Думаешь : и как это человек такое сделал? Это ж сколько сил и времени надо?.... Времени.... Вот чего, а времени у заключенных навалом. Если говорить о работах по наружке, которые мы выполняем, то это почти всегда когда строят кому-то "крутому", который если что, может серьезно унизить Исполнителя. Вот и переживает Генподрядчик за свое будущее и "переводит стрелки" на нас. А мы и не против. Посилання на коментар Поділитися на інших сайтах More sharing options...
d34 Опубліковано: 13 квітня 2014 Автор Поділитись Опубліковано: 13 квітня 2014 Всем спасибо за ответы. Только сейчас смог добраться до компа. То, что у меня в проекте описано, я выложу как только будет доступ к сканеру или фотоаппарату. Это все указано должно быть в проекте, а здесь Вам могут голову затуркать. Если в проекте нет конкретных указаний по всем этим вопросам значит это не проект. Я придерживаюсь мнения "доверяй, но проверяй", особенно в вопросах в которых я не разбираюсь. Если что-то должно быть значит это должно быть указано в проекте - а зачем тогда заказывать проект? К сожалению, на ваших картинках, не увидел как организовывать опалубку для подушки. А теперь по утеплению....раз уж ФБСки стоят, то либо по колхозному делать либо применять правильные технологии, но они трохи стоят денег! Вот тут всё по уму сделано mizol.ua/solutions/post/32-Ustroystvo-gidroizolyacii-i-drenazha-podzemnoy-chasti-sooruzheniya. Еще не стоят, а сложены кучками около траншеи . Спасибо за ссылку, изучаю. Что касается 6-го вопроса, он для меня... не понятен. А как можно сделать иначе? Нет. Конечно можно и хрен поломать с дурной головы, но ровняться на это не стОит. Однажды я даже видел, как ТИ крепили грибками к фундаменту через битумную ГИ Так какие сложности в устройстве ТИ по фундаменту? Я в материалах не силен, но гипотетически, можно взять какой-нибудь ядреный клей, который проест ГИ Собственно картинки ниже. Могу, если есть желание, показать насколько проблема гидроизоляции упрощается при монолитном варианте. Добавлю. Сохранение большей части наружной поверхности "подвальной" стены цементной позволяет применять для приклейки (если это нужно. Так как на форуме есть сторонники "просто придавить грунтом") ЭППС любые клеи (в т.ч. и цементные) для этого материала. Ваших картинок ждал больше всего. Они всегда очень детальные. Огромное спасибо. Если можно, скиньте в личку ориентировочные цены на материалы, указанные на данных картинках. Только есть вопрос - если будет внешняя гидроизоляция, то нужно ли делать внутреннюю? И есть ли смысл добавлять в кладочный раствор гидроизоляционные добавки? Могу дать стоимость материалов и их расход. Буду очень благодарен за стоимость материалов и их расход. Посилання на коментар Поділитися на інших сайтах More sharing options...
Игореха Опубліковано: 13 квітня 2014 Поділитись Опубліковано: 13 квітня 2014 Что-то конкретного предложения не видно. Да поклеить ТИ на ГИ! Шо тут не ясного? У вас есть иные варианты? Ну прибейте гвоздями :D Добавлено через 9 минут Я в материалах не силен, но гипотетически, можно взять какой-нибудь ядреный клей, который проест ГИ Обычно, проблема возникает с проеданием ЭППС ))) Я по обмазочной битумной ГИ использовал клей-пену Титан 753. Но для применения клей-пены, да и вообще для нормального монтажа ЭППС на фундамент, нужно довольно ровное основание (т.е. плоскость фундаментной стены). Посилання на коментар Поділитися на інших сайтах More sharing options...
tansss Опубліковано: 13 квітня 2014 Поділитись Опубліковано: 13 квітня 2014 Я по обмазочной битумной ГИ использовал клей-пену Титан 753 Ну и как??? Шо, неужели держит??? Посилання на коментар Поділитися на інших сайтах More sharing options...
Игореха Опубліковано: 13 квітня 2014 Поділитись Опубліковано: 13 квітня 2014 Ну и как??? Шо, неужели держит??? Я уже писал в иной теме, да и в своей. Повторю и тут. Прошлой весной у меня возникла необходимость откопать часть фундамента, шириной 5 метров, т.к. решил пристроить тамбур. Т.к. ЭППС в зоне погреба (который планировался под тамбуром) уже не был нужен, я его демонтировал. Общее количество листов около 12 штук. Увы, три листа я поломал на 2-3 части, пока отдирал. Остальные со скрипом отделились. Клей-пена местами осталась на ЭППС, местами - на фундаменте. Но на фундаменте, в основном, остался более тонкий слой пены, а более толстый на ЭППС. Но, в любом случае, это в грунте. Многие даже не знают, как потом держится ЭППС на фундаменте с помощью пены, т.к. мало кто раскапывает. Я раскопал спустя два года и могу сказать, что держит. ;) А чего так удивляетесь? ПС Фото для всех, кто не верит, что Титан 753 отлично держится на битумной ГИ. В частности, использовался Абизол R с Абизол Р. Обратите внимание на следы пены на ГИ. Ответные следы есть и на ЭППС. Три листа поламались во время демонтажа. Отрывается ни пена от ГИ, и уж тем более ни пена от ЭППС. Рвется сама пена. Т.е. адгезия пены к любому из этих двух материалов выше, чем разрывающее усилие в самой пене. :D 1 Посилання на коментар Поділитися на інших сайтах More sharing options...
Propeller Опубліковано: 14 квітня 2014 Поділитись Опубліковано: 14 квітня 2014 Только есть вопрос - если будет внешняя гидроизоляция, то нужно ли делать внутреннюю? Нет. Это лишнее. И есть ли смысл добавлять в кладочный раствор гидроизоляционные добавки? Нет. Обычно течи по межблочным швам связаны не с водопроницаемостью "кладочного" раствора, а с либо усадкой этого раствора, либо со смещением блоков друг относительно друга. Посилання на коментар Поділитися на інших сайтах More sharing options...
Рекомендовані повідомлення
Створіть акаунт або увійдіть у нього для коментування
Ви маєте бути користувачем, щоб залишити коментар
Створити акаунт
Зареєструйтеся для отримання акаунта. Це просто!
Зареєструвати акаунтУвійти
Вже зареєстровані? Увійдіть тут.
Увійти зараз