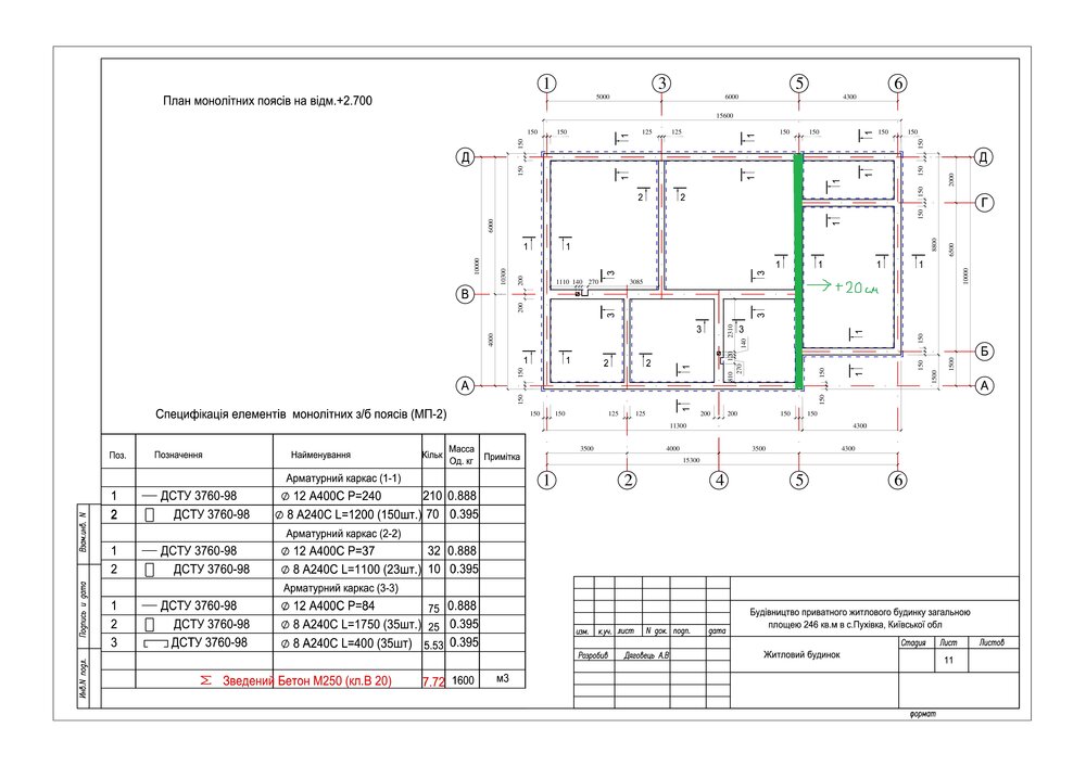
Serd Опубліковано: 11 квітня 2014 Поділитись Опубліковано: 11 квітня 2014 Прошу совет. Имеется расстановка плит перекрытия по проекту,но в процессе постройки дом по стене увеличили на 20см,соответственно появились 2 проема шириной 20см на всю длину плит 6м и 4м. Где и как будет правильно расположить эти проемы? На схеме 2 проема отмечены красным. Посилання на коментар Поділитися на інших сайтах More sharing options...
Высотник Опубліковано: 12 квітня 2014 Поділитись Опубліковано: 12 квітня 2014 Проёмы делать в любых местах между плитами перекрытия, так легче поставить опалубку и замонолитить эти участки, между стеной и плитой это будет сделать сложней. Снизу подставляете доску на ширину вашего проёма, а сверху через проволоку фиксируете, бросаете пару арматурин и заливаете. 1 Посилання на коментар Поділитися на інших сайтах More sharing options...
Drosselbeere Опубліковано: 12 квітня 2014 Поділитись Опубліковано: 12 квітня 2014 Где и как будет правильно расположить эти проемы? пересмотреть раскладку если плиты не закупили и уйти от монолита Добавлено через 42 секунды На схеме 2 проема отмечены красным. лучше выложите план первого этажа, я поправлю Посилання на коментар Поділитися на інших сайтах More sharing options...
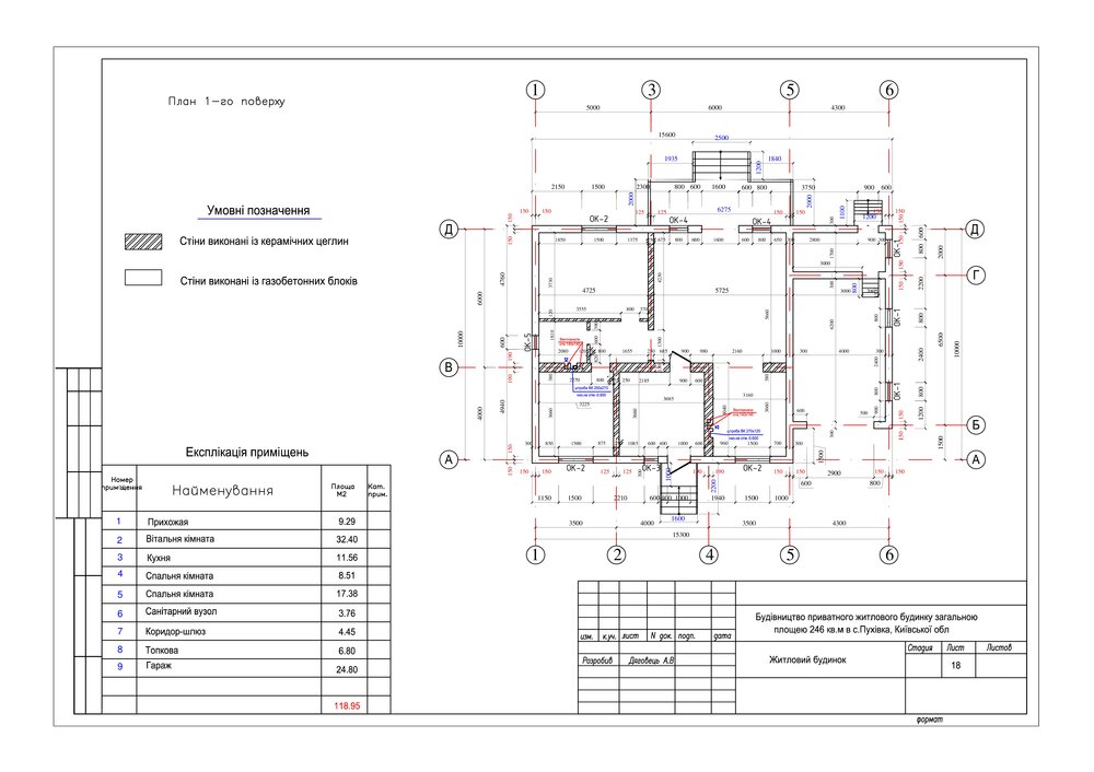
Serd Опубліковано: 12 квітня 2014 Автор Поділитись Опубліковано: 12 квітня 2014 пересмотреть раскладку если плиты не закупили и уйти от монолита Добавлено через 42 секунды лучше выложите план первого этажа, я поправлю На первом этаже от плит отказались и залили по грунту бетон 15см. Раскладка плит была абсолютно такая же,как и перекрытие второго этажа. В связи с добавление 20см на стене,появился соответствующий зазор. Дом изначально проектировался с укладкой плит перекрытия без зазоров. На схеме смещенная стена отмечена зеленым. Посилання на коментар Поділитися на інших сайтах More sharing options...
Livesms Опубліковано: 11 серпня 2014 Поділитись Опубліковано: 11 серпня 2014 Чем и как лучше заделать щели между плитами перекрытия, отверстия выбитые в плитах когда тянули "электрику от строителей" ? Забить минватой и зашпаклевать? Или есть более оптимальные варианты ? Минвата вроде как не самое лучшее решение для жилых помещений. Может есть еще какие "экологические" материалы, которыми можно заполнить щели в стыках и в самих плитах? Монтажная пена - вроде как вообще не шумоизолятор. Посилання на коментар Поділитися на інших сайтах More sharing options...
Игореха Опубліковано: 12 серпня 2014 Поділитись Опубліковано: 12 серпня 2014 Офф. А чьи это плиты такие красивые? Такого брака я еще не встречал. Посилання на коментар Поділитися на інших сайтах More sharing options...
Livesms Опубліковано: 12 серпня 2014 Поділитись Опубліковано: 12 серпня 2014 Офф. А чьи это плиты такие красивые? Такого брака я еще не встречал. Хз - может какие-то местного разлива. Объект в Ильичевске (Одесская обл.). Тут неподалеку есть какой-то завод ЖБ конструкций. Посилання на коментар Поділитися на інших сайтах More sharing options...
Рекомендовані повідомлення
Створіть акаунт або увійдіть у нього для коментування
Ви маєте бути користувачем, щоб залишити коментар
Створити акаунт
Зареєструйтеся для отримання акаунта. Це просто!
Зареєструвати акаунтУвійти
Вже зареєстровані? Увійдіть тут.
Увійти зараз