fluke Опубліковано: 25 травня 2007 Поділитись Опубліковано: 25 травня 2007 участок куплен (6 соток), эскизка заказана, начало пути положено.... страшно начинать, но надо)))) проект за основу взяли этот - (ссылка устарела) сейчас занимаемся доводкой его..... первй вопрос - из чего сторить? ракушка+кермазит+облицов.кирпич ракушка+штукатурка Ютонг, пенобетон и т.д.????? посоветуйте, плиз, где разместить топочную............ да, еще вопрос - какова должна быть площадь окон от общей? есть ли какие-то стандарты? Посилання на коментар Поділитися на інших сайтах More sharing options...
XamGelo Опубліковано: 5 червня 2007 Поділитись Опубліковано: 5 червня 2007 Начну с конца, стандарты по освещенности есть, но чтобы не считать люксы, обычно принимают площадь окон от 1/5 до 1/8 площади пола - в зависимости от назначения помещения Так обеспечивается и осещенность нормальная и расходы на отопление не слишком увеличиваются Топочная не указана - наверное в оригинале есть цокольный этаж, дом довольно высоко поднят, а в российских проектах на сайтах часто не все или не совсем так как есть показывают. Если цокольного этажа не будет- только остается вставить возле санузла 1 этажа, переместив туда же кухню и возможно пожертвовать частью гостиной А эскизка сильно от оригинала отличаться будет? Не великоват ли домик для 6 соток? Материалы для стен - здесь уж кто на что гаразд. Решение надо принимать самому. У меня - ракушняк Посилання на коментар Поділитися на інших сайтах More sharing options...
fluke Опубліковано: 6 червня 2007 Автор Поділитись Опубліковано: 6 червня 2007 пасиб, эскизка скоро будет готов, с топочной решили, так и сделаем, примерно как Вы исказали, топочную и санузел сделаем из кухни, а кухню сдлаем из задней террасы+бывший санузел)))))ну, как будет эскиз - я выложу... вот чичас с размерами окон мучаемся...ездим по ЦС, по Совиньонам, смотрим)))))) пасиб за ответ))) Посилання на коментар Поділитися на інших сайтах More sharing options...
XamGelo Опубліковано: 6 червня 2007 Поділитись Опубліковано: 6 червня 2007 НУ так мы почти соседи, через дорогу :-D Посилання на коментар Поділитися на інших сайтах More sharing options...
fluke Опубліковано: 7 червня 2007 Автор Поділитись Опубліковано: 7 червня 2007 а ты где построил/строишься? я в новой нарезке, массив 11 Посилання на коментар Поділитися на інших сайтах More sharing options...
XamGelo Опубліковано: 7 червня 2007 Поділитись Опубліковано: 7 червня 2007 Я не с морской стороны, за Арсеналом Посилання на коментар Поділитися на інших сайтах More sharing options...
IrokeZZ Опубліковано: 7 червня 2007 Поділитись Опубліковано: 7 червня 2007 На 6 сотках таааакой домищща? Простите за вопрос, но оно вам надо??? Зачем такая огромная и дорогая терасса? Не жалко свои 6 соток? )) Все в бетон низводите..... Посилання на коментар Поділитися на інших сайтах More sharing options...
Телесистемы Опубліковано: 7 червня 2007 Поділитись Опубліковано: 7 червня 2007 А это чтобы отмостка у соседа на участке была :-D Он на 6ти сотках номально не встанет Посилання на коментар Поділитися на інших сайтах More sharing options...
fluke Опубліковано: 7 червня 2007 Автор Поділитись Опубліковано: 7 червня 2007 дом получается 12*15, с перепланировкой, в т.ч. и террассы.... Посилання на коментар Поділитися на інших сайтах More sharing options...
IrokeZZ Опубліковано: 7 червня 2007 Поділитись Опубліковано: 7 червня 2007 На таком пятне можно два нормальных дома построить ))) Посилання на коментар Поділитися на інших сайтах More sharing options...
fluke Опубліковано: 8 червня 2007 Автор Поділитись Опубліковано: 8 червня 2007 мне не нужно два, мне нужен один и это не дачный домик, а для постоянного проживания))))) Посилання на коментар Поділитися на інших сайтах More sharing options...
IrokeZZ Опубліковано: 8 червня 2007 Поділитись Опубліковано: 8 червня 2007 ёёёё... Флюк, в доме вы будете СПАТЬ!!! Зачем такой большой??? Ну ладно, с большой кухней и одной комнатой (гостинной) - соглашусь. Но зачем такой домяра? У вас будет земля, воздух... трава.... Сделайте беседку и вы оттуда летом и выходить не будете!!! Стройте дом с цокольным этажом, но не воруйте площадь земли! Кстати, я как и вы начинал раньше ))) Потом одумался.... Посилання на коментар Поділитися на інших сайтах More sharing options...
alexa Опубліковано: 8 червня 2007 Поділитись Опубліковано: 8 червня 2007 совершенно нерационально используется маленький участок. домяра с терассой 45 кв.м., 5 спальнями по 25-28 метров. и при этом еще нет гаража. зачем спальни по 28 метров? Я например в спальне только сплю и больше ничего. Все остальное время она пустует. Утром спускаюсь на первый этаж, вечером поднимаюсь. И меня устраивает вполне 15 кв.м. У вас будет пустовать куча помещений. зато в другом вы быдете стеснены - место на участке. нарисуйте план участка с размещением всего, дома, гаража или места для стоянки машины, кстати кроме терассы все равно нужно будет выделить место для жарки шашлыка. В домах с таками террасами очень нерационально используется пространство и ресурсы. Более рационально сделать беседку рядом с домом или просто площадку. Посилання на коментар Поділитися на інших сайтах More sharing options...
fluke Опубліковано: 8 червня 2007 Автор Поділитись Опубліковано: 8 червня 2007 люди, Вы не читаете, что я пишу - за основу взят этот проект, он сейчас дорабатывается, уменьшилась террасса (правда, появилась сзади дома)))))))))) комнаты на втором этаже по 18, 21, 24 и 26 м.кв., переместилась кухня - за гостинную...на след. нделе когда мне предоставят эскизку с фасадами - покажу Вам )))))) пасиб за комменты))) Посилання на коментар Поділитися на інших сайтах More sharing options...
IrokeZZ Опубліковано: 8 червня 2007 Поділитись Опубліковано: 8 червня 2007 дом получается 12*15, с перепланировкой, в т.ч. и террассы.... А какой размер участка? Я понимаю, что 6 соток, а ширина и длинна? Посилання на коментар Поділитися на інших сайтах More sharing options...
fluke Опубліковано: 8 червня 2007 Автор Поділитись Опубліковано: 8 червня 2007 15*40 Посилання на коментар Поділитися на інших сайтах More sharing options...
XamGelo Опубліковано: 8 червня 2007 Поділитись Опубліковано: 8 червня 2007 Для 15 метров ширины участка - и 12 м дом слишком широкий. Хотя ДБН по этому поводу сейчас очень демократичный, но есть еще пожарные требования и соседи... Посилання на коментар Поділитися на інших сайтах More sharing options...
fluke Опубліковано: 14 червня 2007 Автор Поділитись Опубліковано: 14 червня 2007 о, получил сегодня наброски...эскизку....щас тока нада как-то сюда прилепить Посилання на коментар Поділитися на інших сайтах More sharing options...
XamGelo Опубліковано: 14 червня 2007 Поділитись Опубліковано: 14 червня 2007 В ответах - внизу "вставить вложение " Посилання на коментар Поділитися на інших сайтах More sharing options...
fluke Опубліковано: 14 червня 2007 Автор Поділитись Опубліковано: 14 червня 2007 та не, не умею пока...там расширение не то....расширение поменял, теперь, если вставляю весь файл, то не видно, площадей....мелко очень, блин, ламер примерно вот так выходит, как сделать, чтоб четко было?! Посилання на коментар Поділитися на інших сайтах More sharing options...
Pe_Na Опубліковано: 14 червня 2007 Поділитись Опубліковано: 14 червня 2007 Лучше каждую часть по отдельности. В чем нарисовано? Как минимум сделать PrintScreen и вставить в Paint (только не сохранять как bmp) Посилання на коментар Поділитися на інших сайтах More sharing options...
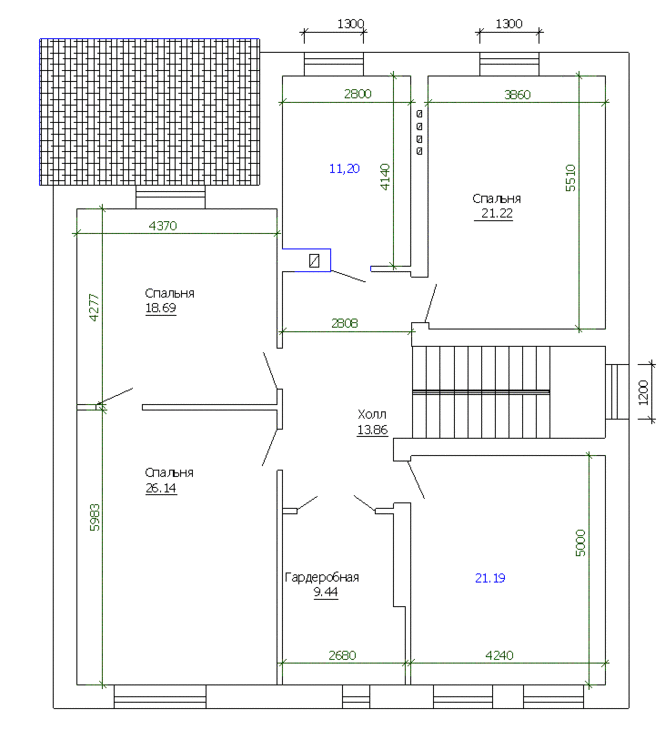
fluke Опубліковано: 14 червня 2007 Автор Поділитись Опубліковано: 14 червня 2007 ну, вроде как немношка получилось))))) Посилання на коментар Поділитися на інших сайтах More sharing options...
fluke Опубліковано: 14 червня 2007 Автор Поділитись Опубліковано: 14 червня 2007 и еще, ответьте, плиз, перекрытие - ж/б монолит намного дороже плит перекрытия? (возможно, некорректно задан вопрос) Посилання на коментар Поділитися на інших сайтах More sharing options...
sevlad Опубліковано: 14 червня 2007 Поділитись Опубліковано: 14 червня 2007 15*40 У меня аналогично 15( 18 )х40. Дома шире 10м я даже не расматривал. Посилання на коментар Поділитися на інших сайтах More sharing options...
sevlad Опубліковано: 14 червня 2007 Поділитись Опубліковано: 14 червня 2007 План 2эт Да ну что за манечка, и ты "лишний" туалет выбросил на втором этаже. Зря. Посилання на коментар Поділитися на інших сайтах More sharing options...
Рекомендовані повідомлення
Створіть акаунт або увійдіть у нього для коментування
Ви маєте бути користувачем, щоб залишити коментар
Створити акаунт
Зареєструйтеся для отримання акаунта. Це просто!
Зареєструвати акаунтУвійти
Вже зареєстровані? Увійдіть тут.
Увійти зараз