Epikur Опубліковано: 1 серпня 2014 Поділитись Опубліковано: 1 серпня 2014 Здравствуйте. Все как обыно, прошу заметить то что не заметил я. Спасибо. Посилання на коментар Поділитися на інших сайтах More sharing options...
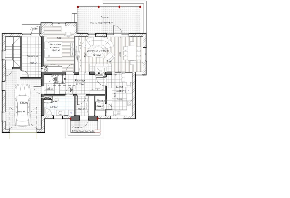
Mirona Опубліковано: 1 серпня 2014 Поділитись Опубліковано: 1 серпня 2014 Тут уже писали что если будет газ_отопление, то выход из котельной в гараж нельзя. П-образная лестница в гараж зачем? По кухне - дверь в/из нее в коридор упирается в следующий проход и раздвижные двери в столовую. Имхо, перегруженный угол получается. Сама кухня если будет заставлена так по периметру как на проекте, то будет достаточно тесной в проходе при таких габаритах как по мне. Ну и как всегда балкон - разве только у Вас обалденные виды. Дверь на втором этаже в коридоре "на улицу" без балкона, она для каких целей? Посилання на коментар Поділитися на інших сайтах More sharing options...
Epikur Опубліковано: 1 серпня 2014 Автор Поділитись Опубліковано: 1 серпня 2014 По кухне - дверь в/из нее в коридор упирается в следующий проход и раздвижные двери в столовую. Имхо, перегруженный угол получается. Сама кухня если будет заставлена так по периметру как на проекте, то будет достаточно тесной в проходе при таких габаритах как по мне. Ну и как всегда балкон - разве только у Вас обалденные виды. - этого не понял. в какой проход упирается дверь в кухню? раздвижная дверь из кухни в гостинную будет прозрачной. 2,85-1,2(глубина рабочей поверхности) = 1,65, это шага 3, почему тесной то? А что с балконом не то? Лестница в гараж - под котельной будет подвал. на втором этаже с коридора - французкий балкон. альтернатива окну. Посилання на коментар Поділитися на інших сайтах More sharing options...
Mirona Опубліковано: 1 серпня 2014 Поділитись Опубліковано: 1 серпня 2014 - этого не понял. в какой проход упирается дверь в кухню? раздвижная дверь из кухни в гостинную будет прозрачной. 2,85-1,2(глубина рабочей поверхности) = 1,65, это шага 3, почему тесной то? А что с балконом не то? Лестница в гараж - под котельной будет подвал. на втором этаже с коридора - французкий балкон. альтернатива окну. Насчет прохода то есть лично бы мне она мешала своим открытым видом при обзоре из столовой, и при ходьбе - задевала бы (а думаю открыта эта дверь таки будет довольно часто). Насчет балкона в частном доме - это п сути грязелистьеснегособрник - который нужно без конца убирать, а практическое применение сводится к нулю. Оправдывает себя разве что у Вас очень красивые природные обзоры. Насчет французского балкона - может просто окно, зачем лишние теплопотери с этой дверью, сдается что практического применения будет опять же мало. Посилання на коментар Поділитися на інших сайтах More sharing options...
Epikur Опубліковано: 4 серпня 2014 Автор Поділитись Опубліковано: 4 серпня 2014 Тут уже писали что если будет газ_отопление, то выход из котельной в гараж нельзя. а можете дать ссылку на нормативку почему так нельзя. И если в котельой будет 3 котла, эл., газовый и ТТ? Посилання на коментар Поділитися на інших сайтах More sharing options...
Andrei constructor Опубліковано: 4 серпня 2014 Поділитись Опубліковано: 4 серпня 2014 а можете дать ссылку на нормативку почему так нельзя. И если в котельой будет 3 котла, эл., газовый и ТТ? ДБН Газоснабжение Посилання на коментар Поділитися на інших сайтах More sharing options...
Epikur Опубліковано: 4 серпня 2014 Автор Поділитись Опубліковано: 4 серпня 2014 а больше ни у кого никаких замечаний нет? проект или на столько хорош, или на столько плох? или мало информации? Посилання на коментар Поділитися на інших сайтах More sharing options...
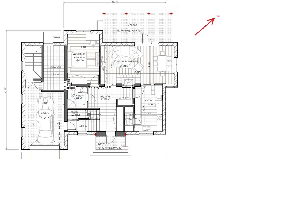
Epikur Опубліковано: 4 серпня 2014 Автор Поділитись Опубліковано: 4 серпня 2014 альтернативный вариант первого этажа такой. Подскажите на сколько нужен/важен в доме тамбур? на сколько критично увеличение высоты ступени лестницы на 2 см? так как в таком варианте лестница уменьшается. Зарание спасибо. Посилання на коментар Поділитися на інших сайтах More sharing options...
seyvalter Опубліковано: 5 серпня 2014 Поділитись Опубліковано: 5 серпня 2014 якось воно вийшло надто велике і безтолкове. котельна далеко від кухні і санвузла. тех приміщення не зібрані у вузол - а розкидані по всьому будинку - що утруднює прокладку комунікацій та і посто не зручно. П-подібну сходову клітку я б викинув з гаража - а вхід у підвал робив під сходовою кліткою у будинку - протиходом сходам на 2- й поверх (одні сходи над другими) - це б дозволило зменшити будинок квадратів на 10 + далоб кращу функціональну доступність від падвалу до кухні. Підтримаю думку колег - балкони - ЗЛО. Скільки я їх перепроектував - ніразу не бачив щоб на них потім хтось стояв і каву пив як думалось. Їх максимум - це сушилка для трусів або склад для банок-склянок - що явно фасади не облагорожує. Тамбур є НЕОБХІДНИМ - прийміть це як аксіому. Котельна ваша довга і прохідна - що не дозволить раціонально використати ї площу для створення запасу сухого палива скажімо. Я так скажу - чим краща компоновка будинку - тим менша у ному площа коридорів і проходів (мертвої площі) - у вас цяя площа висока, відповідно про якість робіть висновок самі. Якщо маєте бажання - напишіть в приват - кину подібний проект (з таким же набором приміщень) - тільки окультуряний і продуманий, просто щоб ви розуміли і бачили як люди роблять. 1 Посилання на коментар Поділитися на інших сайтах More sharing options...
Epikur Опубліковано: 7 серпня 2014 Автор Поділитись Опубліковано: 7 серпня 2014 Seyvalter, дякую за Вашу критику. поясніть будь-ласка, чому котельня має бути близько до кухні та с/в? А як можна перепроектуати котельню правильно так щоб там залишився прохід до гаражу? Дякую. Посилання на коментар Поділитися на інших сайтах More sharing options...
seyvalter Опубліковано: 7 серпня 2014 Поділитись Опубліковано: 7 серпня 2014 Це потрібно для спрощення прокладкі комунікацій - газу, каналізації, вентиляції, водогону. далеко одне від іншого - лишні труби, лишня пайка, лишні стикі і т.д. Ну і звичайно лишні комини - це все лишні затрати і геморой при буднівництві. Крім того - незручно в експлуатації. Простий приклад - котел скоріш завсе буде стояти двохконтурний - і грітиме воду як на опалення - так і на гаряче водопостачання. Тепер уявіть що ви на кухні відкрили кран щоб набрати гарячої води - доки по тих всіх трубах вона від котельні до кухні дійде - ви будете стояти і зливати холодну воду що міститься у трубах. Початково здається що це дрібниця - та на практиці треба кожен раз стояти хвилину біля відкритиго на повну котушку крана і чекати доки стіче вся охоловша вода і нарешті піде гаряча. А коли це повторюється кілька разів підряд..... Посилання на коментар Поділитися на інших сайтах More sharing options...
Рекомендовані повідомлення
Створіть акаунт або увійдіть у нього для коментування
Ви маєте бути користувачем, щоб залишити коментар
Створити акаунт
Зареєструйтеся для отримання акаунта. Це просто!
Зареєструвати акаунтУвійти
Вже зареєстровані? Увійдіть тут.
Увійти зараз