DimaXXX Опубліковано: 15 серпня 2014 Поділитись Опубліковано: 15 серпня 2014 (змінено) Друзья, всем здравствуйте. Подскажите как поступить. В этом году начал строительство газобетонного дома. Вырыл траншею под ленточный фундамент глубиной 1,2 м и шириной 0,4м, залил бетон до уровня земли и сделал кирпичный цоколь. Под опорными стенами 1,5 кирпича, под террасой в 1. На участке присутствует диагональный перепад высоты - там где отмечено буквой А цоколь = 0,6м, а где Д цоколь = 1,3м. Вот и возникла идея под террасой площадью 14,92м сделать погреб, т.е. выбрать землю по внутреннему фундаменту на 1,2м и +1,3м кирпичного цоколя, получится 2,5м. Для входа люк с террасы. Цоколь утеплить (скорее всего изнутри). Есть смысл заморачиваться? Змінено 15 серпня 2014 користувачем DimaXXX Посилання на коментар Поділитися на інших сайтах More sharing options...
tux_edo Опубліковано: 16 серпня 2014 Поділитись Опубліковано: 16 серпня 2014 Для входа люк с террасы. Цоколь утеплить (скорее всего изнутри). Есть смысл заморачиваться? Есть однозначно.Три важных момента: 1.Вход продумать с улицы 2.обустроить хорошую вытяжку 3.Учесть уровень грунтовых вод.(я лично рыл дренажный колодец, потому что весной, бывало, подтапливало 1 Посилання на коментар Поділитися на інших сайтах More sharing options...
DimaXXX Опубліковано: 16 серпня 2014 Автор Поділитись Опубліковано: 16 серпня 2014 Есть однозначно.Три важных момента: 1.Вход продумать с улицы 2.обустроить хорошую вытяжку 3.Учесть уровень грунтовых вод.(я лично рыл дренажный колодец, потому что весной, бывало, подтапливало Спасибо за ответ, а то я уж думал, что так и останусь безответным 1. Вход получится реализовать только через люк, т.к. это единственный безболезненный вариант 2. С вытяжкой проблем не будет. Есть понимание и возможность где размещать отток-приток 3. Грунтовые воды очень низко, но за мысль спасибо Меня смущает несколько моментов - уровень земли на участке буду подымать и не будет ли грунт сильно давить на кирпичный цоколь, который служит стенами в погребе? И второе какое делать перекрытие погреба, а соответственно пол террасы? Посилання на коментар Поділитися на інших сайтах More sharing options...
dmitriylaser Опубліковано: 16 серпня 2014 Поділитись Опубліковано: 16 серпня 2014 1.Вход продумать с улицы Навеяло: на днях как раз мать рассказывала, как в войну в погребе вся семья сидела- при этом прадеду пришлось разбирать одну стену кирпичной кладки для того, что-бы сделать выход во двор.Так что еще раз подумайте... К тому же если погребом будете реально (часто) пользоваться, то и заносить в него ведра по ступенькам куда легче, чем через люк. 1 Посилання на коментар Поділитися на інших сайтах More sharing options...
DimaXXX Опубліковано: 16 серпня 2014 Автор Поділитись Опубліковано: 16 серпня 2014 Так что еще раз подумайте... К тому же если погребом будете реально (часто) пользоваться, то и заносить в него ведра по ступенькам куда легче, чем через люк. Да я то это понимаю, но ведь прочность конструкции не хочется нарушать- фундамент как никак... Тем более люки делают очень даже неплохие, можно 80*130см установить и лестница с перилами и с наклоном в 45 градусов вроде становится Посилання на коментар Поділитися на інших сайтах More sharing options...
tux_edo Опубліковано: 17 серпня 2014 Поділитись Опубліковано: 17 серпня 2014 Меня смущает несколько моментов - уровень земли на участке буду подымать и не будет ли грунт сильно давить на кирпичный цоколь, который служит стенами в погребе? И второе какое делать перекрытие погреба, а соответственно пол террасы? армопояс + монолит 1 Посилання на коментар Поділитися на інших сайтах More sharing options...
Leqion Опубліковано: 24 серпня 2014 Поділитись Опубліковано: 24 серпня 2014 Утепление не забудьте правильное! Посилання на коментар Поділитися на інших сайтах More sharing options...
ПГС-Проект Опубліковано: 26 серпня 2014 Поділитись Опубліковано: 26 серпня 2014 Утепление не забудьте правильное! Кесарев- Кесареву но Самое важное выполнить правильную гидроизоляцию... теплоизоляция и вентиляция практически лишняя трата средств если у Вас в подвале Н2О по пояс.... Посилання на коментар Поділитися на інших сайтах More sharing options...
DimaXXX Опубліковано: 7 вересня 2014 Автор Поділитись Опубліковано: 7 вересня 2014 УГВ около 6-8 метров )) Посилання на коментар Поділитися на інших сайтах More sharing options...
Tymalex Опубліковано: 12 вересня 2014 Поділитись Опубліковано: 12 вересня 2014 УГВ около 6-8 метров )) Учесть еще дожди. Лучше пускай постоит весна-осень-посмотрите. Посилання на коментар Поділитися на інших сайтах More sharing options...
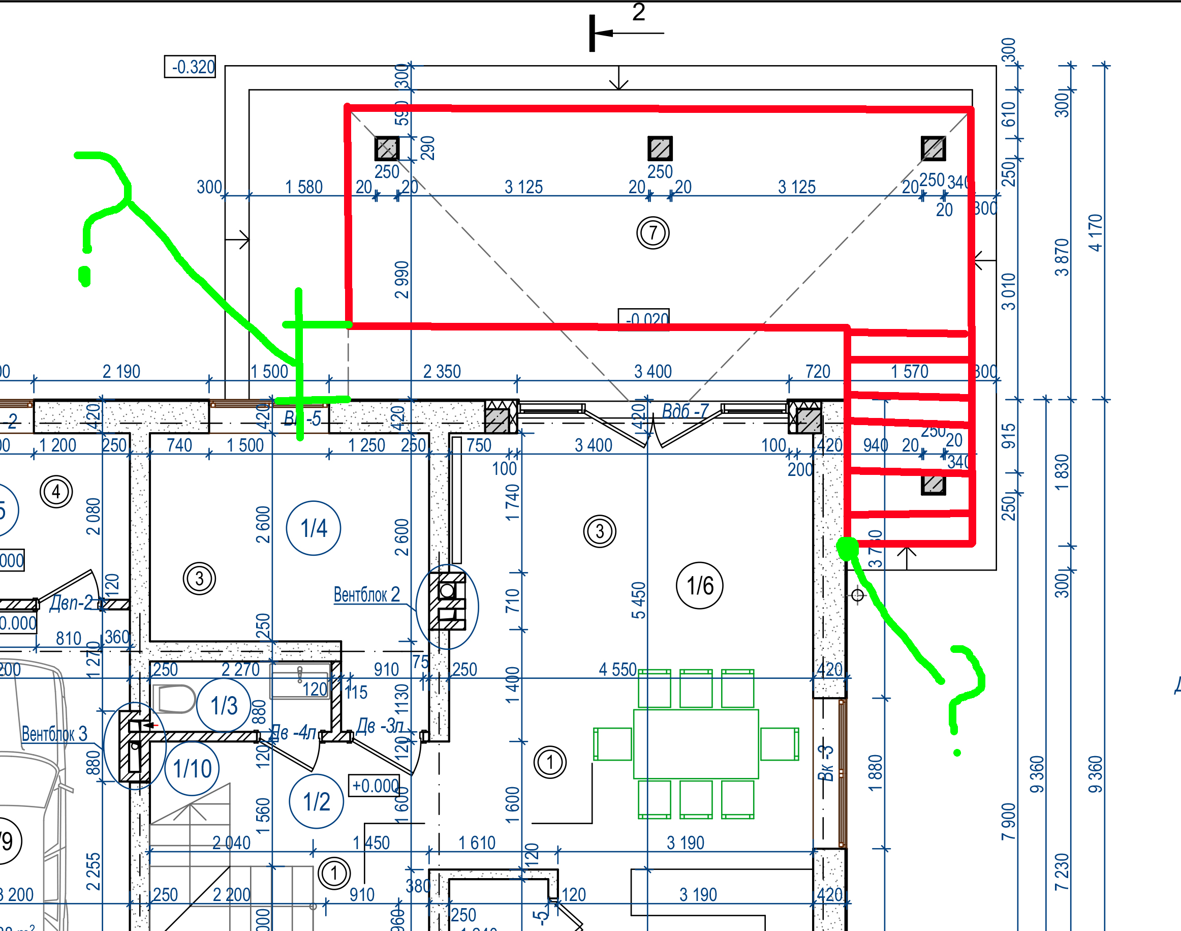
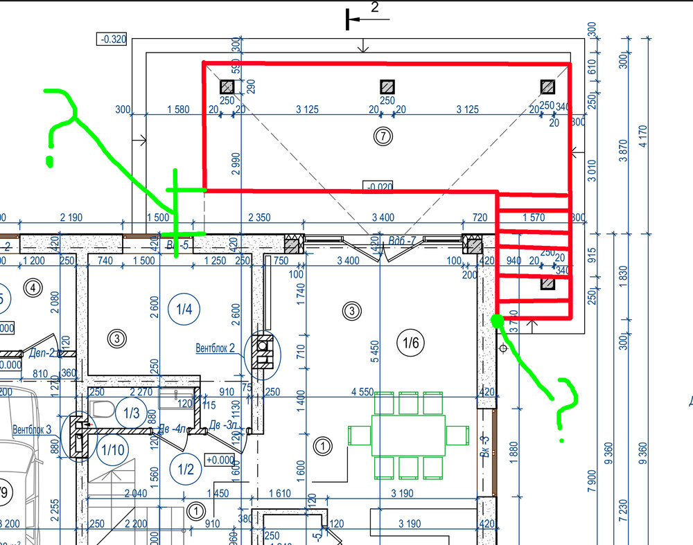
Ger@ Опубліковано: 15 вересня 2014 Поділитись Опубліковано: 15 вересня 2014 Здравствуйте форумчане, Тоже хочу сделать погреб под террасой и тоже в проекте не предусмотрел, хотел изначально под гаражом, потом под котельней, потом меня отговорили, да и сам понимаю что не Камильфо в этом месте. Поэтому присмотревшись решил замутить погреб под террасой, там габариты позволяют сделать бомбоубежище Сейчас скорее всего задам этот вопрос архитекторам, но для себя хочу разобраться в вопросе отступа от ленты фундамента, (на рис. вылелил зеленым) непосредственно короба (стен) погреба, а также надо ли делать отступ от лестницы в погреб до ленты фундамента. Мне одни роботяги говорят что связать этот погреб с лентой и будет тебе счастье! я реально понимаю что может быть "счестье" в переносном смысле, и НЕ ХОЧУ связывать ленту с погребом, пусть каждый елемент жывет своей жизнью, подвижность, пучение грунтов, равномерное (или не равномерное) давление всей конструкции на грунт........ и т.д. Так вот собственно вопрос к знатокам! на сколько надо отступать от ленты фундамента, или не надо отступать, связивать погреб с лентой или не связивать? И это... вход в погреб, лестница впритул к ленте это же вроде как норма? или отступать малость от ленты...... Гдето я читал что надо мыслено провести прямую под углом 45 градусов, и это будет минимально необходимый отступ от ленты, правильно это или нет? (схематически ихобразил на картинке) Посилання на коментар Поділитися на інших сайтах More sharing options...
Ger@ Опубліковано: 26 жовтня 2014 Поділитись Опубліковано: 26 жовтня 2014 DimaXXX так чем у Вас все закончилось, погреб построили? Я себе сделал вот так www.stroimdom.com.ua/forum/showpost.php?p=3170646&postcount=83 1 Посилання на коментар Поділитися на інших сайтах More sharing options...
DimaXXX Опубліковано: 29 жовтня 2014 Автор Поділитись Опубліковано: 29 жовтня 2014 Круто! Молодца! У меня до следующего сезона все законсервировано, с весны продолжу )) Посилання на коментар Поділитися на інших сайтах More sharing options...
Рекомендовані повідомлення
Створіть акаунт або увійдіть у нього для коментування
Ви маєте бути користувачем, щоб залишити коментар
Створити акаунт
Зареєструйтеся для отримання акаунта. Це просто!
Зареєструвати акаунтУвійти
Вже зареєстровані? Увійдіть тут.
Увійти зараз