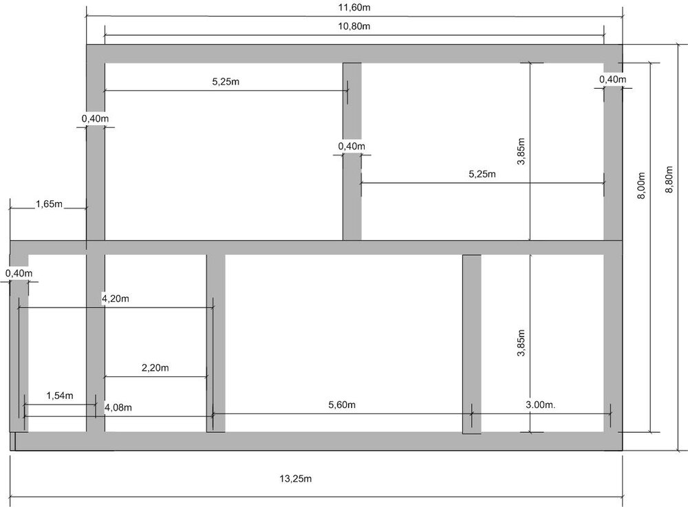
Ostap Опубліковано: 1 червня 2007 Поділитись Опубліковано: 1 червня 2007 Поможете. 8*11 1,5-2 этажа,без подвала,газобетон Участок узкий,достраивать гараж уместно,деревья цветы. Вход с юговостока. Как бы это скомпоновать по лучше ? Посилання на коментар Поділитися на інших сайтах More sharing options...
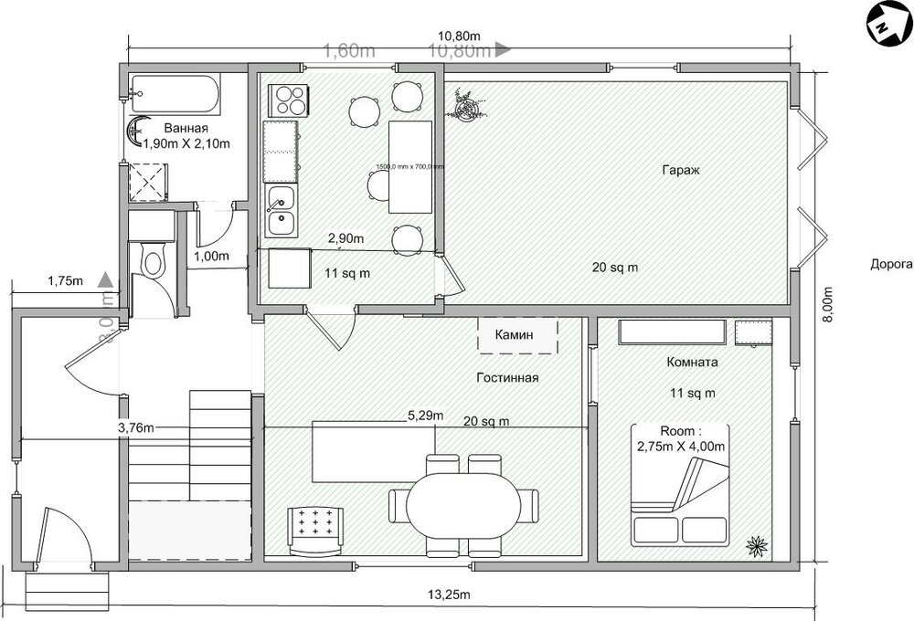
Fuzik Опубліковано: 1 червня 2007 Поділитись Опубліковано: 1 червня 2007 Расположение гаража очень неприкольно переделать однозначно. От гаража полюбому нужен тамбур отделяющий от дома . Посилання на коментар Поділитися на інших сайтах More sharing options...
Olex Опубліковано: 1 червня 2007 Поділитись Опубліковано: 1 червня 2007 Я бы его вообще в доме не делал, тем более со входом в кухню без тамбура (обсуждалось ранее). Я бы просто сделал навес примыкающий к дому. Какой смысл запирать машину в закрытом дворе? Ведь когда нас нет дома, значит мы уехали на машине. Только представьте, сколько появиться ценнейшей полезной площади на первом этаже... Ну что это за комната в частном доме и кухня по 11м2? За что боролись? Посилання на коментар Поділитися на інших сайтах More sharing options...
Dron Опубліковано: 3 червня 2007 Поділитись Опубліковано: 3 червня 2007 Однозначно соглашусь с вышесказаным: как в проекте гараж не нужен, не место ему там. За счет гаража увеличить кухню и сан.узел сделать больше и совместный. Извените, но не понимаю я ванной комнаты размерами 1,90 х 2,10 и маленький тёмный туалет я не понимаю. Посилання на коментар Поділитися на інших сайтах More sharing options...
alexa Опубліковано: 4 червня 2007 Поділитись Опубліковано: 4 червня 2007 Выбрать типовый проект и не мучаться. За уже потраченное время на самостоятельное рисование можно было давно выбрать подходящий проект. Если нет денег на покупку, можно взять типовый проект просто за основу. Посилання на коментар Поділитися на інших сайтах More sharing options...
Ostap Опубліковано: 4 червня 2007 Автор Поділитись Опубліковано: 4 червня 2007 Ну не нравиться,плюс особенности участка,личные предпочтения Посилання на коментар Поділитися на інших сайтах More sharing options...
Jarik Опубліковано: 4 червня 2007 Поділитись Опубліковано: 4 червня 2007 Я бы просто сделал навес примыкающий к дому. Какой смысл запирать машину в закрытом дворе? Ведь когда нас нет дома, значит мы уехали на машине. Ага. Или в отпуск, на ... самолете улетели (а гараж можно на сигнализацию поставить). Посилання на коментар Поділитися на інших сайтах More sharing options...
Ostap Опубліковано: 4 червня 2007 Автор Поділитись Опубліковано: 4 червня 2007 Посилання на коментар Поділитися на інших сайтах More sharing options...
Chiara Опубліковано: 4 червня 2007 Поділитись Опубліковано: 4 червня 2007 Поможете. 8*11 1,5-2 этажа,без подвала,газобетон Участок узкий,достраивать гараж уместно,деревья цветы. Вход с юговостока. Насколько узкий? У меня тоже узкий, так, наоборот, я из-за этого делаю гараж отдельно. Ведь даже дом без гаража обычно не меньше 7 метров ширины, а у Вас с гаражом -9 ? Я как Вы в дом входить будете? Почему крыльцо на заднем дворе? Что, все будут заходить через гараж? Посилання на коментар Поділитися на інших сайтах More sharing options...
Fuzik Опубліковано: 4 червня 2007 Поділитись Опубліковано: 4 червня 2007 Я бы просто сделал навес примыкающий к дому. Какой смысл запирать машину в закрытом дворе? Ведь когда нас нет дома, значит мы уехали на машине. Ага. Или в отпуск, на ... самолете улетели (а гараж можно на сигнализацию поставить). А зачем лететь на самолете без машины? Разве ваш самолет не берет на борт машину Посилання на коментар Поділитися на інших сайтах More sharing options...
Ostap Опубліковано: 5 червня 2007 Автор Поділитись Опубліковано: 5 червня 2007 Поможете. 8*11 1,5-2 этажа,без подвала,газобетон Участок узкий,достраивать гараж уместно,деревья цветы. Вход с юговостока. Насколько узкий? У меня тоже узкий, так, наоборот, я из-за этого делаю гараж отдельно. Ведь даже дом без гаража обычно не меньше 7 метров ширины, а у Вас с гаражом -9 ? Я как Вы в дом входить будете? Почему крыльцо на заднем дворе? Что, все будут заходить через гараж? -Вход по соображениям ФЕН ШУЙ )) -Компактно всё получается с гаражём. -Вход через вход ) Посилання на коментар Поділитися на інших сайтах More sharing options...
alexa Опубліковано: 5 червня 2007 Поділитись Опубліковано: 5 червня 2007 вход из гаража прямо на кухню, это нечто. Представляете, все запахи из гаража через дверь будут проникать на кухню. приезжаете Вы с работы домой, ставите машину в гараж и заходите прямо на кухню в верхней одежде и обуви... Посилання на коментар Поділитися на інших сайтах More sharing options...
alexa Опубліковано: 5 червня 2007 Поділитись Опубліковано: 5 червня 2007 нарисуйте сначала дом без гаража с нормальной планировкой, затем гараж примкните к дому. получится дом с гаражом буквой Г. Так Вы рационально используете место на узком участке. Посилання на коментар Поділитися на інших сайтах More sharing options...
Fuzik Опубліковано: 5 червня 2007 Поділитись Опубліковано: 5 червня 2007 -Вход по соображениям ФЕН ШУЙ )) -Компактно всё получается с гаражём. -Вход через вход ) Я не знаю в чем ваш феншуй понимает но в строителстве точно не понимает Посилання на коментар Поділитися на інших сайтах More sharing options...
XamGelo Опубліковано: 5 червня 2007 Поділитись Опубліковано: 5 червня 2007 У амэрыканцив есть проекты домов шириной 6-7 м (!!!) и с гаражом на первом этаже и все умещают, правда длина дома - метров 18 Посилання на коментар Поділитися на інших сайтах More sharing options...
Chiara Опубліковано: 5 червня 2007 Поділитись Опубліковано: 5 червня 2007 У амэрыканцив есть проекты домов шириной 6-7 м (!!!) и с гаражом на первом этаже и все умещают, правда длина дома - метров 18 не видела ни одного, чтоб вход в дом был через гараж или парадное крыльцо с тыла. (причем и на живые амер. дома довелось посмотреть) Это ж весь дом обойти нужно! По феншуй сзади д.б гора, спереди вода. Почему у Вас гараж? Посилання на коментар Поділитися на інших сайтах More sharing options...
XamGelo Опубліковано: 5 червня 2007 Поділитись Опубліковано: 5 червня 2007 Chiara, вы наверно в богатых штатах были а в луизиане сам настоящие видел Посилання на коментар Поділитися на інших сайтах More sharing options...
Ostap Опубліковано: 6 червня 2007 Автор Поділитись Опубліковано: 6 червня 2007 Спасибо,очень интересно ! наверно дверь с кухни в гараж уберу ) Посилання на коментар Поділитися на інших сайтах More sharing options...
Ostap Опубліковано: 11 червня 2007 Автор Поділитись Опубліковано: 11 червня 2007 Почти выкопали такой фундамент Вопрос : нужно ли так много перемычек ? панели ложить можно вдоль,можно поперек. Посилання на коментар Поділитися на інших сайтах More sharing options...
Ostap Опубліковано: 11 червня 2007 Автор Поділитись Опубліковано: 11 червня 2007 У амэрыканцив есть проекты домов шириной 6-7 м (!!!) и с гаражом на первом этаже и все умещают, правда длина дома - метров 18 не видела ни одного, чтоб вход в дом был через гараж или парадное крыльцо с тыла. (причем и на живые амер. дома довелось посмотреть) Это ж весь дом обойти нужно! По феншуй сзади д.б гора, спереди вода. Почему у Вас гараж? Гор нету в принцыпе,воду сделаю рядом с гаражом Гараж нужен мне я типа кулибин Посилання на коментар Поділитися на інших сайтах More sharing options...
XamGelo Опубліковано: 11 червня 2007 Поділитись Опубліковано: 11 червня 2007 Ну это все зависит как у вас несущие стены идут, по ним и фундамент делается Посилання на коментар Поділитися на інших сайтах More sharing options...
Ostap Опубліковано: 11 червня 2007 Автор Поділитись Опубліковано: 11 червня 2007 Можно и те что вдоль,можно поперек. Если панели ПК56-9шт Пк-42 3 шт. 2-й вариант всё поперек Пк-42 15 шт. какой щебень подсыпать под фундамент ? Посилання на коментар Поділитися на інших сайтах More sharing options...
XamGelo Опубліковано: 11 червня 2007 Поділитись Опубліковано: 11 червня 2007 Тогда надо посчитать, что дешевле. Плиты разных размеров могут отличаться по цене за кв.м. Я бы использовал ПК-42, сделав соответственно фундамент под поперечные внутренние стены и сами стены тоньше Посилання на коментар Поділитися на інших сайтах More sharing options...
Ostap Опубліковано: 12 червня 2007 Автор Поділитись Опубліковано: 12 червня 2007 Спасибо ! оказывается дешевле всего ПК 42-12 Вопрос-как сделать фундамент тогда. сколько ложить арматуры ? имеет ли смысл ложить два слоя,ведь работает только нижний... Посилання на коментар Поділитися на інших сайтах More sharing options...
Ostap Опубліковано: 23 липня 2007 Автор Поділитись Опубліковано: 23 липня 2007 Купил бетономешалку. залили подготовку для фундамента. Посилання на коментар Поділитися на інших сайтах More sharing options...
Рекомендовані повідомлення
Створіть акаунт або увійдіть у нього для коментування
Ви маєте бути користувачем, щоб залишити коментар
Створити акаунт
Зареєструйтеся для отримання акаунта. Це просто!
Зареєструвати акаунтУвійти
Вже зареєстровані? Увійдіть тут.
Увійти зараз