Сватик Опубліковано: 21 лютого 2015 Поділитись Опубліковано: 21 лютого 2015 Подскажите с планировкой дома Дом 8 на 8 по внутренней стене - одно этажный ! 64 кв.м ... 2 спальни , кухня - гостинная , сан узел + тех комната для котла и дров ! У кого то есть примерная планировочка ? Посилання на коментар Поділитися на інших сайтах More sharing options...
EarnestUA Опубліковано: 21 лютого 2015 Поділитись Опубліковано: 21 лютого 2015 А посмотрите проекты Андрея конструктора. Например этот. gidproekt.com/proekt-odnoetazhnogo-zagorodnogo-doma-byudzhetnyj-1-prostota-so-vkusom.html Он несколько больше чем вам требуется, но, думаю, можно ужать площади. А вообще, чтобы вам помогли, надо дать больше вводных данных. Хотя бы по численности и составе проживающих в доме. Посилання на коментар Поділитися на інших сайтах More sharing options...
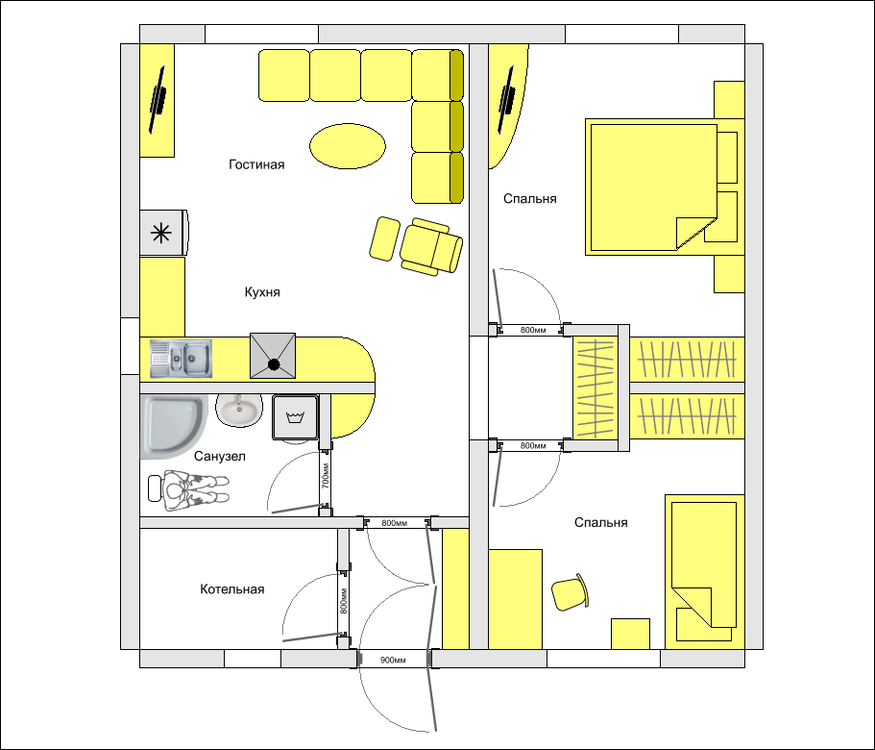
EarnestUA Опубліковано: 21 лютого 2015 Поділитись Опубліковано: 21 лютого 2015 Мда, не просто уложить в квадрат 8x8 все что необходимо. Вот, попытался набросать планировку. Смотрите... Посилання на коментар Поділитися на інших сайтах More sharing options...
ПГС-Проект Опубліковано: 21 лютого 2015 Поділитись Опубліковано: 21 лютого 2015 Мда, не просто уложить в квадрат 8x8 все что необходимо. Вот, попытался набросать планировку. Смотрите... Жить конечно в таком домике конечно можно...Но! если проставить привязочные размеры на данном эскизе с учетом толщины всех несущих стен и реально представить воотчию как оно будет в реальности.. то скорее всего есть смысл немного увеличить габаритные размеры дома... Если сезонный- то сойдет. Посилання на коментар Поділитися на інших сайтах More sharing options...
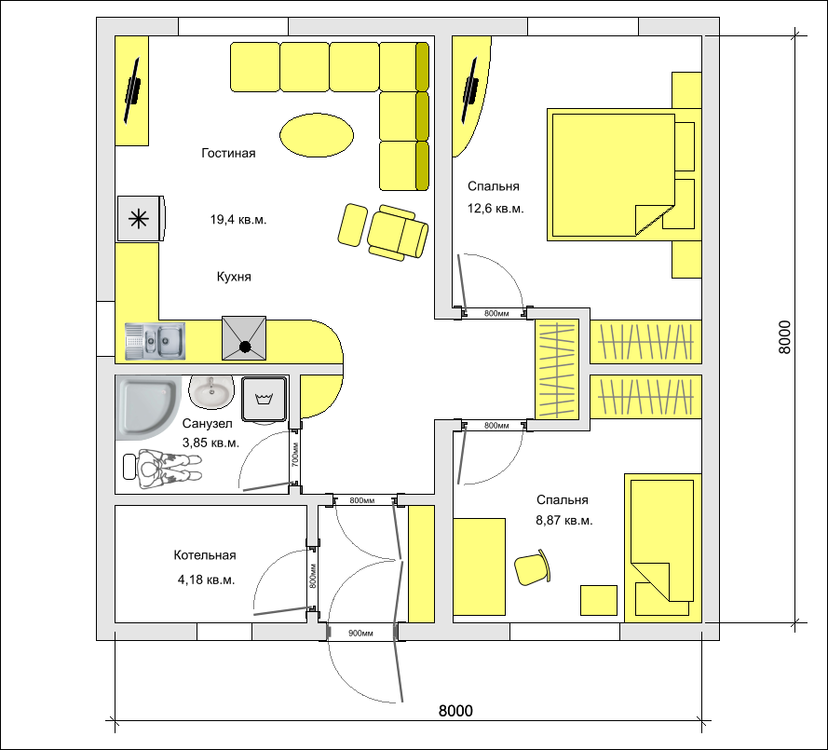
EarnestUA Опубліковано: 21 лютого 2015 Поділитись Опубліковано: 21 лютого 2015 Жить конечно в таком домике конечно можно...Но! если проставить привязочные размеры на данном эскизе с учетом толщины всех несущих стен и реально представить воотчию как оно будет в реальности.. то скорее всего есть смысл немного увеличить габаритные размеры дома... Если сезонный- то сойдет. На эскизе все изображено с соблюдением масштаба. Несущие стены 25см, перестенки 15см. Мебель, сантехника - все с реальными размерами. А что тесновато - так кто же спорит... Вот, то же самое, с указанием площадей помещений. Посилання на коментар Поділитися на інших сайтах More sharing options...
ПГС-Проект Опубліковано: 21 лютого 2015 Поділитись Опубліковано: 21 лютого 2015 На эскизе все изображено с соблюдением масштаба. Несущие стены 25см, перестенки 15см. Мебель, сантехника - все с реальными размерами. А что тесновато - так кто же спорит... Вот, то же самое, с указанием площадей помещений. А если несущие будут из газобетона 375мм.? Посилання на коментар Поділитися на інших сайтах More sharing options...
EarnestUA Опубліковано: 21 лютого 2015 Поділитись Опубліковано: 21 лютого 2015 А если несущие будут из газобетона 375мм.? А ничего не изменится. По условиям задачи 8x8 - внутренний размер. Посилання на коментар Поділитися на інших сайтах More sharing options...
ПГС-Проект Опубліковано: 21 лютого 2015 Поділитись Опубліковано: 21 лютого 2015 А ничего не изменится. По условиям задачи 8x8 - внутренний размер. На счет внутреннего не досмотрел. Нормы для котельни(площадь и т.д.)... Посилання на коментар Поділитися на інших сайтах More sharing options...
EarnestUA Опубліковано: 21 лютого 2015 Поділитись Опубліковано: 21 лютого 2015 Нормы для котельни(площадь и т.д.)... Ну, если потолок 3м - 12 кубов. Для газового - аж бегом. Для ТТ - честно признаюсь, не в курсе. Знающие поправят. Посилання на коментар Поділитися на інших сайтах More sharing options...
ПГС-Проект Опубліковано: 21 лютого 2015 Поділитись Опубліковано: 21 лютого 2015 Ну, если потолок 3м - 12 кубов. Для газового - аж бегом. Для ТТ - честно признаюсь, не в курсе. Знающие поправят. 15 нужно..минимум! Открывание двери на ружу. Остекление 0.3 м2 на 10м3 помещения... Венканалы. Посилання на коментар Поділитися на інших сайтах More sharing options...
EarnestUA Опубліковано: 21 лютого 2015 Поділитись Опубліковано: 21 лютого 2015 15 нужно..минимум! Открывание двери на ружу. Остекление 0.3 м2 на 10м3 помещения... Венканалы. А в каком ДБНе это смотреть? Особенно интересно про дверь наружу. Посилання на коментар Поділитися на інших сайтах More sharing options...
EarnestUA Опубліковано: 21 лютого 2015 Поділитись Опубліковано: 21 лютого 2015 15 кубов котельная. Посилання на коментар Поділитися на інших сайтах More sharing options...
ПГС-Проект Опубліковано: 21 лютого 2015 Поділитись Опубліковано: 21 лютого 2015 А в каком ДБНе это смотреть? Особенно интересно про дверь наружу. ДБН В.2.5-0-2001. Да и приходится часто общатся с газовщиками.. Вот они и расказали когда-то.. А ребята они не дешевые... Добавлено через 13 минут 15 кубов котельная. Уже лучше, но.... В тамбуре места сами понимаете... а для верхней одежды шкафчик? Посилання на коментар Поділитися на інших сайтах More sharing options...
EarnestUA Опубліковано: 21 лютого 2015 Поділитись Опубліковано: 21 лютого 2015 ДБН В.2.5-0-2001. Да и приходится часто общатся с газовщиками.. Вот они и расказали когда-то.. А ребята они не дешевые... Минуточку... Это требования для установки газовых котлов, а у нас речь идет о твердотопливном. Кстати, для газового котла до 30кВт достаточно объема помещения 7.5 кубических метров согласно того же ДБН. Добавлено через 3 минуты а для верхней одежды шкафчик? Дык, шкафчик между спальнями именно для нее, родимой... Кстати, там же, у потолка, можно антресольку забабахать. Предвижу жуткий дефицит мест для хранения хлама при такой квадратуре дома. Посилання на коментар Поділитися на інших сайтах More sharing options...
ПГС-Проект Опубліковано: 21 лютого 2015 Поділитись Опубліковано: 21 лютого 2015 Минуточку... Это требования для установки газовых котлов, а у нас речь идет о твердотопливном. Кстати, для газового котла до 30кВт достаточно объема помещения 7.5 кубических метров согласно того же ДБН. Вы сделайте человеку проект, но с таким условием- если будут проблемы с газовщиками и т.п. финансовые обязательства лягут на Вас. Придется сделать не одну пару-тройку проектов что-бы возместить данное художество! Да и заказчику в глаза потом посмотреть будет как-то не очень. А он сделает вывод и напишет положительный отзыв О нормах для котельной для жилого дома писалось на форуме очень много. Посилання на коментар Поділитися на інших сайтах More sharing options...
EarnestUA Опубліковано: 21 лютого 2015 Поділитись Опубліковано: 21 лютого 2015 Вы сделайте человеку проект, но с таким условием- если будут проблемы с газовщиками и т.п. финансовые обязательства лягут на Вас. Придется сделать не одну пару-тройку проектов что-бы возместить данное художество! Да и заказчику в глаза потом посмотреть будет как-то не очень. А он сделает вывод и напишет положительный отзыв О нормах для котельной для жилого дома писалось на форуме очень много. Ну, не надо так нервничать. Я ни разу не архитектор и никому проект делать не собираюсь. Человек попросил какую-нибудь планировку - я ему сделал прикидку. Потому что сам думаю на эту тему и интересуюсь этим вопросом. Мне непонятна ваша реакция. Вы дали мне ссылку на ДБН, я процитировал этот документ в той части, которая нас интересует, а вы мне про какие-о финансовые обязательства... Посилання на коментар Поділитися на інших сайтах More sharing options...
ПГС-Проект Опубліковано: 21 лютого 2015 Поділитись Опубліковано: 21 лютого 2015 Ну, не надо так нервничать. Я ни разу не архитектор и никому проект делать не собираюсь. Человек попросил какую-нибудь планировку - я ему сделал прикидку. Потому что сам думаю на эту тему и интересуюсь этим вопросом. Мне непонятна ваша реакция. Вы дали мне ссылку на ДБН, я процитировал этот документ в той части, которая нас интересует, а вы мне про какие-о финансовые обязательства... Люди всегда учатся на своих ошибках.. Пройдите этот "путь" от и до... И все поймете.. Нервничать не собирался- скорее даже на оборот... Посилання на коментар Поділитися на інших сайтах More sharing options...
EarnestUA Опубліковано: 21 лютого 2015 Поділитись Опубліковано: 21 лютого 2015 Люди всегда учатся на своих ошибках.. Пройдите этот "путь" от и до... И все поймете.. Для себя я давно понял что чем больше знаешь - тем меньше платишь. Поэтому предпочитаю получать информацию из официальных документов. Когда знаешь нормы - хотелки газовщиков, пожарных и прочих взятковымагателей резко сдуваются... Посилання на коментар Поділитися на інших сайтах More sharing options...
ПГС-Проект Опубліковано: 21 лютого 2015 Поділитись Опубліковано: 21 лютого 2015 Для себя я давно понял что чем больше знаешь - тем меньше платишь. Поэтому предпочитаю получать информацию из официальных документов. Когда знаешь нормы - хотелки газовщиков, пожарных и прочих взятковымагателей резко сдуваются... И когда эти действующие нормы применяешь в проектировании дома это явный успех... Посилання на коментар Поділитися на інших сайтах More sharing options...
EarnestUA Опубліковано: 21 лютого 2015 Поділитись Опубліковано: 21 лютого 2015 И когда эти действующие нормы применяешь в проектировании дома это явный успех... Кто бы спорил, а я не буду... А все-таки, требования для помещения под твердотопливный котел какими нормами устанавливаются? Надо же соответствовать... ;) Посилання на коментар Поділитися на інших сайтах More sharing options...
ПГС-Проект Опубліковано: 21 лютого 2015 Поділитись Опубліковано: 21 лютого 2015 Кто бы спорил, а я не буду... А все-таки, требования для помещения под твердотопливный котел какими нормами устанавливаются? Надо же соответствовать... ;) Не скажу 1 Посилання на коментар Поділитися на інших сайтах More sharing options...
EarnestUA Опубліковано: 21 лютого 2015 Поділитись Опубліковано: 21 лютого 2015 Не скажу Эх, вот так всегда... Придется это сакральное знание искать самостоятельно... Посилання на коментар Поділитися на інших сайтах More sharing options...
Vladimir_1981 Опубліковано: 21 лютого 2015 Поділитись Опубліковано: 21 лютого 2015 Посмотрите мой, если интересно он правда не 1-но этажный и без тех помещения, но думаю может что-то понравится. Посилання на коментар Поділитися на інших сайтах More sharing options...
ПГС-Проект Опубліковано: 21 лютого 2015 Поділитись Опубліковано: 21 лютого 2015 Эх, вот так всегда... Придется это сакральное знание искать самостоятельно... Кто ищет- тот Всегда находит. Посилання на коментар Поділитися на інших сайтах More sharing options...
EarnestUA Опубліковано: 21 лютого 2015 Поділитись Опубліковано: 21 лютого 2015 Кто ищет- тот Всегда находит. Угу, нашел. Для ТТ-котлов размер помещения не нормируется. Посилання на коментар Поділитися на інших сайтах More sharing options...
Рекомендовані повідомлення
Створіть акаунт або увійдіть у нього для коментування
Ви маєте бути користувачем, щоб залишити коментар
Створити акаунт
Зареєструйтеся для отримання акаунта. Це просто!
Зареєструвати акаунтУвійти
Вже зареєстровані? Увійдіть тут.
Увійти зараз