mamanik Опубліковано: 17 березня 2015 Поділитись Опубліковано: 17 березня 2015 (змінено) Добрый день всем! Нахожусь на стадии подготовки к возведению стен, фундамент залит осенью 2014 года. Начинаю планировать дизайн комнат и думать о закупке материалов на отделку( кафель...). Из мебели в гостиной диван угловой будем забирать из квартиры. Плитку и декор для пола уже купила такую www.mirpamesa.com/2013/07/cersaie-2013-1.html ( в гостиной не могу правильно/симметрично камину и выходу на террасу разложить окантовку панно,поэтому купила только центральную часть без клеточки). Камин ставлю по стенке смежной гостиная/гостевая спальня, вход в спальню будет через потайную дверь-стеллаж. И вот и сам проект, который делался на основе этого домика Прошу рациональных советов по оптимизации проекта с учетом того что фундамент уже есть. Сама вижу что холл узковат, но переделывать наверное не буду. Змінено 17 березня 2015 користувачем mamanik не знаю как перевернуть картинку Посилання на коментар Поділитися на інших сайтах More sharing options...
mamanik Опубліковано: 17 березня 2015 Автор Поділитись Опубліковано: 17 березня 2015 Прошу прощения, не правильно загрузила картинку, попытаюсь исправить Посилання на коментар Поділитися на інших сайтах More sharing options...
ПГС-Проект Опубліковано: 17 березня 2015 Поділитись Опубліковано: 17 березня 2015 Обратитесь к архитектору который делал Вам эскизный проект.. Посилання на коментар Поділитися на інших сайтах More sharing options...
mamanik Опубліковано: 17 березня 2015 Автор Поділитись Опубліковано: 17 березня 2015 Архитектор сделал что смог, и ему огромное спасибо, что выдержал меня с кучей моих идей, просто подумала что есть люди у кого глаз наметан и видят то что не вижу я. Спасибо за комментарий. Посилання на коментар Поділитися на інших сайтах More sharing options...
ПГС-Проект Опубліковано: 17 березня 2015 Поділитись Опубліковано: 17 березня 2015 А конструктор участвовал в разработке? Иными словами: у Вас только эскиз? Посилання на коментар Поділитися на інших сайтах More sharing options...
mamanik Опубліковано: 17 березня 2015 Автор Поділитись Опубліковано: 17 березня 2015 да 'эскиз, конструктивную часть должен предоставить в ближайшее время. Посилання на коментар Поділитися на інших сайтах More sharing options...
sashkaa Опубліковано: 17 березня 2015 Поділитись Опубліковано: 17 березня 2015 да 'эскиз, конструктивную часть должен предоставить в ближайшее время. и что вы желает узнать, получите конструкции и спецификации, и как говорят дерзайте. Посилання на коментар Поділитися на інших сайтах More sharing options...
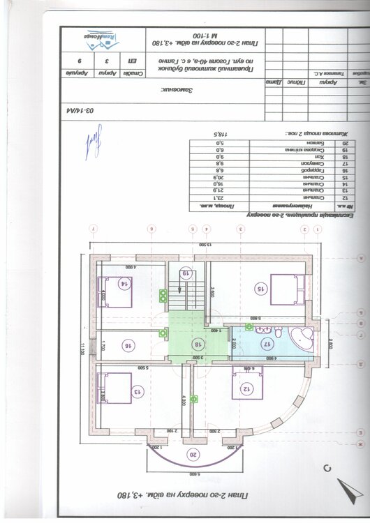
mamanik Опубліковано: 17 березня 2015 Автор Поділитись Опубліковано: 17 березня 2015 Интересует где что еще можно изменить из позиции функциональности, беспокоит будет ли удобен угловой вход из холла в гостиную, не мало ли места на камин, оставить камин там где есть или перенести по центру стены.Ванную на 2 этаже чуть разширю, за счет одной из спален, правильно ли расположила окна, не темно ли будет если окна по северо-западной стене не делать вообще как в проекте,кроме гардеробной? Короче куча сомнений и вопросов, пишите что не нравиться и что будет по вашему мнению не удобным и не красивым, ну и варианты как это исправить. Спасибо всем заранее. Посилання на коментар Поділитися на інших сайтах More sharing options...
mamanik Опубліковано: 23 березня 2015 Автор Поділитись Опубліковано: 23 березня 2015 Не понимаю,Неужели все так плохо, если нет желающих писать в моей теме? Посилання на коментар Поділитися на інших сайтах More sharing options...
Drosselbeere Опубліковано: 23 березня 2015 Поділитись Опубліковано: 23 березня 2015 возможно все на оборот, все у вас хорошо и писать не стоит двигать перегородки вы можете не зависимо от фундамента под несущие стены. попробуйте сформулировать вопросы иначе, может кто и отзовется 1 Посилання на коментар Поділитися на інших сайтах More sharing options...
Рекомендовані повідомлення
Створіть акаунт або увійдіть у нього для коментування
Ви маєте бути користувачем, щоб залишити коментар
Створити акаунт
Зареєструйтеся для отримання акаунта. Це просто!
Зареєструвати акаунтУвійти
Вже зареєстровані? Увійдіть тут.
Увійти зараз