Vitaliy_Goy Опубліковано: 15 квітня 2015 Поділитись Опубліковано: 15 квітня 2015 Порекомендуйте фундамент под кирпичный дом (1этаж) и газоблок д400 (2 этаж). Перекрытие скорее всего пустотелые плиты (если с размерами получиться) или монолит. Утепление 150мм (аерок енерджи). Думаю сделать скрытую отмостку и на 1 метр немного утеплить. Мое виденье фундамента. Под землю 1,2 метра и над землей 0,5 метра Посилання на коментар Поділитися на інших сайтах More sharing options...
Сергей НСТ Опубліковано: 15 квітня 2015 Поділитись Опубліковано: 15 квітня 2015 Мое виденье фундамента. Неправильно. Выступы пятки обламаются и дом сядет. Внизу д.б. именно сетка из продольных и поперечных стержней. Объемный каркас стен фундамента д.б. с хомутами из катанки., иначе просто арматуру не уложите, да и косые напряжения воспринимать нечему... Посилання на коментар Поділитися на інших сайтах More sharing options...
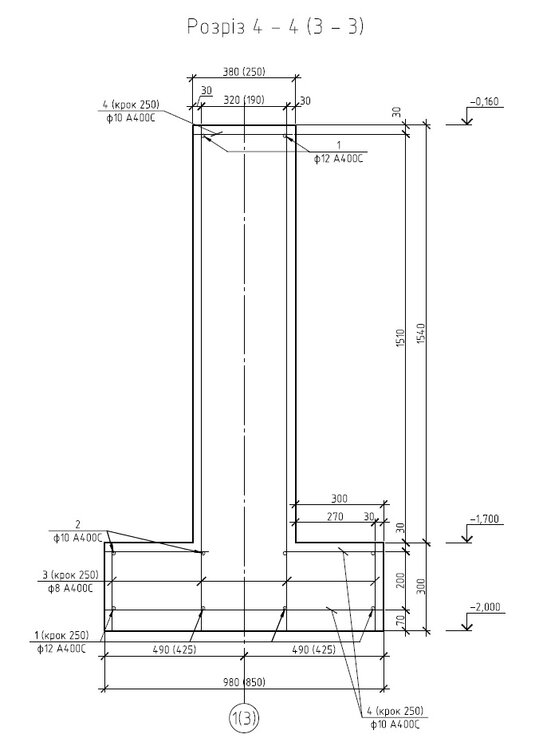
Vitaliy_Goy Опубліковано: 15 квітня 2015 Автор Поділитись Опубліковано: 15 квітня 2015 Неправильно. Выступы пятки обламаются и дом сядет. Внизу д.б. именно сетка из продольных и поперечных стержней. Объемный каркас стен фундамента д.б. с хомутами из катанки., иначе просто арматуру не уложите, да и косые напряжения воспринимать нечему... На рисунке не показал, но арматура 12 и 10 диаметров скреплена поперечно и поперек арматурой 8 диаметра с шагом 250мм. А в принципе - заглубление, ширина, размеры ленты и пятки правильны? Посилання на коментар Поділитися на інших сайтах More sharing options...
Сергей НСТ Опубліковано: 15 квітня 2015 Поділитись Опубліковано: 15 квітня 2015 А в принципе - заглубление, ширина, размеры ленты и пятки правильны? Понятия не имею :D Это может сказать только конструктор, просчитав нагрузки на Ваш фундамент и изучив геологию. Проект стоит денег, не экономьте. Посилання на коментар Поділитися на інших сайтах More sharing options...
Vitaliy_Goy Опубліковано: 15 квітня 2015 Автор Поділитись Опубліковано: 15 квітня 2015 Понятия не имею :D Это может сказать только конструктор, просчитав нагрузки на Ваш фундамент и изучив геологию. Проект стоит денег, не экономьте. не сэкономил, консультируюсь. Проект есть, хочу услышать предложения и мнение других знающих людей. Позже сделаю скан копию и выложу тут (то что нарисовал архитектор). 1 Посилання на коментар Поділитися на інших сайтах More sharing options...
Dandik Опубліковано: 16 квітня 2015 Поділитись Опубліковано: 16 квітня 2015 Порекомендуйте фундамент под кирпичный дом (1этаж) и газоблок д400 (2 этаж). Перекрытие скорее всего пустотелые плиты (если с размерами получиться) или монолит. Утепление 150мм (аерок енерджи). Думаю сделать скрытую отмостку и на 1 метр немного утеплить. Мое виденье фундамента. Под землю 1,2 метра и над землей 0,5 метра [ATTACH]428943[/ATTACH][ATTACH]428948[/ATTACH][ATTACH]428949[/ATTACH] Как минимум выложите вот такую табличку раз уж сделали геологию. А также планы дома + фасады. Тогда можно будет что-то рекомендовать и смотреть нагрузки на фундамент. 2 Посилання на коментар Поділитися на інших сайтах More sharing options...
Slavk0 Опубліковано: 17 квітня 2015 Поділитись Опубліковано: 17 квітня 2015 Если вы хотите услышать точный и правильный ответ - нужен просчёт всей конструкции дома с последующим определением нагрузки на фундамент. А затем расчёт фундамента. А так, по Вашим рисункам не то, ищите конструктора. Посилання на коментар Поділитися на інших сайтах More sharing options...
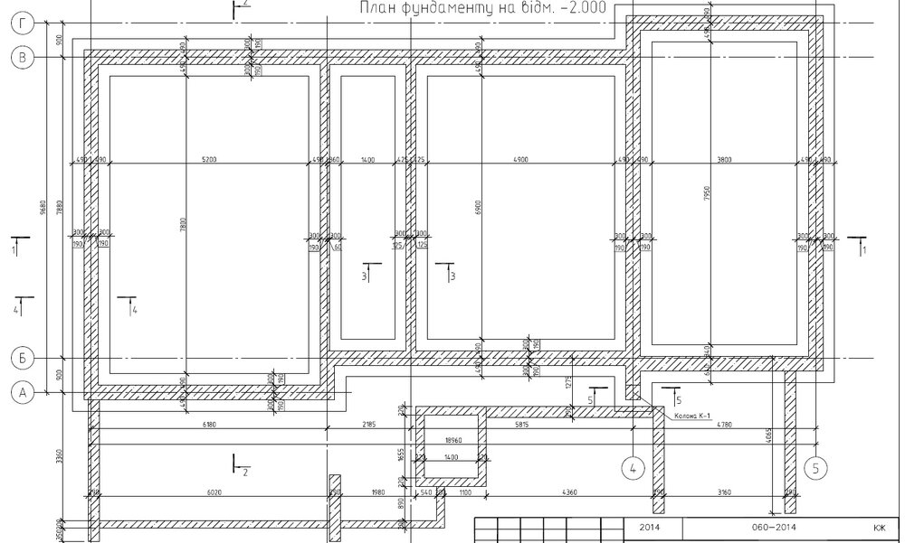
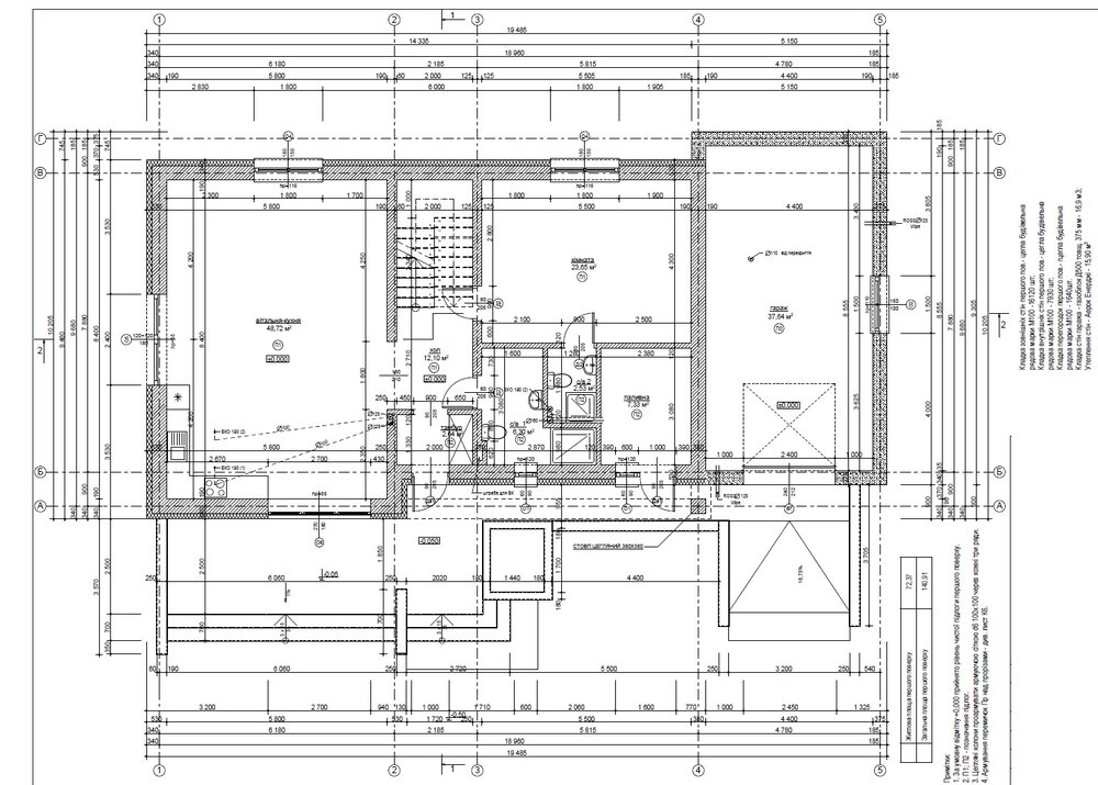
Vitaliy_Goy Опубліковано: 17 квітня 2015 Автор Поділитись Опубліковано: 17 квітня 2015 Как минимум выложите вот такую табличку [ATTACH]429342[/ATTACH] раз уж сделали геологию. А также планы дома + фасады. Тогда можно будет что-то рекомендовать и смотреть нагрузки на фундамент. Таблички Опешу словесно так как немного уменьшили здание (убрали выступающие закутки): это прямоугольник 8м на 14м. Несущие стены полнотелый кирпич 38см, 2 несущие перегородки полнотелый кирпич 25см. Утепление 15см газоблок. Высота потолков первого этажа 3,1м, второй этаж мансардный с высотой наружных стен 1,5 метра. Перекрытие пустотелые плиты или монолитное(по проекту) (пока думаю). Внутренняя отделка штукатурка и Г/К, лестница деревянная. Крыша 26-27 градусов, утепление 30см, битумная на сплошной доске толщиной 3-3,2 см. Посилання на коментар Поділитися на інших сайтах More sharing options...
alexandrius Опубліковано: 17 квітня 2015 Поділитись Опубліковано: 17 квітня 2015 Таблички Странные данные. Три почти одинаковых по характристикам суглинка с Ip=0,09...0,11. При этом один тугопластичный (что похоже на правду) и два вдруг мягкопластичных (что сомнительно при таких показателях). Ширина ленты в 1м для данного случая - это явно с запасом. 8 продольных ниток диаметрам 10 и 12мм - достаточно. 8-ки с шагом 250 поперек продольного армирования - тоже явно хватит. 1 Посилання на коментар Поділитися на інших сайтах More sharing options...
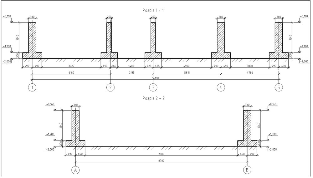
Vitaliy_Goy Опубліковано: 17 квітня 2015 Автор Поділитись Опубліковано: 17 квітня 2015 Странные данные. Три почти одинаковых по характристикам суглинка с Ip=0,09...0,11. При этом один тугопластичный (что похоже на правду) и два вдруг мягкопластичных (что сомнительно при таких показателях). Ширина ленты в 1м для данного случая - это явно с запасом. 8 продольных ниток диаметрам 10 и 12мм - достаточно. 8-ки с шагом 250 поперек продольного армирования - тоже явно хватит. В том то и вопрос можно ли сделать пятку шириной 1 метр высотой 30см, а вот ширину ленты 38-40 см с общем заглублением (лента + пятка) 1,2 метра и цоколем 50см? Посилання на коментар Поділитися на інших сайтах More sharing options...
Dandik Опубліковано: 17 квітня 2015 Поділитись Опубліковано: 17 квітня 2015 Таблички [ATTACH]429422[/ATTACH][ATTACH]429423[/ATTACH][ATTACH]429424[/ATTACH] Опешу словесно так как немного уменьшили здание (убрали выступающие закутки): это прямоугольник 8м на 14м. Несущие стены полнотелый кирпич 38см, 2 несущие перегородки полнотелый кирпич 25см. Утепление 15см газоблок. Высота потолков первого этажа 3,1м, второй этаж мансардный с высотой наружных стен 1,5 метра. Перекрытие пустотелые плиты или монолитное(по проекту) (пока думаю). Внутренняя отделка штукатурка и Г/К, лестница деревянная. Крыша 26-27 градусов, утепление 30см, битумная на сплошной доске толщиной 3-3,2 см. Предварительный расчет сопротивления грунта Предварительный расчет подошвы фундамента при предварительной нагрузки с запасом 11т на м.п. фундамента. В вашем случае не увидев проект сложно судить, но предварительно нагрузка у вас на фундамент будет около 8т, а не 11т. Даже при нагрузке в 11т ширина подошвы 60см. Советую пересмотреть решение о подошве в 1м, а еще лучше просите вашего архитектора "инженера" обосновать своё решение. Вообще если есть человек который Вам делает проект, то логично задавать вопросы ему. Посилання на коментар Поділитися на інших сайтах More sharing options...
sashkaa Опубліковано: 17 квітня 2015 Поділитись Опубліковано: 17 квітня 2015 Предварительный расчет сопротивления грунта [ATTACH]429440[/ATTACH] Предварительный расчет подошвы фундамента при предварительной нагрузки с запасом 11т на м.п. фундамента. [ATTACH]429441[/ATTACH] В вашем случае не увидев проект сложно судить, но предварительно нагрузка у вас на фундамент будет около 8т, а не 11т. Даже при нагрузке в 11т ширина подошвы 60см. Советую пересмотреть решение о подошве в 1м, а еще лучше просите вашего архитектора "инженера" обосновать своё решение. Вообще если есть человек который Вам делает проект, то логично задавать вопросы ему. Покажите еще расчет осадки здания, у вас пока его нет. около 8, я только от материала стены посчитал: =1,8т/мкуб*3,1м*0,38м*1,1+0,5*1,5*0,4*1,1+1,4*4,6*0,04*1,3=3т. + вес перекрытия, пол, полезная. Крыша. Все это без планировок гадать не буду. Но учитывая жб перекрытия будет больше 10 т. Посилання на коментар Поділитися на інших сайтах More sharing options...
woody-ru Опубліковано: 17 квітня 2015 Поділитись Опубліковано: 17 квітня 2015 Посмотрите видео - много вопросов отпадет например как сделать широкую пятку при узкой ленте. Посилання на коментар Поділитися на інших сайтах More sharing options...
Dandik Опубліковано: 17 квітня 2015 Поділитись Опубліковано: 17 квітня 2015 Покажите еще расчет осадки здания, у вас пока его нет Поэтому расчет и называется предварительный, а не окончательный. У меня и проекта нет и ТЗ. Чтоб показать усадку здания, её еще посчитать надо, а я не заинтересованное лицо;) 1 Посилання на коментар Поділитися на інших сайтах More sharing options...
sashkaa Опубліковано: 17 квітня 2015 Поділитись Опубліковано: 17 квітня 2015 Поэтому расчет и называется предварительный, а не окончательный. У меня и проекта нет и ТЗ. Чтоб показать усадку здания, её еще посчитать надо, а я не заинтересованное лицо;) Я так понимаю там проект есть, но появились какие то сомнения. Подозреваю аховых перерасходов там нет 1 Посилання на коментар Поділитися на інших сайтах More sharing options...
Vitaliy_Goy Опубліковано: 17 квітня 2015 Автор Поділитись Опубліковано: 17 квітня 2015 Критичного перерасхода нет. Подушку (пятку) хочу оставить 1м (98см), но вот ленту хочу уменьшить с 1,7м до 1,4м. Конструктор как то долго думает. Решил проконсультироваться на форуме. Посилання на коментар Поділитися на інших сайтах More sharing options...
sashkaa Опубліковано: 17 квітня 2015 Поділитись Опубліковано: 17 квітня 2015 Смотрите высота той ленты зависит как бы от вертикалки участка. Котлован выкопан, думаю нет. Вот от него и "0" участка будете плясать. подсмотрел планировки ваши, подумайте о размере ворот 2,4 метра считаю маловато при таком размере гаража. У вас вполне комфортнее будут 2,75, а то и 3 Посилання на коментар Поділитися на інших сайтах More sharing options...
Vitaliy_Goy Опубліковано: 17 квітня 2015 Автор Поділитись Опубліковано: 17 квітня 2015 Смотрите высота той ленты зависит как бы от вертикалки участка. Котлован выкопан, думаю нет. Вот от него и "0" участка будете плясать. подсмотрел планировки ваши, подумайте о размере ворот 2,4 метра считаю маловато при таком размере гаража. У вас вполне комфортнее будут 2,75, а то и 3 Перепад около 80см. Участок будет подсыпаться до самой высокой точки и утепляться (отмостка с утепление пенополистерол 5см или 10см + мембрана + геотекстиль). По поводу высоты ленты буду у архитектора выяснять дальше, но вроде говорит, что возможно. По поводу ворот - спасибо, учту! Посилання на коментар Поділитися на інших сайтах More sharing options...
sashkaa Опубліковано: 17 квітня 2015 Поділитись Опубліковано: 17 квітня 2015 В строительстве нет ничего невозможного, есть только стоимость реализации. Еще раз высота ленты у вас может быть больше или меньше после выноса проекта в "натуру". Если не проводили еще земляных работ то что гадать. Задайте для предв. сметы +20 процентов на всякий случай. Впишитесь. Перенесете в другие работы. Лучше сразу заложить в голове, чем потом нервничать Посилання на коментар Поділитися на інших сайтах More sharing options...
Рекомендовані повідомлення
Створіть акаунт або увійдіть у нього для коментування
Ви маєте бути користувачем, щоб залишити коментар
Створити акаунт
Зареєструйтеся для отримання акаунта. Це просто!
Зареєструвати акаунтУвійти
Вже зареєстровані? Увійдіть тут.
Увійти зараз