sashkaa Опубліковано: 17 квітня 2015 Поділитись Опубліковано: 17 квітня 2015 В Осещине на первом штыке лопаты будет вода. закапывать такое -- не вариант. ну или если хочется закопать денег в гидроизоляцию У всех моих соседей есть цокольные помещения, Осещина. 1,3 метра воды нет. По геологии в паводок может быть и на поверхности. но они как то не страдают 1 Посилання на коментар Поділитися на інших сайтах More sharing options...
poisonik Опубліковано: 17 квітня 2015 Поділитись Опубліковано: 17 квітня 2015 Кстати тоже проголосую за увеличение ширины дома. Она просится прямо. Строить дом на не самом маленьком участке, и так потом постоянно теснится... Я бы отталкивался от балок, стандартные вроде 6 метров - Вот и отталкиватся от этого размера, оставить на выносы сколько там положено, и получится в итоге 5.30-5.50, как-то так... 1 Посилання на коментар Поділитися на інших сайтах More sharing options...
don75 Опубліковано: 17 квітня 2015 Автор Поділитись Опубліковано: 17 квітня 2015 ... Такой уклон наверное подойдет крыше из металлопрофиля с единым куском на весь скат. .... Этот вариант тоже рассматриваю. Вообще по крыше много вопросов..., очень много. Добавлено через 19 минут вот я бы строил дом для того, чтобы не приходилось совмещать гладильную доску, столешницу и, упаси Господи, сушилку для белья. а еще и шкаф... ну вот просто представьте себе, как вы этим геморроем будете пользоваться. и это все на таком шикарном участке. Все будет хорошо. Так что бы был понятен ген план всего участка. Как и писАл, там два участка. На данном этапе строится собираюсь на правом (умышленно участки не объединяю ни в каких смыслах), чем решаю свой жилищный вопрос. Если появятся деньги, то под застройку пойдет и левый участок все уже нарисовано (притом рисовалось в первую очередь, но по финансам... стараюсь быть реалистом). А "Салями" при таком раскладе может стать моей пенсией, буду сдавать. Ну а если нет, готов встретить старость и в такой тесноте. Поскольку все под одной крышей, фундамент стены, крыша, окна двери, потом занимаюсь микродомиком, а баня пока ждет. Буду видеть, что по финансам справляюсь, и баню тоже. Добавлено через 4 минуты И двери тоже проем 2,20 метра - как будет выглядеть дверь? если двухстворчатая - то будем максимально дорогая (створка 1,1 метра), если на три части - рагульская узкая створка в общем - простите, но нужно проект еще лобзиком допилить, но его идея - оч и очень Тань, 2,20м это окно:D А проект, да, пилить и пилить! Добавлено через 6 минут В Осещине на первом штыке лопаты будет вода. закапывать такое -- не вариант. ну или если хочется закопать денег в гидроизоляцию Все верно, 2010г и после знаменитого снежного марта, на участках, что чуть ниже моего - чавкало. Поэтому ниже уровня земли никаких помещений, к сожалению, не планирую, просто исключено. Это цена за жизнь на почти острове:D Посилання на коментар Поділитися на інших сайтах More sharing options...
Татьяна5 Опубліковано: 17 квітня 2015 Поділитись Опубліковано: 17 квітня 2015 О, а из окна просится дверь )))) Берём тарелку и несем её через этот микроузкий коридорчик, не, точно расширять 1 Посилання на коментар Поділитися на інших сайтах More sharing options...
don75 Опубліковано: 17 квітня 2015 Автор Поділитись Опубліковано: 17 квітня 2015 (змінено) Подскажите, где мне на участке септик делать, где скважину бить, и где уличный туалет разместить? Добавлено через 2 минуты О, а из окна просится дверь )))) Берём тарелку и несем её через этот микроузкий коридорчик, не, точно расширять Не..., партизаны не сдаются Змінено 17 квітня 2015 користувачем don75 добавил Посилання на коментар Поділитися на інших сайтах More sharing options...
Музей Опубліковано: 18 квітня 2015 Поділитись Опубліковано: 18 квітня 2015 совмещать гладильную доску, столешницу и Важно добавить, что современные утюги "убьют" Вашу столешницу в первый же раз такого совмещения. Добавлено через 54 секунды где уличный туалет разместить? Посилання на коментар Поділитися на інших сайтах More sharing options...
Музей Опубліковано: 18 квітня 2015 Поділитись Опубліковано: 18 квітня 2015 Не..., партизаны не сдаются Нет так нет. Но, жить в загородном доме и не иметь возможности завтракать на террасе - полный отстой. Подумайте над таким вариантом. Если дом расширить, то это уже не будет "Салями". Просто узкий дом и всё. На визуализациях, к сожалению, теряется черный цвет. Поэтому, выглядит всё не совсем так, как на самом деле. Если хотите, сброшу Вам архикадовский файлик. Вертите свой домик сколько хлотите. 1 Посилання на коментар Поділитися на інших сайтах More sharing options...
don75 Опубліковано: 18 квітня 2015 Автор Поділитись Опубліковано: 18 квітня 2015 Нет так нет. Но, жить в загородном доме и не иметь возможности завтракать на террасе - полный отстой. Подумайте над таким вариантом. Если дом расширить, то это уже не будет "Салями". Просто узкий дом и всё. На визуализациях, к сожалению, теряется черный цвет. Поэтому, выглядит всё не совсем так, как на самом деле. Если хотите, сброшу Вам архикадовский файлик. Вертите свой домик сколько хлотите. Почему "не иметь возможности завтракать на террасе"? Как раз наоборот. Ваш вариант -классный. К сожалению все, что смог освоить из 3д это гуглскетчап (как раз для таких "дремучих", как я). Архикад, боюсь, не одолею. С удовольствием бы взял файлик. Посилання на коментар Поділитися на інших сайтах More sharing options...
Музей Опубліковано: 18 квітня 2015 Поділитись Опубліковано: 18 квітня 2015 С удовольствием бы взял файлик Дайте электронку. Я вышлю. Думаю функцию "передвинуть" и "повернуть" Вы сумеете освоить. ПыСы Строить без полноценного проекта и грамотного проекта, не имея возможности вертеть домик в 3-д, сложно. Но, это моё мнение. стеновой материал? 1 Посилання на коментар Поділитися на інших сайтах More sharing options...
don75 Опубліковано: 18 квітня 2015 Автор Поділитись Опубліковано: 18 квітня 2015 Дайте электронку. Я вышлю. Думаю функцию "передвинуть" и "повернуть" Вы сумеете освоить. ПыСы Строить без полноценного проекта и грамотного проекта, не имея возможности вертеть домик в 3-д, сложно. Но, это моё мнение. стеновой материал? Электронка в личке. По поводу проекта - согласен. Скетчап вертит в 3д Газоблок 400мм. Спасибо p.s. Кажется, я нашел возможность ширину колбасы увеличить с 3700мм до 4000мм (+300мм). Посилання на коментар Поділитися на інших сайтах More sharing options...
irobots Опубліковано: 19 квітня 2015 Поділитись Опубліковано: 19 квітня 2015 p.s. Кажется, я нашел возможность ширину колбасы увеличить с 3700мм до 4000мм (+300мм). А что мешает увеличить до 4500 или 5000? ;) Если дело в стандартной доске в 6 м то воспользуйтесь кобылками - они совсем не напрягают. Посилання на коментар Поділитися на інших сайтах More sharing options...
don75 Опубліковано: 19 квітня 2015 Автор Поділитись Опубліковано: 19 квітня 2015 А что мешает увеличить до 4500 или 5000? ;) Если дело в стандартной доске в 6 м то воспользуйтесь кобылками - они совсем не напрягают. Религия:D (шутЮ) Я и так "сдался" на 30 см. Посилання на коментар Поділитися на інших сайтах More sharing options...
irobots Опубліковано: 19 квітня 2015 Поділитись Опубліковано: 19 квітня 2015 Религия:D (шутЮ) Я и так "сдался" на 30 см. Ну уже заметно лучше! тут даже 30см играют огромную роль. Все же перед тем как приступать к фундаменту постарайтесь найти реальный хороший интерьер в таких размерах. Что-то мне кажется, что интерьеры будут или журнальные в стиле минимализма, мало имеющие общего с реальной жизнью (доя нормальной жизни гаджеты обойдутся дороже всего вашего дома), либо выживальщиков, у которых не жизнь, а выживание в коммуналке, с беспросветной безысходностью. Зачем себе осознанно создавать такие трудности мне совсем непонятно. Эта мнимая экономия вылезет боком и доп. затратами. 2 Посилання на коментар Поділитися на інших сайтах More sharing options...
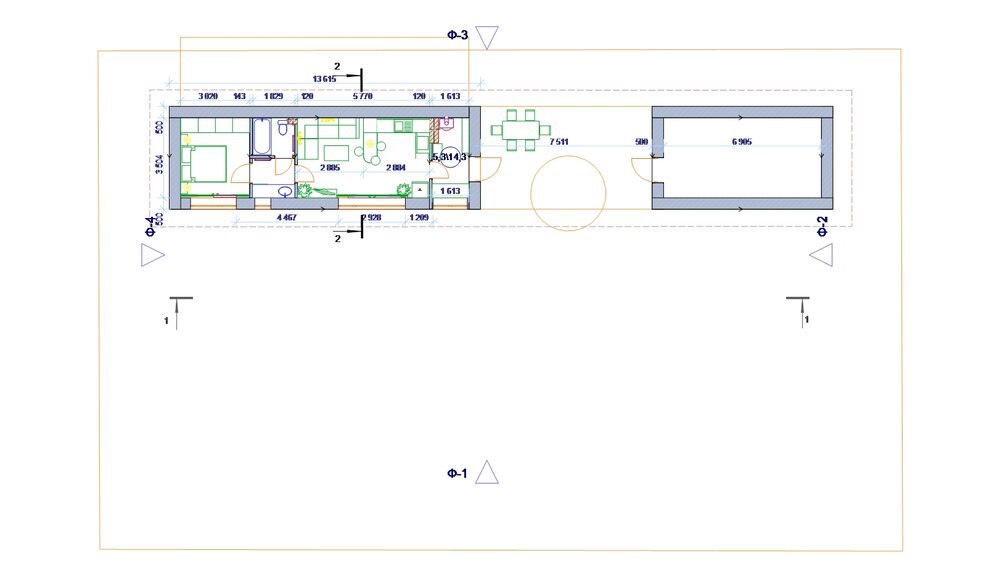
don75 Опубліковано: 23 квітня 2015 Автор Поділитись Опубліковано: 23 квітня 2015 Планировка с увеличенной на 30см шириной. Два варианта бани. Подскажите какой лучше? 1. 2. Посилання на коментар Поділитися на інших сайтах More sharing options...
Татьяна5 Опубліковано: 23 квітня 2015 Поділитись Опубліковано: 23 квітня 2015 все проемы дверей ставьте хотя бы 90 см по проему, в такое ставится дверь с 80-м полотном - не много, но боль-менее проем 75 см - 70-ка полотно не станет, а 60-ка будет болтаться (60-ки ставят в туалеты хрущевок) если выходы на террасу из металлопластика - ставьте проем 1 метр, так как за вычетом импостов реальный размер дверной створки будет не более 85 см, что уже оч скромно для входной двери 1 Посилання на коментар Поділитися на інших сайтах More sharing options...
don75 Опубліковано: 24 квітня 2015 Автор Поділитись Опубліковано: 24 квітня 2015 (змінено) Исправил дверные проемы. Красным обозначена, не знаю как правильно называется, типа буржуйки на дровах с готовочной поверхностью, в случае чего топить и приготовить на ней. Как нарисовать (размеры) дымоход с вент каналами. Баня.Рядом вариант планировки (зеркальный). Не знаю какой лучше. Наверное, то что сейчас. Добавлено через 1 час 59 минут Сдается мне, что я не в том месте именно эту тему создал. Надо, наверное, было в "Проекты домов и архитектурные решения". Кого просить, что бы перенесли? Спасибо. Змінено 24 квітня 2015 користувачем don75 Посилання на коментар Поділитися на інших сайтах More sharing options...
don75 Опубліковано: 24 квітня 2015 Автор Поділитись Опубліковано: 24 квітня 2015 Баня мне нравится, теперь можно и вдвоем там поместиться И не скучно будет. Электрическая каменка рулит, я бы не связывался с дровяной больше. Маю вже. В одноэтажном доме можно обойтись и без большого дымаря с вентканалами. От печки есть варианты шидель или утепленный сендвич. Вентканалы можно вевести на кровлю через проходки Vilpe или типа их. Можно в стену просто выйти вентканалами из влажных помещений и не трогать кровлю. А почему? "...Электрическая каменка рулит, я бы не связывался с дровяной больше...", думал как раз о дровяной. Поскольку свою односкатную крышу хочу делать с минимально возможным уклоном (скорее всего из профлиста без горизонтальных швов на всю длину ската), не хотелось бы ее дырявить лишний раз, по крайней мере в плоскости над самим помещением. Может каминопечь (не знаю как правильно ее назвать) перенести к северной стене и вывести утепленный сендвич через стену на улицу и провести через крышу, но вне пятна самого дома? Посилання на коментар Поділитися на інших сайтах More sharing options...
don75 Опубліковано: 29 квітня 2015 Автор Поділитись Опубліковано: 29 квітня 2015 ...Я отодвинул бы от заднего забора метров на 5-6... Отодвинул, теперь 4,5м до забора. Представляете, вспомнил, что я в настольный теннис люблю "рубИться". Это нужная ширина. Будет еще турничок с брусьями и еще, и еще.... И как многие правильно тут заметили, бассейн передвинул на юг, пусть солнышко греет. Соответственно переместил дверь в баню, и планировку бани зазеркалил 4 Посилання на коментар Поділитися на інших сайтах More sharing options...
don75 Опубліковано: 28 березня 2017 Автор Поділитись Опубліковано: 28 березня 2017 Приветствую всех! Вернусь в тему) 1 Посилання на коментар Поділитися на інших сайтах More sharing options...
БеLка Опубліковано: 28 березня 2017 Поділитись Опубліковано: 28 березня 2017 Приветствую всех! Вернусь в тему) Ждем, осуществился проект "Салями"??? 2 Посилання на коментар Поділитися на інших сайтах More sharing options...
don75 Опубліковано: 31 березня 2017 Автор Поділитись Опубліковано: 31 березня 2017 Реализация в процессе. Чистая коробка уже есть. Позже выберу время и отчитаюсь. Ширина по внутренним стенам стала 420см. 2 Посилання на коментар Поділитися на інших сайтах More sharing options...
БеLка Опубліковано: 31 березня 2017 Поділитись Опубліковано: 31 березня 2017 Реализация в процессе. Чистая коробка уже есть. Позже выберу время и отчитаюсь. Ширина по внутренним стенам стала 420см. Фото в студию. 1 Посилання на коментар Поділитися на інших сайтах More sharing options...
totus72 Опубліковано: 14 вересня 2017 Поділитись Опубліковано: 14 вересня 2017 Апну топик, знаю точно ТС почти реализовал эти планы. А где же фотки реализации "салями"? 4 Посилання на коментар Поділитися на інших сайтах More sharing options...
don75 Опубліковано: 8 листопада 2017 Автор Поділитись Опубліковано: 8 листопада 2017 Рома, будут))) Роман, кстати делал мне электрику. Рекомендую) Добавлено через 15 минут Всем привет. Вот что по итогу было спланировано Добавлено через 12 минут фото после фасадных работ. www.stroimdom.com.ua/forum/picture.php?albumid=7630&pictureid=88711 Добавлено через 1 минуту Добавлено через 4 минуты Должно быть тепло. Утеплился 100мм белоруской ватой 135 плотности. Штукатурка барашек. Смеси Крайзель. Краска силиконовая. Старался технологию выдерживать. Посилання на коментар Поділитися на інших сайтах More sharing options...
Рекомендовані повідомлення
Створіть акаунт або увійдіть у нього для коментування
Ви маєте бути користувачем, щоб залишити коментар
Створити акаунт
Зареєструйтеся для отримання акаунта. Це просто!
Зареєструвати акаунтУвійти
Вже зареєстровані? Увійдіть тут.
Увійти зараз