lobane Опубліковано: 28 грудня 2016 Автор Поділитись Опубліковано: 28 грудня 2016 На фото, то что серей это мертель. Белые Сканмикс. Мертель мертелю рознь. Разные производители, сильно отличаются. Если полезть в теорию, то и ГПР, не совсем подходит, ГПР по сути таже смесь(чтоб совсем таже нужно ее брать там где кирпич с нее делают) только она не обожоная и характеристики у нее совсем другие, чем у обозженного кирпича. Ну и есть чисто организационные причины. ГПР по сути готовую нигде не продают, а мертель есть в продаже. Часто работаем далеко от дома а с собой не потащищь ГПР. Закащик же часто вобще не знает где по месту можно глину взять. Короче все индивидуально. По опыту на мертеле если правильный нормально стоит. Посилання на коментар Поділитися на інших сайтах More sharing options...
salix Опубліковано: 28 грудня 2016 Поділитись Опубліковано: 28 грудня 2016 На фото, то что серей это мертель. Белые Сканмикс. Мертель мертелю рознь. Разные производители, сильно отличаются. Если полезть в теорию, то и ГПР, не совсем подходит, ГПР по сути таже смесь(чтоб совсем таже нужно ее брать там где кирпич с нее делают) только она не обожоная и характеристики у нее совсем другие, чем у обозженного кирпича. Ну и есть чисто организационные причины. ГПР по сути готовую нигде не продают, а мертель есть в продаже. Часто работаем далеко от дома а с собой не потащищь ГПР. Закащик же часто вобще не знает где по месту можно глину взять. Короче все индивидуально. По опыту на мертеле если правильный нормально стоит. Если полезть в теорию глинопесчаная смесь тоже есть мертель. Посилання на коментар Поділитися на інших сайтах More sharing options...
jointhesith Опубліковано: 6 січня 2017 Поділитись Опубліковано: 6 січня 2017 На фото, то что серей это мертель. Белые Сканмикс. Мертель мертелю рознь. Разные производители, сильно отличаются. Если полезть в теорию, то и ГПР, не совсем подходит, ГПР по сути таже смесь(чтоб совсем таже нужно ее брать там где кирпич с нее делают) только она не обожоная и характеристики у нее совсем другие, чем у обозженного кирпича. Ну и есть чисто организационные причины. ГПР по сути готовую нигде не продают, а мертель есть в продаже. Часто работаем далеко от дома а с собой не потащищь ГПР. Закащик же часто вобще не знает где по месту можно глину взять. Короче все индивидуально. По опыту на мертеле если правильный нормально стоит. Насколько я помню то мертель в топке вроде как спекаеться и образует прочное соединение с огнеупором, а как он спекаеться на наружной кладке? он ведь не предназначен для таких целей и об этом намногих форумах трубят 1 Посилання на коментар Поділитися на інших сайтах More sharing options...
lobane Опубліковано: 7 січня 2017 Автор Поділитись Опубліковано: 7 січня 2017 ГПС тоже не спекается. Сейчас начнется путаница в терминологии. Выше говорили что по сути мертель и ГПС в принципе одно и тоже. Да и тотже мертель практически не спекается в топке там не те температуры (из опыта разборки и ремонта печей) Многие не правильно понимают суть применение растворов в печном деле и недостатки знаний пытаются компенсировать применением супер растворов, клеев. Я придерживаюсь мнения что нет таких супер составов которые могут удержать печь от растрескивания, термичиское расширение нечем нельзя сдержать. Поэтому нужно грамотно продумывать конструкцию печи и отдельные узлы. А раствор выполняет просто функцию герметика. Поэтому и говорят сложить печь, а не склеить. По сути можно сложить на сухую, снаружи обмазать глиной и будет работать может даже лучше А если еще примять правильные конструктивные решении и специальные составы то будет вообще супер, но тут упераемся в финансовую сторону, не то сейчас время и место для этого. Форум форумом, но практика великая вещь. С праздником всех. 1 Посилання на коментар Поділитися на інших сайтах More sharing options...
yanka Опубліковано: 7 січня 2017 Поділитись Опубліковано: 7 січня 2017 Я придерживаюсь мнения что нет таких супер составов которые могут удержать печь от растрескивания, термичиское расширение нечем нельзя сдержатьотчасти справедливо.. Но крепкий клейкий раствор таки лучше чем тощий. Трещин могла бы и больше образоваться но раствор держит. А так -да...Надо складывать так чтоб и без раствора стояло. Есть места в печи где что ни делай а трещины почти неизбежны. Как правило это самые горячие места, наружный кирпич напротив хайла("красное пятно"), перекрытие топочной дверки и там же футеровка......... каминопечь с духовкой 2 Посилання на коментар Поділитися на інших сайтах More sharing options...
Sheridan Опубліковано: 7 січня 2017 Поділитись Опубліковано: 7 січня 2017 Есть места в печи где что ни делай а трещины почти неизбежны. Как правило это самые горячие места, наружный кирпич напротив хайла("красное пятно"), перекрытие топочной дверки и там же футеровка......... А чому не використовуєте вільностояче футерування? Тобто вільні незалежні плити з шамоту чи бетону? Або чому хоча б топку з нормальних матеріалів не мурувати? У Вас же є представник Вольса і Рата. Це не дорого і не було б проблем. Посилання на коментар Поділитися на інших сайтах More sharing options...
yanka Опубліковано: 8 січня 2017 Поділитись Опубліковано: 8 січня 2017 свободно стоящая футеровка вовсю используется,без нее никак. Речь идет в первую очередь о топливнике. Как правило это обычный шамотный кирпич. Импортовые шам.плиты конечно крутые но для массового строительства трудноприменимы изза цены. Есть место вокруг топочной дверки где наружные красные кирпичи смотрят в топку. Это одно из слабых мест. Ктото закрывает это место нержавкой ,ктото колхозит чтото другое,ктото ставит шамотный вместо красного что снаружи выглядит неэстетично. ктото вообще не закрывает....Даже этой нержавки еще гдето набраться надо. Клиент не обремененный большими деньгами не всегда готов даже за него платить.("раньше и без этого строили игодами стояло"). Хотелось бы найти некий простой надежный способ защиты этого места. Не верится что в 21 веке кроме нержавки ниче не придумать. Кпримеру как укр.коллеги выкручиваются? Посилання на коментар Поділитися на інших сайтах More sharing options...
usanin_n Опубліковано: 8 січня 2017 Поділитись Опубліковано: 8 січня 2017 Иван, а как выкручиваемся? Нержавейка+каолиновая вата. Не сильно это смету утяжеляет на фоне общей стоимости материалов Посилання на коментар Поділитися на інших сайтах More sharing options...
yanka Опубліковано: 8 січня 2017 Поділитись Опубліковано: 8 січня 2017 у шведки есть еще место где плита лежит. так и норовит потрескаться.ктото ленту ложит с гвоздями, ктото швы утончает максимально.Не люблю шведки изза этого..Тут дилемма: или дать и не мешать кирпичу расширяться или наоборот стянуть чем то чтоб и не думало расширяться. Дело в том что в толще кладки прочность достигается не только раствором но и прижатием каждого конкретного кирпича кирпичем сверху. там где плита этого прижатия нет Добавлено через 12 минут Иван, а как выкручиваемся? Нержавейка+каолиновая вата. Не сильно это смету утяжеляет на фоне общей стоимости материаловкстати есть вариант зарезать нискось кирпич и запустить туда через вату шамот футеровки. До самой рамки дверки...вот только перекрывать такое сложно Посилання на коментар Поділитися на інших сайтах More sharing options...
Sheridan Опубліковано: 8 січня 2017 Поділитись Опубліковано: 8 січня 2017 свободно стоящая футеровка вовсю используется,без нее никак. Речь идет в первую очередь о топливнике. Как правило это обычный шамотный кирпич. Импортовые шам.плиты конечно крутые но для массового строительства трудноприменимы изза цены. Я про топку й кажу. Всередині викласти вільностоячим футеруванням: плитами з шамоту чи бетону. Чи я не вірно розумію термін "топливник"? Я не вірю, що замовляють тільки дешеві печі з найдешевшої цегли. Є якісь не зовсім зубожілі замовники? Есть место вокруг топочной дверки где наружные красные кирпичи смотрят в топку. Это одно из слабых мест. Ктото закрывает это место нержавкой ,ктото колхозит чтото другое,ктото ставит шамотный вместо красного что снаружи выглядит неэстетично. ктото вообще не закрывает....Даже этой нержавки еще гдето набраться надо. Клиент не обремененный большими деньгами не всегда готов даже за него платить.("раньше и без этого строили игодами стояло"). Так, це знайома дилема. Навіть на заході з крутими шамотами її вирішують через gap (проміжок?). Для нашої адаптації я це бачу так: P.S. потім зроблю більш толковий проект, зараз просто накинув рішення. Посилання на коментар Поділитися на інших сайтах More sharing options...
yanka Опубліковано: 8 січня 2017 Поділитись Опубліковано: 8 січня 2017 Я про топку й кажу. Всередині викласти вільностоячим футеруванням: плитами з шамоту чи бетону. Чи я не вірно розумію термін "топливник"?да все правильно..только ничего нового вы не открыли..все давно так и делают. Для нашої адаптації я це бачу так: так и дурак сделает но таких рамок дверных чтоб на всю ширину кирпича-12см я нигде не видел. как правило- не более 4см. так что это не для нашей адаптации. Посилання на коментар Поділитися на інших сайтах More sharing options...
Sheridan Опубліковано: 8 січня 2017 Поділитись Опубліковано: 8 січня 2017 так и дурак сделает но таких рамок дверных чтоб на всю ширину кирпича-12см я нигде не видел. как правило- не более 4см. так что это не для нашей адаптации. Ну я здогадуюсь про очевидність рішень, зокрема тому, що їм вже років 50. Справа у тім, що я вільний робити собі такі дверцята, які будуть мені перед усім зручними для роботи, а не те, що підсовують. Я розумію, що Вам може бути від цього не холодно й не гаряче, але я не буду адаптуватись під існуюче лайно, бо його багато і всі мучаться. У Кримській обсерваторії жив один старенький єврей-науковець і на старості літ його маразм серед ночі часом видавав просто іскрометні перли. Він кричав: "я не сплю, і ви спати не будете!" До речі, я бачив, як на бідному проекті з товстого листа варили такий собі каркас-перехідник на всі 120мм, і вже на нього чіпляли дверцята. Я так розумію, це аналог нержавійки у Вашому випадку. да все правильно..только ничего нового вы не открыли..все давно так и делают. Тоді давайте з початку. Що означає Есть места в печи где что ни делай а трещины почти неизбежны. Как правило это самые горячие места, наружный кирпич напротив хайла("красное пятно"), перекрытие топочной дверки и там же футеровка......... Я бачу там муровані цегли. Посилання на коментар Поділитися на інших сайтах More sharing options...
salix Опубліковано: 8 січня 2017 Поділитись Опубліковано: 8 січня 2017 Так, це знайома дилема. Навіть на заході з крутими шамотами її вирішують через gap (проміжок?). Для нашої адаптації я це бачу так: P.S. потім зроблю більш толковий проект, зараз просто накинув рішення. Вы лучше дверки сделайте толковые. А крепление нержавейкой на любую толщину стенки нужно делать по месту. Посилання на коментар Поділитися на інших сайтах More sharing options...
lobane Опубліковано: 8 січня 2017 Автор Поділитись Опубліковано: 8 січня 2017 у шведки есть еще место где плита лежит. Я уголком по верху обвязываю. И кирпич не скалывается при ударе кастрюлей. кстати есть вариант зарезать нискось кирпич и запустить туда через вату шамот футеровки. До самой рамки дверки...вот только перекрывать такое сложно Хороший способ только да геморный. Делал пару раз когда в глушь заехел, где не то что нержавейки не найти и людей нет порой... А сверху вот думаю можно положить тонкую вермикулитовую пластину, если бортик дверки позволяет Я про топку й кажу. Всередині викласти вільностоячим футеруванням: плитами з шамоту чи бетону. Чи я не вірно розумію термін "топливник"? Я не вірю, що замовляють тільки дешеві печі з найдешевшої цегли. Є якісь не зовсім зубожілі замовники? Ну так и делается. Бывают конечно и не зубожілі замовники. Но мыж говорим в общем про тенденции а не исключение из нее. Посилання на коментар Поділитися на інших сайтах More sharing options...
Sheridan Опубліковано: 8 січня 2017 Поділитись Опубліковано: 8 січня 2017 Вы лучше дверки сделайте толковые. А крепление нержавейкой на любую толщину стенки нужно делать по месту. Я думав, що ми випускаємо толкові, особливо пічні. А які Вам потрібно? Ну так и делается. Бывают конечно и не зубожілі замовники. Но мыж говорим в общем про тенденции а не исключение из нее. Людей, які можуть собі дозволити якісні печі, є багато, просто поки що Ви їх не цікавите. Посилання на коментар Поділитися на інших сайтах More sharing options...
yanka Опубліковано: 8 січня 2017 Поділитись Опубліковано: 8 січня 2017 А сверху вот думаю можно положить тонкую вермикулитовую пластину,кстати про вермукулит...а нет ли чего вроде него чтоб вообще вместо нержавки ложить, ну чтоб жесткая и не выдиралась суковатой дровиной и в то же время термостойкая...кпримеру паронит-всего 450 град держит.. Как он этот вермукулит вообще...гнется ломается крошится .....? Посилання на коментар Поділитися на інших сайтах More sharing options...
lobane Опубліковано: 8 січня 2017 Автор Поділитись Опубліковано: 8 січня 2017 Я думав, що ми випускаємо толкові, особливо пічні. А які Вам потрібно? Я бы брал чугунные со стеклом типа как SVT. Рынок просто огромен, а все импортное отечественного нету. Очень интерисуют полугруглые эркерные кстати про вермукулит...а нет ли чего вроде него чтоб вообще вместо нержавки ложить, ну чтоб жесткая и не выдиралась суковатой дровиной и в то же время термостойкая...кпримеру паронит-всего 450 град держит.. Как он этот вермукулит вообще...гнется ломается крошится .....? Вирмикулит скажем так типа шамота, только размеры больше могут быть. Типа суперизола, только тяжелей. Его в котлах бытовых в отбойник на дверки ставят можите пойти в магазине пощупать. А гибкого я думаю ничего нет. 1 Посилання на коментар Поділитися на інших сайтах More sharing options...
salix Опубліковано: 8 січня 2017 Поділитись Опубліковано: 8 січня 2017 Я думав, що ми випускаємо толкові, особливо пічні. А які Вам потрібно? Печные литые чугунные дверки Стальные ваши видел на сайте. В руках не держал. Посилання на коментар Поділитися на інших сайтах More sharing options...
usanin_n Опубліковано: 8 січня 2017 Поділитись Опубліковано: 8 січня 2017 кстати про вермукулит...а нет ли чего вроде него чтоб вообще вместо нержавки ложить, ну чтоб жесткая и не выдиралась суковатой дровиной и в то же время термостойкая...кпримеру паронит-всего 450 град держит.. Как он этот вермукулит вообще...гнется ломается крошится .....? Могу предложить Мегаизол. Толщина 5 см температура нагрева до 900 градусов. Конструкция самонесущая и не хрупкая как у суперизола Посилання на коментар Поділитися на інших сайтах More sharing options...
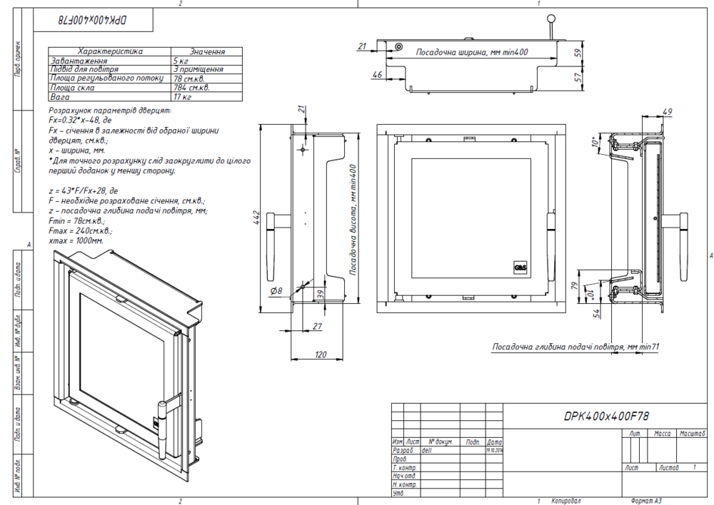
Sheridan Опубліковано: 8 січня 2017 Поділитись Опубліковано: 8 січня 2017 кстати про вермукулит...а нет ли чего вроде него чтоб вообще вместо нержавки ложить, ну чтоб жесткая и не выдиралась суковатой дровиной и в то же время термостойкая...кпримеру паронит-всего 450 град держит.. Как он этот вермукулит вообще...гнется ломается крошится .....? Це складне питання: з однієї сторони, матеріал достатньо міцний для мінімального механічного навантаження, жаростійкий і одночасно дуже легкий. У печах значні механічні навантаження, тому вермикуліт підійде тільки як дефлектор, елемент колектора, ізолятор дна. Для вказаних Вами завдань його використання буде помилковим. Усі ізоли взагалі не призначені для прямого контакту з вогнем. Я бы брал чугунные со стеклом типа как SVT. Рынок просто огромен, а все импортное отечественного нету. Очень интерисуют полугруглые эркерные Печные литые чугунные дверки Стальные ваши видел на сайте. В руках не держал. Чавунні - хороше рішення, якщо вони технологічні. На жаль, політика компанії має певні обмеження на нижній рівень споживчої цінності продукту. Для розробки якісних дверцят, що мають правильну конструкцію, потрібен значний час. Щодо наших сталевих, то вони стандартні посадочні 40х40, мають необхідну глибину для відокремлення топки та облицювання, пази для топочних стінок, систему чистого скла, січенням подачі повітря 78см.кв. та опором менше 1Па, ремонтопридатні, дверцята для монтажу з'ємні. Якщо є бажаючі, то можу надіслати, щоб покрутити в руках. Перші дверцята під реальний проект будуть повністю безкоштовними для форумчан. 2 Посилання на коментар Поділитися на інших сайтах More sharing options...
lobane Опубліковано: 8 січня 2017 Автор Поділитись Опубліковано: 8 січня 2017 Якщо є бажаючі, то можу надіслати, щоб покрутити в руках. Перші дверцята під реальний проект будуть повністю безкоштовними для форумчан. В свою очередь предлагаю скидку под реальный проект на работу с такой дверкой для форумчан, интересно их тоже в руках покрутить. Давайте вместе работать в этом направлении, в Европе много дверок продается такого плана Посилання на коментар Поділитися на інших сайтах More sharing options...
salix Опубліковано: 8 січня 2017 Поділитись Опубліковано: 8 січня 2017 Чавунні - хороше рішення, якщо вони технологічні. На жаль, політика компанії має певні обмеження на нижній рівень споживчої цінності продукту. Для розробки якісних дверцят, що мають правильну конструкцію, потрібен значний час. Щодо наших сталевих, то вони стандартні посадочні 40х40, мають необхідну глибину для відокремлення топки та облицювання, пази для топочних стінок, систему чистого скла, січенням подачі повітря 78см.кв. та опором менше 1Па, ремонтопридатні, дверцята для монтажу з'ємні. Якщо є бажаючі, то можу надіслати, щоб покрутити в руках. Перші дверцята під реальний проект будуть повністю безкоштовними для форумчан. Как по мне . то нужно проще. Такая навороченная рамка мне точно не нужна. Чистое стекло я сделаю сам. Нужна дверка съемная с обычной рамкой. Посилання на коментар Поділитися на інших сайтах More sharing options...
Sheridan Опубліковано: 8 січня 2017 Поділитись Опубліковано: 8 січня 2017 Как по мне . то нужно проще. Такая навороченная рамка мне точно не нужна. Чистое стекло я сделаю сам. Нужна дверка съемная с обычной рамкой. Ми виготовляємо прості, але вони не пічні: це просто рамка з дверцятами. А як Ви чисте скло забезпечуєте? Посилання на коментар Поділитися на інших сайтах More sharing options...
salix Опубліковано: 8 січня 2017 Поділитись Опубліковано: 8 січня 2017 Ми виготовляємо прості, але вони не пічні: це просто рамка з дверцятами. А як Ви чисте скло забезпечуєте? Подачей воздуха из поддувала перед дверкой. А возможно чтобы рамка была из уголка? Ну и ручка покрасивше возможна? Посилання на коментар Поділитися на інших сайтах More sharing options...
Sheridan Опубліковано: 8 січня 2017 Поділитись Опубліковано: 8 січня 2017 Подачей воздуха из поддувала перед дверкой. А возможно чтобы рамка была из уголка? Ну и ручка покрасивше возможна? Зрозуміло, мені знайомий такий метод. Він все ще популярний у Європі, наприклад у Шмідт. Тут є два вирішення: 1) руштова топка, але тоді слід попрощатись з ефективністю. 2) подова топка, але тоді потрібне спеціальне крило-розсікач з подачею 80% повітря в топку, а близько 20% на скло. Якого рішення притримуєтесь Ви? Щодо рамки з кутників, то ми виконуємо різні варіанти компоновок. Намалюйте, що саме потрібно. Щодо ручки, то надішліть ескіз того, якою має бути пічна ручка. Ще додам щодо подачі повітря знизу: якщо вона буде здійснюватись далеко від скла, то створюватиметься турболентний потік і скло все-одно коптитиметься, хоч можливо й менше. Посилання на коментар Поділитися на інших сайтах More sharing options...
Рекомендовані повідомлення
Створіть акаунт або увійдіть у нього для коментування
Ви маєте бути користувачем, щоб залишити коментар
Створити акаунт
Зареєструйтеся для отримання акаунта. Це просто!
Зареєструвати акаунтУвійти
Вже зареєстровані? Увійдіть тут.
Увійти зараз